No fuel pressure

Tiny
MATT WATTS
  • MEMBER
  • 2003 FORD F-250
  • 5.4L
  • V8
  • 2WD
  • AUTOMATIC
  • 160,000 MILES
The fuel pump is not working. I am looking for the fuel pump relay and also wiring schematic for the fuel system.
Wednesday, August 29th, 2018 AT 7:14 AM

3 Replies

Tiny
ASEMASTER6371
  • MECHANIC
  • 52,796 POSTS
Good morning.

The fuel pump relay is part of the central junction box under the hood. That is the fuse box assembly. It is not serviceable without replacing the fuse box.

Although Ford provides a procedure to replace the fuel pump relay. ALLDATA users and Ford wiring diagrams indicate the relay is integral to the Central Junction Box (CJB) and not removable.

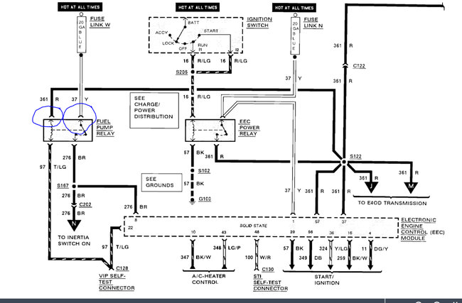
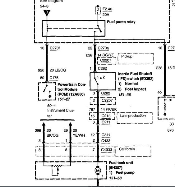
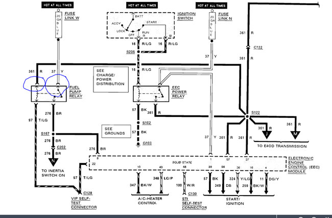
Wire diagram attached.

Roy
Was this
answer
helpful?
Yes
No
Wednesday, August 29th, 2018 AT 8:20 AM
Tiny
LBL LEWIS
  • MEMBER
  • 1 POST
Have same issue 1990 F250 xlt. My EEC and fuel pump relays are good, the reset/shut off switch good, check all wiring I could. Replaced tank selector switch, fuel filter. And sometimes it will kick on and prime runs fine. Others hear relays clicking but pump not priming. Never had problems with pumps stalling when it's running. Lost is an understatement for me. Been almost a year and still having this problem always worrying when I turn truck off that it won't start back up. Help!
Was this
answer
helpful?
Yes
No
Saturday, November 27th, 2021 AT 9:15 AM
Tiny
ASEMASTER6371
  • MECHANIC
  • 52,796 POSTS
Good morning,

I would start with using either a voltmeter or test light to test for voltage to the inertia switch. Test it for the voltage for the first 2 seconds the key is in the on position.

https://www.2carpros.com/articles/how-to-check-wiring

https://www.2carpros.com/articles/how-to-use-a-test-light-circuit-tester

https://www.2carpros.com/articles/how-to-use-a-voltmeter

I attached the diagram for you and circled the wire you need to test.

Roy
Was this
answer
helpful?
Yes
No
Monday, November 29th, 2021 AT 6:54 AM

Please login or register to post a reply.