Scanner will not connect?

Tiny
KEN L
  • MASTER CERTIFIED MECHANIC
  • 55,291 POSTS
I kind of had a feeling the PCM was bad, but I wanted us to go through the testing to be sure. Here is the PCM location and the replacement instructions. Check out the diagrams (below). Please let us know what happens.
Was this
answer
helpful?
Yes
No
Wednesday, July 31st, 2019 AT 11:37 AM
Tiny
AMERICAN CITIZEN
  • MEMBER
  • 2 POSTS
  • 2003 CHRYSLER TOWN AND COUNTRY
  • 3.3L
  • 6 CYL
  • 2WD
  • AUTOMATIC
  • 124,560 MILES
There is power at OBD2 plugin scanner lights up push enter and it looks for software you vehicle uses with obs2 then it says no communication. I already tested on other vehicle it is okay. So I know there is power with ignition off. Check engine light is on. Transmission stays in low gear. Please help, my survival depends on this vehicle. ASAP at your earliest convenience. Thanks
Was this
answer
helpful?
Yes
No
Saturday, December 26th, 2020 AT 11:04 AM (Merged)
Tiny
KEN L
  • MASTER CERTIFIED MECHANIC
  • 55,291 POSTS
Hello,

The first thing we must do is check the fuse. here is a guide with the fuse locations below:

https://www.2carpros.com/articles/how-to-check-a-car-fuse

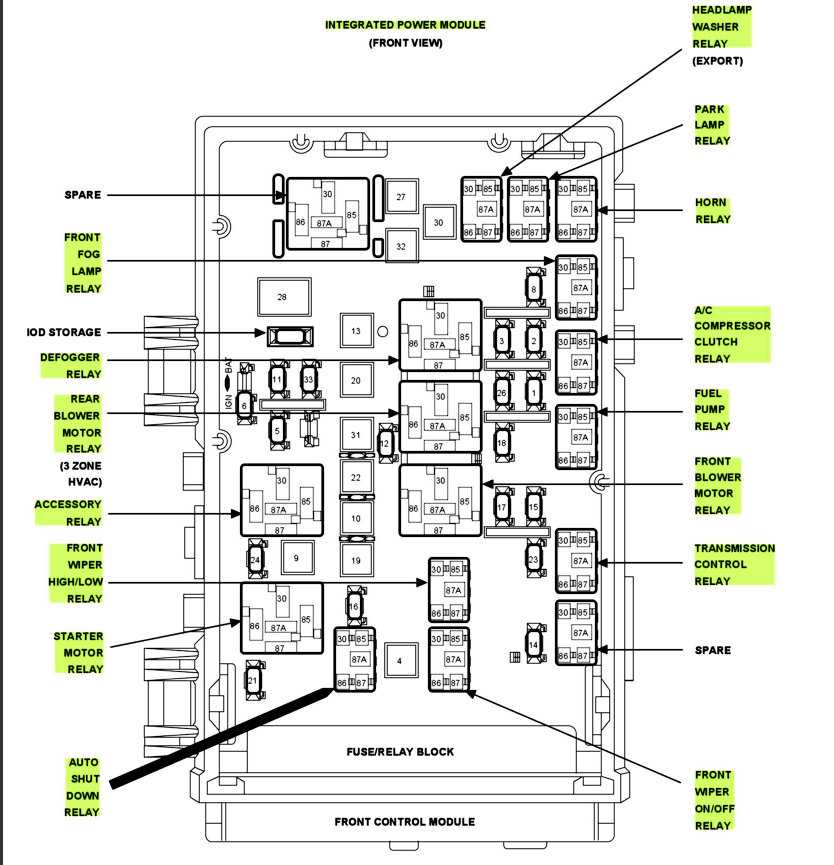
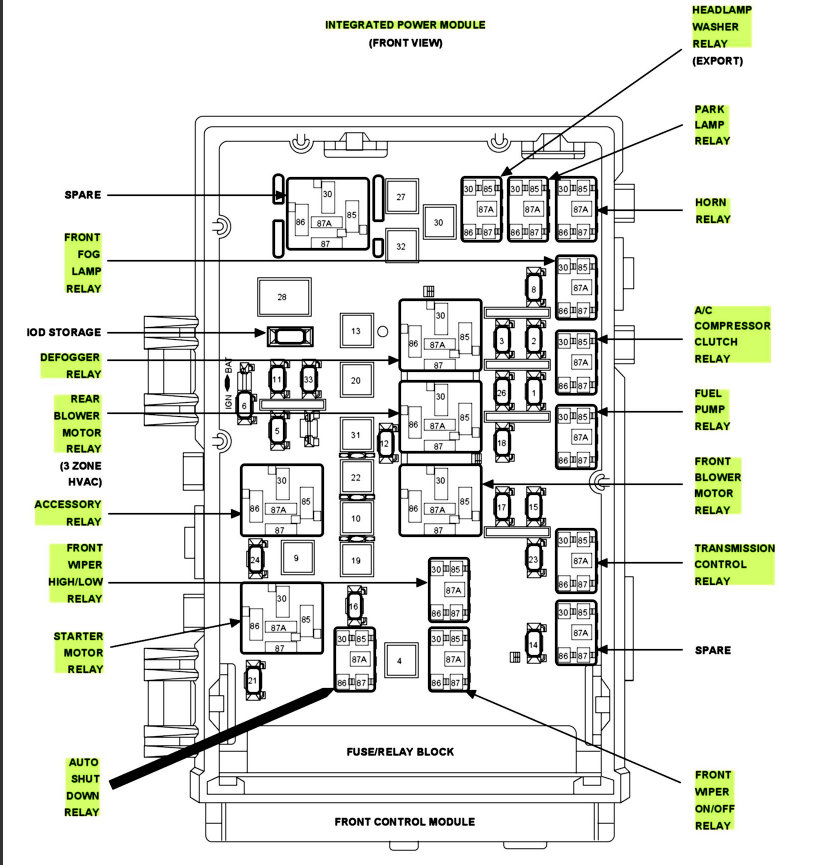
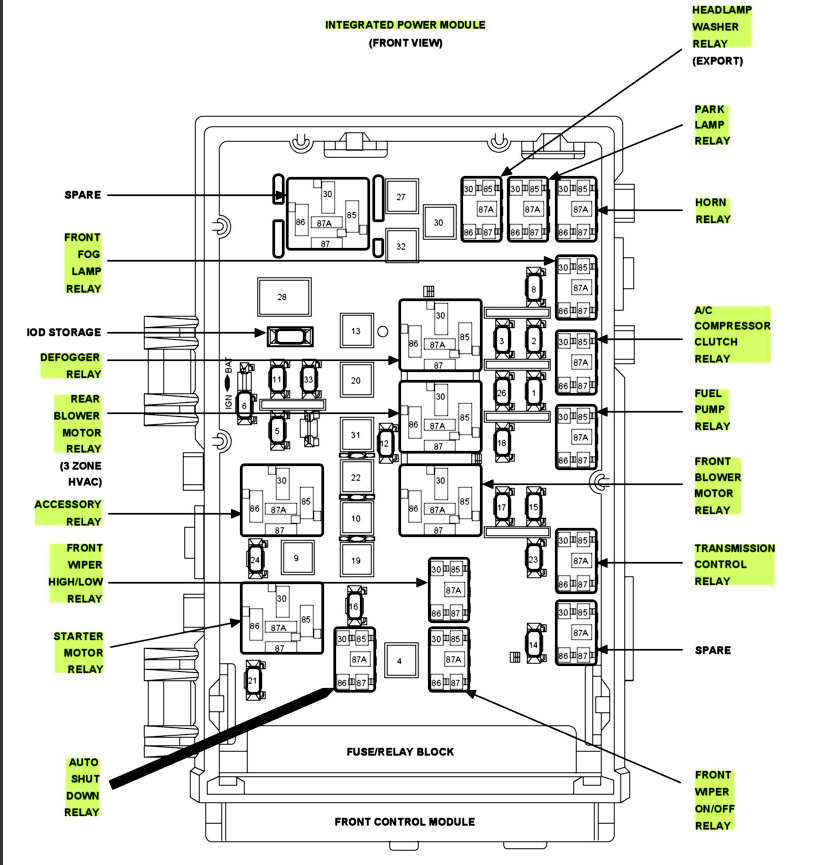
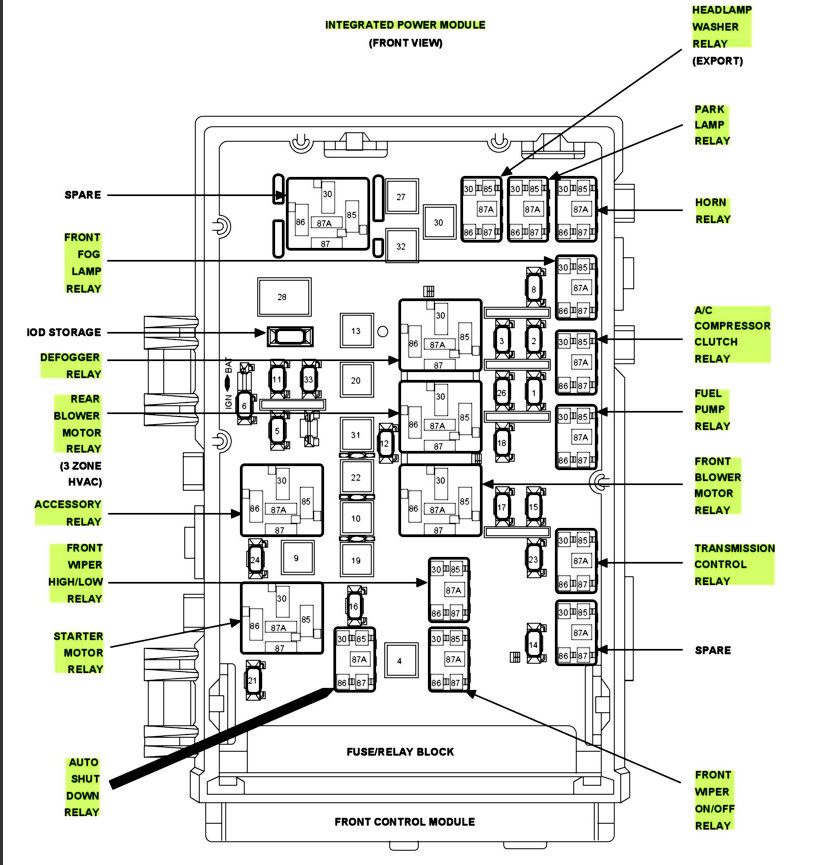
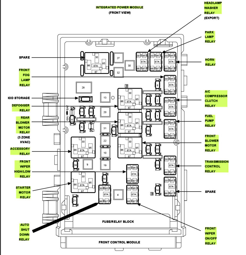
If the fuses are okay here is the wiring diagrams for the ALDL you will see the TIPM runs the system which can be the problem which is common. Here is a guide to help check the connections and the TIPM replacement instruction so you can see how to replace it below.

https://www.2carpros.com/articles/how-to-check-wiring

Check out the diagrams (below). Please let us know what you find. We are interested to see what it is.
Was this
answer
helpful?
Yes
No
+1
Saturday, December 26th, 2020 AT 11:04 AM (Merged)
Tiny
AMERICAN CITIZEN
  • MEMBER
  • 2 POSTS
Thank you for your response and all help and information w/diagrams. After I sent you my question I took my van in (limp mode) I guess its called to AutoZone he was able to retrieve codes PO700 and PO605 read only memory failed self test. Is my TCM going to need replacement/to be rebuilt? I did a little recon on it 3 places and priced $130.00, $169.00, $199.00, $249.00 plug and play 1 year warranty except 1 14 day return bla bla. Man I am getting all turned around in all this. Any suggestion/recommendations?Input greatly appreciated and thanks for your time.
Was this
answer
helpful?
Yes
No
Saturday, December 26th, 2020 AT 11:04 AM (Merged)
Tiny
KEN L
  • MASTER CERTIFIED MECHANIC
  • 55,291 POSTS
They do have issues with the TCM on these because of the location. Here is how you replace the unit. Check out the diagrams (below). Please let us know what you find.
Was this
answer
helpful?
Yes
No
+1
Saturday, December 26th, 2020 AT 11:04 AM (Merged)

Please login or register to post a reply.