No electrical power throughout the car

Tiny
GORDON73
  • MEMBER
  • 2006 TOYOTA COROLLA
  • 4 CYL
  • 2WD
  • AUTOMATIC
  • 56,000 MILES
Doors won't open automatically and everything has no power nothing at all.
Friday, December 28th, 2018 AT 12:41 PM

1 Reply

Tiny
JACOBANDNICKOLAS
  • MECHANIC
  • 110,192 POSTS
Hi and thanks for using 2CarPros.

If there is nothing, are you sure the battery isn't dead? Take a volt meter and see of there is power from the battery.

https://www.2carpros.com/articles/how-to-use-a-voltmeter

Next, if the battery is good, make sure battery terminals are clean and tight.

https://www.2carpros.com/articles/everything-goes-dead-when-engine-is-cranked

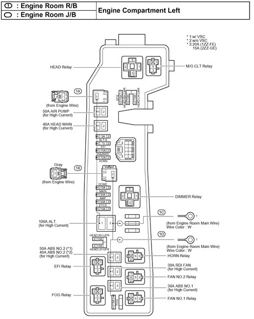
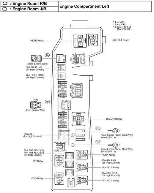
Next, I need you to check the main fuses under the hood in the power distribution box (fuse box). I attached two pictures which indicate the fuses found there. The third picture is of the fuse box under the hood. It is on the driver's side inner fender. Make sure the main ones are all good.

https://www.2carpros.com/articles/how-a-car-fuse-works

https://www.2carpros.com/articles/how-to-check-a-car-fuse

https://www.2carpros.com/articles/how-to-check-wiring

https://www.2carpros.com/articles/how-to-use-a-test-light-circuit-tester

Check those things to start and report back to me with what you find.

Take care and Happy New Year,

Joe
Was this
answer
helpful?
Yes
No
Sunday, December 30th, 2018 AT 8:56 PM

Please login or register to post a reply.