Headlights problems high and low beam

Tiny
DONALD R MARVIN
  • MEMBER
  • 2001 DODGE CARAVAN
Electrical problem
2001 Dodge Caravan V6 front wheel drive automatic 124,967 KLMS

Hi, when the headlights are on low beam the passenger side only lights but when I change to the upper beams the drivers side only lights, bulbs and wiring check okay. Don, Thanks for now.
P.S. Only the daytime driving light on the drivers side light.
Saturday, December 8th, 2007 AT 12:43 PM

19 Replies

Tiny
DODGEGUY43
  • MEMBER
  • 10 POSTS
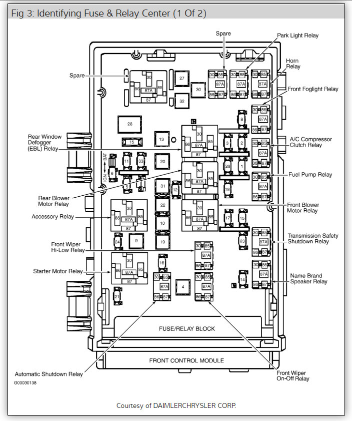
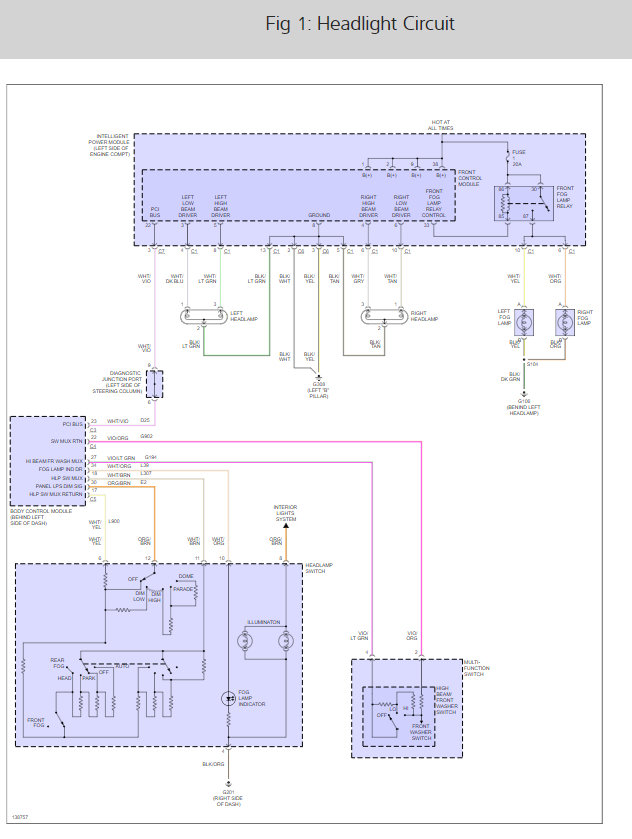
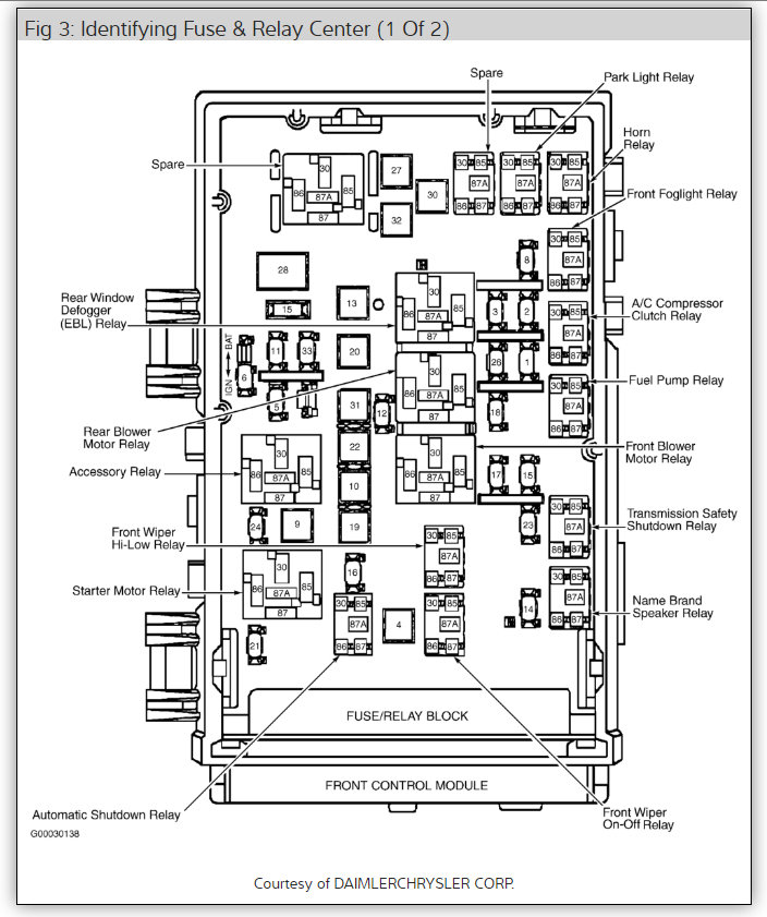
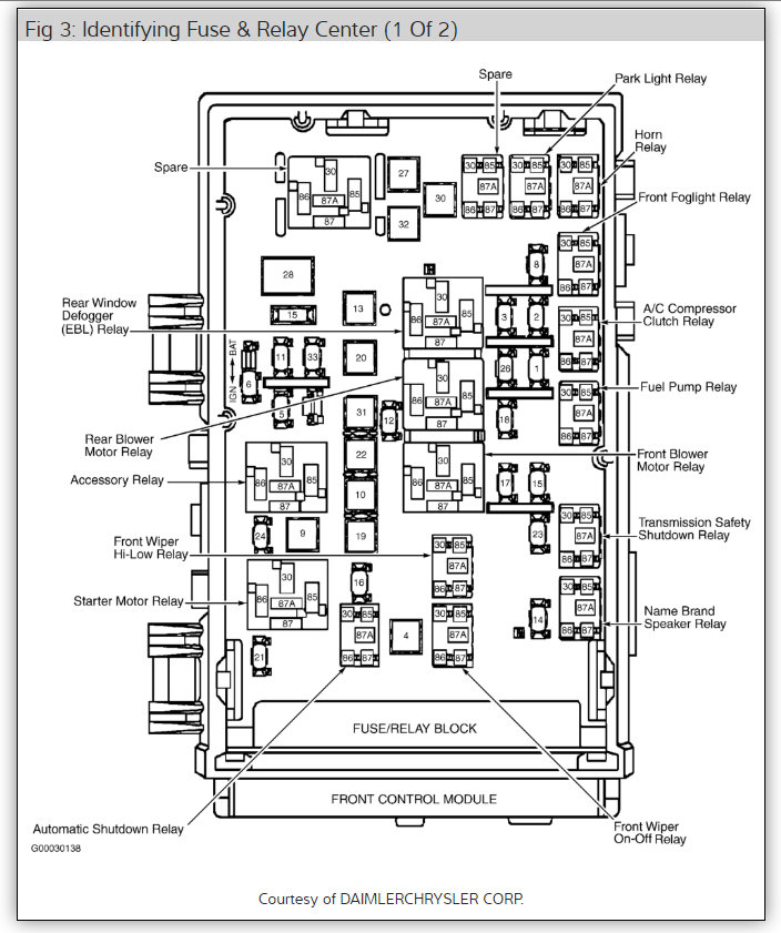
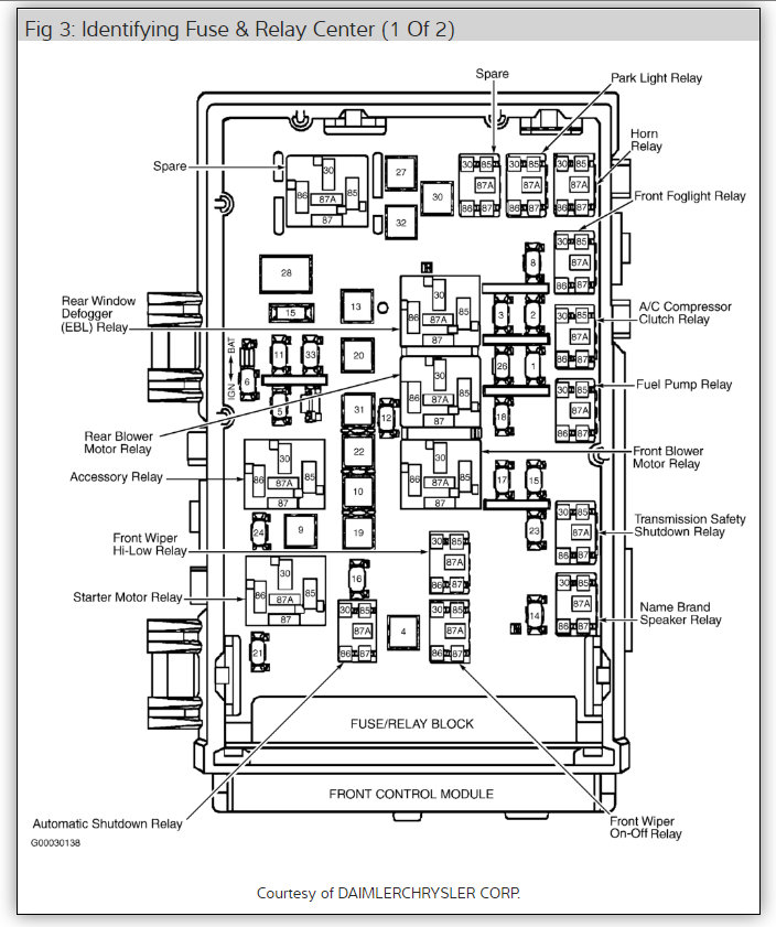
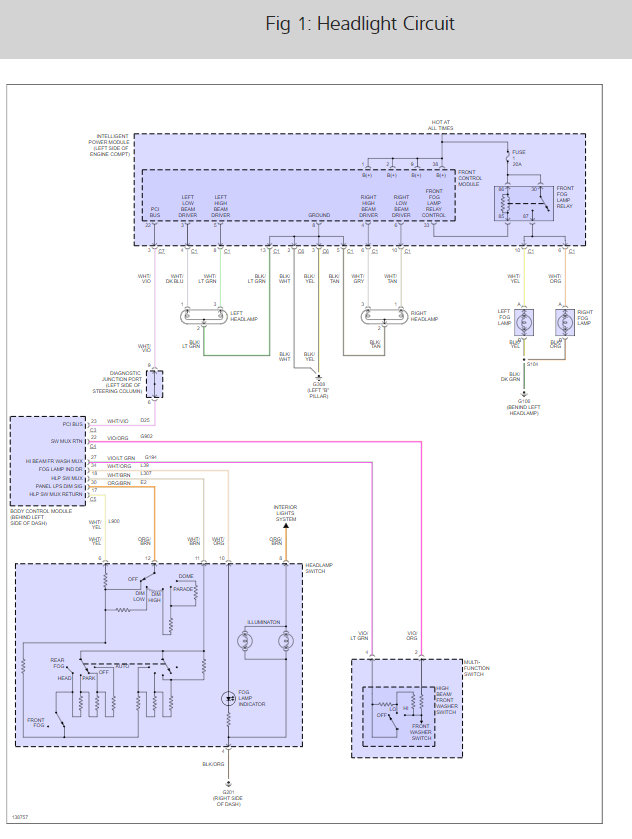
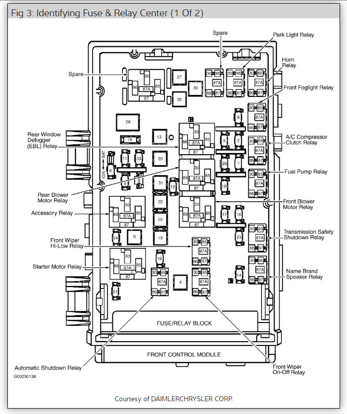
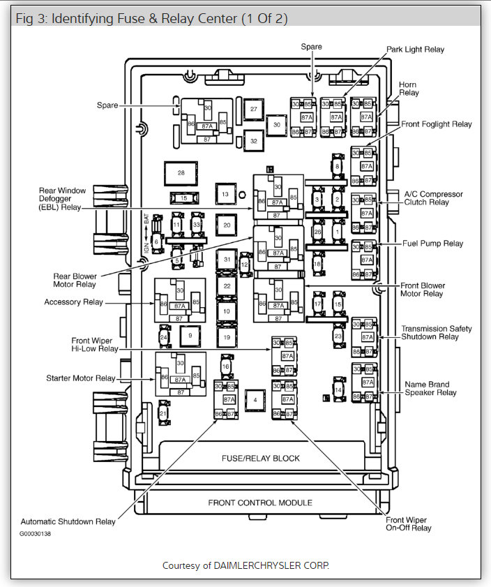
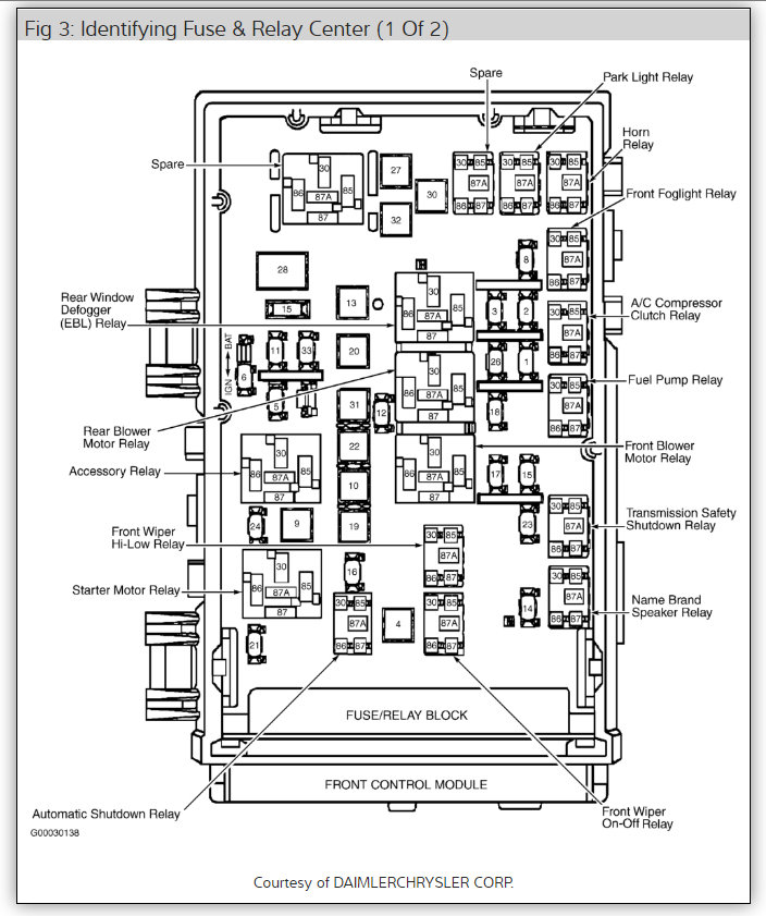
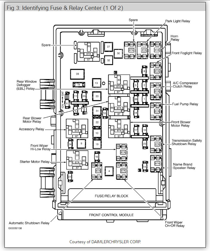
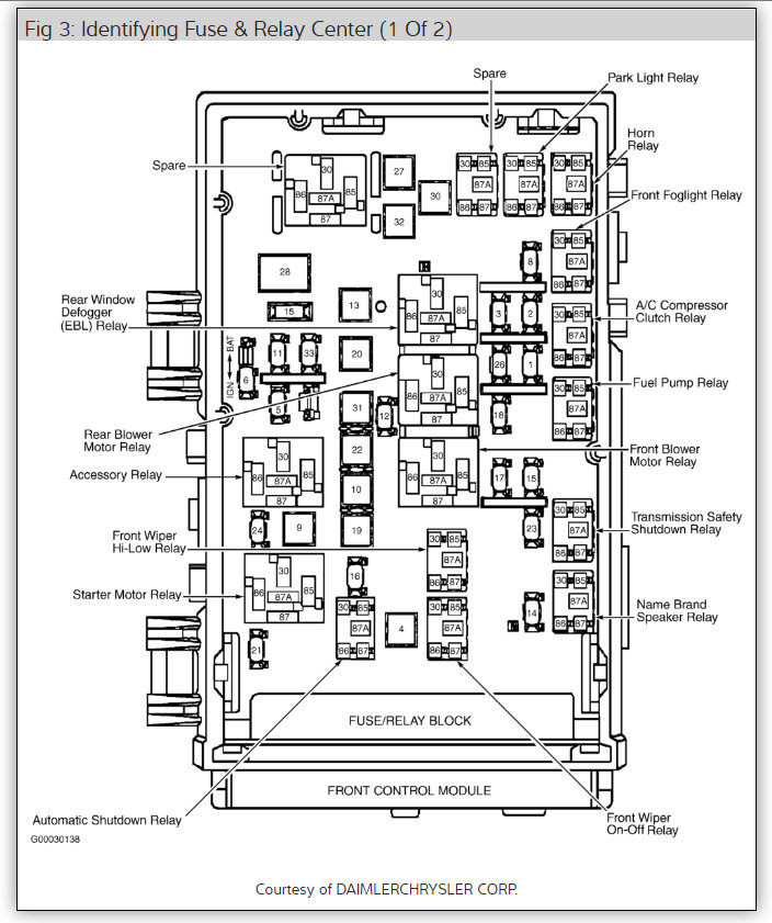
On the RS van the front lights are controlled by the FCM (front Control module) If your wiring and bulbs are indeed good. The FCM is the problem. It is attached to the PDC (power distribution center). Both units combined it is called an IPM (integrated Power Module).

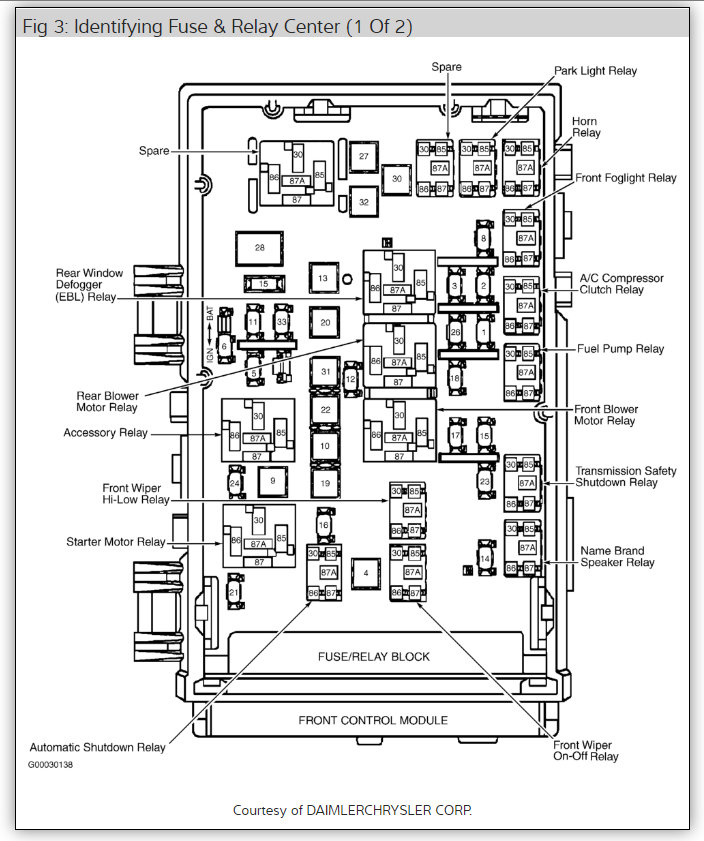
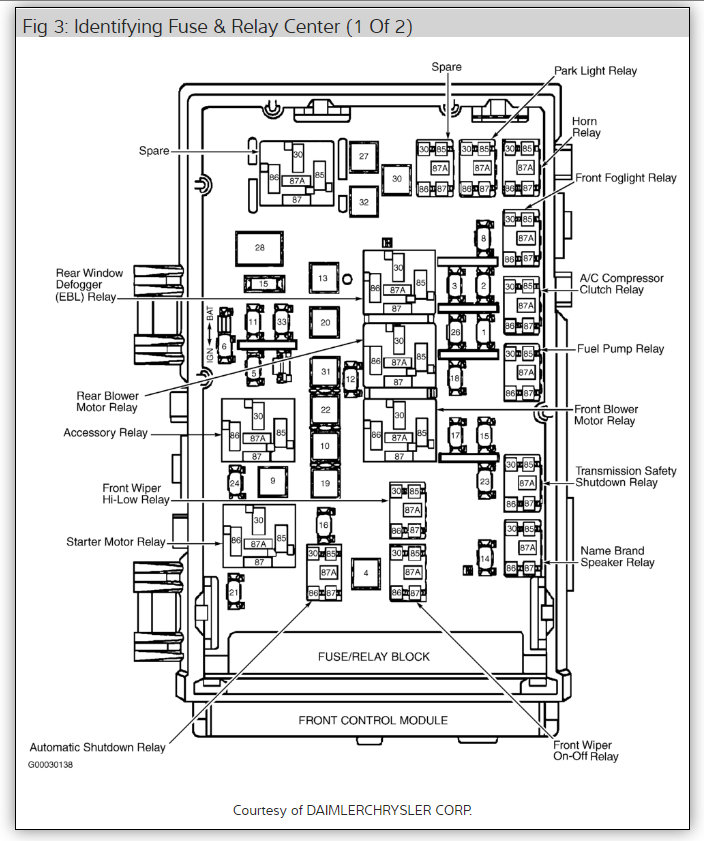
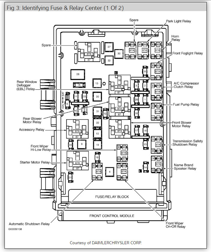
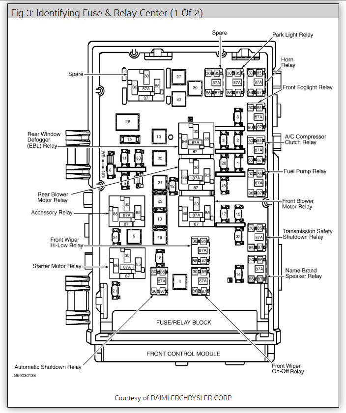
Here is a headlight wiring diagram so you can see how the system works.

Check out the diagrams (Below)

Please let us know if you need anything else to get the problem fixed.

Cheers
Was this
answer
helpful?
Yes
No
+15
Sunday, November 17th, 2019 AT 11:23 AM
Tiny
DAVEGH77
  • MEMBER
  • 1 POST
2001 Dodge Grand Caravan headlight issue updated. Well now that it has been a couple of weeks and the lights are still working properly on the van. So that tells me that the problem is with the FCM. I have since also done the same thing to a friends van ( 2002 though) and for the last nine days, it has also worked without a glitch.

So, for anyone who was thinking of running off to the dealer and forking out hundreds for part(s) and labor. Do not do it. Chances are, removing the FCM yourself, cleaning it, replacing it will save you hundreds. Forget wasting your time trying to get it done through Dodge. It takes all of ten minutes and your good to go.

In case anyone wants to know as others have posted: It is a very simple process.
1. Just remove the plastic cover over the PDC ( which is the black cover beside the battery. )
2. Looking at the front of the PDC is a silver housing with four torx screws.
3. Remove the four screws.
4. Pull out the FCM housing. ( It separates from the PDC )
5. Looking at the FCM, you will see two rows of needle pins, and one row of flat pins.
6. The flat pins are the culprits, what I did was use a fine small file and cleaned both sides of the flat pins only. They appeared to have a white coating of buildup on them.
7. Then I took small needle nose pliers and gave each flat pin a very small slight twist. Not to much, but a noticeable twist.
8. I re-inserted the FCM into the PDC, tighten back the four torx screws and voila!
9. Lights have been on for the last two weeks and five days now.

Now, if I could just get my power window on the passenger side to work one hundred percent of the time as opposed to seventy five percent of the time, I would be a happy camper.
Was this
answer
helpful?
Yes
No
+60
Sunday, November 17th, 2019 AT 11:23 AM
Tiny
PCOS_US
  • MEMBER
  • 2 POSTS
Thanks for the FCM instructions. I struggled to remove a fifth screw and your directions made me realize only the four outer torque screws need to be removed.

My lights would flash at night when the car was parked, and the headlight warning bell would beep/ding when I shut off the car and opened the door. I followed your instructions but used a razor blade to scrape the ends. So far so good. Thanks
Was this
answer
helpful?
Yes
No
+6
Sunday, November 17th, 2019 AT 11:23 AM
Tiny
VICKSSLC
  • MEMBER
  • 1 POST
This saved me $917.00!
Was this
answer
helpful?
Yes
No
+8
Sunday, November 17th, 2019 AT 11:23 AM
Tiny
BRIANSMISH
  • MEMBER
  • 2 POSTS
I did what was answered about the FCM, lights are working now, but now my 2001 Dodge Caravan does not start. No crank, just a click, and fuel injector on, and all lights works good now! Help!
Was this
answer
helpful?
Yes
No
+4
Sunday, November 17th, 2019 AT 11:23 AM
Tiny
BRIANSMISH
  • MEMBER
  • 2 POSTS
I wonder if my van needs to be reprogrammed, because I took out my (front control module) then I put it back. Could that be the problem?
Was this
answer
helpful?
Yes
No
+2
Sunday, November 17th, 2019 AT 11:23 AM
Tiny
GIACCHINOLECH
  • MEMBER
  • 1 POST
Davegh77 thanks for the 2001 Dodge Grand Caravan headlight Issue, your answer worked like a champ. Now if I could get my front blower motor to work I would be in good shape.

Thanks again,

Baddadgino
Was this
answer
helpful?
Yes
No
+1
Sunday, November 17th, 2019 AT 11:23 AM
Tiny
MELVINA ALEXSON
  • MEMBER
  • 1 POST
Thanks for the information, I am going to try this to my van. :)
Was this
answer
helpful?
Yes
No
+2
Sunday, November 17th, 2019 AT 11:23 AM
Tiny
JAMES CHERRYVALE, KS
  • MEMBER
  • 1 POST
After reading what could go wrong, I only loosened the screws, pulled the module part way out and shoved it back together! Lights work! On my 2001 Dodge, it was the left/driver's side low beam that did not work even after changing the bulb. Thanks everyone, and thanks to my son, a master mechanic for finding this site for me!
Was this
answer
helpful?
Yes
No
-1
Sunday, November 17th, 2019 AT 11:23 AM
Tiny
CANADA_EAST
  • MEMBER
  • 1 POST
DAVEGH77 shout out years later. Fixed my dodge caravan headlight issue. Thank You!
Was this
answer
helpful?
Yes
No
-1
Sunday, November 17th, 2019 AT 11:23 AM
Tiny
SAM_PINAS
  • MEMBER
  • 1 POST
Davegh77 you are awesome. My headlights are working like a charm now. Thanks!
Was this
answer
helpful?
Yes
No
Sunday, November 17th, 2019 AT 11:23 AM
Tiny
KANDREWSDD
  • MEMBER
  • 1 POST
Very helpful article. Took 10 minutes works great! Saved tons!
Was this
answer
helpful?
Yes
No
+1
Sunday, November 17th, 2019 AT 11:23 AM
Tiny
KEN L
  • MASTER CERTIFIED MECHANIC
  • 55,481 POSTS
Please use 2CarPros anytime, we are here to help. Tell a friend please.

Cheers, Ken
Was this
answer
helpful?
Yes
No
+3
Sunday, November 17th, 2019 AT 11:23 AM
Tiny
TIFFANY POPPA
  • MEMBER
  • 3 POSTS
DAVEGH77. I am getting ready to go go try what you wrote but I was wondering if I need to disconnect one or both battery cables before I start?
Was this
answer
helpful?
Yes
No
Sunday, November 17th, 2019 AT 11:23 AM
Tiny
KEN L
  • MASTER CERTIFIED MECHANIC
  • 55,481 POSTS
Just the negative. Please let us know if you need anything else to get the problem fixed.
Was this
answer
helpful?
Yes
No
Sunday, November 17th, 2019 AT 11:23 AM
Tiny
TIFFANY POPPA
  • MEMBER
  • 3 POSTS
Well it did not work. But I might just have to try it again. I was very careful not to brake it. Maybe I was to careful and just didn't clean the pins enough.
Was this
answer
helpful?
Yes
No
Sunday, November 17th, 2019 AT 11:23 AM
Tiny
KEN L
  • MASTER CERTIFIED MECHANIC
  • 55,481 POSTS
Are both high and low beam headlight not working? Here are wiring diagrams so you can see how the system works and the fuses #1 we should check as well with a guide to help:

https://www.2carpros.com/articles/how-to-check-a-car-fuse

Check out the diagrams (below). Please let us know what happens.
Was this
answer
helpful?
Yes
No
+2
Sunday, November 17th, 2019 AT 11:23 AM
Tiny
TIFFANY POPPA
  • MEMBER
  • 3 POSTS
I have daytime running lights and one works and the other one doesn't. When I turn on my headlights, the right one works and the left one doesn't but if I turn my brights on the left one works and the right one doesn't. So if I drive at night I have to hold the blinker switch in between dim lights and bright lights in order for both headlights to work. It's a pain in the butt. I checked the wiring and it looks okay and I replaced the headlight bulbs and that didn't fix it.
Was this
answer
helpful?
Yes
No
+1
Sunday, November 17th, 2019 AT 11:23 AM
Tiny
KEN L
  • MASTER CERTIFIED MECHANIC
  • 55,481 POSTS
Yep, it sounds like the IPM has gone out. but I would test power and continuity to make sure the switch is working. Use this guide and the wiring diagrams above:

https://www.2carpros.com/articles/how-to-check-wiring

Check out the diagrams (below). Please let us know what happens.
Was this
answer
helpful?
Yes
No
+2
Sunday, November 17th, 2019 AT 11:23 AM

Please login or register to post a reply.