Four wheel drive will not engage?

Tiny
STICKHOLIO
  • MEMBER
  • 2003 FORD F-150
  • V8
  • 4WD
  • AUTOMATIC
  • 145,000 MILES
Just tried to engage my four wheel drive and it will not engage. The indicator light on the dash did not even come on. Any ideas?
Saturday, December 30th, 2017 AT 1:00 PM

36 Replies

Tiny
KEN L
  • MASTER CERTIFIED MECHANIC
  • 55,469 POSTS
Hello,

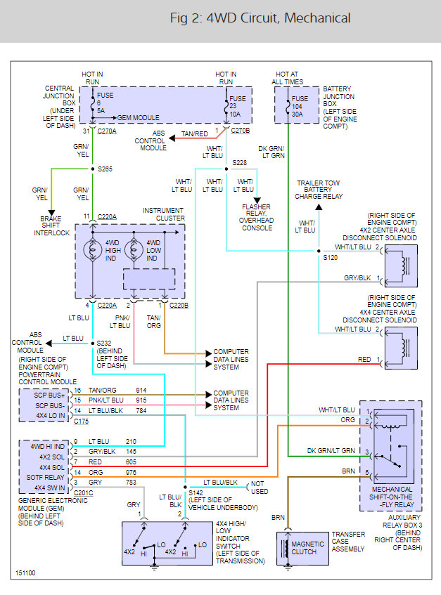
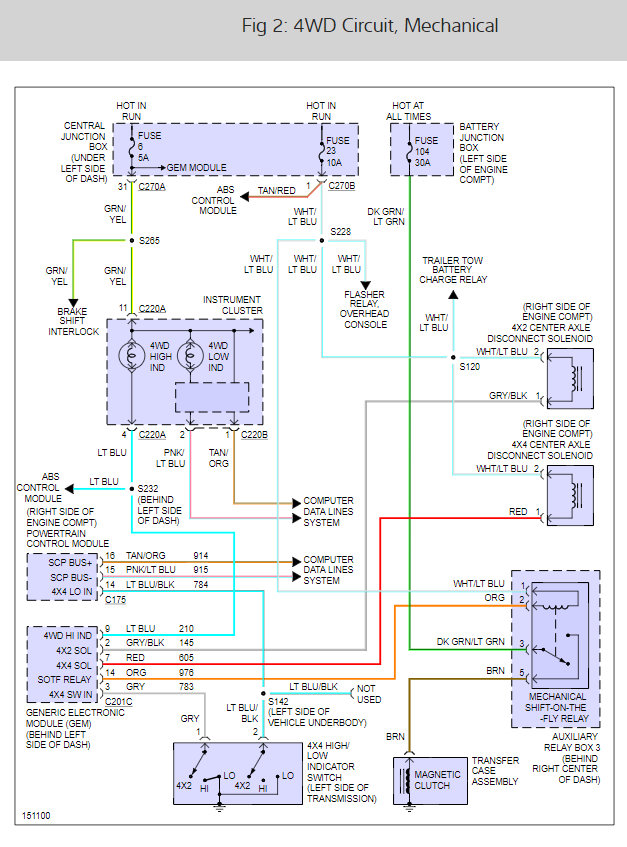
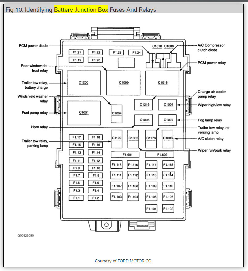
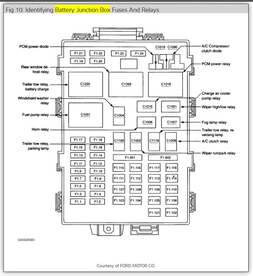
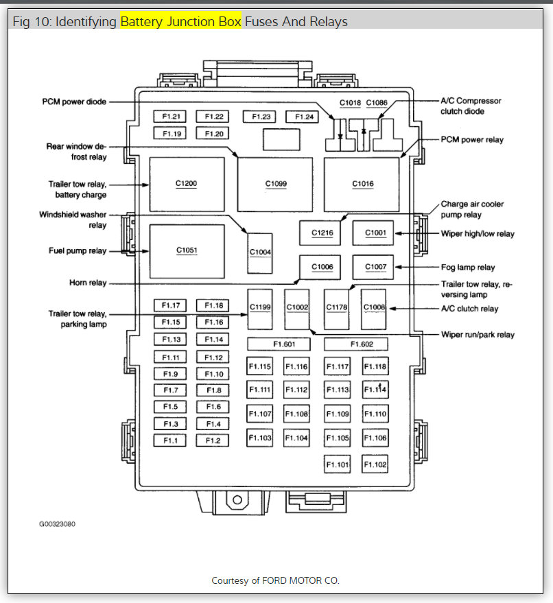
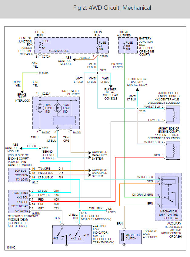
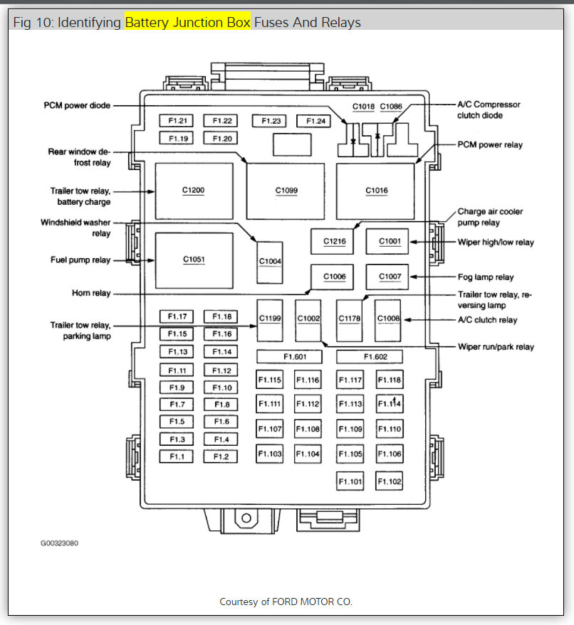
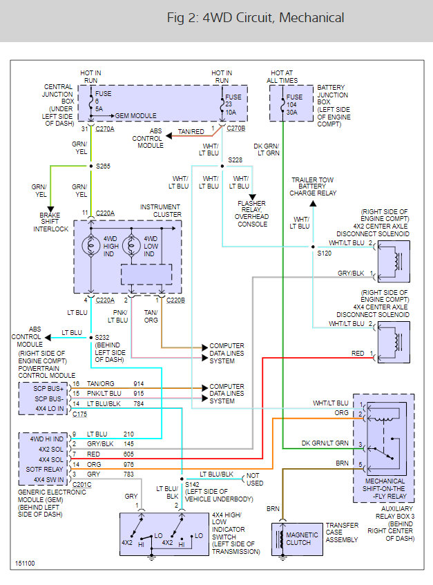
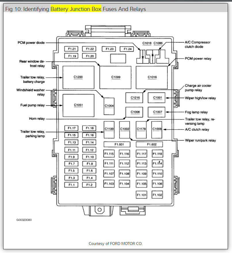
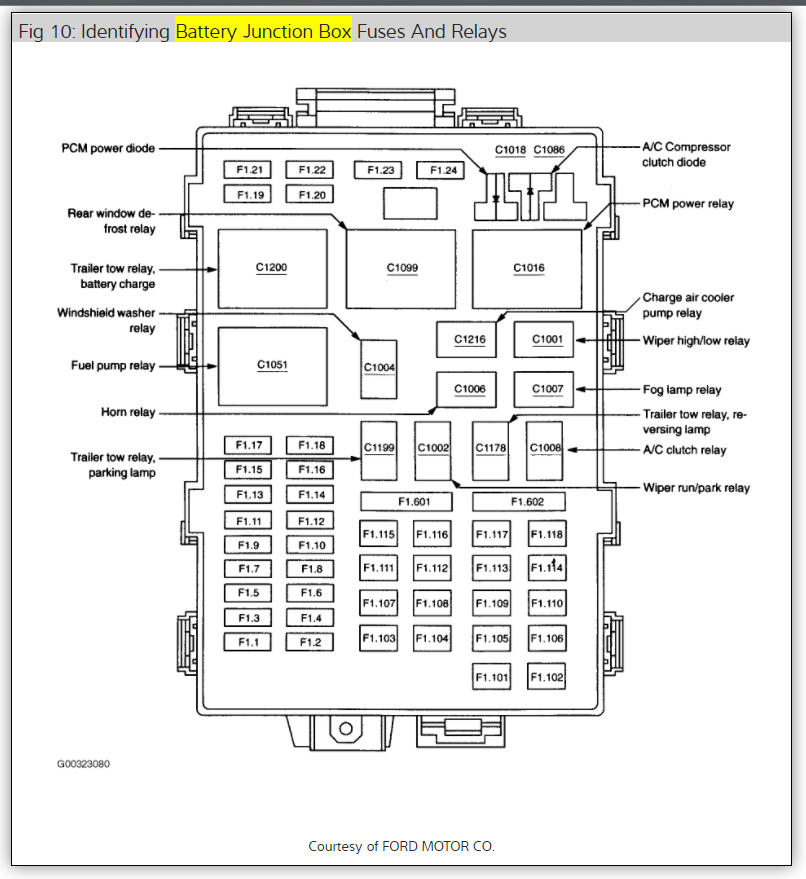
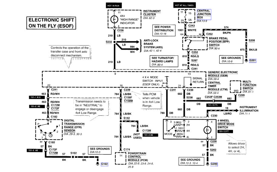
I would start by checking the fuses # 6 and #23 here is a guid to help you do that

https://www.2carpros.com/articles/how-to-check-a-car-fuse

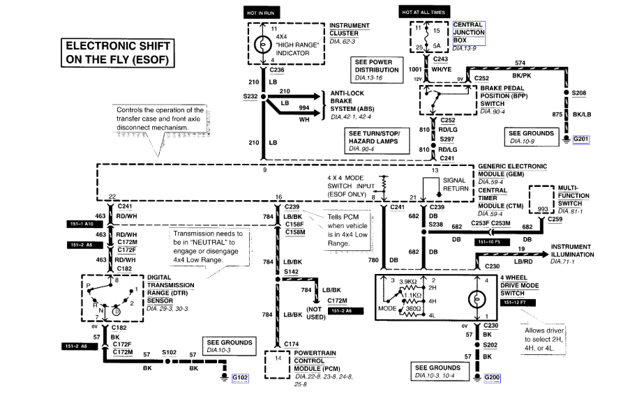
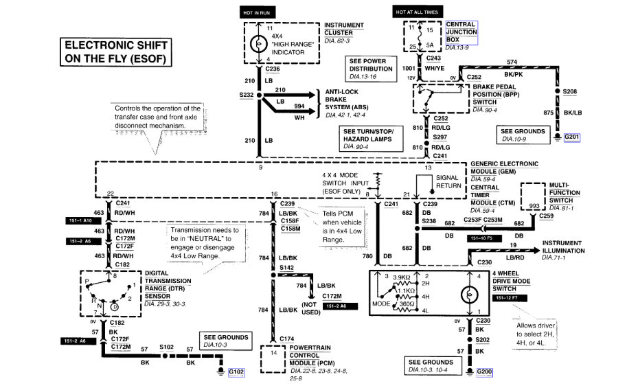
If the fuses are okay my next would be the encored motor which changes the 2wd to 4wd but to be sure we must see if the unit is getting power through the switch here is a guide to help you test the wiring and to check for power

https://www.2carpros.com/articles/how-to-use-a-test-light-circuit-tester

and

https://www.2carpros.com/articles/how-to-check-wiring

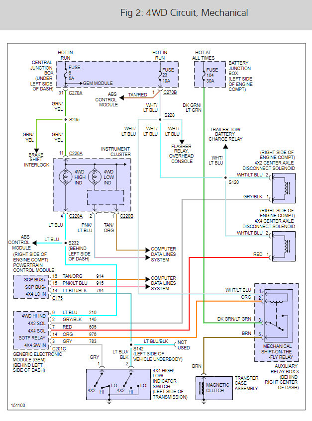
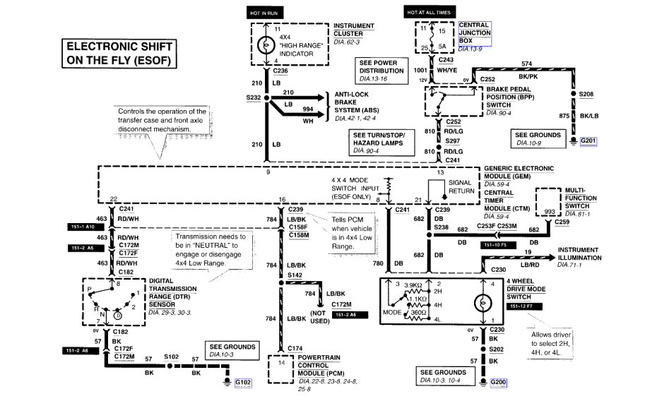
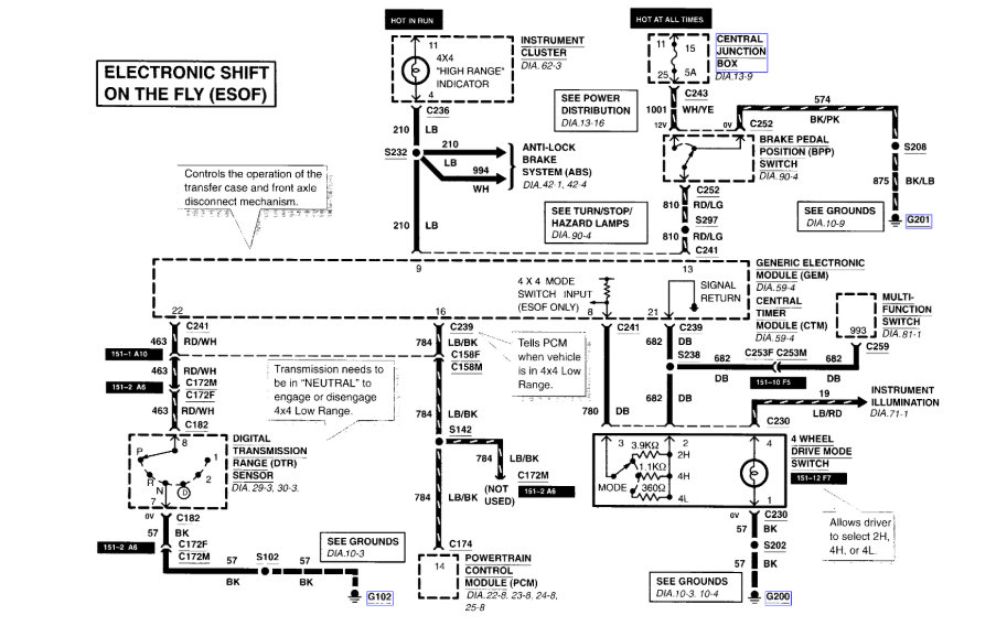
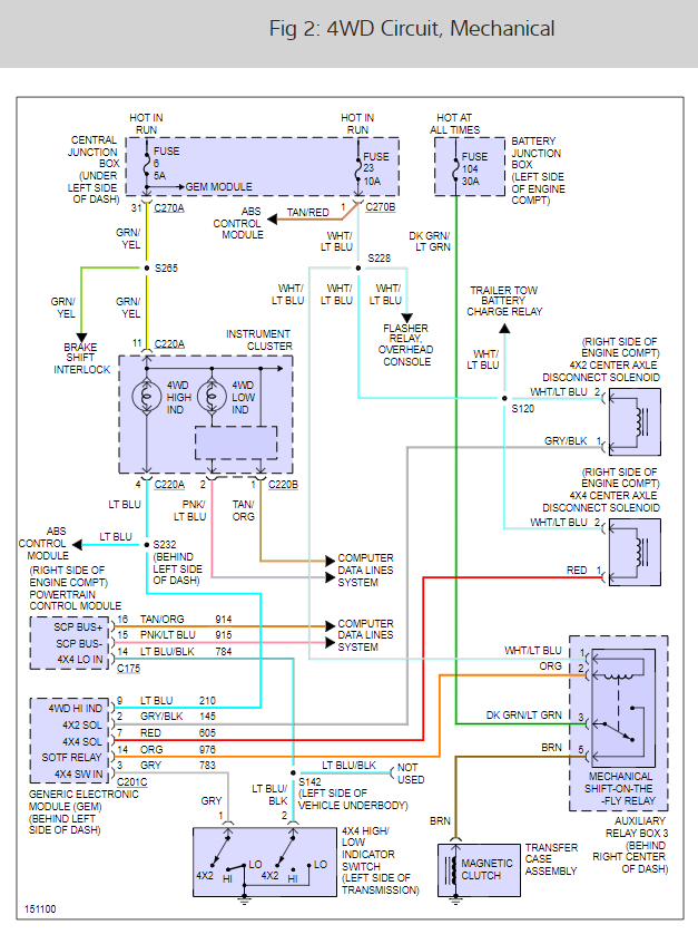
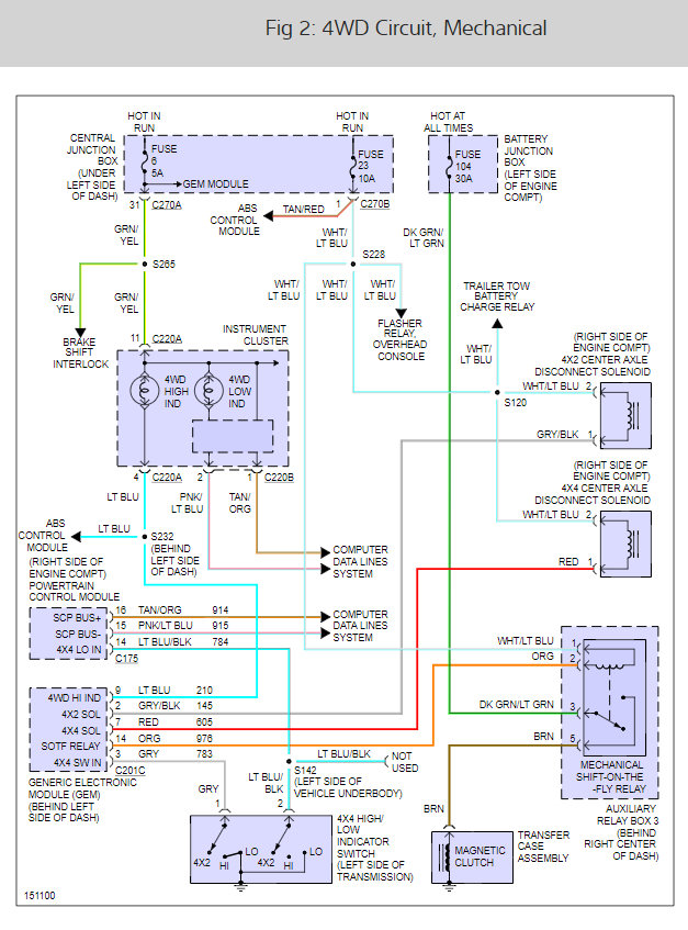
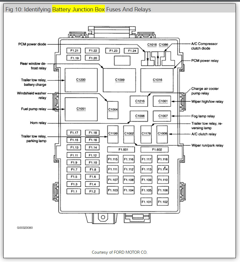
Here ar the transfer case wiring diagrams and fuse panel location and identification.

Check out the diagrams (Below)

Let us know what happens and please upload pictures or videos of the problem.

Cheers, Ken

Was this
answer
helpful?
Yes
No
+2
Monday, January 1st, 2018 AT 1:27 PM
Tiny
ISLHOPR
  • MEMBER
  • 2 POSTS
Replaced the shift motor, now it will shift into 4wd, thank you.
Was this
answer
helpful?
Yes
No
+1
Wednesday, February 20th, 2019 AT 1:27 PM
Tiny
CMAX13007
  • MEMBER
  • 6 POSTS
  • 2002 FORD F-150
  • 6 CYL
  • 4WD
  • MANUAL
  • 100,000 MILES
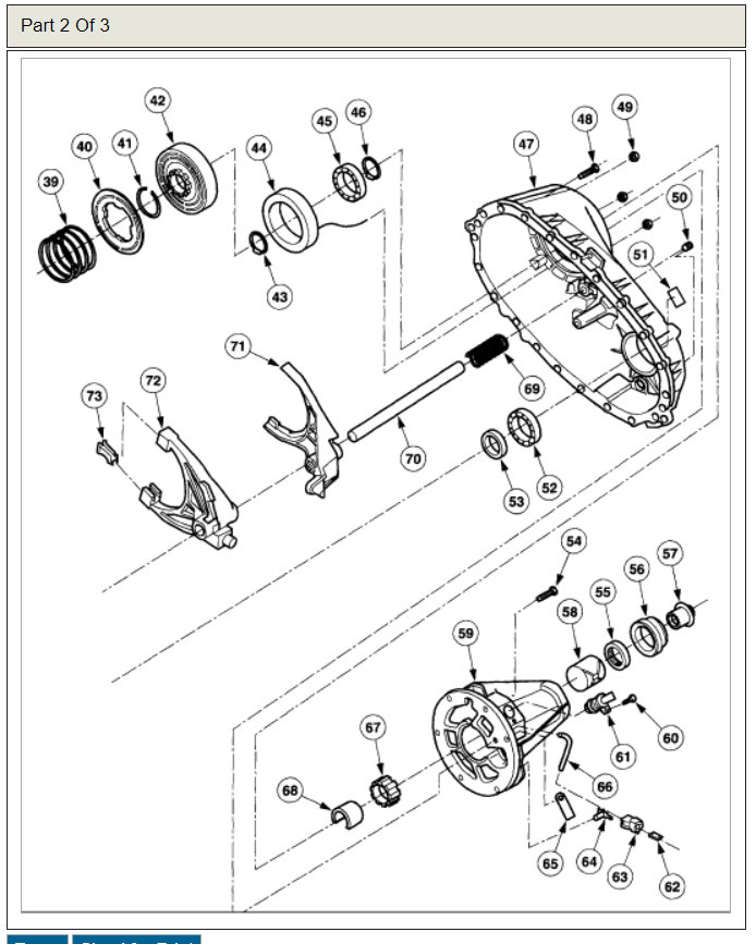
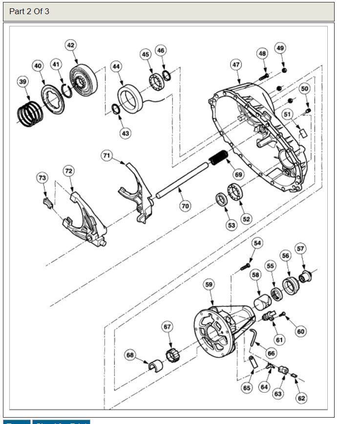
Ok, so its stuck in 4Low. Went under and switch it to 2WD and after a few minutes of driving right back into 4Low. Probably going to rebuild the case now, shift mechanism is probably bad. Not sure until you open the case.

CMAX
Was this
answer
helpful?
Yes
No
Monday, April 12th, 2021 AT 10:52 AM (Merged)
Tiny
CMAX13007
  • MEMBER
  • 6 POSTS
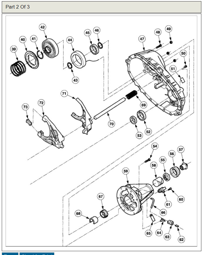
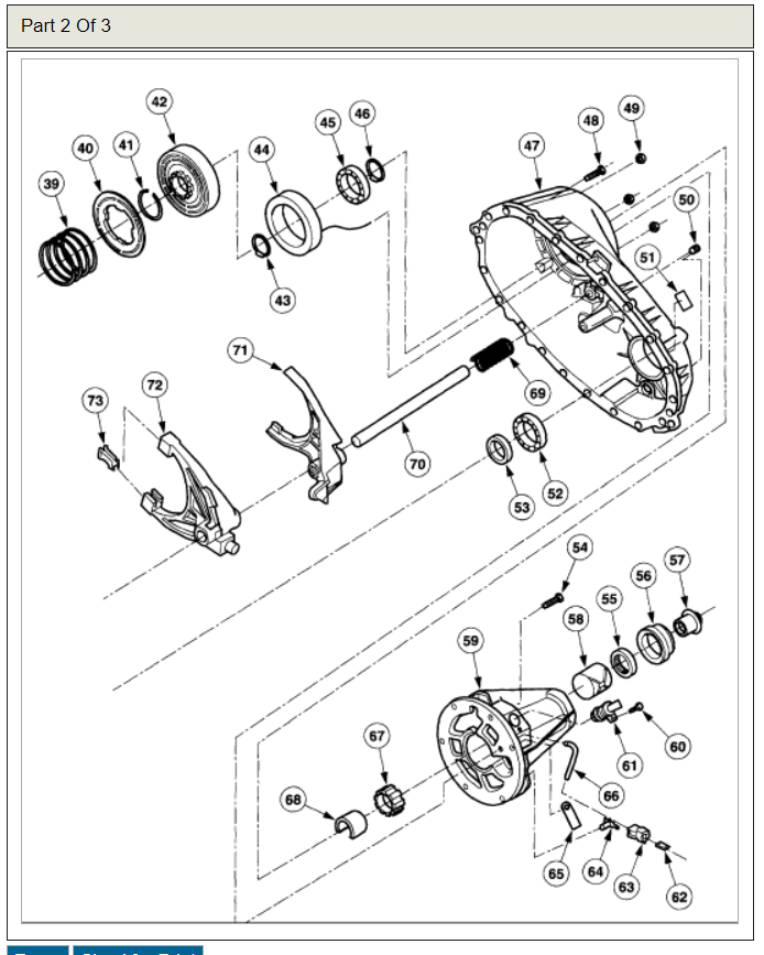
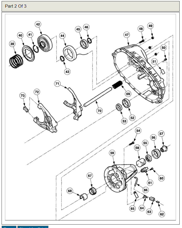
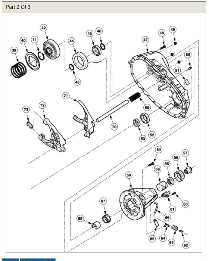
Transfer Case Fork & Input Gear were worn out. Removed and Rebuilt transfer case, good as new! Be carefull if you do this yourself, many special tools are needed. Plus the torsion bar and torsion key are usually rusted together. I tried everything to get them off until heating up the key with a torch and using a BFH on the torsion cross member. It probably helped that the torsion bar was frozen from the Michigan weather.
Was this
answer
helpful?
Yes
No
Monday, April 12th, 2021 AT 10:52 AM (Merged)
Tiny
KMBC9902
  • MEMBER
  • 3 POSTS
  • 2001 FORD F-150
  • 5.4L
  • V8
  • 4WD
  • AUTOMATIC
  • 108,000 MILES
Replaced the following parts: 4x4 shift knob, tcase motor, solenoids, GEM, tested every relay, tested all fuses, pulled the seat and carpet the wires to the tcase motor look great. Turn the knob and the solenoids do not click the tcase motor does not move. I have no idea where to go from here.
Was this
answer
helpful?
Yes
No
Monday, April 12th, 2021 AT 10:55 AM (Merged)
Tiny
ASEMASTER6371
  • MECHANIC
  • 52,796 POSTS
Good afternoon,

I attached a wire diagram for you to view. You need a voltmeter or test light to verify power on both sides of the fuse indicated. Then go to the GEM module and make sure there is power into the module.

Did you have the GEM module flashed when you replaced it?

Caution: Prior to removal of the GEM, it is necessary to upload module configuration information to a diagnostic tool. This information needs to be downloaded into the new module once installed.

Did you do this step?

Roy
Was this
answer
helpful?
Yes
No
Monday, April 12th, 2021 AT 10:55 AM (Merged)
Tiny
KMBC9902
  • MEMBER
  • 3 POSTS
We ordered the GEM module from a local Ford dealership and gave them the number off the GEM. They did not say anything about flashing it.
Was this
answer
helpful?
Yes
No
Monday, April 12th, 2021 AT 10:55 AM (Merged)
Tiny
ASEMASTER6371
  • MECHANIC
  • 52,796 POSTS
The parts department will not tell you that. You may have a bad module which means it has no idea what to do.

You need to start by getting the program into it and tell it about the 4X4 system.

Roy
Was this
answer
helpful?
Yes
No
Monday, April 12th, 2021 AT 10:55 AM (Merged)
Tiny
KMBC9902
  • MEMBER
  • 3 POSTS
Okay, how would I go about getting that done? They took the old one as a core.
Was this
answer
helpful?
Yes
No
Monday, April 12th, 2021 AT 10:55 AM (Merged)
Tiny
ASEMASTER6371
  • MECHANIC
  • 52,796 POSTS
You will need to take it to Ford and have them program it for you.

If you had the old one, then any shop with a snap on, or tech 2 scan tool could do it. Now it is a Ford IDS that is required to program it.

Roy
Was this
answer
helpful?
Yes
No
Monday, April 12th, 2021 AT 10:55 AM (Merged)
Tiny
KMBC9902
  • MEMBER
  • 3 POSTS
Okay, I will work on getting that done. If I have any further questions can I just reply to this email?
Was this
answer
helpful?
Yes
No
Monday, April 12th, 2021 AT 10:55 AM (Merged)
Tiny
ASEMASTER6371
  • MECHANIC
  • 52,796 POSTS
Yep, we are always here to help you.

Roy
Was this
answer
helpful?
Yes
No
Monday, April 12th, 2021 AT 10:55 AM (Merged)
Tiny
MIKE LANE2
  • MEMBER
  • 2 POSTS
Your answer did not come through
Was this
answer
helpful?
Yes
No
Monday, April 12th, 2021 AT 10:55 AM (Merged)
Tiny
MIKE LANE2
  • MEMBER
  • 2 POSTS
Is there any way to find out if the wire 780 in the first photo goes to the 4x4 switch I believe that is the bad wire
Was this
answer
helpful?
Yes
No
Monday, April 12th, 2021 AT 10:55 AM (Merged)
Tiny
DSUN
  • MEMBER
  • 1 POST
  • 2000 FORD F-150
  • V8
  • 4WD
  • AUTOMATIC
  • 171 MILES
The truck listed above the 4wd will not engage, help.
Was this
answer
helpful?
Yes
No
Monday, April 12th, 2021 AT 10:55 AM (Merged)
Tiny
KASEKENNY
  • MECHANIC
  • 18,907 POSTS
First, I assume you have electronic shift and not a manual shift. If this is the case, when you press the button, does the light come on to tell indicate it is in 4WD and it just doesn't go in? Or does the light not come on at all?

Maybe get a video of what the dash is doing when you are shifting to 4WD.
Was this
answer
helpful?
Yes
No
Monday, April 12th, 2021 AT 10:55 AM (Merged)
Tiny
DAVID255
  • MEMBER
  • 1 POST
  • 2000 FORD F-150
  • 4.6L
  • V8
  • 4WD
  • AUTOMATIC
  • 200,009 MILES
Okay so I recently bought a 2000 ford f150 and was told that the 4x4 was broken but it should just be the actuator so I replaced that and and did not work, I noticed that the actuator moves very little when I try to switch it from 4 to 2 wheel drive its not rusty or blocked up or anything it just moves very little so the next thing I tried was replacing the solenoids and that didnt work ether, I also checked to see if there was suction from the lines and I noticed that out of the three lines only one had suction but im not sure if that matters or not. One last thing is when I switch it from 2 to 4 wheel drive there is no light on the dash or anything that would indicate it is in 4x4 drive and there should be, there is also a lot of clicking when I try to put it into 4x4 drive and I heard there should be a click and that tells you you're in but there is multiple clicks like 4-5 Hope you can help Thanks
Was this
answer
helpful?
Yes
No
Monday, April 12th, 2021 AT 10:55 AM (Merged)
Tiny
HMAC300
  • MECHANIC
  • 48,601 POSTS
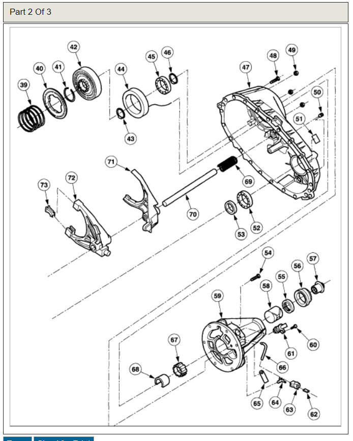
I am assuming this is electronic shift check the relays in pics- we have it under repair electrical relay. Tells you how to check then scan it for codes as it may be the gem module or it may be the electric clutch in tcase. Also you might see if you can move where the motor won't move very much like you say move it by hand. Check out the diagrams (Below). Please let us know what happens.
Was this
answer
helpful?
Yes
No
Monday, April 12th, 2021 AT 10:55 AM (Merged)
Tiny
ROBBY_BOATRIGHT
  • MEMBER
  • 1 POST
  • 2000 FORD F-150
  • V8
  • 4WD
  • AUTOMATIC
  • 144,000 MILES
The 4x4 will not make any sounds whatsoever when you switch to 4 high or 4 low. I bought the truck like this. Also the blinkers will not work unless the steering wheel is let all the way up.
Was this
answer
helpful?
Yes
No
Monday, April 12th, 2021 AT 10:56 AM (Merged)
Tiny
FLEXY5
  • MECHANIC
  • 512 POSTS
The 4WD concern may be due to a bad shift motor. I believe the 2000 had a constant drive front differential that only engaged in the transfer case. If the shift motor on the rear of the case does not turn, then you may need to replace the motor. Check for voltage at the motor and post back the results. Also the concern with the turn signals may be due to a bad connection at the rear of the multifunction switch. Remove the steering column shroud and examine the switch (it's the turn signal, wiper, dimmer, hazard switch).
Was this
answer
helpful?
Yes
No
+1
Monday, April 12th, 2021 AT 10:56 AM (Merged)

Please login or register to post a reply.