Monday, July 15th, 2013 AT 9:33 AM
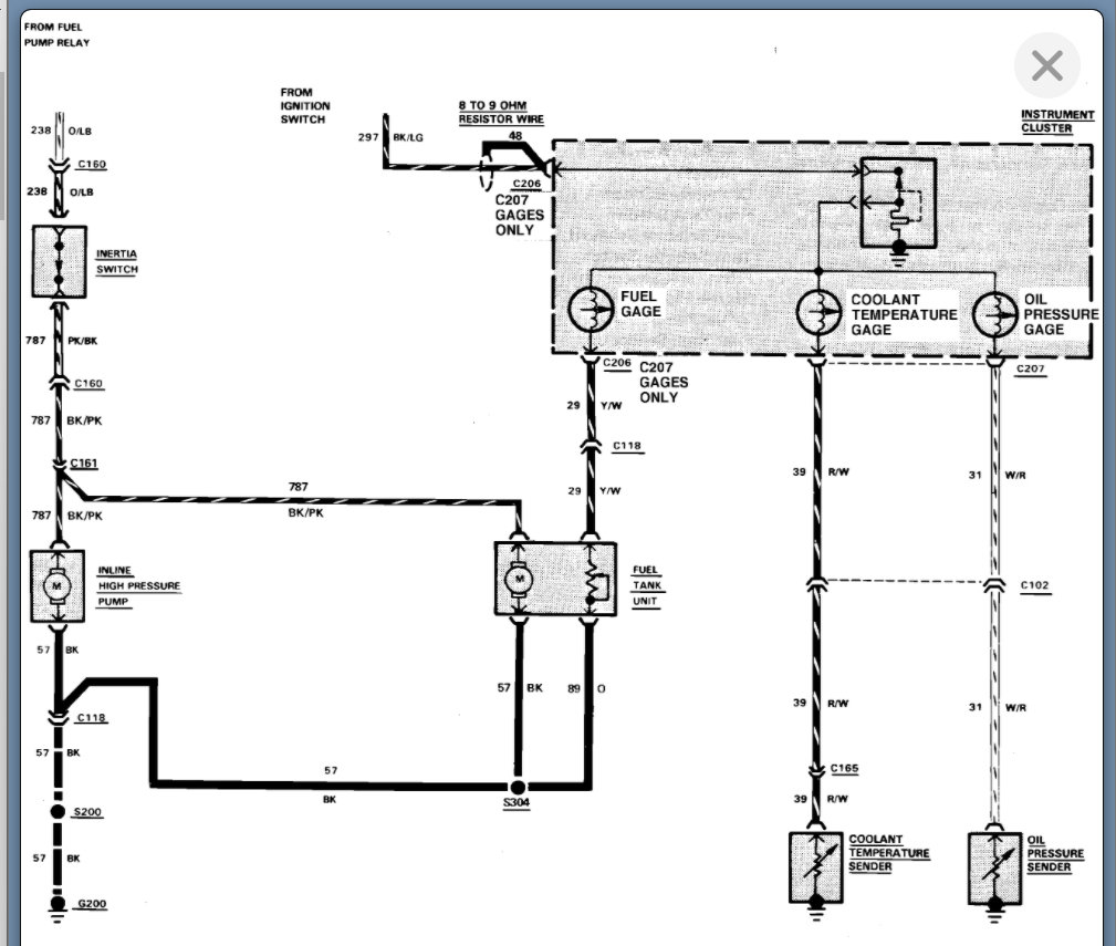
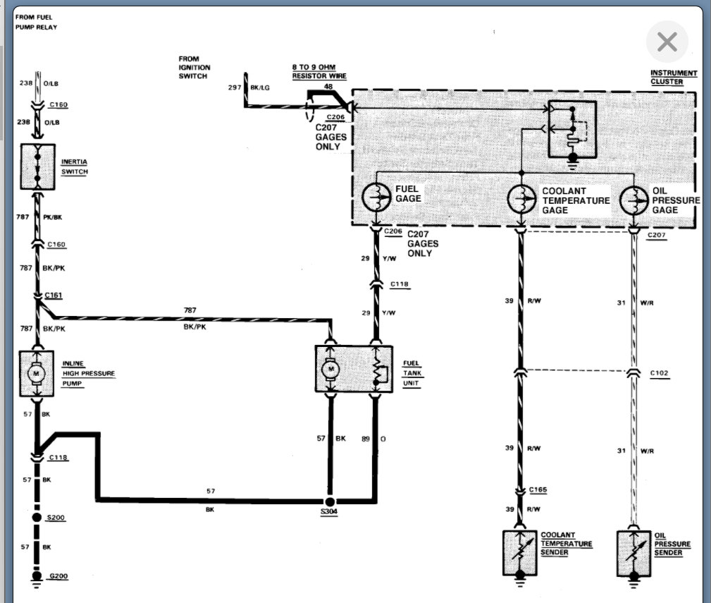
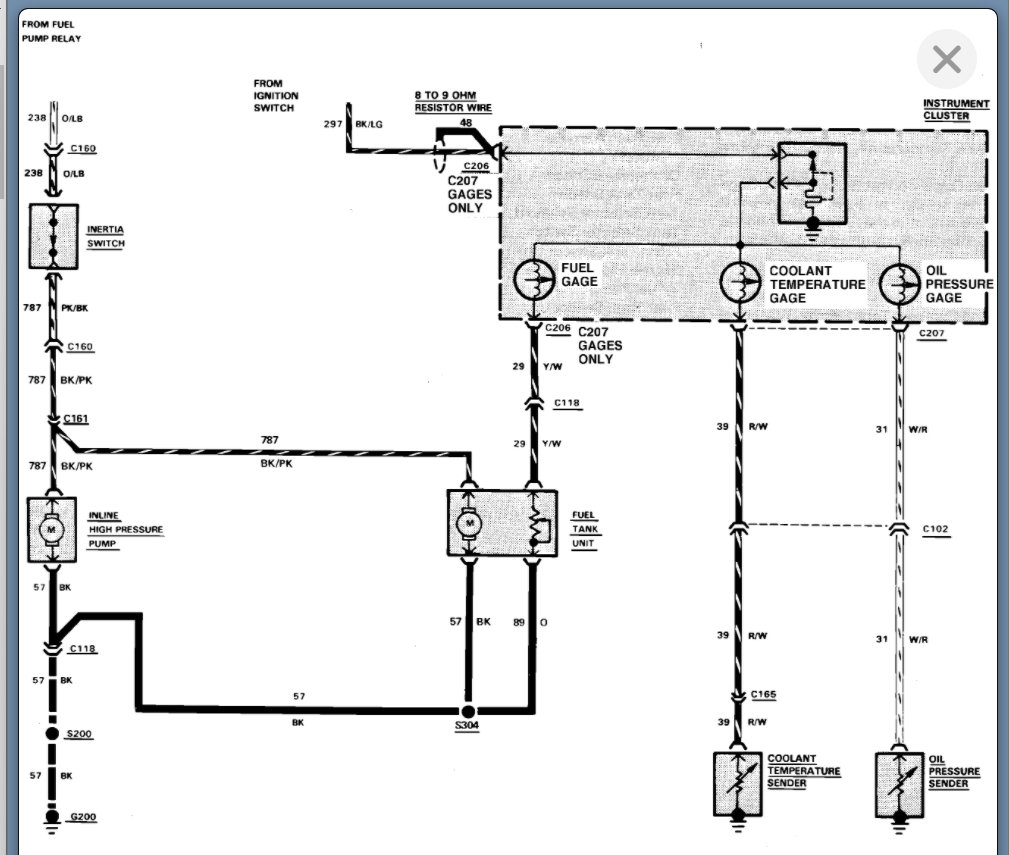
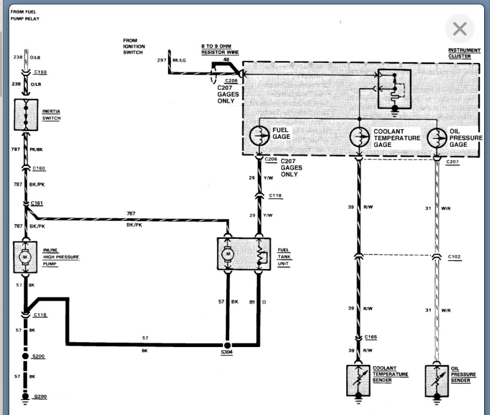
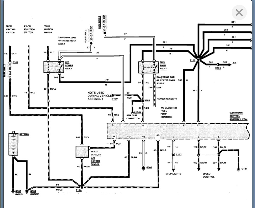
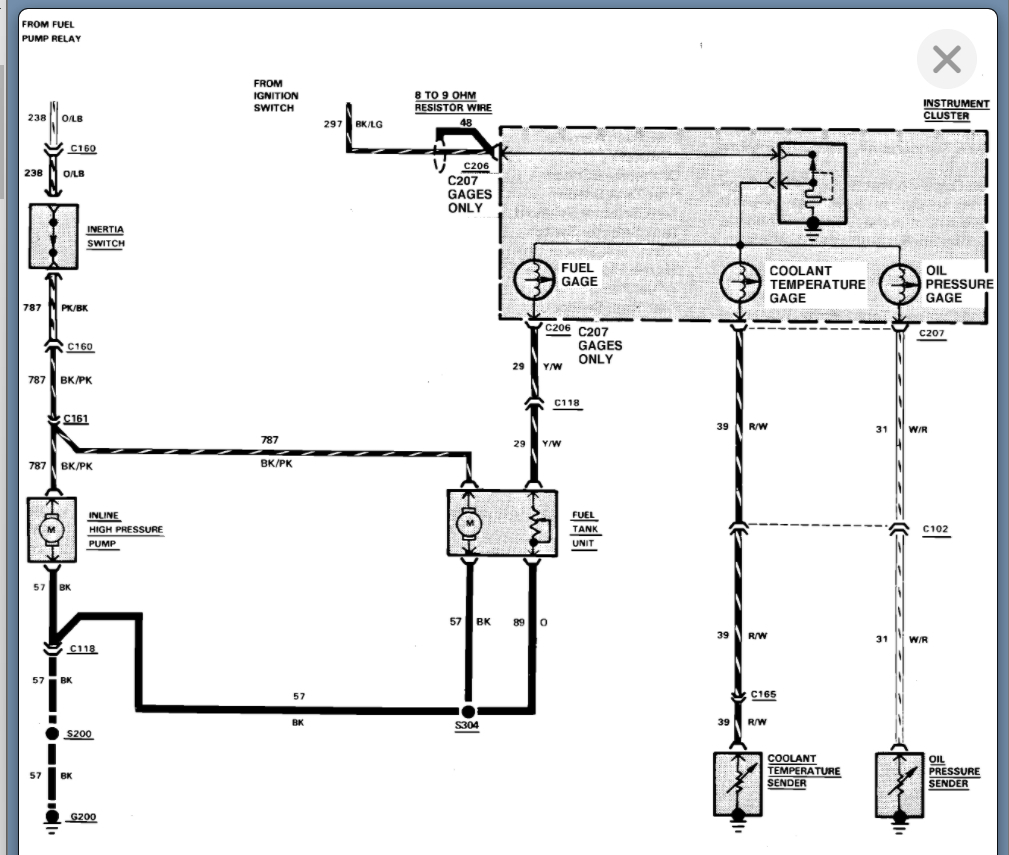
It was running well when I was driving then it just quit. I had it towed home and realized the relay was not opening so I bought a new relay. Still nothing. Plug to relay has 4 connectors relay had 5? 3 plugs had power one at 12.5v one at 5.4v and the last at 1.46v with the ignition off. The relay still doesnt open. I have no power at all to fuel pump when key turned so it doesnt even prime. I have changed the ground wire from neg post on battery to frame. And I have cleaned and tested ground strap from back of motor to the firewall.




