HOME
ASK A QUESTION
REPAIR GUIDES
BECOME A MEMBER
LOG IN
Login with Facebook
OR
Remember me
NOT A MEMBER?
FORGOT PASSWORD?
CONTACT US
PRIVACY POLICY
TERMS AND CONDITIONS
☰
Home
Pontiac
G6
Engine
Symptoms
Not Cranking Over
No crank no start issue
TINA MOORE
MEMBER
2006 PONTIAC G6
3.5L
6 CYL
2WD
AUTOMATIC
10,000 MILES
I replaced the starter, alternator and battery all together and my car still won't crank. What else could be the hold up?
Thursday, May 27th, 2021 AT 7:13 PM
1 Reply
ASEMASTER6371
MECHANIC
52,796 POSTS
Good morning,
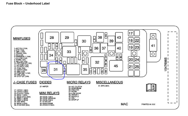
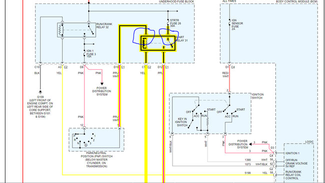
If the theft or security light stays on after turning on the key after 10 seconds, the system needs to be reset. I attached a guide below.
https://www.2carpros.com/articles/how-to-reset-a-security-system
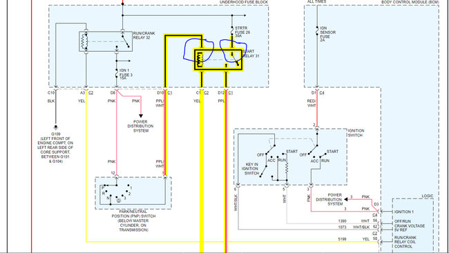
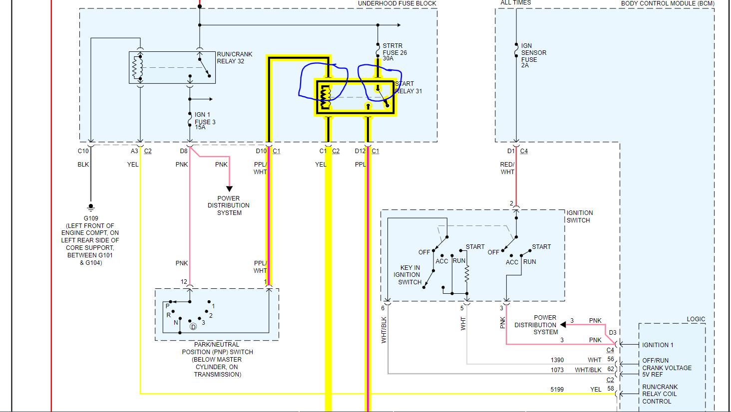
I have attached the wiring diagram for the starting system as well. I also posted the location of the relay. You need to verify 2 powers to the relay with a voltmeter to see if the signal from the ignition switch is present.
https://www.2carpros.com/articles/how-to-check-wiring
https://www.2carpros.com/articles/how-to-use-a-voltmeter
https://www.2carpros.com/articles/how-to-check-an-electrical-relay-and-wiring-control-circuit
One pin will be hot all the time. The other one will be hot when the key is in the start position.
Roy
Images (Click to make bigger)
Was this
answer
helpful?
Yes
No
Friday, May 28th, 2021 AT 5:59 AM
Please
login
or
register
to post a reply.
Related Engine Not Cranking Over Content
Still Will Not Crank The Battery Is Filly Charged
I Have A Pontiac G6 2007 I Put A New Alternator And Starter On It And It Still Will Not Crank The Battery Is Filly Charged I Have Tried...
Asked by
Veronica Nickens
·
2 ANSWERS
2007
PONTIAC G6
VIDEO
Car Not Cranking? Try This | EASY
Instructional repair video
GUIDE
Starter Not Working
This guide is designed to help you identify whether the issue with your non-working starter motor is due to an electrical problem or a fault within the starter motor itself...
Starting Problems
My Car Will Not Start Sometimes. I Will Go Into A Store For A Few Minutes Come Back Out And Start It And It Will Not Start. It Turns Over...
Asked by
Miranda_21
·
30 ANSWERS
2 IMAGES
2006
PONTIAC G6
Car Has Just Recently Stalled Out Randomly
Just Recently My Car Had Stalled Out Like I Had No Gas In It Getting On Highway. Checked All Fluids And Gas And Everything Was Normal....
Asked by
Dakplumb0329
·
16 ANSWERS
1 IMAGE
2006
PONTIAC G6
Hard To Start
Six Cylinder Front Wheel Drive Automatic 52,000 Miles. Car Will Not Start Without Pushing A Little On The Gas Pedal But Runs Fine Other...
Asked by
air0msw
·
1 ANSWER
2006
PONTIAC G6
Oil Leak
I Have An Oil Leak Somewhere Above The Filter. Any Clue Where It Could Be?
Asked by
joshdixon
·
2 ANSWERS
2006
PONTIAC G6
VIEW MORE
Ask a Car Question. It's Free!
Car Not Cranking? Try This | EASY
Battery Replacement Ford
Battery Replacement Toyota