No power at fuel pump

Tiny
DEVIN HALL
  • MEMBER
  • 1999 CHEVROLET SILVERADO
  • 5.3L
  • V8
  • 4WD
  • AUTOMATIC
  • 260,000 MILES

Truck listed above is an extended cab z71. Engine cranks but does not start. I checked fuses, relays, and I can’t find a break in the wiring or anything obvious. Fuel pump is good. Truck will start and run fine if I give power directly to fuel pump. Cleaned grounds, pulled fuse block, all wiring and connections seem good as well. Need help please and thanks.
Saturday, February 12th, 2022 AT 3:51 PM

6 Replies

Tiny
AL514
  • MECHANIC
  • 5,567 POSTS
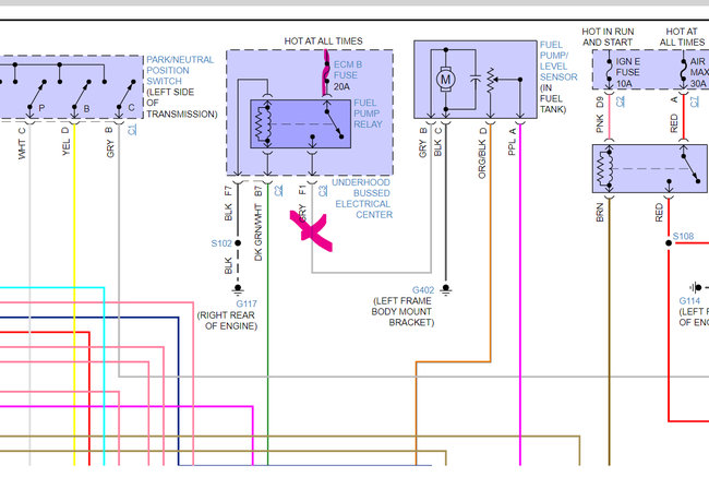
Hello, if you pull out the Fuel Pump Relay, and with the key in the On Position, just touch your test light to the Fuel Pump Relay socket female pins, don't stuff your test light in there just touch the open pin area and you should have 2 pins with 12-volt power, you'll probably have to do this test while cranking the engine over, since at Key On you'll only get a 2 second prime for the Fuel Pump. This Relay is a power side switched relay, so power comes from the ECM to energize the Relay. Circled in green here are your 2 power sources for the Relay. So, the other 2 pins should be Grounds, you can hook your test light to battery power to check the Grounds at the Relay. If you're missing any of these 2 power feeds or 2 Grounds, then we'll chase that circuit down. The test should be able to Ground right through the Fuel Pump. This is a quick easy test to see what's happening on those circuits.

https://www.2carpros.com/articles/how-to-use-a-test-light-circuit-tester

https://www.2carpros.com/articles/how-to-check-an-electrical-relay-and-wiring-control-circuit
Was this
answer
helpful?
Yes
No
Saturday, February 12th, 2022 AT 4:52 PM
Tiny
DEVIN HALL
  • MEMBER
  • 4 POSTS
Okay. So, I just did that. I have 2 powers and only 1 ground with check light. Bottom left on relay is #30 does not have a ground.
Was this
answer
helpful?
Yes
No
Saturday, February 12th, 2022 AT 8:19 PM
Tiny
AL514
  • MECHANIC
  • 5,567 POSTS
Okay. So, pins 85 and 86 are the control side of the relay, and pins 87 and 30 are the load side, if you have two powers, technically speaking, the power should be coming from ECM Fuse B 20Amp and the other power feed should be coming from the ECM because it's a power side switched relay. Usually and the diagrams say that pin 30 should be the feed from ECM B Fuse, but sometimes they have them backwards on the diagrams or if it's not the original relay the numbers could be in different spot. So, to determine what's the correct numbering, simply do the same check but with the key off. Because ECM B Fuse should be hot even with the key off. So, you should have only 1 power wire. If that's the case, then the Ground you're missing is the actual wire going to the Fuel Pump, you have an open circuit somewhere between that relay and the Pump.
Considering how old the vehicle is, you may first check the underside of that Fuse/Relay panel, the wires are exposed to the element's underneath there and the pins for the relays break off after getting corroded. You might find some other circuit issues under there as well. But that's where to start. GM has always used that grey wire for their Fuel Pump circuits as long as I can remember. So, if the pin for the relay is not broken off, just start tracing the wire back from that location.
Was this
answer
helpful?
Yes
No
Sunday, February 13th, 2022 AT 1:44 PM
Tiny
DEVIN HALL
  • MEMBER
  • 4 POSTS
I finally found the frame body ground back by the pump, bolt had fallen out and ground was loose, I’ve looked over it ten times and never saw it until last night. Thank you for the help. I knew it was a wiring issue but just couldn’t trace it down.
Much appreciated. Ol Betsy back on the road now!
Was this
answer
helpful?
Yes
No
Sunday, February 13th, 2022 AT 3:58 PM
Tiny
AL514
  • MECHANIC
  • 5,567 POSTS
Awesome, I'm glad you found it too. Thanks, great news. Yeah, over twenty something years all kinds of things loosen up and happen. If you need any more information or help, just ask, on a side note: you may want to just take a look at the other ground locations too, especially in the engine compartment, you would be surprised what a bad ground can do.

This is on a different make and model truck, but a ground connection that was supposed to be on the starter motor had been moved to the engine block, and since the current flow was now going through the engine block and not directly back to the battery like it was designed to do, it magnetized the crankshaft and caused the crankshaft sensor to not detect the crankshafts position anymore. Fortunately, the technician who finally was able to diagnose the truck was a teacher, he was able to demagnetize the crankshaft reluctor wheel, but in most cases, the engine would be replaced due to a ground being put in the incorrect place.
Yours isn't designed like that, but this is why I stress the need to have good clean ground connections to people. It's a story I will never forget. But have a nice evening.
Was this
answer
helpful?
Yes
No
Sunday, February 13th, 2022 AT 4:57 PM
Tiny
DEVIN HALL
  • MEMBER
  • 4 POSTS
Yeah, I had already taken off and cleaned the rest of them just hadn’t found this one yet, lol. Thanks again
Was this
answer
helpful?
Yes
No
Sunday, February 13th, 2022 AT 5:26 PM

Please login or register to post a reply.