No power to fuel pump

Tiny
BLUEFLASH
  • MEMBER
  • 1996 JEEP CHEROKEE
  • 6 CYL
  • 4WD
  • AUTOMATIC
  • 103,000 MILES
Have replace fuel pump fixed problem for ashort time removed fuel pump checked with car battery with jumper wires pump works checked sending unit for ohms resistance seems good check fuses and relays all good checked power at quick connect no power at pump prong
Tuesday, April 6th, 2010 AT 10:06 AM

1 Reply

Tiny
SQM
  • MECHANIC
  • 6,383 POSTS
Hello,

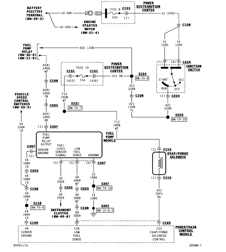
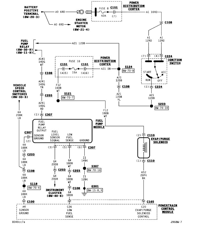
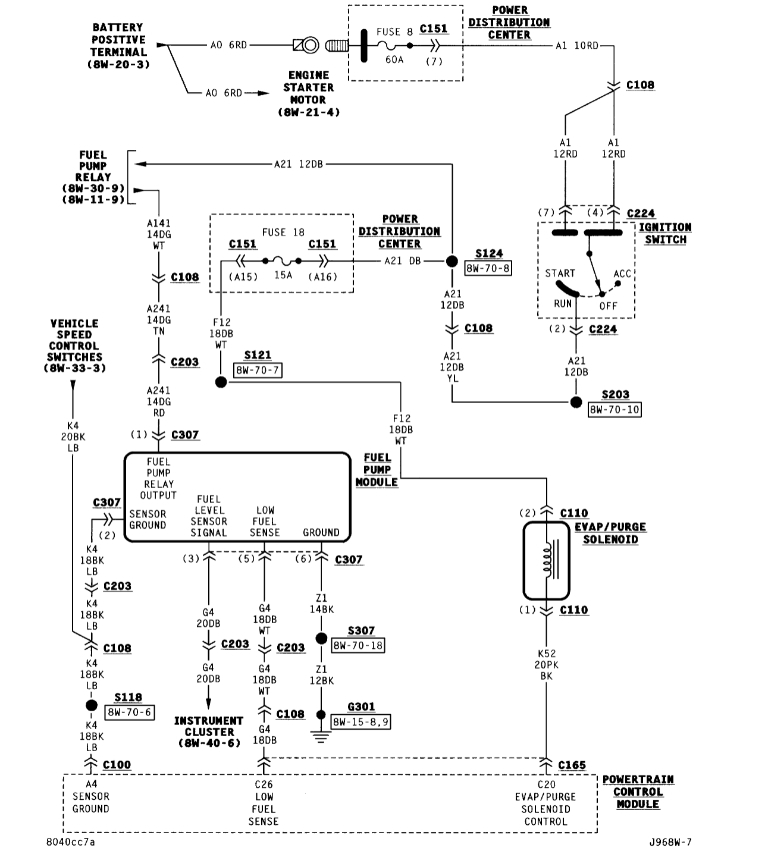
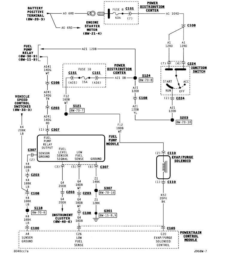
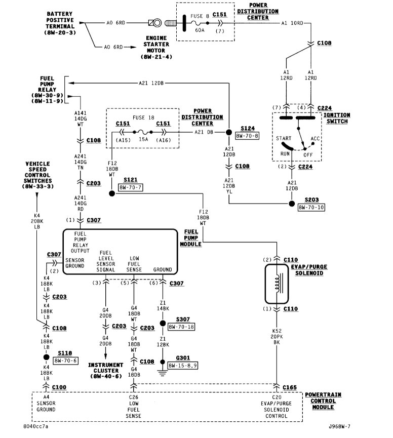
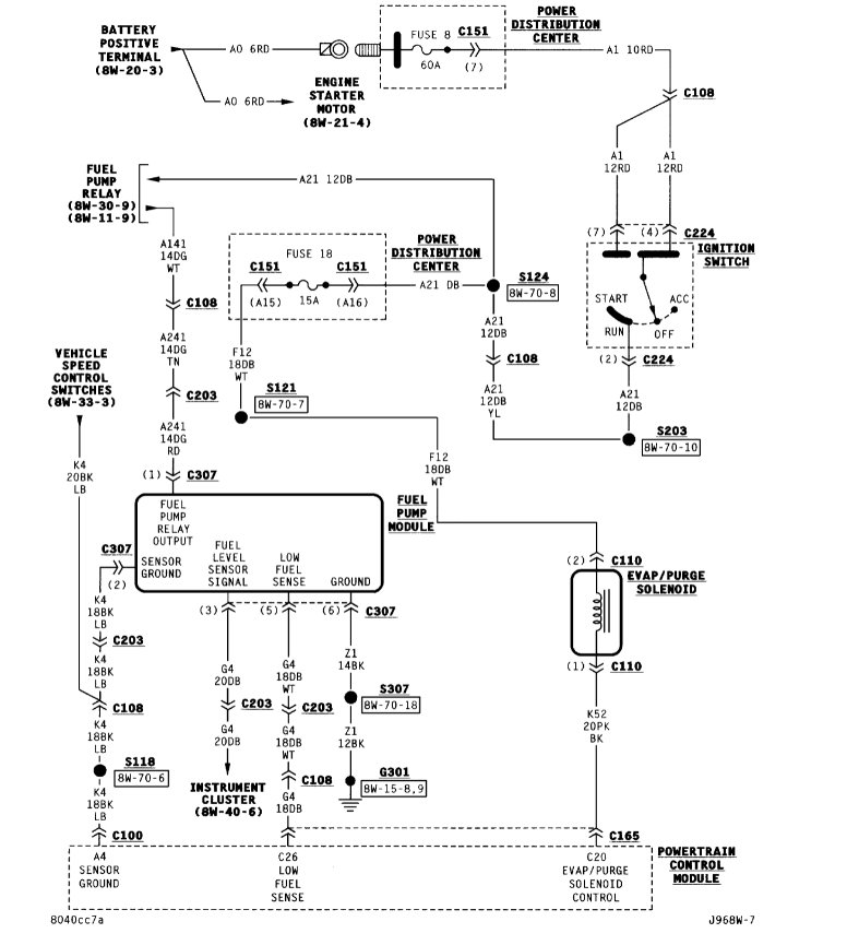
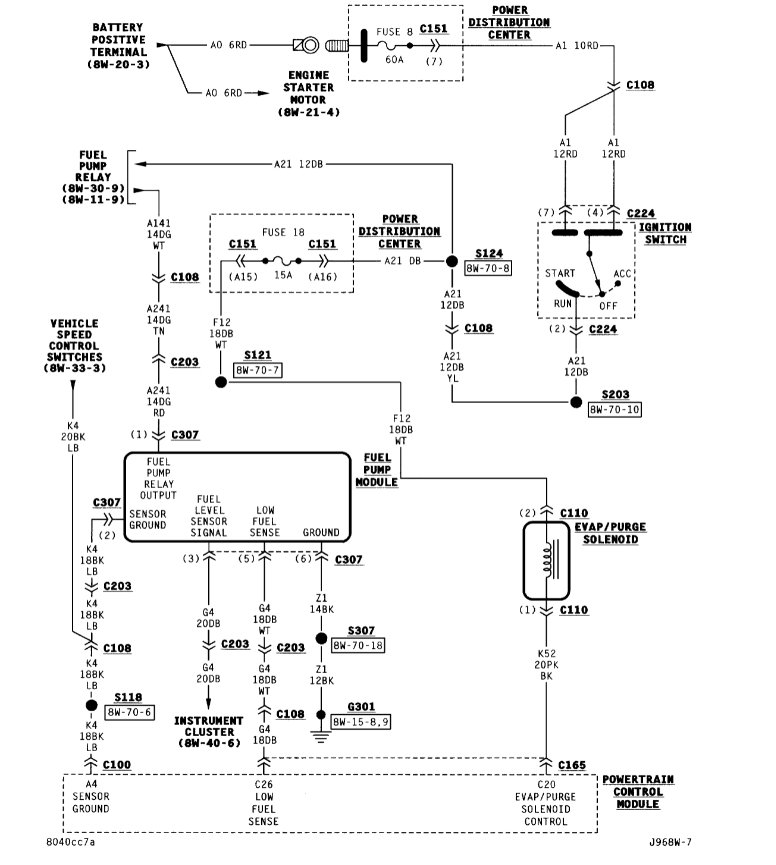
If you are not getting power to the fuel pump, it can be due to a faulty fuel pump relay or short in the wiring harness for the fuel pump.
First check the fuel pump relay.
That relay is located under the hood in the power distribution box (fuse block).
See diagram below for the location of the relay.
Visually inspect the relay for corrosion or bunt pin(s).
You can also test the relay as well.

https://www.2carpros.com/articles/how-to-check-an-electrical-relay-and-wiring-control-circuit

If the relay is good then you will have to check the wiring harness. You could have a short in the wiring.
I have attached the wiring schematics for your reference.

Please let me know of any questions.
Thank you.
Was this
answer
helpful?
Yes
No
Sunday, August 29th, 2021 AT 12:46 PM

Please login or register to post a reply.