Error code 42, no spark

Tiny
94_K1500
  • MEMBER
  • 17 POSTS
So today I ran a pressure test and it showed 0. I replaced the fuel pump and the relay and still nothing. I completely forgot what you said about checking for power at the tank and that must be my problem and thats all on me for forgetting. Now that im back at college where my truck is ill be able to work on it more so how do I go about making sure I have power?
Was this
answer
helpful?
Yes
No
Saturday, January 18th, 2020 AT 3:38 PM
Tiny
AL514
  • MECHANIC
  • 5,584 POSTS
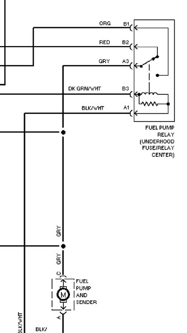
Okay, we're going to skip forward here since you've replaced the fuel pump relay already. There should be 2 hot wires (12 volt) while cranking, where the relay sits. So take it out and check the pins for 2 for 12 v cranking. Now there could be corrosion in fuse panel where the relay is too, so you'll have to check it. If there isn't 2 hot pins at the relay, then go to the back of the ECM and check pin F6, it will be dark green/white. You will have to find it according to color. This wire should be 12v while cranking as well. Here's 2 wiring diagrams to help. Make sure to pay attention to wire condition also, you most likely have a broken or corroded wire. Check around where you have been working on the truck so far, that you didn't move any wires or hide the problem. Since you had the fuel pump running before. Check all the ground wires near the pump on the back of the frame too. The 2 thicker wires at the fuel pump are power and ground, the power is the thick grey wire.
Was this
answer
helpful?
Yes
No
Monday, January 20th, 2020 AT 11:05 AM
Tiny
94_K1500
  • MEMBER
  • 17 POSTS
My fuel pump relay isn't in the fuse box its on the firewall directly in front of the ECM in the engine bay. I don't think the location should matter as long as I am finding the right wires. Right?
Was this
answer
helpful?
Yes
No
Monday, January 20th, 2020 AT 11:18 AM
Tiny
AL514
  • MECHANIC
  • 5,584 POSTS
No it shouldn't. Only wire color matters.
Was this
answer
helpful?
Yes
No
Monday, January 20th, 2020 AT 12:28 PM
Tiny
94_K1500
  • MEMBER
  • 17 POSTS
Okay, I now have power to my fuel pump and can hear it priming when I put the key in the on position, but i'm still not getting fuel into the engine. I assume it's either my injectors or a clog in the fuel line, but again I don't want to go spend more money and not have it work.
Was this
answer
helpful?
Yes
No
Sunday, February 2nd, 2020 AT 6:21 AM
Tiny
AL514
  • MECHANIC
  • 5,584 POSTS
Okay, how did you get power to the injectors and can you take a picture of the throttle body with the injectors in it for me? The 2 second prime is a different circuit than the engine running circuit. You can hook a test light to 'battery' positive and check the injector pulse from the ECM while cranking, since the ECM grounds the injectors to pulse them. How long has it been since the engine last ran? Injectors can seize up if it's been sitting for along time. I'm assuming you have fuel pressure now?
Was this
answer
helpful?
Yes
No
Sunday, February 2nd, 2020 AT 8:40 AM
Tiny
94_K1500
  • MEMBER
  • 17 POSTS
It has been about 6 and a half months since it ran. I'll take pictures of the throttle body and injectors and send them to you when I am back in town where my truck is. But right now i'm at home to watch the Superbowl, lol.
Was this
answer
helpful?
Yes
No
Sunday, February 2nd, 2020 AT 9:58 AM
Tiny
AL514
  • MECHANIC
  • 5,584 POSTS
Okay, start with verifying fuel pressure, and watch the injectors in the throttle body and watch for fuel while cranking the engine, either the injectors are closed up or the ECM is shutting down the injectors for some reason. Recheck for power at the injectors and make sure there is an injector pulse coming from the ECM. You can use a test light for both these tests. In my previous post are the instructions for testing the injector control. Enjoy the super bowl.
Was this
answer
helpful?
Yes
No
Sunday, February 2nd, 2020 AT 11:03 AM

Please login or register to post a reply.