HOME
ASK A QUESTION
REPAIR GUIDES
BECOME A MEMBER
LOG IN
Login with Facebook
OR
Remember me
NOT A MEMBER?
FORGOT PASSWORD?
CONTACT US
PRIVACY POLICY
TERMS AND CONDITIONS
☰
Home
Chevrolet
Colorado
Climate Control
Air Conditioner
Not Working
A/C not blowing cold air
JOSH PURVIS
MEMBER
2005 CHEVROLET COLORADO
3.5L
5 CYL
2WD
AUTOMATIC
358,000 MILES
My A/C only blows hot air.
Monday, June 29th, 2020 AT 3:51 PM
1 Reply
ASEMASTER6371
MECHANIC
52,796 POSTS
Good evening,
Does the compressor engage when you command A/C?
https://www.2carpros.com/articles/car-air-conditioner-not-working-or-is-weak
Do you have a set of gauges to test the high and low side of the system? If not, you can rent a set at a parts store.
https://www.2carpros.com/articles/re-charge-an-air-conditioner-system
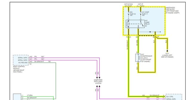
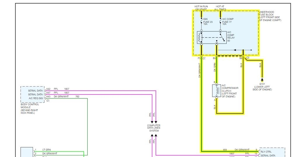
I attached a wiring diagram for you to view of the compressor. If you have a test light and volt meter, we can do some testing.
https://www.2carpros.com/articles/how-to-check-wiring
Check the fuses listed in the fuse block. Check them for power on both sides.
https://www.2carpros.com/articles/how-to-check-an-electrical-relay-and-wiring-control-circuit
Roy
Images (Click to make bigger)
Was this
answer
helpful?
Yes
No
Monday, June 29th, 2020 AT 4:11 PM
Please
login
or
register
to post a reply.
Related Air Conditioner Not Working Content
2005 Chevy Colorado A/c
Air Conditioning Problem 2005 Chevy Colorado 4 Cyl Two Wheel Drive Automatic A While Back, You Answered A Question About The First 3...
Asked by
TheGameS10
·
1 ANSWER
2005
CHEVROLET COLORADO
VIDEO
Fix an Air Conditioning Not Working Video
Instructional repair video
GUIDE
Air Conditioner Not Working
Like any sub system in today's car a problem and be minor or a little more involved, this guide will help you find the problem and perform repairs. You can be the judge if...
Heater Not Blowing Warm Air
When I Turn On The Heat It Blows Cool Air Only. One Time It Started Working About 20 Minutes After Turning It On
Asked by
tmeeks51
·
1 ANSWER
2010
CHEVROLET COLORADO
A/c Blowing Hot And Cold
I Replaced The Resisitor And Wiring Harness Because The Switch Was Only Running On High. It Was Very Cold Always But Only On High. Now All...
Asked by
Tommt
·
5 ANSWERS
2006
CHEVROLET COLORADO
2005 Chevy Colorado Blower Fan Switch
Hello, My Blower Fan Switch Only Works On #4 Setting, But Sometimes I Forget To Switch To Off And It Will Turn On By Its Self
Asked by
Mikel Reali
·
1 ANSWER
2005
CHEVROLET COLORADO
2005 Chevy Colorado
Hello My Name Is Markoz Cortez Have A? About My Chevy Colorado; The Problem Is That The Stwich Of A/c Controller It Only Work On #4 Wich Is...
Asked by
markoz cortez
·
1 ANSWER
2005
CHEVROLET COLORADO
VIEW MORE
Ask a Car Question. It's Free!
Fix an Air Conditioning Not Working Video
Air Conditioner - Vacuum Down and Recharge
Top off Automotive Air Conditioning