4X4 not engaging?

Tiny
CINTHIA789
  • MEMBER
  • 2015 CHEVROLET SILVERADO
  • V8
  • 4WD
  • AUTOMATIC
  • 117,000 MILES
I'm having issues trying to figure out why 4x4 won't engage. Have tried all sorts of things and read threads and post about issue. Do you have any suggestions or the wiring diagram on what I can check.
Tuesday, June 13th, 2023 AT 1:45 PM

3 Replies

Tiny
JACOBANDNICKOLAS
  • MECHANIC
  • 110,194 POSTS
Hi,

I'm not sure if you have a push button or manual transfer case. So, I went with the push button and a 5.3L engine. If that isn't correct, let me know.

What exactly happens when you try to engage the 4wd? Does the light turn on indicating 4wd but doesn't engage? Does the 4wd light flash or does nothing happen?

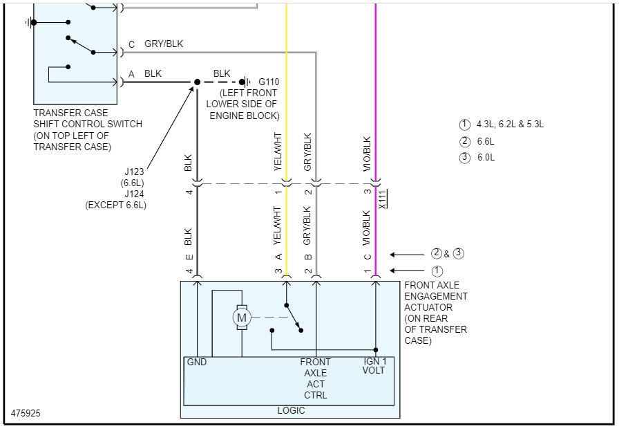
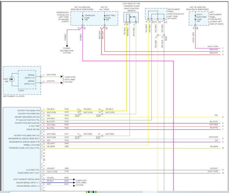
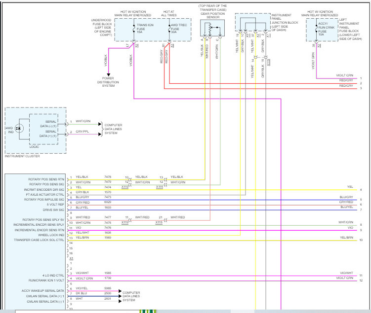
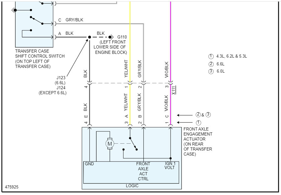
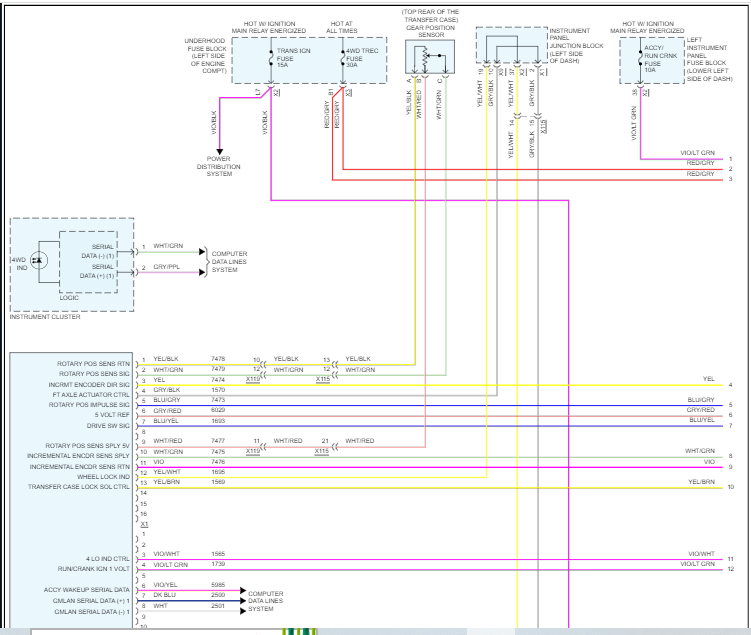
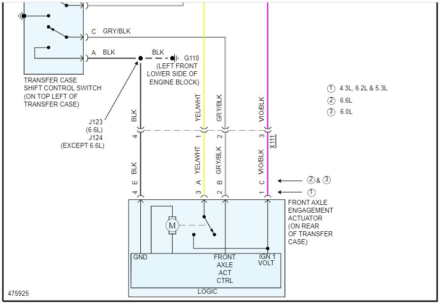
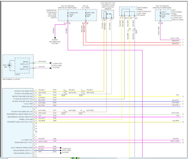
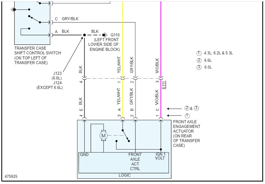
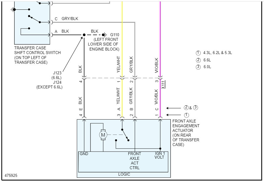
Let me know. Also, I attached the wiring schematic for the push button transfer case circuit. Again, let me know if that isn't what you have.

Take care,

Joe

See pics below. Note: The schematic was two pages. I had to cut each page in half to make it readable. I did overlap them so you can follow from one to the next.
Was this
answer
helpful?
Yes
No
Tuesday, June 13th, 2023 AT 8:52 PM
Tiny
CINTHIA789
  • MEMBER
  • 2 POSTS
Hi, thank you so much for responding. It is a 6.6L engine, and nothing happens on the selector switch. No lights at all. I'm not entirely sure what you mean by manual transfer case? My apologies if that's not much help.
Was this
answer
helpful?
Yes
No
Tuesday, June 13th, 2023 AT 9:10 PM
Tiny
JACOBANDNICKOLAS
  • MECHANIC
  • 110,194 POSTS
Hi,

Is this a 2500? I need to know to confirm the schematics I'm looking through. As far as the manual vs automatic shift transfer case is one you have to press a button and the other automatically engages the 4wd when the vehicle experiences a slip in traction.

As far as the issue, you mentioned nothing happens when you turn the switch, so I assume it is manual 4wd.,

I attached the wiring schematic below for the circuit so that you have a reference. There are two fuses I would like you to check. See pic 3 below. When you check these fuses, it is important to confirm there is power to and from the fuse as well.

Here is a link that explains how to check:

https://www.2carpros.com/articles/how-to-check-a-car-fuse

Let me know what you find. Also, let me know if your truck automatically goes into 4wd if it slips.

Take care,

Joe

See pics below.
Was this
answer
helpful?
Yes
No
Wednesday, June 14th, 2023 AT 8:53 PM

Please login or register to post a reply.