OVERHEATING AND LEAKING COOLANT

Tiny
BRITTINYMEYERS
  • MEMBER
  • 2004 PONTIAC GRAND AM
  • 3.4L
  • V6
  • FWD
  • AUTOMATIC
  • 180,000 MILES
I just recently replaced my serpentine belt and tensioner pulley. Well my drove okay afterwards but I had to put water everyday. Now my reservoir will not hold ANYTHING and wants to overheat fast. It's leaking from the bottom passenger's side. And it somewhat started sputtering when it did started leaking everything out of the reservoir. No water is in my oil, still starts, no smoke from my exhausted, and my reservoir cap is always tightly on. PLEASE HELP ME OUT WHETHER ITS MY RADIATOR, WATER PUMP, WATER HOSE, Thermostat, or something cheap!

How do you do that and what would it run me? Estimated.
Monday, September 22nd, 2014 AT 12:11 PM

2 Replies

Tiny
BRANDON CARON
  • MEMBER
  • 2 POSTS
I'm having the exact same issue have you found a solution if so please notify me :)
Was this
answer
helpful?
Yes
No
Wednesday, July 29th, 2020 AT 10:07 AM
Tiny
KEN L
  • MASTER CERTIFIED MECHANIC
  • 55,512 POSTS
Hello,

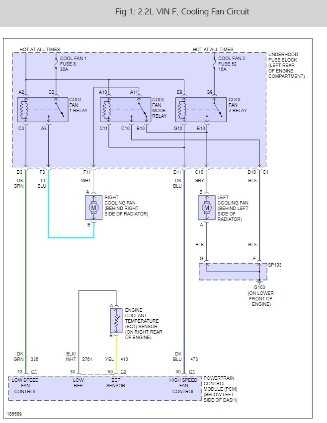
It sounds like you have a cooling fan issue. When the engine is overheating are the cooling fans on? If not here is a wiring diagram (below) for the fans and a guide to help you do some testing to see if it is the relay or the fans themselves.

Here is a few guide that will help you get the problem fixed.

https://www.2carpros.com/articles/replace-electric-fan-motor

and

https://www.2carpros.com/articles/how-to-use-a-test-light-circuit-tester

and

https://www.2carpros.com/articles/how-to-check-an-electrical-relay-and-wiring-control-circuit

Please run some tests and get back to us so we can continue helping you.

Cheers, Ken

Was this
answer
helpful?
Yes
No
Wednesday, July 29th, 2020 AT 10:07 AM

Please login or register to post a reply.