No Fire From Coil Pack

Tiny
AAANGELL6
  • MEMBER
  • 2003 DODGE CARAVAN
  • 6 CYL
  • FWD
  • AUTOMATIC
  • 174,000 MILES
Plugs wires not getting fire? Changed coil pack, cam sensor, crank sensor, checked fuses! At a loss! Need help!
Tuesday, July 12th, 2011 AT 7:26 PM

15 Replies

Tiny
CARADIODOC
  • MECHANIC
  • 34,463 POSTS
Hello,

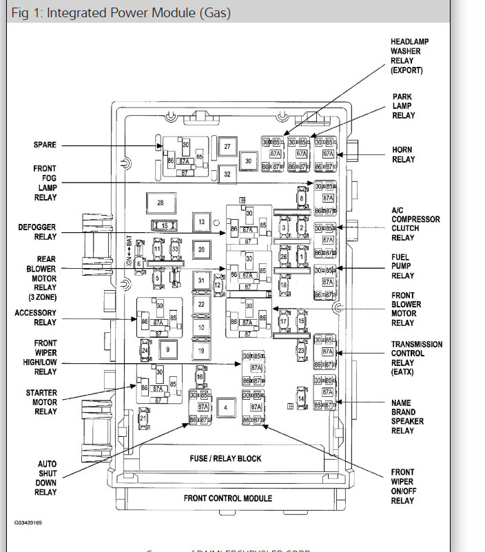
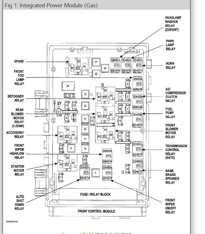
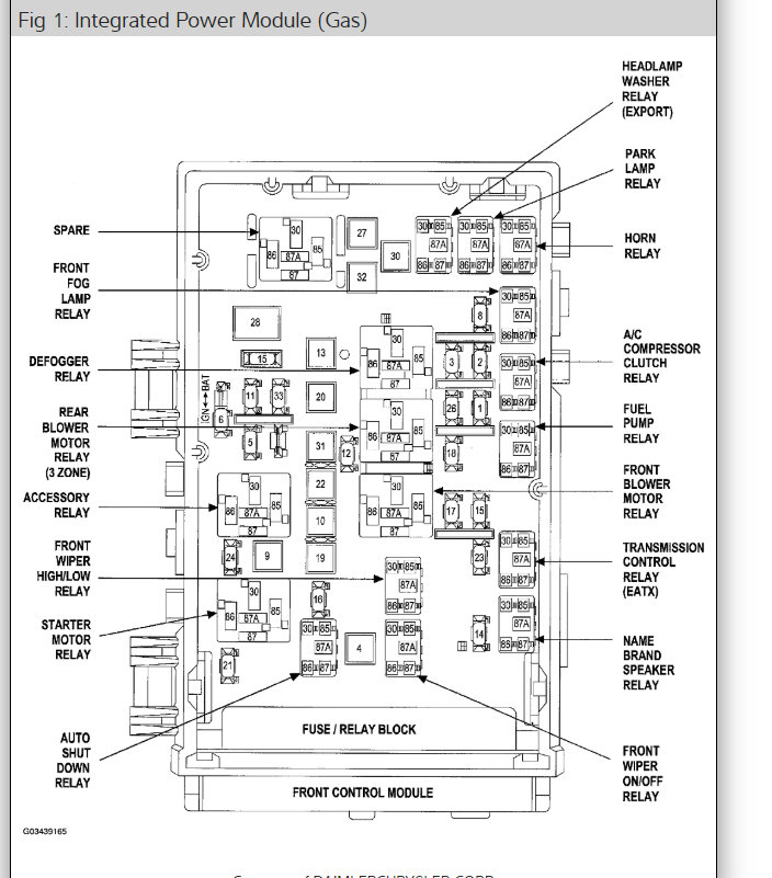
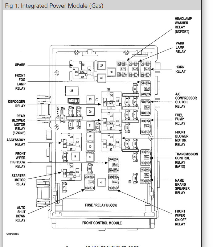
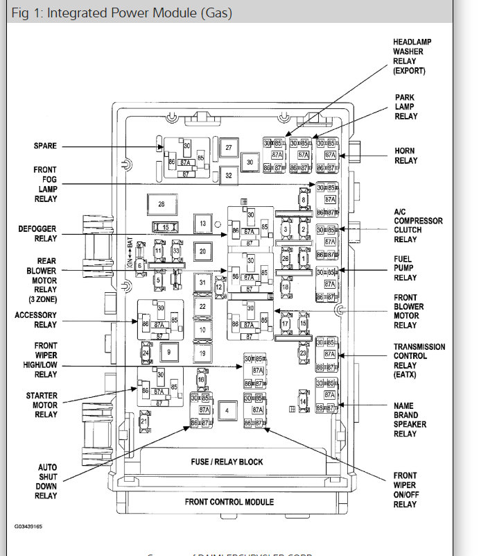
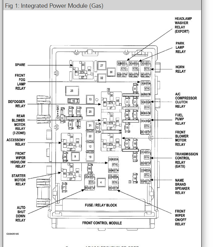
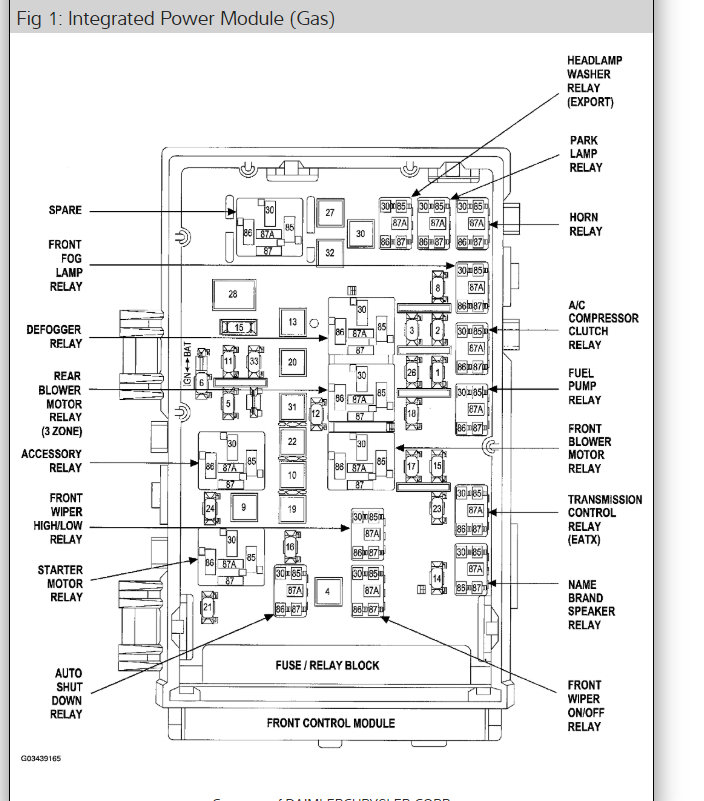
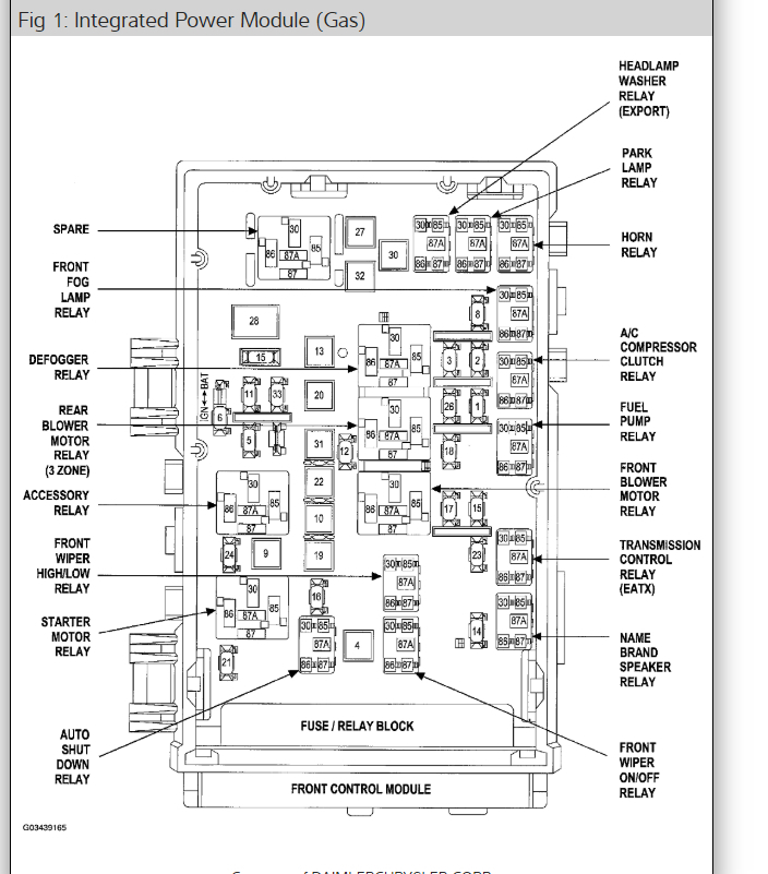
This sounds like the ASD relay is not working but to be sure here is a guide to help check it with the ASD relay location below.

https://www.2carpros.com/articles/how-to-check-an-electrical-relay-and-wiring-control-circuit

Check out the diagrams (Below). Please let us know what you find.
Was this
answer
helpful?
Yes
No
-1
Tuesday, July 12th, 2011 AT 7:55 PM
Tiny
JHARMAN65
  • MEMBER
  • 0 POST
Had to get a new ASD relay cost me $34.00.
Was this
answer
helpful?
Yes
No
-1
Monday, August 5th, 2019 AT 5:01 PM
Tiny
TDUNCAN2
  • MEMBER
  • 4 POSTS
  • 1999 DODGE CARAVAN
Electrical problem
1999 Dodge Caravan 6 cyl Two Wheel Drive Automatic

I have just chanced the heater core and now the car want crank it not getting any fire. I have checked the wiring to the steering column and have replaced a relay, the auto shutdown, and I have replaced the crank sensor. I'm not sure if something is not pluged by in under the dash I need some help please. Maybe a wiring diagram for under the dash.
Was this
answer
helpful?
Yes
No
+2
Monday, August 5th, 2019 AT 5:02 PM (Merged)
Tiny
JDL
  • MECHANIC
  • 16,098 POSTS
Welcome to the forum. I didn't see an exploded view of your dash? We can track the asd relay circuits, if you want to go that way?


https://www.2carpros.com/forum/automotive_pictures/170934_caravan_asd_relay_1.jpg

Was this
answer
helpful?
Yes
No
+1
Monday, August 5th, 2019 AT 5:02 PM (Merged)
Tiny
TDUNCAN2
  • MEMBER
  • 4 POSTS
I have replaced the relay. We ha the steering column out to remove the heater core and now it not getting any fire. Is there anything dealing with under the dash that may effect the firing.
Was this
answer
helpful?
Yes
No
Monday, August 5th, 2019 AT 5:02 PM (Merged)
Tiny
JDL
  • MECHANIC
  • 16,098 POSTS
Maybe I misunderstood your post? I wouldn't worry about spark at the plugs, till I got everything put back together. Maybe I still don't understand? Sometimes I'm a little dense. If you have the ignition switch and everything unplugged, no it won't start.
Was this
answer
helpful?
Yes
No
Monday, August 5th, 2019 AT 5:02 PM (Merged)
Tiny
TDUNCAN2
  • MEMBER
  • 4 POSTS
I have I think everything pluged back in, but it still want crank. I need maybe a wiring diagram for the steering column or under the dash just to make sure I have it right.
Was this
answer
helpful?
Yes
No
-1
Monday, August 5th, 2019 AT 5:02 PM (Merged)
Tiny
PATRICIO04
  • MEMBER
  • 2 POSTS
  • 1999 DODGE CARAVAN
Electrical problem
1999 Dodge Caravan 4 cyl Front Wheel Drive Automatic

My veh. Will crank but wont start. I checked the spark plugs and cyl # 1 and #4 were full of oil so I removed the valve cover and found the spark pulg seals under the valve cover were worn. Replaced wire and spark pugs and still not getting any spark. I got a new ignition coil and it still wont start. I got a four codes 3 of them for emission and one for the pedal control sensor. I dont see how that would affect the coild not getting any power. I was in the middle of replacing the radiator when I was testing the radiator since it started to overheat and thats when the veh wouldnt start again. I hope I explained my self correctly. Thanks
Was this
answer
helpful?
Yes
No
Monday, August 5th, 2019 AT 5:02 PM (Merged)
Tiny
RASMATAZ
  • MECHANIC
  • 75,992 POSTS
No snapping blue spark continue to troubleshoot the ignition system-power input to the coil/coil packs, distributor pick-up coil, ignition control module, cam and crank sensors- Note: If it doesn't apply disregard it
Was this
answer
helpful?
Yes
No
+1
Monday, August 5th, 2019 AT 5:02 PM (Merged)
Tiny
JDL
  • MECHANIC
  • 16,098 POSTS
If your saying the starter won't crank, here's a diagram. You can check for voltage at the starter relay, when testing, make sure the tranny is in park or neutral and the e-brake is set. Where applicable, if the system went into theftlock, because everything was unplugged. I can't diagnose that, from here.


https://www.2carpros.com/forum/automotive_pictures/170934_dodge_caravan_starter_circuit_1.jpg

Was this
answer
helpful?
Yes
No
Monday, August 5th, 2019 AT 5:02 PM (Merged)
Tiny
PATRICIO04
  • MEMBER
  • 2 POSTS
Thanks for replying my question. After further trouble shooting I found out that my computer was inop. Thats why I was not getting spark.
Was this
answer
helpful?
Yes
No
Monday, August 5th, 2019 AT 5:02 PM (Merged)
Tiny
VEDA46
  • MEMBER
  • 1 POST
  • 1999 DODGE CARAVAN
  • 6 CYL
  • 2WD
  • AUTOMATIC
  • 199,400 MILES
I have a 1999 dodge caravan 3.0 and what would cause no fire to the distributor
Was this
answer
helpful?
Yes
No
Monday, August 5th, 2019 AT 5:02 PM (Merged)
Tiny
RASMATAZ
  • MECHANIC
  • 75,992 POSTS
No snapping blue spark continue to troubleshoot the ignition system-power input to the coil/coil packs, coil's resistances, distributor pick-up coil, ignition control module, cam and crank sensors and computer Note: If it doesn't apply disregard it
Was this
answer
helpful?
Yes
No
Monday, August 5th, 2019 AT 5:02 PM (Merged)
Tiny
ROBERTO
  • MEMBER
  • 1 POST
  • 1999 DODGE CARAVAN
  • 6 CYL
  • 2WD
  • AUTOMATIC
  • 124,000 MILES
My 1999 dodge caravan 3.3 wont start I replace the ignition coil but still dont have fire. Is this model equiped with ignition module and if so where is located. Thank you
Was this
answer
helpful?
Yes
No
+1
Monday, August 5th, 2019 AT 5:02 PM (Merged)
Tiny
CARADIODOC
  • MECHANIC
  • 34,463 POSTS
You must go beyond checking for spark. Use a test light or digital voltmeter to measure the voltage on the dark green / orange wire to the coil pack, one of the injectors, or the small terminals on the back of the alternator. You should see voltage there for one second after turning on the ignition switch. What we need to see is if it comes back during engine cranking.

Caradiodoc
Was this
answer
helpful?
Yes
No
+1
Monday, August 5th, 2019 AT 5:02 PM (Merged)

Please login or register to post a reply.