No Pulse to injectors

Tiny
TERMITUS
  • MEMBER
  • 4 POSTS
  • 1988 CHEVROLET SILVERADO
  • 5.7L
  • V8
  • 4WD
  • AUTOMATIC
  • 160,000 MILES
I have changed fuel pump, filter, throttle body positioning sensor, map sensor idle control sensor, distributor, cap, rotary button, spark plug, wires, chased wires down to see if I might have a bad ground. But yet one of my injectors will not spray. I can swap wires from one injector to the other injector and then it works. Can anybody help me out?
Was this
answer
helpful?
Yes
No
Friday, August 21st, 2020 AT 9:49 AM (Merged)
Tiny
ASEMASTER6371
  • MECHANIC
  • 52,796 POSTS
Good morning.

If you move the connector to the injector and it works, you have a harness issue with controlling that injector. Inspect the connector closely for any damage.

Check for power to the injector connector. You should have 12 volts with the key on. If you do not. Check all your fuses. There is a separate fuse for each injector feed in the fuse block. It should be a 5 amp fuse.

Roy
Was this
answer
helpful?
Yes
No
Friday, August 21st, 2020 AT 9:49 AM (Merged)
Tiny
TERMITUS
  • MEMBER
  • 4 POSTS
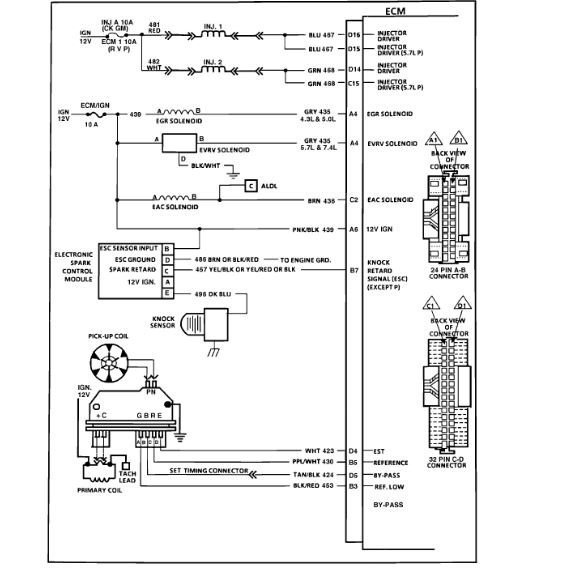
Just asking, do you think it could be the spark control modulator? I looked at the wiring schematics that you sent it only has one 10 amp fuse in the fuse box for both A&B injectors. Other than that everything is telling me that it might be my catalytic converter, but I kind of doubt that since I am not getting spark to the injector.
Was this
answer
helpful?
Yes
No
Friday, August 21st, 2020 AT 9:49 AM (Merged)
Tiny
ASEMASTER6371
  • MECHANIC
  • 52,796 POSTS
No, that controls spark, not fuel.

Yes, the power for the injectors are tied together from one fuse. If you have power to one injector then there is a wiring issue to the other injector. Follow the harness back and look for any damage.

Roy
Was this
answer
helpful?
Yes
No
Friday, August 21st, 2020 AT 9:49 AM (Merged)
Tiny
TERMITUS
  • MEMBER
  • 4 POSTS
Thank you.
Was this
answer
helpful?
Yes
No
Friday, August 21st, 2020 AT 9:49 AM (Merged)
Tiny
JUSTIN7779
  • MEMBER
  • 1 POST
  • 1988 CHEVROLET SILVERADO
  • 5.7L
  • V8
  • RWD
  • AUTOMATIC
  • 146,000 MILES
Hi, I have a 1988 chevrolet silverado c1500, swb, 5.7L v8 and the other day in a parking lot I tried starting it and it would never fire. Called my dad and he towed me home.(Short drive) and we found out neither fuel injectors are spraying. This is the first time we've had issues with this, and it usually starts up like a normal old truck. Any help? I can answer other questions if needed to find a solution
Was this
answer
helpful?
Yes
No
Friday, August 21st, 2020 AT 9:49 AM (Merged)
Tiny
KNOWLEDGE IS POWER
  • MECHANIC
  • 1,136 POSTS
Put a funnel I the gas tank and have someone turn the key to on. The fuel pump in there will hum if its running. If not then take a hammer and rap firmly on the bottom of the gas tank and try it again. If still nothing, then is there any engine light on?
Was this
answer
helpful?
Yes
No
Friday, August 21st, 2020 AT 9:49 AM (Merged)
Tiny
ASEMASTER6371
  • MECHANIC
  • 52,796 POSTS
You are welcome.

Always glad to help.

Roy
Was this
answer
helpful?
Yes
No
Friday, August 21st, 2020 AT 9:49 AM (Merged)
Tiny
TERMITUS
  • MEMBER
  • 4 POSTS
Come to find out I had a wire that was corroded so bad it fell apart about six inches behind the computer underneath the glove box. Thanks for helping me out would have never been able to figure that out.
Was this
answer
helpful?
Yes
No
Friday, August 21st, 2020 AT 9:49 AM (Merged)
Tiny
ASEMASTER6371
  • MECHANIC
  • 52,796 POSTS
Good find.

Always glad to help.

Roy
Was this
answer
helpful?
Yes
No
Friday, August 21st, 2020 AT 9:49 AM (Merged)
Tiny
JAMESRS
  • MEMBER
  • 1 POST
  • 1988 CHEVROLET SILVERADO
Electrical problem
1988 Chevy Silverado V8 Four Wheel Drive Automatic

fuel injector won't spray
Was this
answer
helpful?
Yes
No
Friday, August 21st, 2020 AT 9:49 AM (Merged)
Tiny
RASMATAZ
  • MECHANIC
  • 75,992 POSTS
Check if there's power on the red wire on the injector's harness connector-if so could be the computer ground drivers or the cam or crankshaft input signals to the computer is missing not snchronizing the injector/s. Also check inj A and B fuses.
Was this
answer
helpful?
Yes
No
Friday, August 21st, 2020 AT 9:49 AM (Merged)
Tiny
LAUREN PAIGE RICHARDSON
  • MEMBER
  • 1 POST
Hi. So we have had a 1988 Chevrolet G20 v8 van in our yard for over a week now that has us stumped. The customer drove it to a friends house. They went to a funeral. Came back tried to start it and it wouldn't start. At that point it was firing but not starting. He changed the distributor cap and rotor the ICM and he botched a rebuild of the throttle body. We have rebuilt the throttle body again changed the inner pickup coil in the distributor and the ignition coil. Also put the wires all one spot to the right because they were all one spot retarded. Now the problem we have is its not getting fuel to the injectors unless you connect a ground wire from the wires to the body of the van. But then it pulses as it should but puts out way too much gas from the injectors and floods the motor. Please help
Was this
answer
helpful?
Yes
No
Sunday, March 21st, 2021 AT 12:36 AM
Tiny
JACOBANDNICKOLAS
  • MECHANIC
  • 110,192 POSTS
Hi,

If you get an injector pulse by adding a ground, then the body ground is bad. That wouldn't cause too much fuel to reach the injectors. Have you checked fuel pressure? You could have a faulty fuel pressure regulator causing the pressure to rise too much. First, here is a link that explains how to test fuel pressure:

https://www.2carpros.com/articles/how-to-check-fuel-system-pressure-and-regulator

Here are the manufacturer's specs or pressure:

FUEL PRESSURE
Ignition ON Engine OFF .................... 62-90 kPa (9-13 psi)

Let me know what you find or if you have other questions.

Take care,
Joe
Was this
answer
helpful?
Yes
No
Tuesday, March 23rd, 2021 AT 6:36 PM

Please login or register to post a reply.