Windows stopped working?

Tiny
ED AUCOIN
  • MEMBER
  • 2012 HONDA CIVIC
  • 4 CYL
  • 2WD
  • AUTOMATIC
  • 45,000 MILES
Battery went bad too. Put a new battery in car starts fine everything works but the windows.
Thursday, November 7th, 2019 AT 6:28 PM

41 Replies

Tiny
KASEKENNY
  • MECHANIC
  • 18,907 POSTS
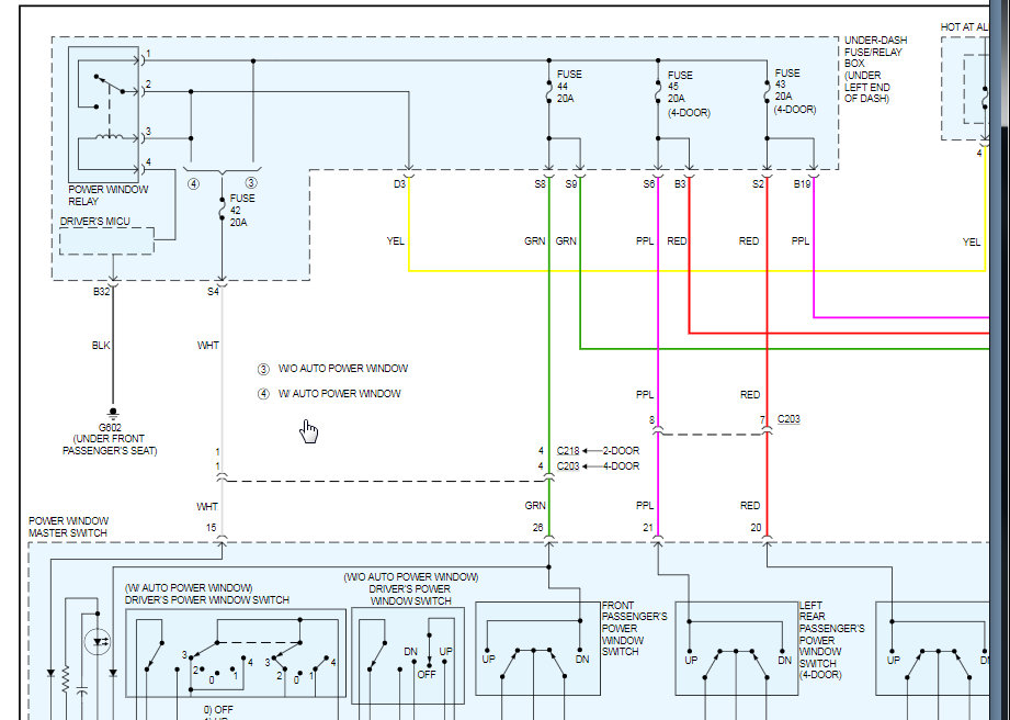
Have you checked the power window relay? It is L6 relay on the under dash relay box. Swap out this relay and let me know if they start working. Check out the diagrams (Below). Please let us know if you need anything else to get the problem fixed. Thanks
Was this
answer
helpful?
Yes
No
+1
Friday, November 8th, 2019 AT 3:19 PM
Tiny
DEUTSCHG
  • MEMBER
  • 1 POST
  • 2004 HONDA CIVIC
  • 4 CYL
  • FWD
  • MANUAL
  • 42,000 MILES
My 2004 Honda Civic SI- the power window on driver side only is having a problem. It goes down fine and then when I pull the electric switch to make it go up, it goes up a little and then back down imediately. This happens over and over. I turned it off and on and kept doing it and eventually it went all the way up. This has happened twice. The manual says it has an automatic thing that makes it not close on things in the window, and it kind of acts like that, but there is nothing in the window to cause it to go back down. I think it just needs an electrical type reset. Is there anything I can do?
Was this
answer
helpful?
Yes
No
Monday, January 4th, 2021 AT 10:15 AM (Merged)
Tiny
KHLOW2008
  • MECHANIC
  • 41,814 POSTS
Hi deutschg,

There is no reset that can be done and possibilities of it is happening are
1. Faulty switch.
2. Faulty contol unit.
3. Bad door glass runchannel.

If the movement of the glass is slow when going up, it could be due to bad runchannel causing too much restriction and the auto function reversing. However it should not happen if you use the manual option instead of auto function. Pull the switch slightly to use manual winding up and see if it is ok.
Was this
answer
helpful?
Yes
No
Monday, January 4th, 2021 AT 10:15 AM (Merged)
Tiny
NED5
  • MEMBER
  • 1 POST
  • 2002 HONDA CIVIC
Firstly, thanks for all the great info here.I was able to troubleshoot many problems thus far!

Here's my current one. The rear passenger power window does not work from either the main panel, switch on the drivers door or from the switch on the rear passenger door.

Here's what I've done thus far:
- checked all fuses. Originally the fuse for the rear window was blown, but replaced with a known working fuse.
- removed door panel and confirmed that window motor works when connected to a power source.
- replaced window switch with one from the other side to ensure it's not a switch issue.

Now I'm stuck. What should I do next?
Was this
answer
helpful?
Yes
No
Monday, January 4th, 2021 AT 10:15 AM (Merged)
Tiny
CARADIODOC
  • MECHANIC
  • 34,454 POSTS
There's actually four switches involved. Two are in the passenger's switch and two are in the driver's switch. The clue it's a switch problem is the window will work in both directions but possibly only from one switch for one of those directions. Start by checking for broken of frayed wires between the two door hinges.
Was this
answer
helpful?
Yes
No
Monday, January 4th, 2021 AT 10:15 AM (Merged)
Tiny
FREEFORTHEE
  • MEMBER
  • 1 POST
  • 2002 HONDA CIVIC
  • 165,000 MILES
I own a 2002 honda civic sedan lx. The front passenger window, and both rear passenger windows do not roll up or down, they stoped working. Each window failed one after another, within a short period of time. So I cant open them from the main switch or at their individual switch. The drivers window does function perfectly. Whats the problem?

Thanks
Was this
answer
helpful?
Yes
No
Monday, January 4th, 2021 AT 10:15 AM (Merged)
Tiny
RASMATAZ
  • MECHANIC
  • 75,992 POSTS
Start by having the window master control switch checked and tested all the power to the other windows comes from the master control switch-start here could als be a door control module failure
Was this
answer
helpful?
Yes
No
Monday, January 4th, 2021 AT 10:15 AM (Merged)
Tiny
HONIBABE
  • MEMBER
  • 1 POST
  • 2001 HONDA CIVIC
  • 4 CYL
  • FWD
  • MANUAL
  • 95,000 MILES
I had my automatic transmission swapped out to a manual. Now my power window on the front passenger side stopped working, as well as my reverse lights and my blinkers. Did the mechanic forget to wire something properly?
Was this
answer
helpful?
Yes
No
Monday, January 4th, 2021 AT 10:15 AM (Merged)
Tiny
KHLOW2008
  • MECHANIC
  • 41,814 POSTS
Hi Honibabe,

Yes, some wires had not been done correctly. Manual and automatic have different wiring for the reverse lights.

As to the other components not working, test would have to be carried out.
Was this
answer
helpful?
Yes
No
Monday, January 4th, 2021 AT 10:15 AM (Merged)
Tiny
OADIAZ
  • MEMBER
  • 2 POSTS
  • 2001 HONDA CIVIC
  • 1.7L
  • 4 CYL
  • 2WD
  • AUTOMATIC
  • 168,000 MILES
I have the car listed above LX model that I bought used. The passenger window would not work. It kept blowing its 20 amp fuse, so I replaced the regulator, master switch, fuses and both driver and passenger door harness to no avail. I recently noticed that the interior light will not come on when opening that door only. Lastly the driver door speaker would not work either. Could it be something in the interior fuse box under the dash?

Thank you ahead of time.
V/r
Osman Diaz
Was this
answer
helpful?
Yes
No
Monday, January 4th, 2021 AT 10:15 AM (Merged)
Tiny
DANNY L
  • MECHANIC
  • 5,648 POSTS
Hello, I am Danny
Just a quick question first. Have you checked the were the wiring assembly/harness that passes through the door to car body? It sounds like you might have a pinched wire or bad Ground. Hope this helps and feel free to ask any other questions.Thanks for using 2CarPros.
Danny-

https://www.2carpros.com/articles/how-to-check-wiring
Was this
answer
helpful?
Yes
No
Monday, January 4th, 2021 AT 10:15 AM (Merged)
Tiny
OADIAZ
  • MEMBER
  • 2 POSTS
I have Danny, I've actually replaced both harness to both doors with same result. Not sure where to go from there.
Was this
answer
helpful?
Yes
No
Monday, January 4th, 2021 AT 10:15 AM (Merged)
Tiny
KEN L
  • MASTER CERTIFIED MECHANIC
  • 55,127 POSTS
Here are the window wiring diagrams so you can see how the system works. There is a window relay that needs to be checked here is a guide and the location of the relay.

https://www.2carpros.com/articles/how-to-check-an-electrical-relay-and-wiring-control-circuit

Check out the diagrams (Below). Please let us know what you find. We are interested to see what it is.

Cheers, Ken
Was this
answer
helpful?
Yes
No
Monday, January 4th, 2021 AT 10:15 AM (Merged)
Tiny
YANGJY26
  • MEMBER
  • 2 POSTS
  • 2000 HONDA CIVIC
Electrical problem
2000 Honda Civic 4 cyl Two Wheel Drive Manual

My D/S power window has trouble going up and down and is keeps comin off the track. Also my P/S window is slow to going up and down. My sunroof won't close and I have a on tilt.
Was this
answer
helpful?
Yes
No
Monday, January 4th, 2021 AT 10:16 AM (Merged)
Tiny
KHLOW2008
  • MECHANIC
  • 41,814 POSTS
The runchannel rubbers have hardened restricting the movement of the glasses.

Get a silicone or wax based spray and apply to the runchannels, should make the glass move faster and remain on track.
Was this
answer
helpful?
Yes
No
-1
Monday, January 4th, 2021 AT 10:16 AM (Merged)
Tiny
CALIKEL
  • MEMBER
  • 1 POST
  • 1999 HONDA CIVIC
Electrical problem
1999 Honda Civic 4 cyl Automatic 149600 miles

I have a 1999 Honda Civic LX 4-door sedan. I have recently come across the problem regarding the door locks on my passenger side (both front and back). When they are locked either using my alarm or driver side lock, they sometimes go down/up all the way to the lock/unlock position, and sometimes they don't. The driver side door locks work fine.

Also the back window on the passenger side does not go up or down at all. Neither the switch on the driver side or the actual switch for the window work. At first, it was temperamental and would work when it wanted to. Now it' doesn't respond at all.

Can anyone tell me possible causes and how much it would cost to fix these three problems?

Thank you!
Was this
answer
helpful?
Yes
No
Monday, January 4th, 2021 AT 10:17 AM (Merged)
Tiny
F4I_GUY
  • MECHANIC
  • 3,302 POSTS
The lock issue could be the lock actuator in the door itself.

And the window issue is most likely a window motor. Try hitting around the bottom of the door panel while pressing the window switch to see if it works.

You are looking at a couple hundred dollars for each job.
Was this
answer
helpful?
Yes
No
Monday, January 4th, 2021 AT 10:17 AM (Merged)
Tiny
JAKETN
  • MEMBER
  • 1 POST
  • 1998 HONDA CIVIC
  • 4 CYL
  • 2WD
  • MANUAL
  • 119,000 MILES
My back right window is not working but all the rest is. I've check to see to see if it had any power but no. Could it be my main switch at driver side door be bad?
Was this
answer
helpful?
Yes
No
Monday, January 4th, 2021 AT 10:17 AM (Merged)
Tiny
BMRFIXIT
  • MECHANIC
  • 19,053 POSTS
Hold the switch in the up or down position and test if still no power check at back of the switch and if still no power then switch no good if you have power at the switch but not at the motor check wiring in the door jam
Was this
answer
helpful?
Yes
No
Monday, January 4th, 2021 AT 10:17 AM (Merged)
Tiny
FAVI90
  • MEMBER
  • 1 POST
  • 1997 HONDA CIVIC
  • 4 CYL
  • FWD
  • MANUAL
  • 155 MILES
Windows wont shut nor close, I think its a technocal problem?
Was this
answer
helpful?
Yes
No
Monday, January 4th, 2021 AT 10:18 AM (Merged)

Please login or register to post a reply.