Turn signals stopped working

Tiny
DAVIDJCHRISTIE
  • MEMBER
  • 1991 FORD E-SERIES VAN
  • V8
  • 2WD
  • AUTOMATIC
  • 120,000 MILES
Both turn signals quit working two days ago, the hazard lights do still work.
Sunday, February 21st, 2021 AT 5:47 PM

1 Reply

Tiny
KASEKENNY
  • MECHANIC
  • 18,907 POSTS
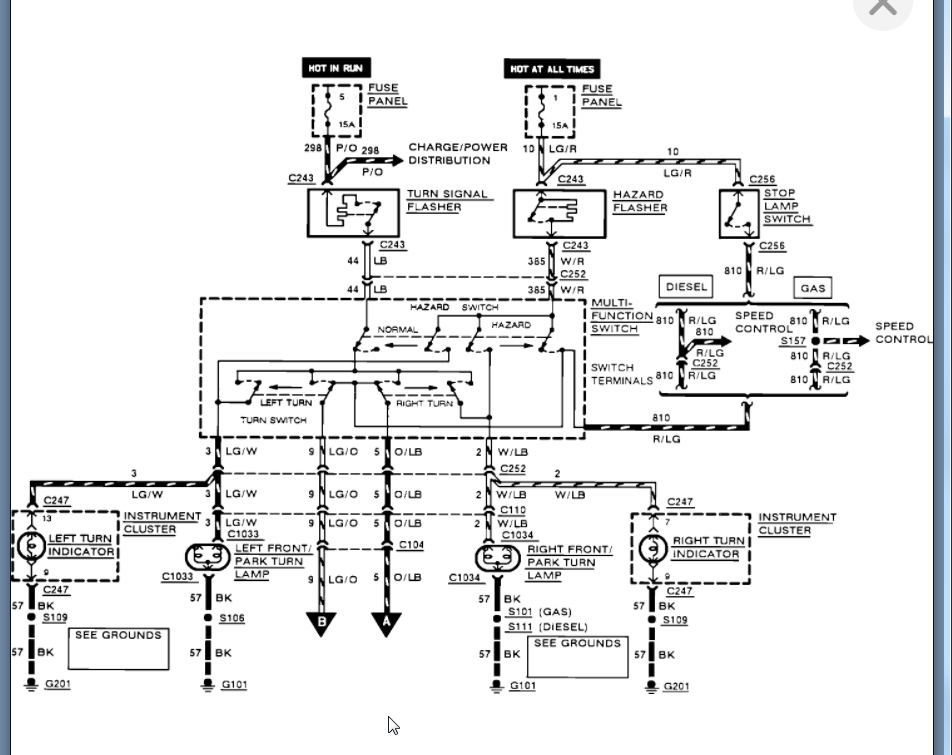
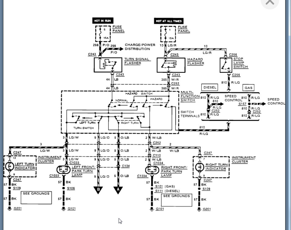
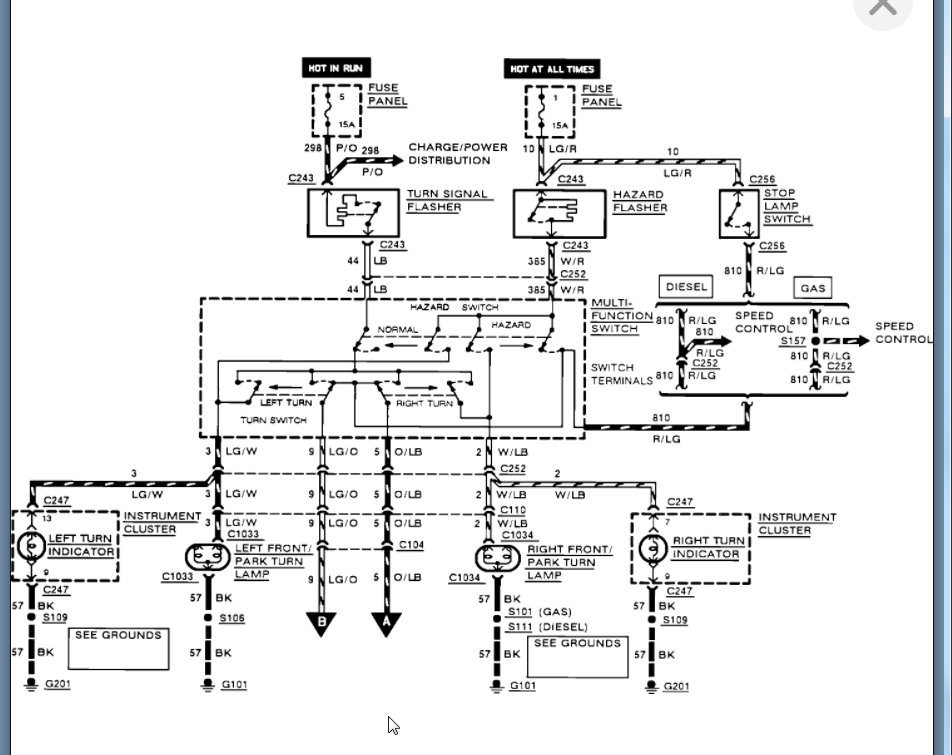
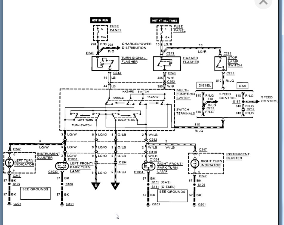
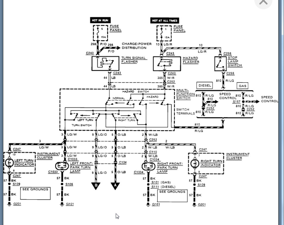
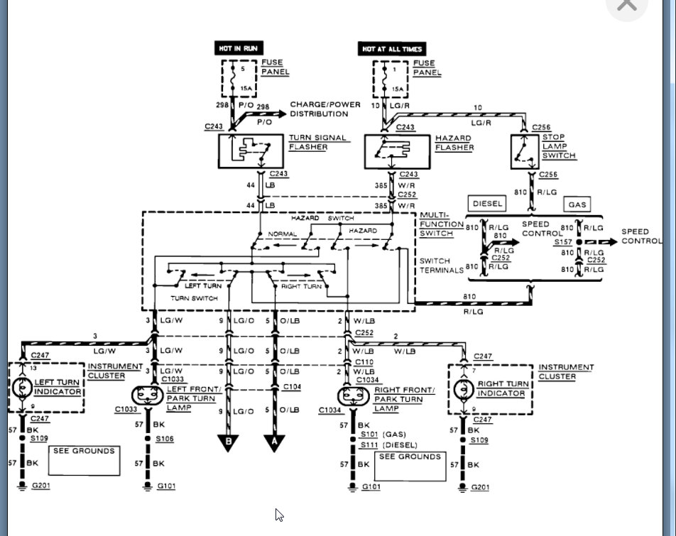
I suspect this is a turn signal flasher issue, however it could be a multi function switch issue as well. This system is pretty basic on this vehicle so I attached the wiring diagram for us to test but we need to find out if there is power leaving the switch when you turn them on. Then make sure the flasher is working as well by checking power coming into the switch from the flasher.

https://www.2carpros.com/articles/how-to-check-wiring

I attached all the info below on this so let me know if you have questions and we can go from there.
Was this
answer
helpful?
Yes
No
Tuesday, February 23rd, 2021 AT 8:14 AM

Please login or register to post a reply.