Running lights not working at all

Tiny
HARLEY CRADDOCK
  • MEMBER
  • 1991 CHEVROLET SILVERADO
  • 5.0L
  • V8
  • 2WD
  • AUTOMATIC
  • 289,000 MILES
My drivers idea tail light was not working so I ended up rewiring it from the front all the way to the back and the regular brake light and turn signal work fine. But now my running lights wont work, but they did not work before either. So I don't know what the problem is my dad said it is the switch which it could be because it wants a 20 amp fuse in the fuse box for them and I put one in and it kept blowing it and blowing it so I stepped it up to a 25 worked for about two minutes and blew that so I did a 30 it popped that one going across town. I do not know if that has anything to do with the back not working, but I really need running lights because I do not normally get off until it is dark outside. I hope someone has had a dB similar problems and knows how to fix it. Any advice would be great thank you
Sunday, June 19th, 2016 AT 9:54 PM

3 Replies

Tiny
CARADIODOC
  • MECHANIC
  • 34,463 POSTS
First of all, the fuse is a safety device. You don't fix anything by replacing it with a bigger one. The first area of concern is have you added more lights on that circuit than what the truck came with from the factory? That includes trailer lights. The next problem is running a new wire. There definitely are times when it is necessary to do that, but I never accepted that answer from my students when asking how a problem should be solved. The proper repair is always to locate the cause of the problem and fix it because a damaged wire is in a harness with many other wires, and it's just a matter of time before the second and third one will suffer the same fate, like rubbing through on a sharp metal bracket, or melting on hot exhaust parts. You always want to fix the problem before it affects other wires.

A simple trick to finding a short is to replace the blown fuse with a pair of spade terminals, then use small jumper wires to connect them to a 12 volt light bulb. A brake light bulb works well. When the circuit is live and the short is present, the bulb will be full brightness and hot so be sure it's not laying on the carpet or against a plastic door panel. Now you can unplug electrical connectors and move things around to see what makes the short go away. When it does, the bulb will get dim or go out.

For intermittent problems like yours the bulb may be dim already. Watch what takes place when it gets bright. That's when the short is occurring. It could be due to the rocking of the engine when you shift between reverse and drive. It could be due to the body flexing when you drive over bumps in the road. The bulb limits current to a safe value when the short occurs, in this case about one amp. If the running lights aren't bright enough and the test bulb is already bright when the short isn't occurring, try using a headlight bulb instead of a brake light bulb. The low beam filament will limit current to five amps, and the high beam filament will allow about six amps to flow. I have a test harness I made from a Dodge Viper tail light harness. With all the bulbs plugged in, there are five filaments. I can plug in as many bulbs as I want to for the best observations.

You can try shifting into reverse and drive to see if that makes the test bulb get bright. I also have found a few sheet metal screws run through wiring harnesses by pounding around the car with a rubber hammer. Look at the trailer wiring harness if you have one to see if they're chewed up. If someone added that harness and used "Scotch-Lok" connectors, that wiring should be redone. Those connectors don't seal out moisture. If the exhaust system has been modified, look for melted wires that are too close to the tail pipe.
Was this
answer
helpful?
Yes
No
+1
Monday, June 20th, 2016 AT 7:59 PM
Tiny
CONVOY77
  • MEMBER
  • 1 POST
  • 1991 CHEVROLET SILVERADO
  • V8
  • 2WD
  • AUTOMATIC
  • 100,000 MILES
Electrical problem
1991 Chevy Silverado V8 Two Wheel Drive Automatic 100000 miles

Hello there, I have a 1991 chevy silverado V8 5.7 ltr. When I turn my head lights on, the tail lights and the plate light do not work. I checked all the fuses and the bulbs also and all look fine. I also noticed that my guage lights do not work either. Does anyone know if there is anywhere else I should be looking? Brake lights, turn signal and hazzards work fine.

Thanks!
Was this
answer
helpful?
Yes
No
+2
Saturday, January 28th, 2017 AT 12:23 PM (Merged)
Tiny
KEN L
  • MASTER CERTIFIED MECHANIC
  • 55,291 POSTS
Hey CONVOY77,

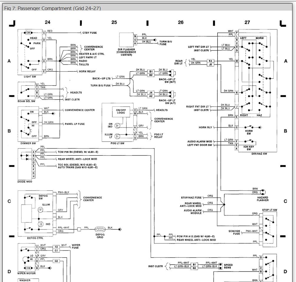
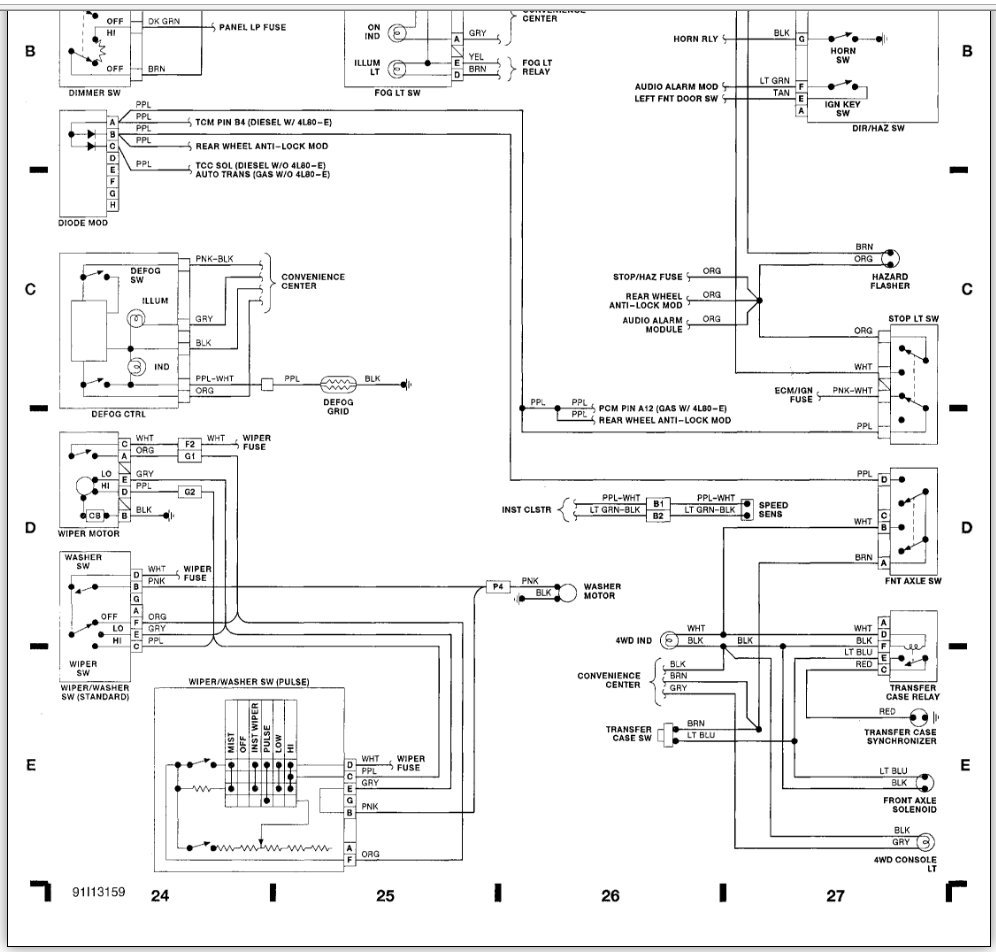
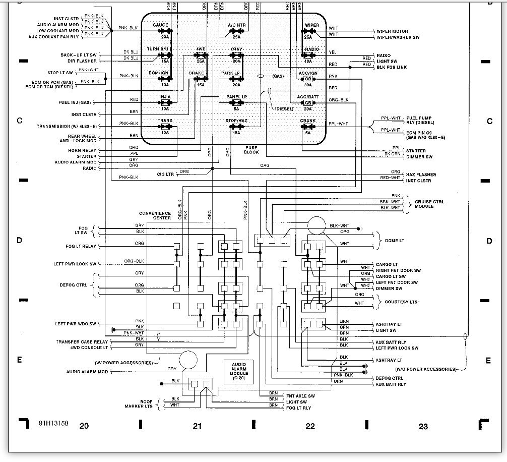
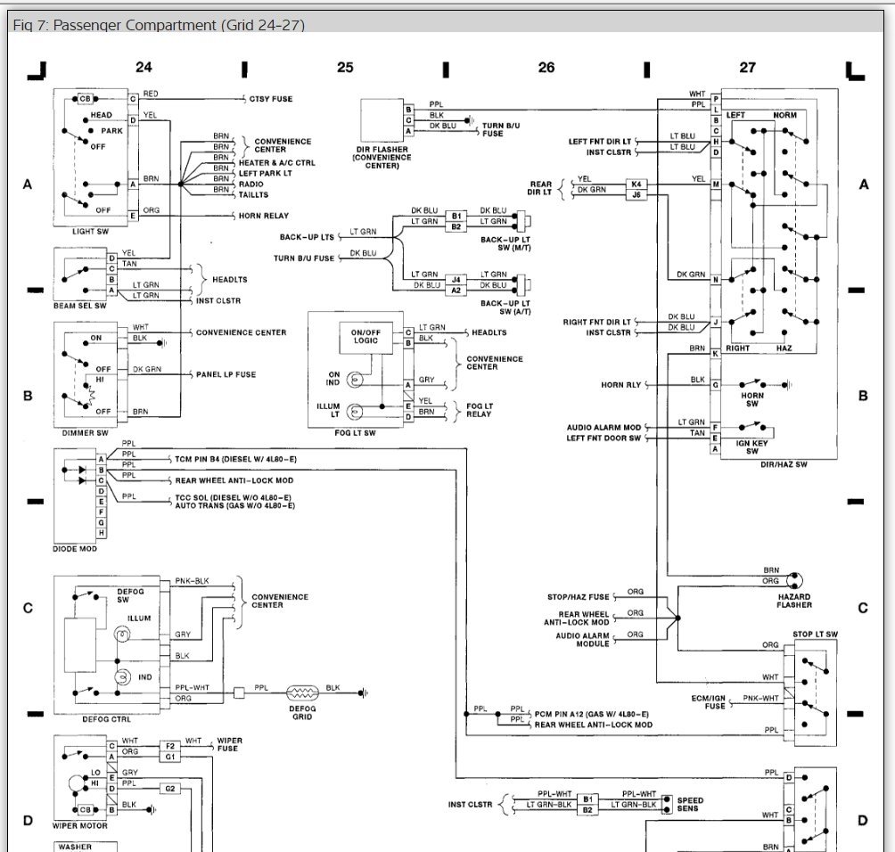
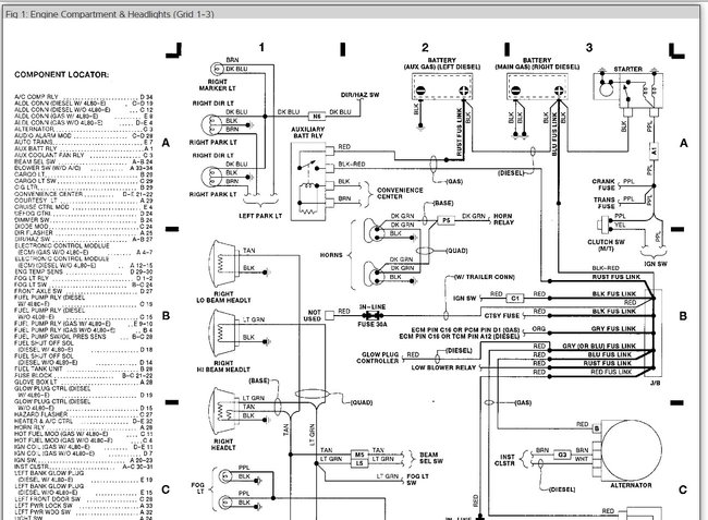
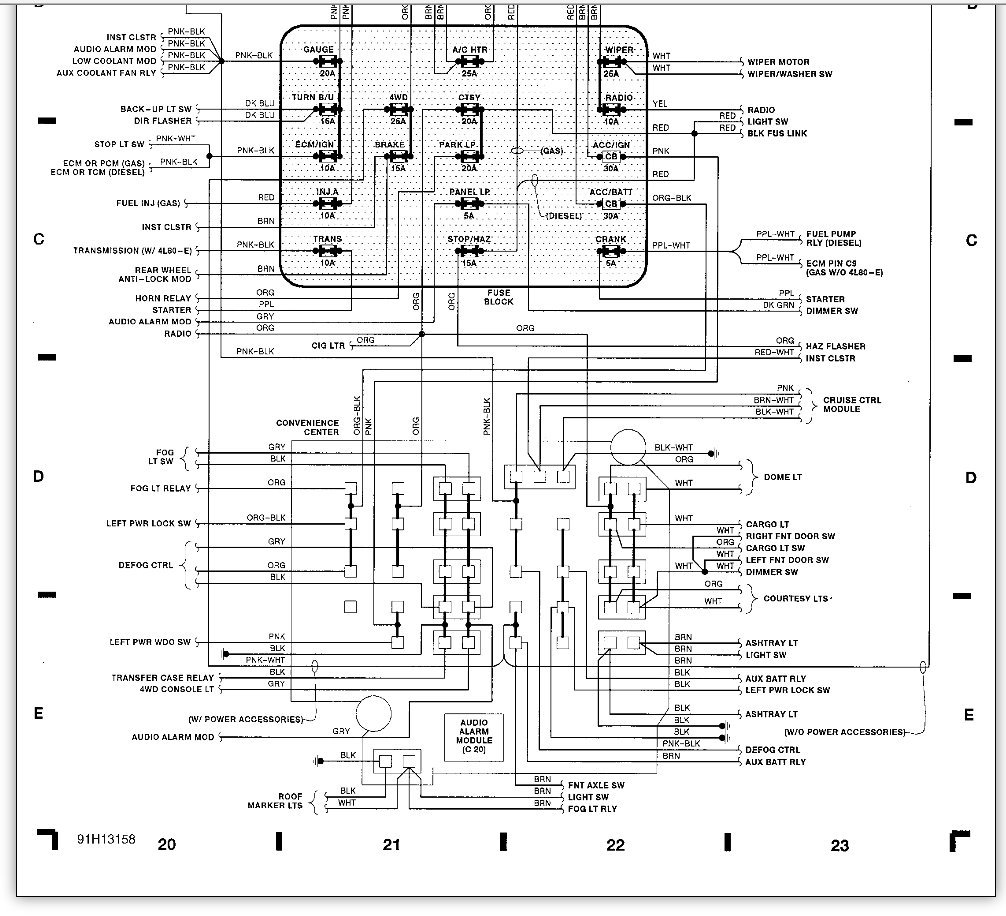
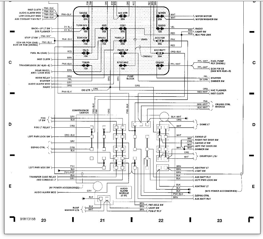
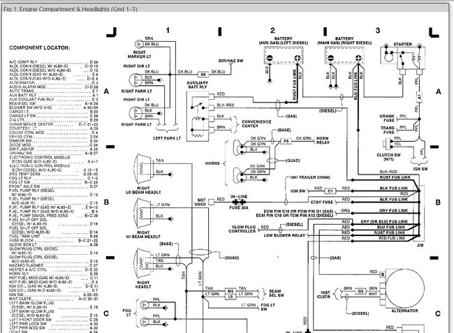
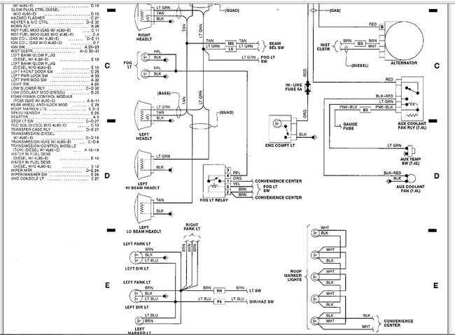
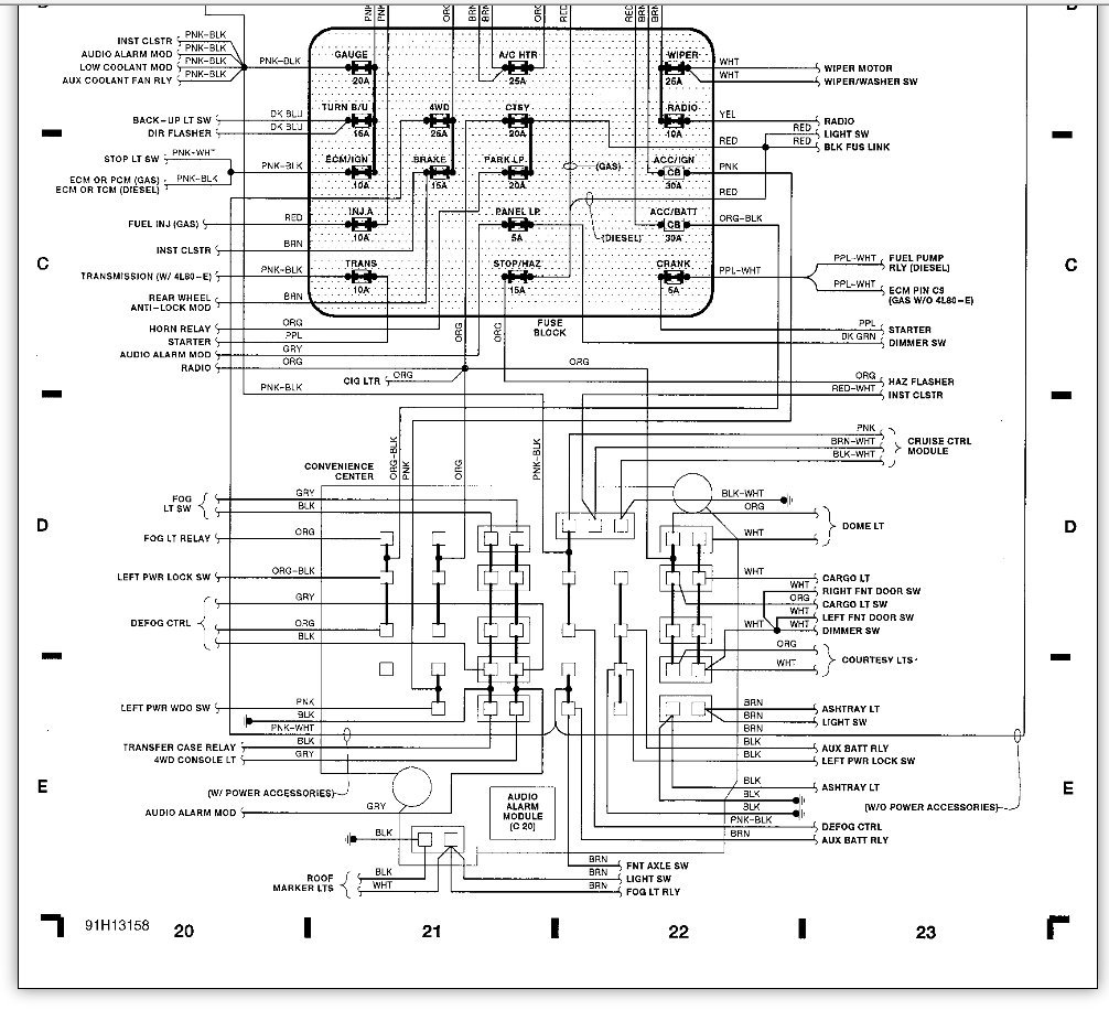
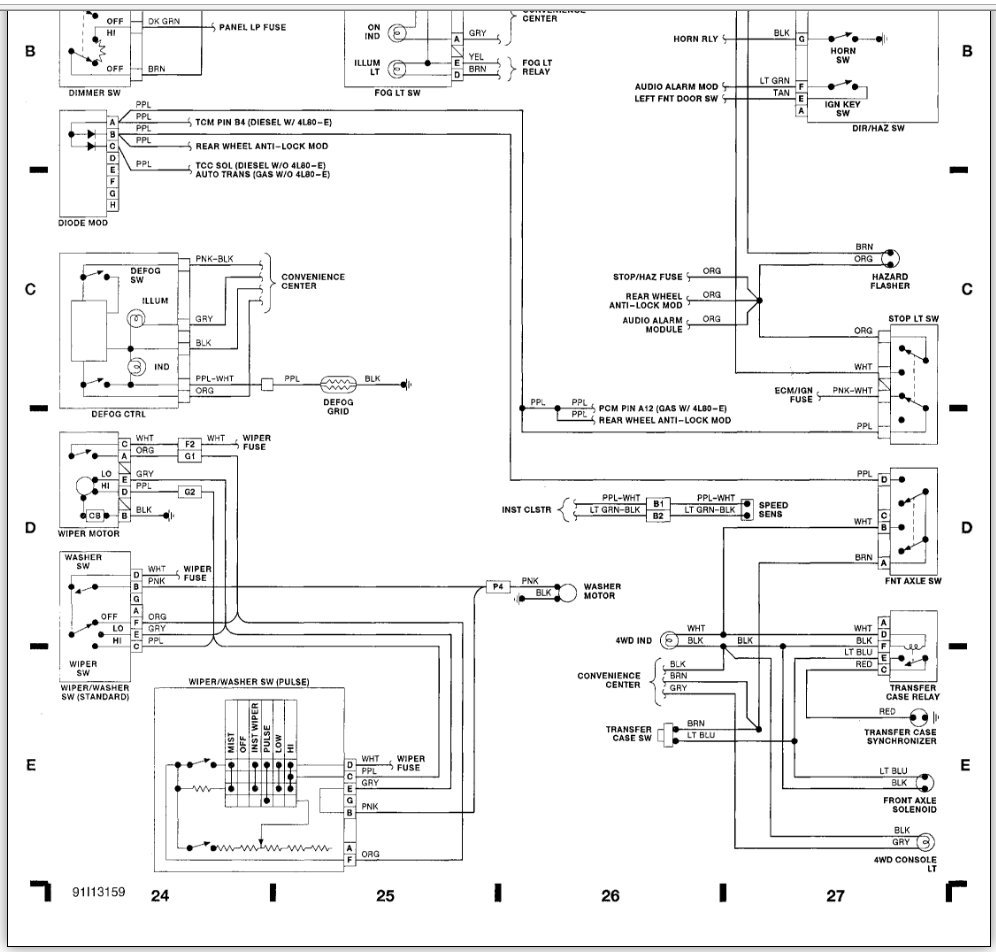
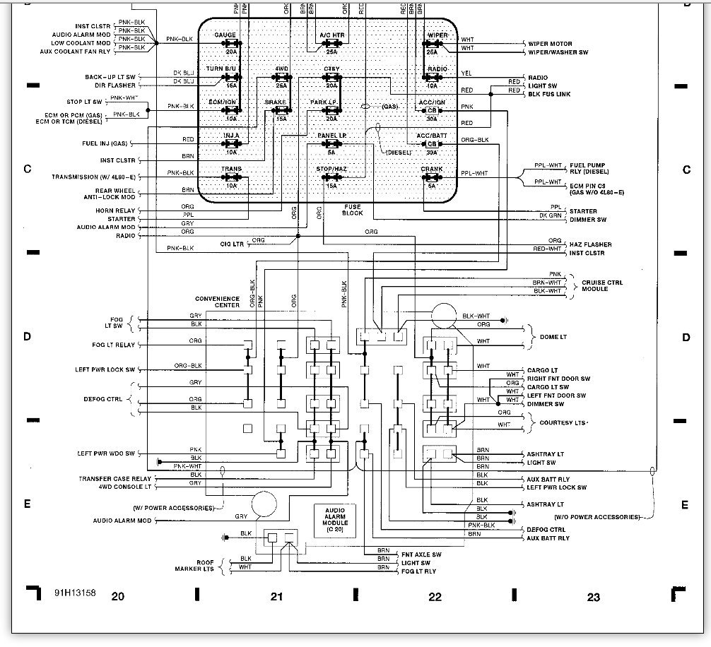
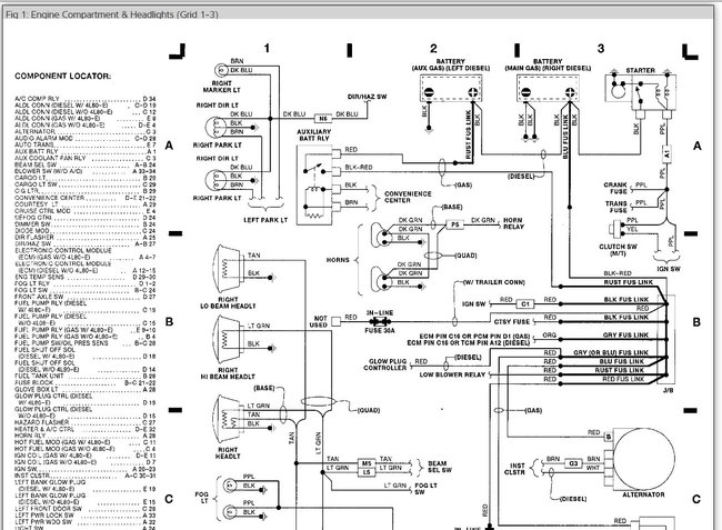
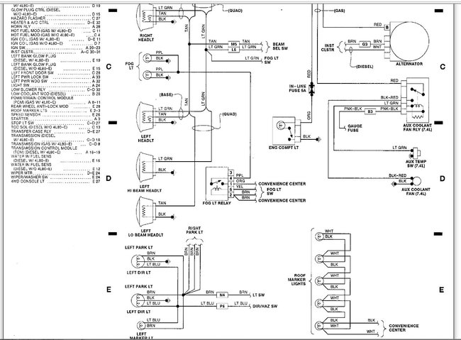
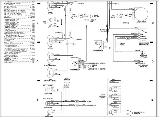
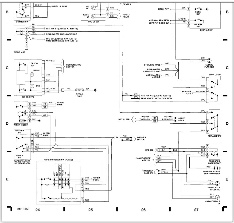
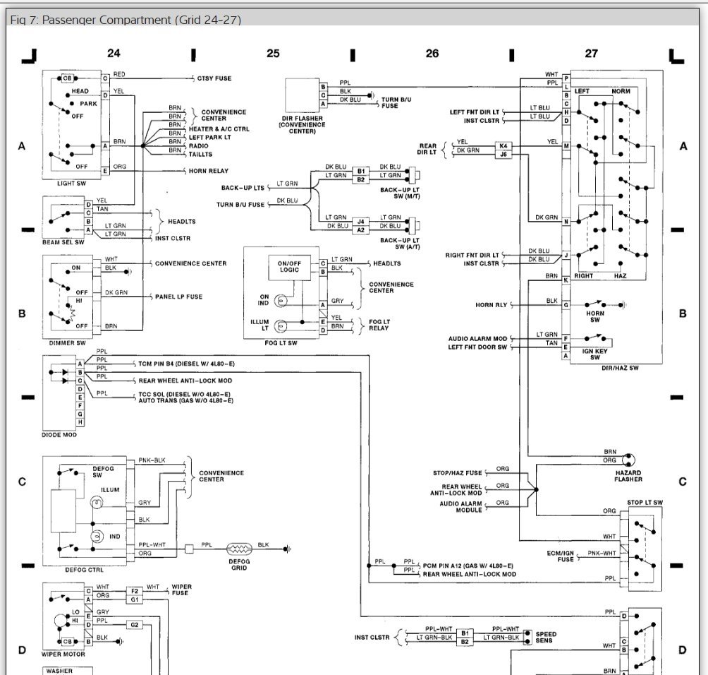
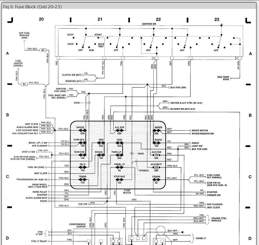
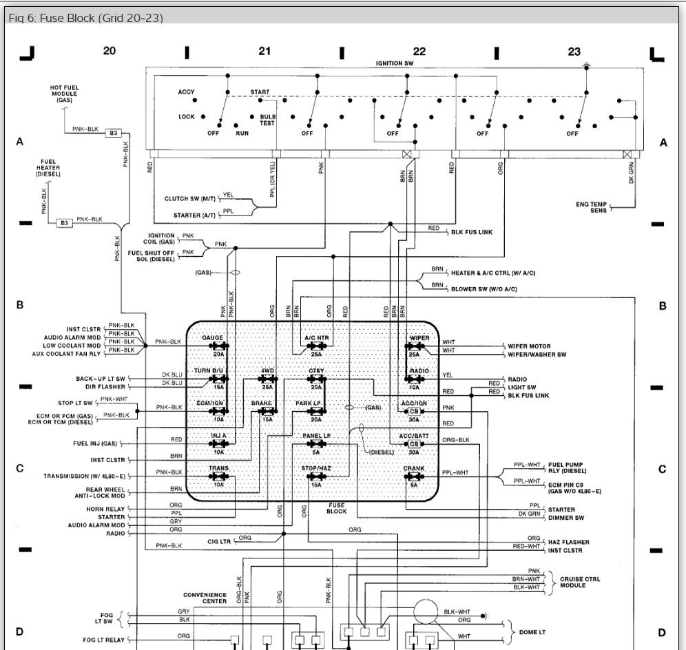
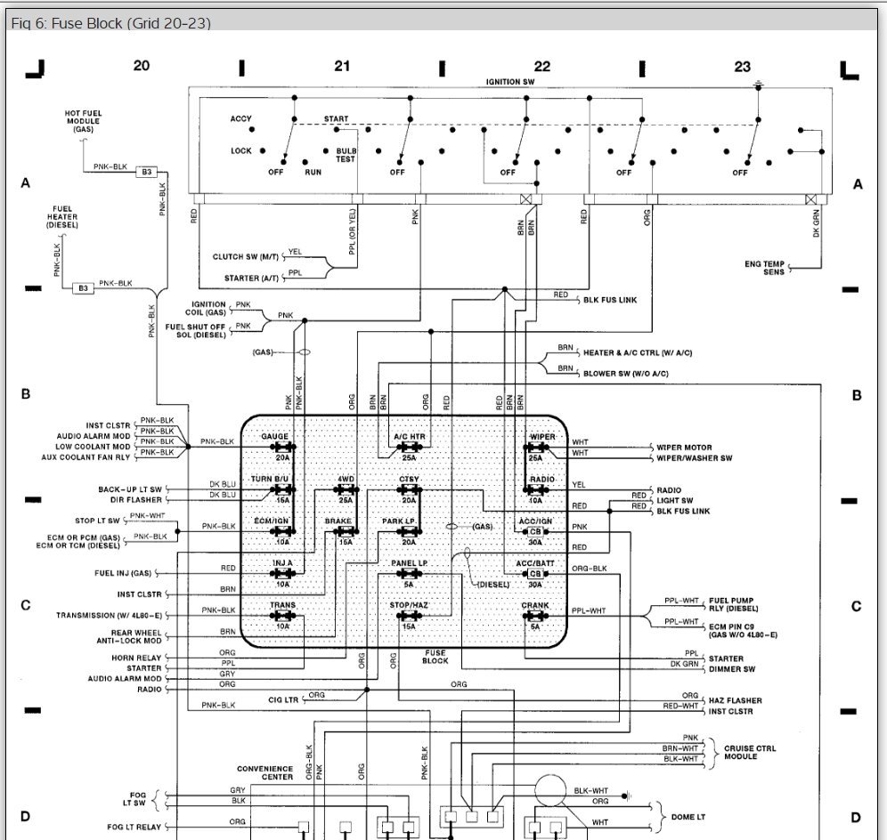
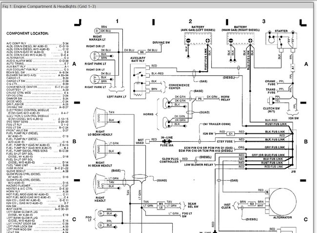
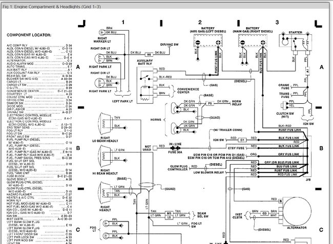
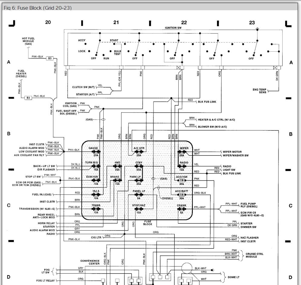
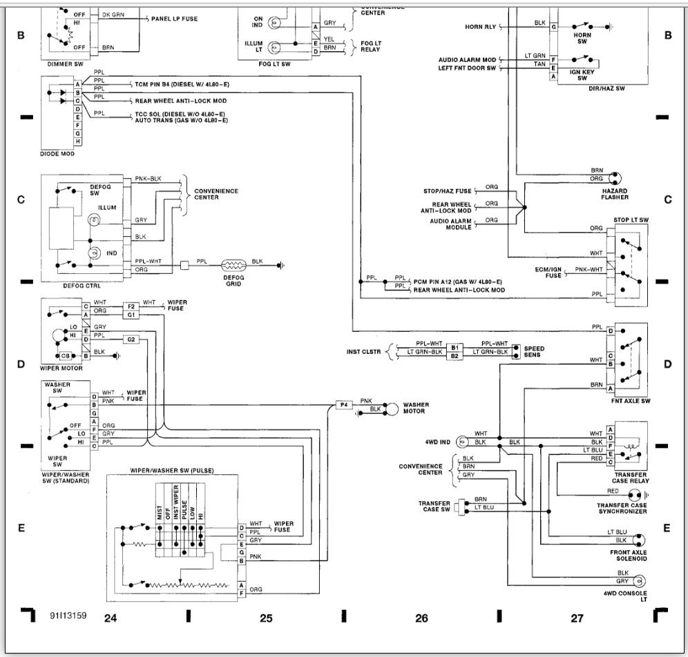
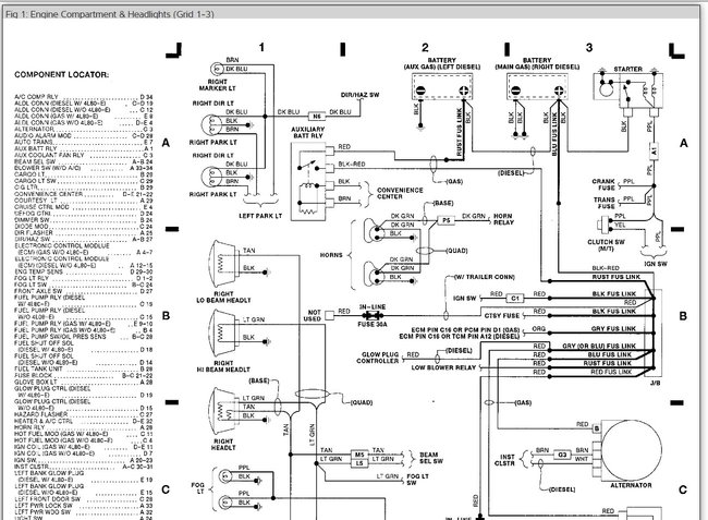
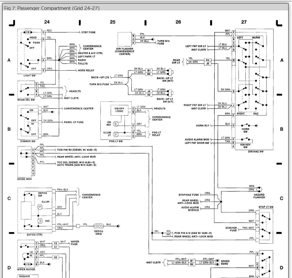
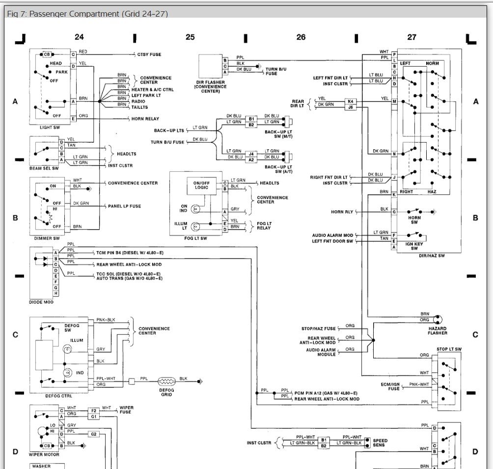
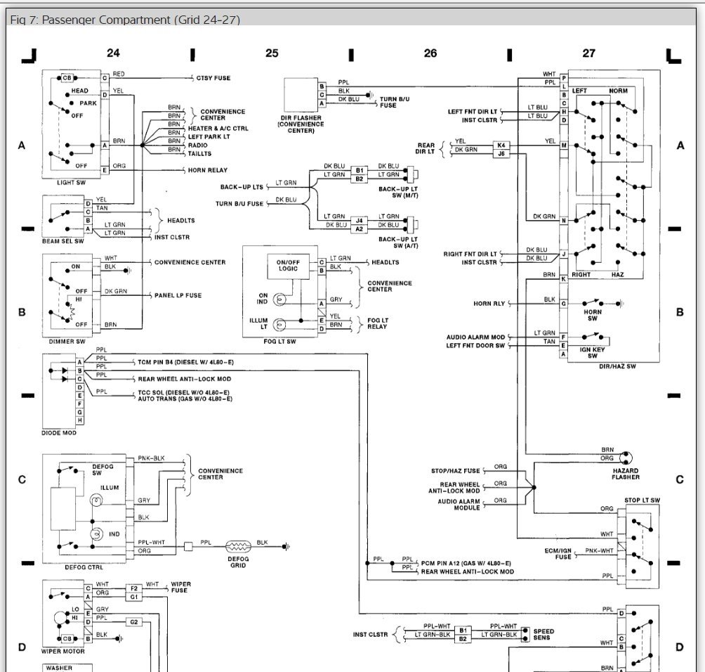
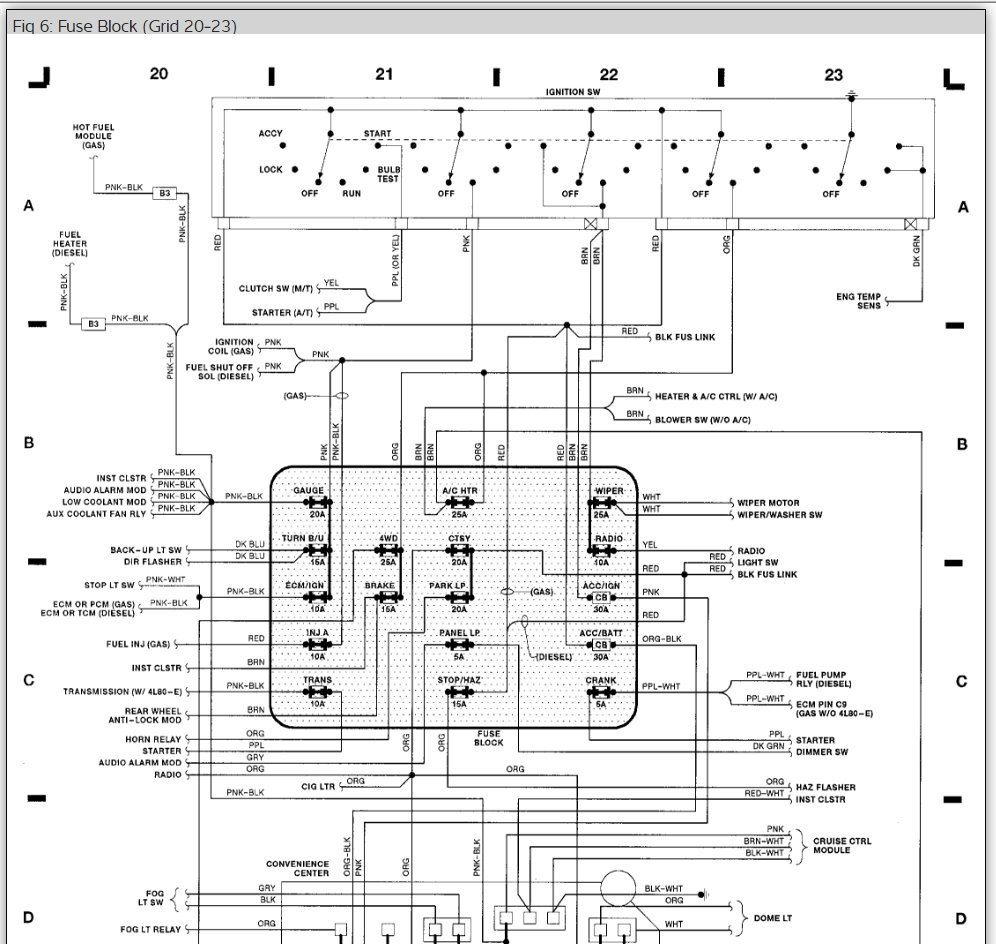
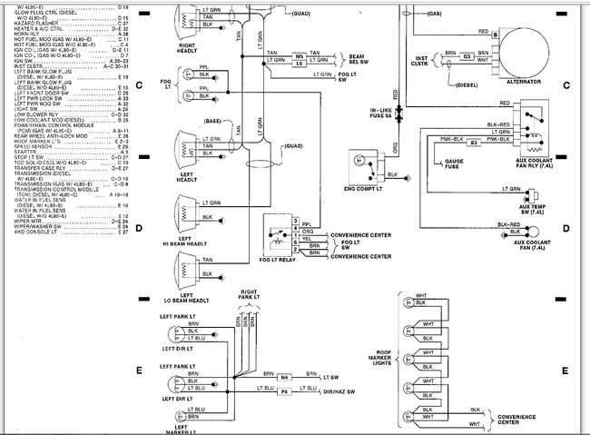
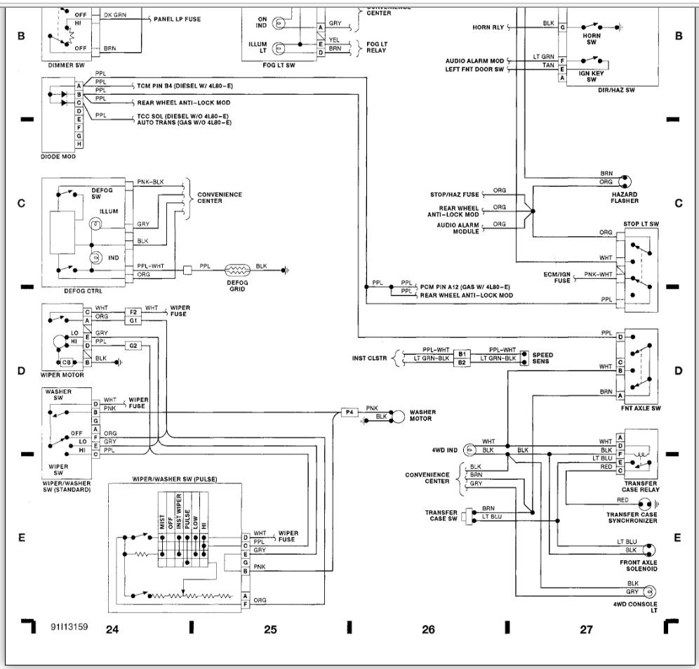
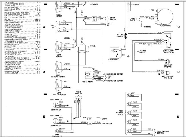
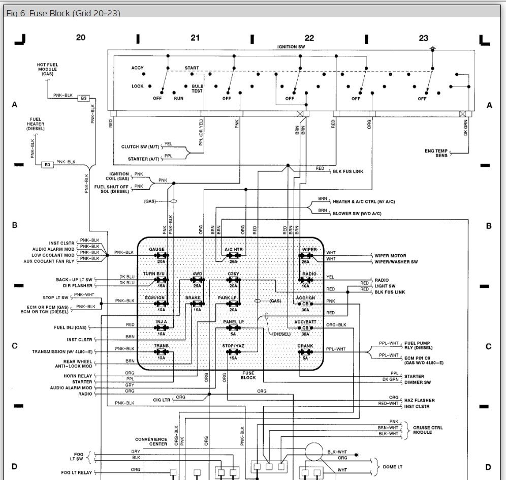
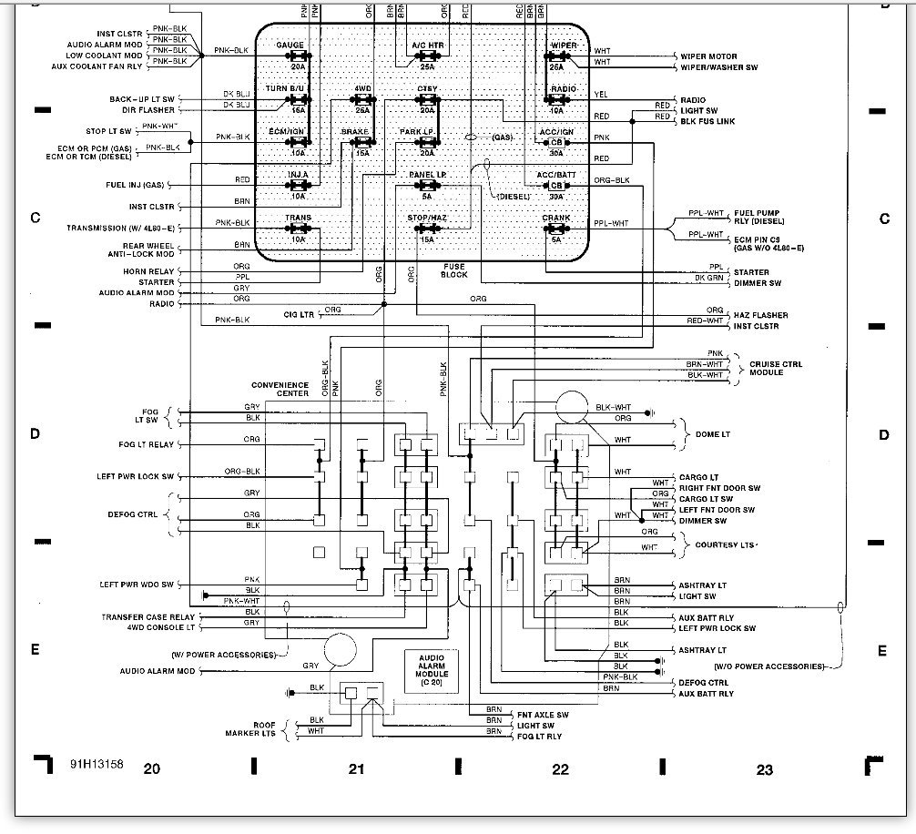
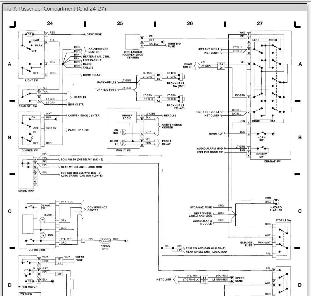
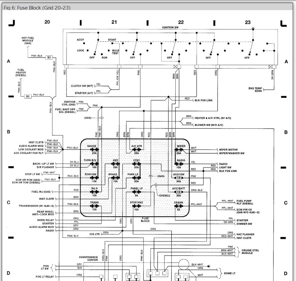
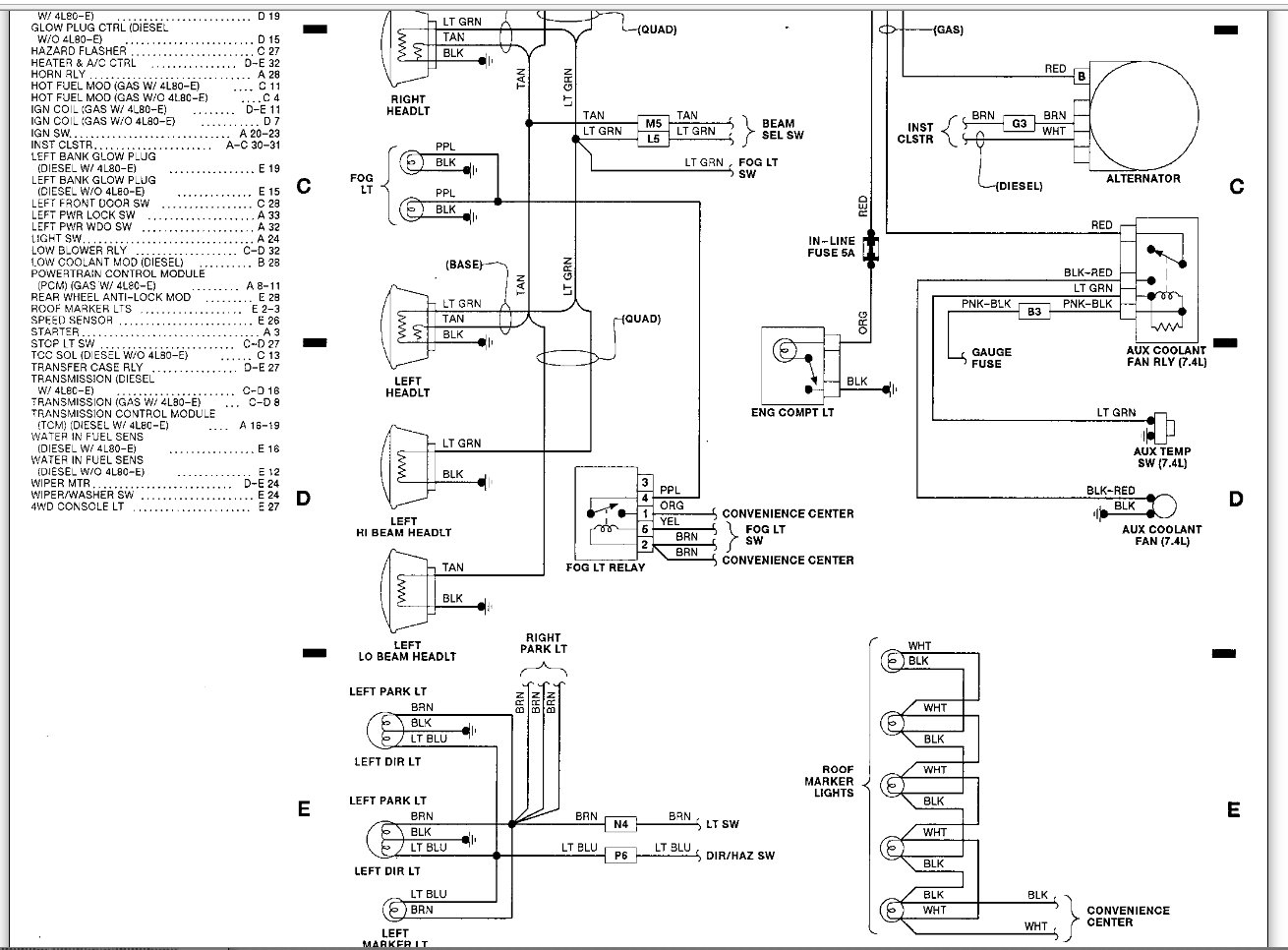
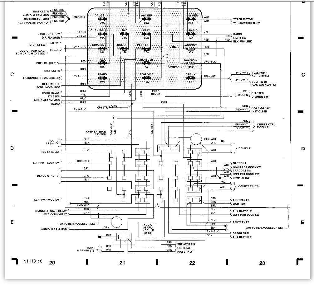
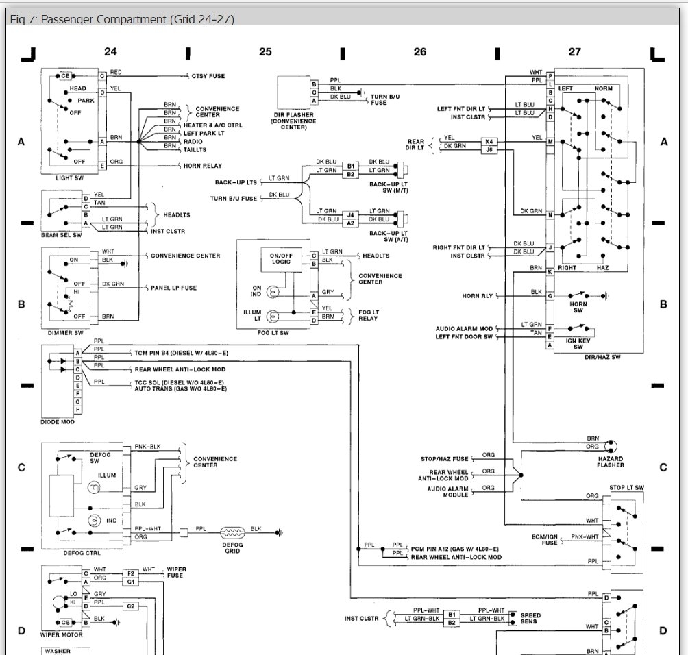
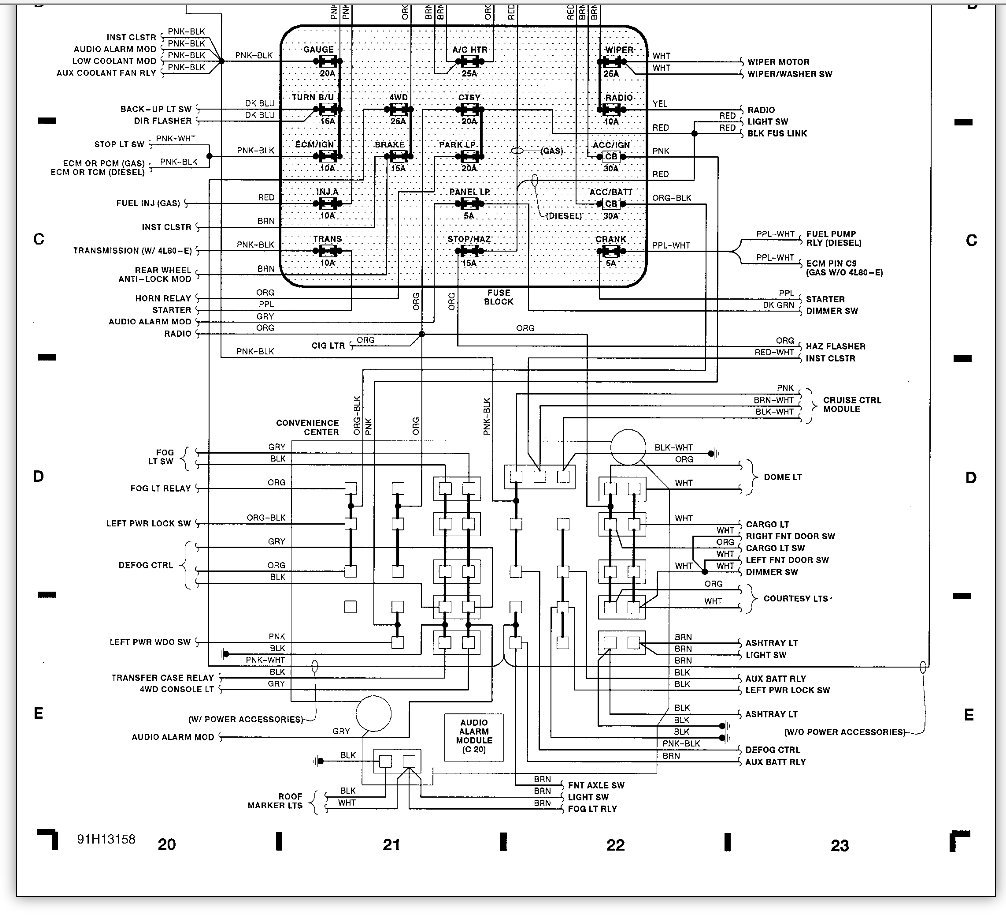
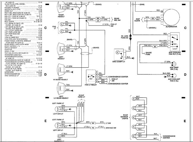
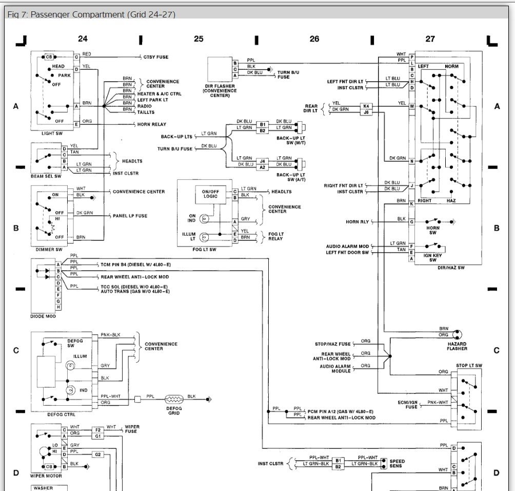
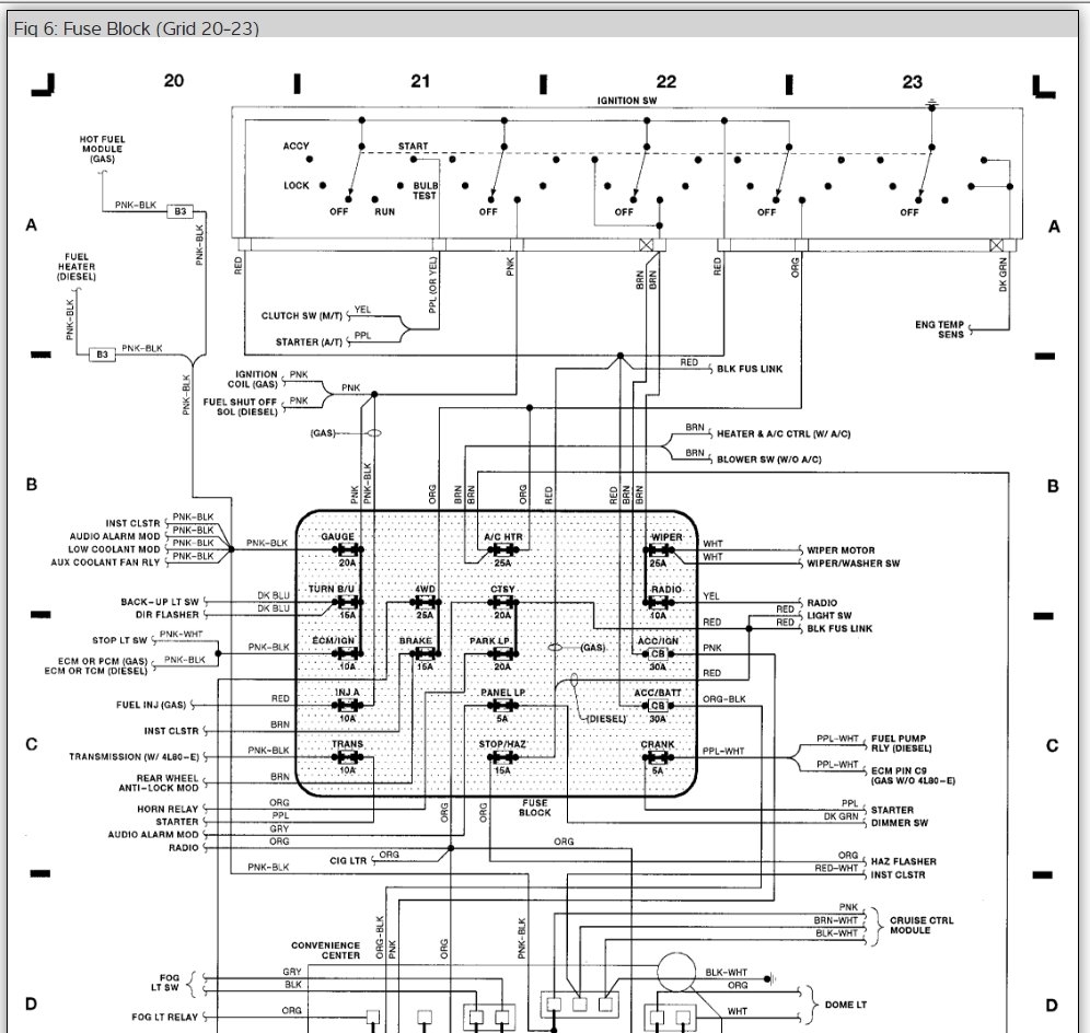
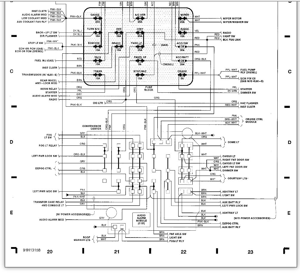
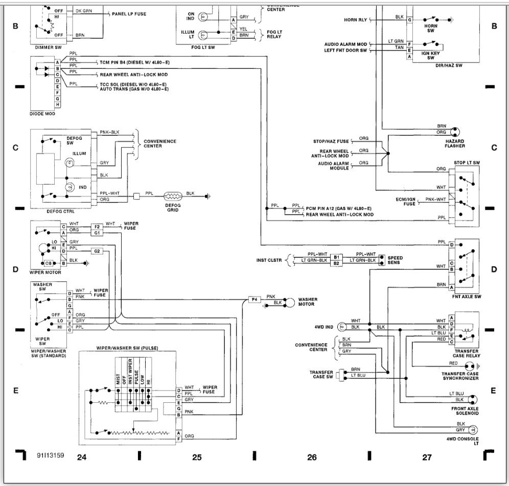
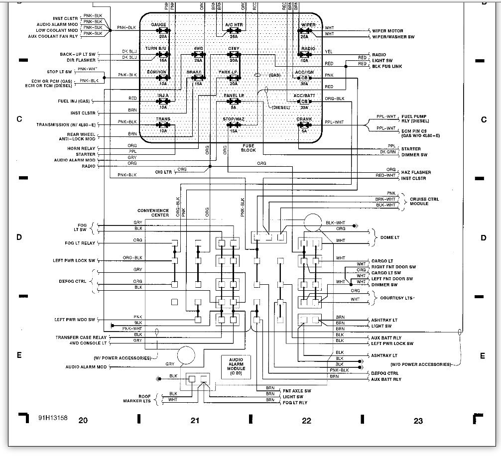
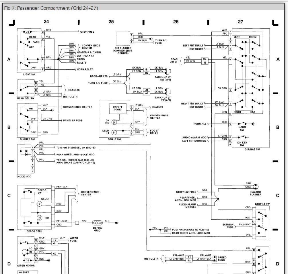
This sounds like you have a problem with the headlight switch. To be sure here is a guide and some headlight wiring diagrams to do some testing. Also recheck the fuses

https://www.2carpros.com/articles/how-to-use-a-test-light-circuit-tester

and

https://www.2carpros.com/articles/how-to-check-a-car-fuse

Run some tests and get back to us so we can continue helping you.

Best, Ken

Was this
answer
helpful?
Yes
No
Saturday, January 28th, 2017 AT 12:23 PM (Merged)

Please login or register to post a reply.