No start, no crank, no power to instrument cluster with key on and fully charged battery

Tiny
LSPADE
  • MEMBER
  • 2006 CHRYSLER TOWN AND COUNTRY
  • 3.8L
  • V6
  • 2WD
  • AUTOMATIC
  • 200,000 MILES
Van will not start and dash lights will not come on with the key turned on. Battery is fully charged. (Obd2 code reader won't link up to computer on my van listed above but linked up fine on my 2002 Grand Caravan) I used a jumper on the starter relay and the starter engaged and cranked the engine over. Could the pcm be bad or could it be another issue that i'm missing. All the fuses and relays checked out okay.
Saturday, April 17th, 2021 AT 1:54 PM

10 Replies

Tiny
JACOBANDNICKOLAS
  • MECHANIC
  • 110,174 POSTS
Hi,

The PCM could be an issue. However, let's start easy. First, I need you to check for power at pin 16 at the DLC connector. Is there power? If not, check fuse 7 in the underhood power distribution box. (Integrated power module).

Note: When checking fuse 7, make sure there is power to it. The totally integrated power modules (TIPM) are known to have issues with the connector pins. Here is a link you may find helpful:

https://www.2carpros.com/articles/how-to-check-a-car-fuse

If we have power, then we need to confirm ground at the DLC. Pin 4 should be ground. Confirm there is continuity to ground.

See pic 1 and 2 below. That is the wiring schematic for the DLC. Note: I had to cut the pic in half to make it readable. However, I did overlap them so you can follow from one to the next.

I need you to check something else for me. Are any electronics working? If so, is it only the electronics controlled by the ignition key that seem to have failed?

Here is a link you may find helpful:

https://www.2carpros.com/articles/how-to-check-wiring

Let me know what you find. Also, let me know as much as you can that could help me with a diagnosis.

Take care,

Joe

See pics below.

Was this
answer
helpful?
Yes
No
Saturday, April 17th, 2021 AT 8:39 PM
Tiny
LSPADE
  • MEMBER
  • 7 POSTS
The headlights work and the interior lights work but that's about it. The radio light comes on with the key but instrument cluster lights do not come on. I'll be checking fuse #7 and #16 in the morning. I will also test each fuse again as illustrated in the link you sent me. I'll let you know what I find out. Thanks for the info.
Was this
answer
helpful?
Yes
No
+2
Friday, April 23rd, 2021 AT 11:18 PM
Tiny
LSPADE
  • MEMBER
  • 7 POSTS
Fuse #7 checked out okay; pin #16 had power on it, 12 volts. But could not get continuity on #4 pin. I am going to start checking relays with multimeter then fusible links. I rechecked the fuses and again they checked out okay. Also the radio light comes on and the clock works, the heater fan works, the power door locks work, the power sliding doors both work and the power liftgate works. The key alarm bell works when you insert the key. I'm wondering if the security system is malfunctioning.
Was this
answer
helpful?
Yes
No
-1
Saturday, April 24th, 2021 AT 5:31 PM
Tiny
JACOBANDNICKOLAS
  • MECHANIC
  • 110,174 POSTS
Hi,

Pin 4 is the ground. Without that, it won't work. Check it with both the key on and off. If there is no continuity to ground, try running a new ground wire to see if that makes things work.

I just ran through the wiring schematics. The DLC ground is referred to as G300. It is located at the left B pillar. There are a number of components that use G300 for a ground location. Most of the things you mentioned as working ground at G300. So, if you have no continuity to ground at pin 4, then chances are the wire is broken at some point. It doesn't go through the PCM. It goes straight to ground.

If you look at pic 1 below, I simply showed the DLC ground. There are several pages of schematics with different components all grounding at this point.

I added pic 2 to help you locate the "B" pillar. I wasn't sure if you knew what it was. Most people don't.

Let me know. Again, recheck continuity. If there is none, try running a separate ground for the DLC to see if it works.

I will watch for your reply.

Joe

See pics below.
Was this
answer
helpful?
Yes
No
+1
Saturday, April 24th, 2021 AT 8:05 PM
Tiny
LSPADE
  • MEMBER
  • 7 POSTS
I rechecked pins #4 and 5 for continuity. This time I removed the OBDII link up from its fastener under the dash and was able to get continuity on both pins with ignition switch off then with the key on. So far, I have checked all fuses with test lamp on both sides of the fuses. Test lamp lit up with no problems. I used my multimeter to check voltage, ohms and continuity. I also checked pins #30 and #87 to verify relays were good. All relays checked out okay. Lastly I ran a ground from the battery ground to pins #4and #5. There was no change. Ie no crank no start, OBDII still reading linking error. This van really has me stumped. The instrument cluster is completely dead with no lights coming on and no gauges working;The overhead lights and console lights up. Door lock switch locks the doors but will not unlock them the radio lights up with key on but will not play. Lastly, co crank no start. Could this be a bad ignition switch or a bad PCM. One last thing. When I turn the ignition to start position, the relay does click but no starter engagement. I remove the relay and use a jumper across #30 and #87 pins and the starter engages. The van was running fine. Drove it home and on the way home the radio quit working got home shut it off replaced fuse for the radio next morning started it up. It started then shut off and would not start back. After several attempts to start it, it got to a point where it is now. No crank no start no power to instrument cluster.
Was this
answer
helpful?
Yes
No
-1
Tuesday, April 27th, 2021 AT 2:35 PM
Tiny
JACOBANDNICKOLAS
  • MECHANIC
  • 110,174 POSTS
Hi,

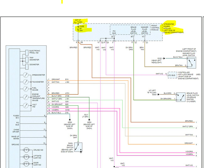
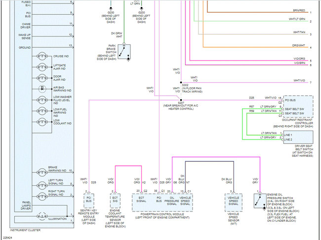
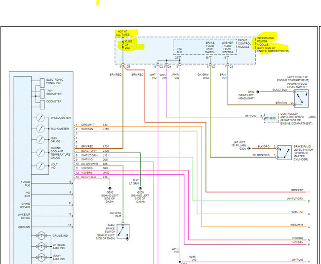
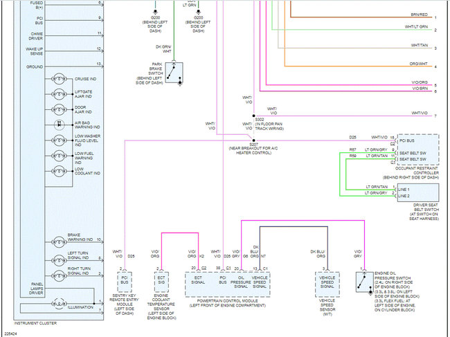
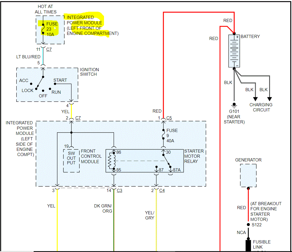
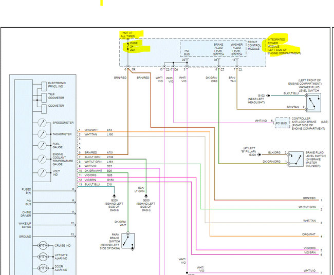
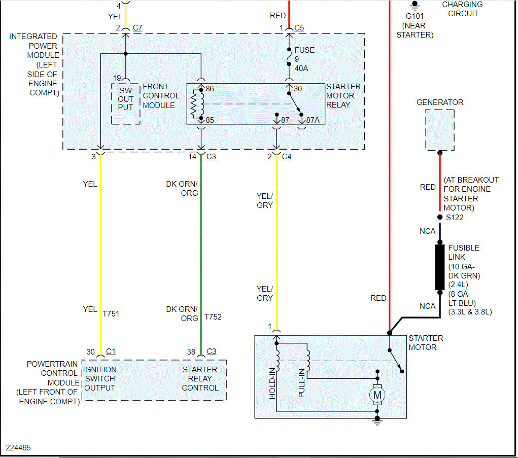
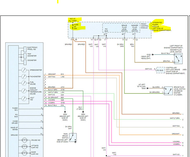
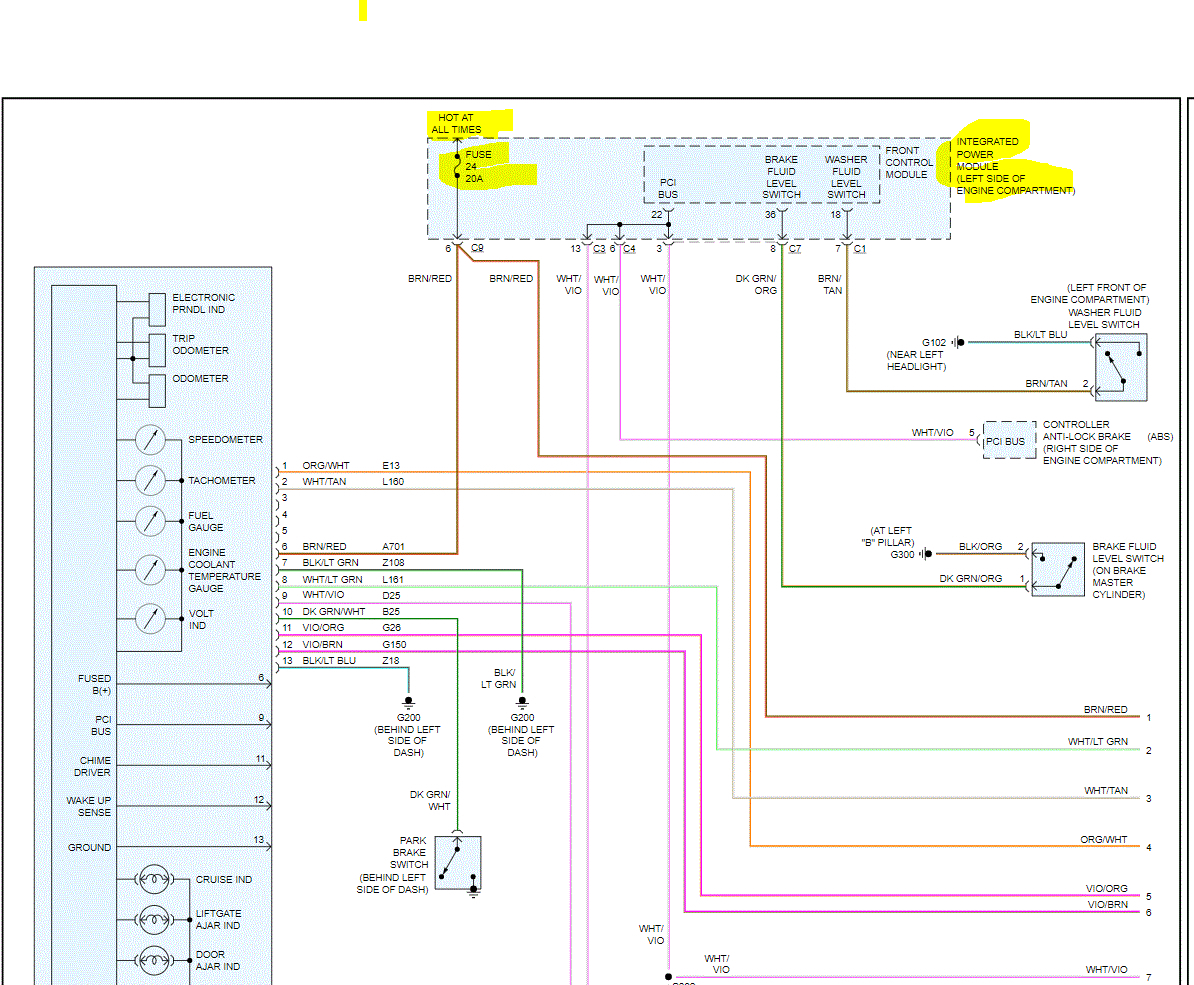
I may have an idea where this is sending us. First, the first 4 pics below are the entire wiring schematic for the instrument panel. I highlighted a fuse. Confirm it is good and getting power as well.

Pics 5 and 6 are the starting system. Note that it is fuse 24 and the one for the cluster is 23.

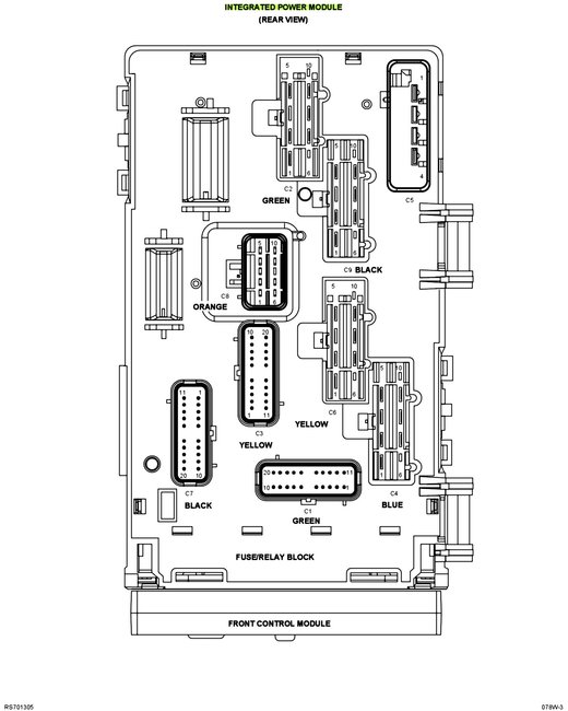
If the fuses are good, move the wiring around under the integrated power module (TIPM) to see if it changes anything. If it doesn't then we need to check for power at the module. I have a feeling we have problems with the pins at the connectors. It isn't uncommon for them to break or corrode.

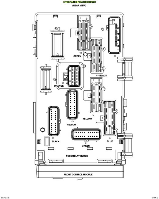
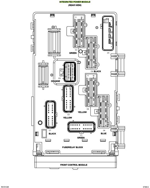
The last pic I attached shows the back of the TIPM and identifies each connector. You will need to check C-7 and C-9.

Let me know what you find.

Joe
Was this
answer
helpful?
Yes
No
Tuesday, April 27th, 2021 AT 7:49 PM
Tiny
LSPADE
  • MEMBER
  • 7 POSTS
I rechecked fuses #24 and #23 they checked out ok. I then checked all connectors at bottom of TIPM and moved them around especially C-7 and C-9 I then unplugged and inspected each connector, no issues from visual observation was noted. It rained most of the day here and I didn't inspect the pcm I did check it a few days ago and didn't see any problems at the connectors but I didnt check the wiring for problems with a multimeter or a test lamp. I did notice that with the key on in the assessory position none of the assessories work. But in the run position, the heater fan, the sound system ie radio illuminates but wont play; the clock works the DVD changer attempts to work, the rear windshield wiper works The headlights, taillights, brake lights turn signals, emergency flashers and interior lights all work, however the front windshield wipers wont work. Then when I turn the switch to the start position, and attempt to start the van all the assessorie lights listed above, go out I can hear the starter relay clicking when I attempt to start the engine but nothing happens. Lastly I do hear the fuel pump engage when the key is on in the run position. It is supposed to be sunny tomorrow so I will recheck everything again.
Was this
answer
helpful?
Yes
No
Friday, April 30th, 2021 AT 12:48 AM
Tiny
LSPADE
  • MEMBER
  • 7 POSTS
Update I purchased a plug-N-play ECU/PCM It worked to start my van. However, my instrument cluster, radio front windshield wipers still don't work I can't understand how I still have most of the same issued because the van now runs. However when I start it up, it runs smoothly but after about 15 seconds it starts idling roughly and has a miss in the engine. I checked spark from the coil with a spark analyzer. All cylinders are firing still don't know what to do next.
Was this
answer
helpful?
Yes
No
-1
Friday, April 30th, 2021 AT 2:24 PM
Tiny
LSPADE
  • MEMBER
  • 7 POSTS
Additionally my code reader is still reading linking error but it did analyze the engine enough that it set a code for oxygen sensor bank #1.
Was this
answer
helpful?
Yes
No
Friday, April 30th, 2021 AT 2:28 PM
Tiny
JACOBANDNICKOLAS
  • MECHANIC
  • 110,174 POSTS
Hi,

Do me a favor. In the power distribution box under the hood is the front control module. Check to see if there is a connection issue.

If you look at pic 1, it shows the part I am referring to.

Let me know.

Joe
Was this
answer
helpful?
Yes
No
Friday, April 30th, 2021 AT 8:11 PM

Please login or register to post a reply.

Related Engine Not Cranking Over Content

Car Not Cranking? Try This | EASY
VIDEO