Sunday, December 8th, 2019 AT 7:45 PM
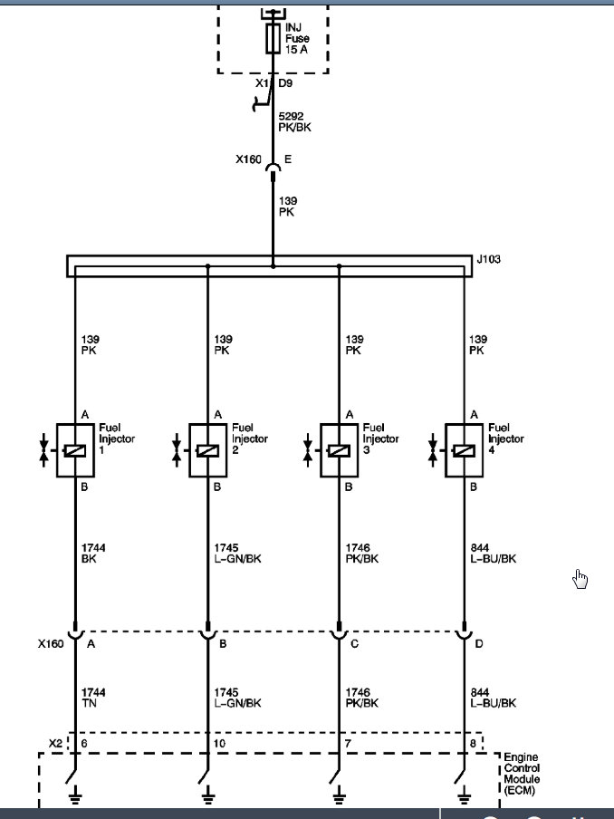
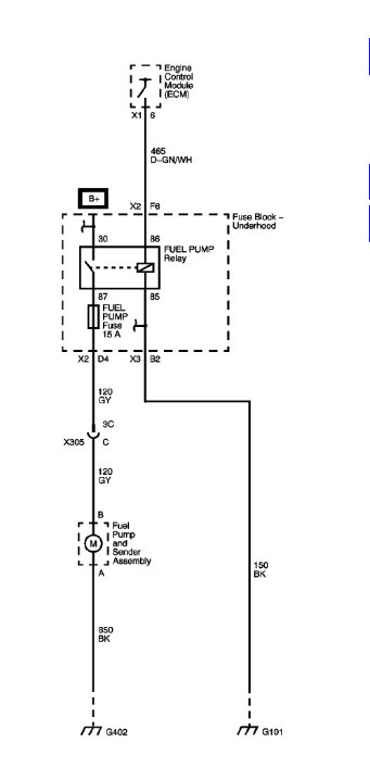
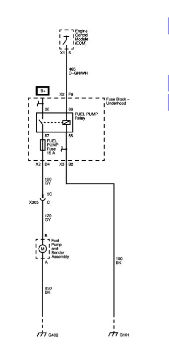
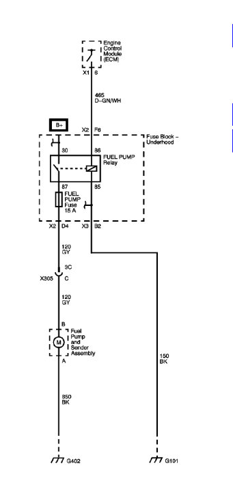
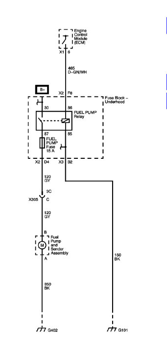
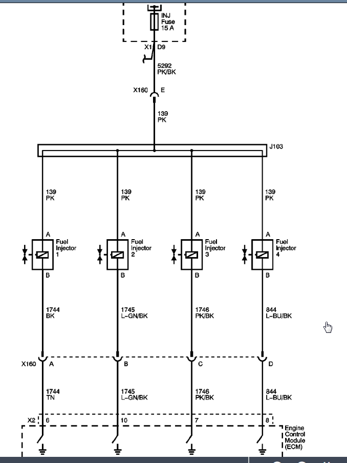
I'm only getting 2.4V at the fuel pump relay, coming from the ECM. Would this indicate that the ECM needs replaced? Also, where is the ground G402 located? Everything I found, says it's located near LR speaker. I can't find it anywhere. Thanks in advance!









