No crank/start

Tiny
MICHAEL NEUROTH
  • MEMBER
  • 2013 LINCOLN MKX
  • 3.7L
  • 6 CYL
  • 2WD
  • AUTOMATIC
  • 103,100 MILES
I've replaced the run/start relay. Tried jump starter with a screwdriver and it just clicks. Any suggestions?
Thursday, December 3rd, 2020 AT 12:33 PM

4 Replies

Tiny
BMDOUBLE
  • MECHANIC
  • 1,139 POSTS
If you jump the starter at the starter and it just clicks, you either have a bad starter or a locked up engine. Have you tried turning it over by hand? Also, these vehicles have issues with loose pin fit at the relay box.
Was this
answer
helpful?
Yes
No
Thursday, December 3rd, 2020 AT 1:50 PM
Tiny
MICHAEL NEUROTH
  • MEMBER
  • 2 POSTS
Thank goodness no locked up motor. Checked pins at junction box all okay. Charging battery now to see if it's the starter.
Was this
answer
helpful?
Yes
No
Thursday, December 3rd, 2020 AT 3:02 PM
Tiny
BMDOUBLE
  • MECHANIC
  • 1,139 POSTS
Good deal! Let us know what you find, or if you need more help.
Was this
answer
helpful?
Yes
No
Thursday, December 3rd, 2020 AT 3:16 PM
Tiny
ASEMASTER6371
  • MECHANIC
  • 52,796 POSTS
Good evening,

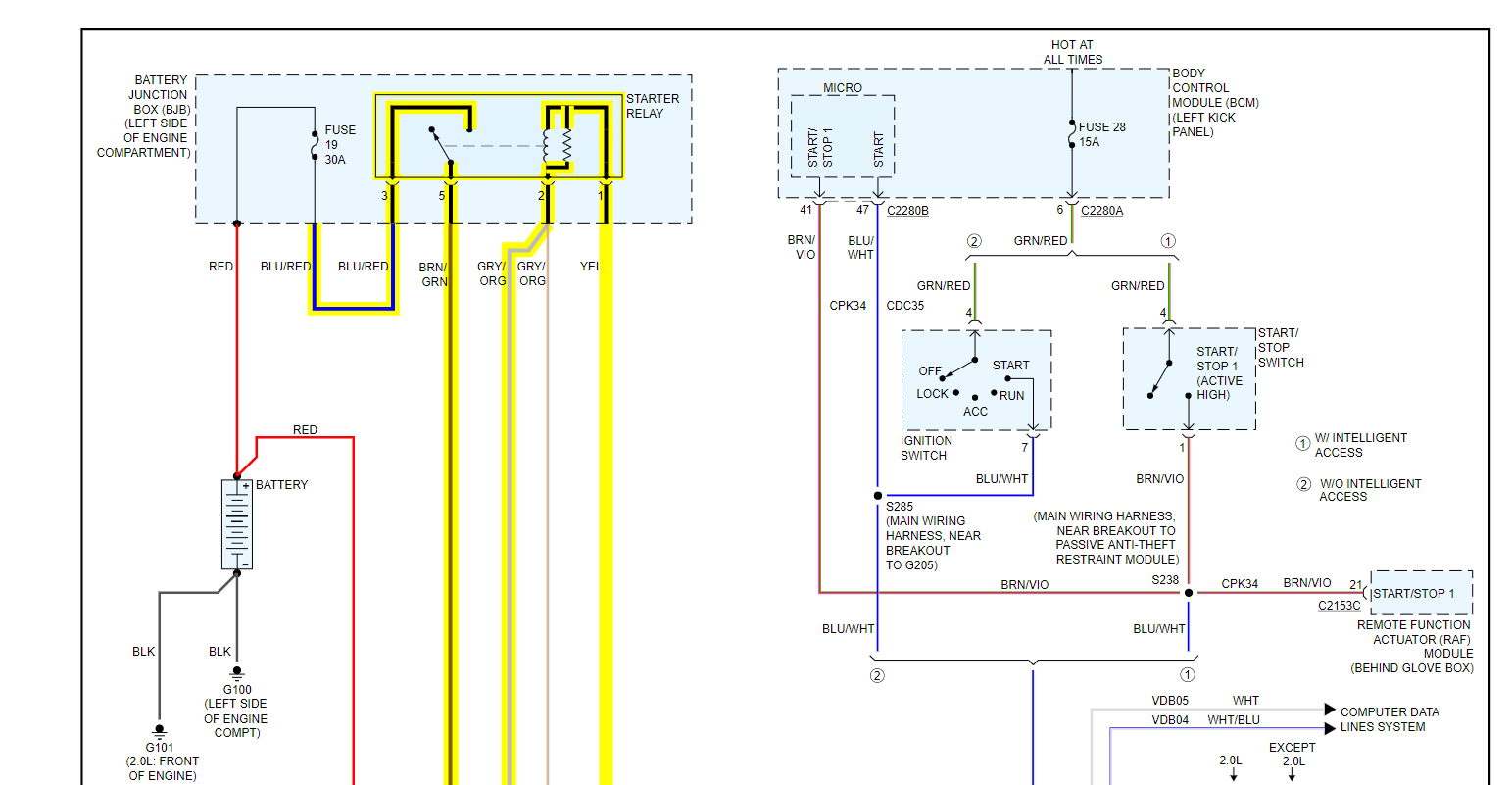
I attached a wiring diagram of the starting system for you to view.

https://www.2carpros.com/articles/starter-not-working-repair

https://www.2carpros.com/articles/how-to-check-wiring

You will need to test for voltage to the starter solenoid with the key in the park position. If you have no power, then we need to do testing at the relay.

https://www.2carpros.com/articles/how-to-check-an-electrical-relay-and-wiring-control-circuit

I would also load test the battery and make sure you have 12.6 volts.

https://www.2carpros.com/articles/car-battery-load-test

Roy

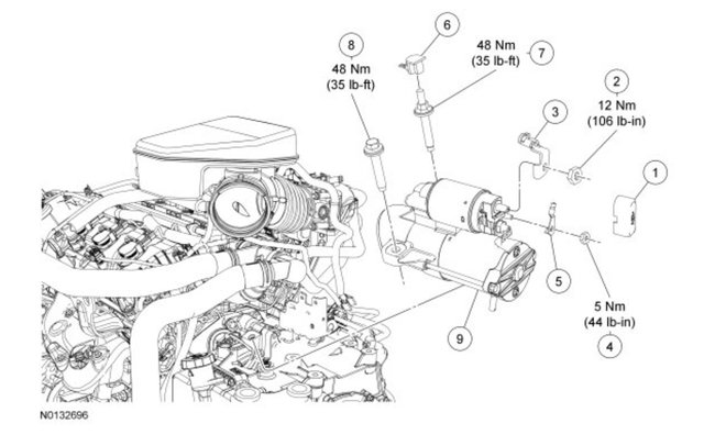
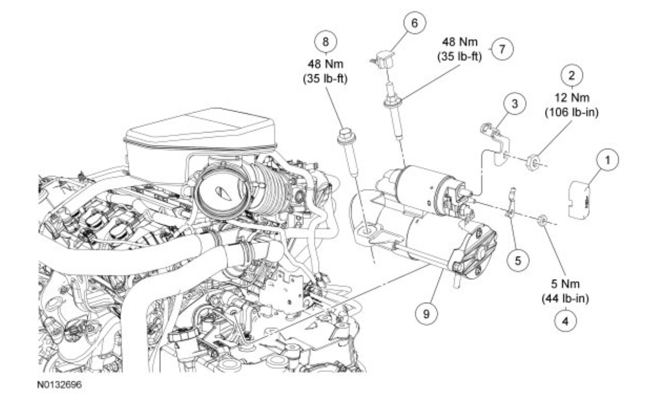
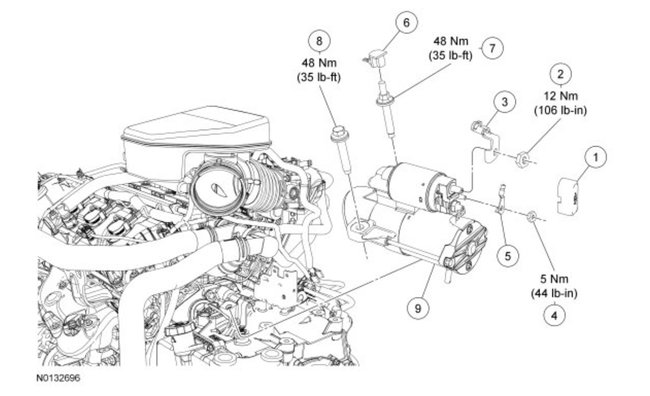
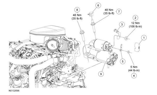
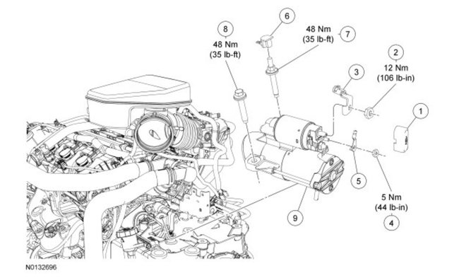
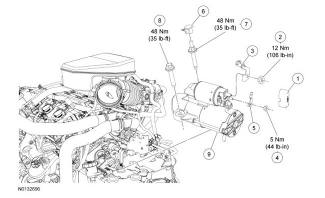
Removal and Installation

WARNING: Always disconnect the battery ground cable at the battery before disconnecting the starter motor battery terminal lead. If a tool is shorted at the starter motor battery terminal, the tool can quickly heat enough to cause a skin burn. Failure to follow this instruction may result in serious personal injury.

1. Disconnect the battery ground cable.

2. Remove the Air Cleaner (ACL).

3. Disconnect the transmission shift cable and adjustment lock from the transmission manual control lever.

4. Disconnect the transmission shift cable rotating slide snap and position aside the transmission cable.

5. Remove the nut and the transmission manual control lever.

To install, tighten to 18 Nm (159 lb-in).

6. Remove the starter motor terminal cover.

7. Remove the starter motor solenoid battery cable nut.

To install, tighten to 12 Nm (106 lb-in).

8. Remove the starter motor solenoid wire nut.

To install, tighten to 5 Nm (44 lb-in).

9. Detach the wiring harness retainer from the starter motor stud bolt and position the wiring harness aside.

10. Remove the starter motor bolt, stud bolt and the starter.

To install, tighten to 48 Nm (35 lb-ft).

11. To install, reverse the removal procedure.
Was this
answer
helpful?
Yes
No
Friday, December 4th, 2020 AT 2:46 PM

Please login or register to post a reply.