No communication between pcm and fuel pump relay

Tiny
CARGUYDAVE
  • MEMBER
  • 2001 CHRYSLER SEBRING
  • 3.0L
  • V6
  • 2WD
  • MANUAL
  • 95,000 MILES
Trying to find a pin out diagram of pcm
Tuesday, December 2nd, 2025 AT 9:26 PM

9 Replies

Tiny
STEVE W.
  • MECHANIC
  • 15,695 POSTS
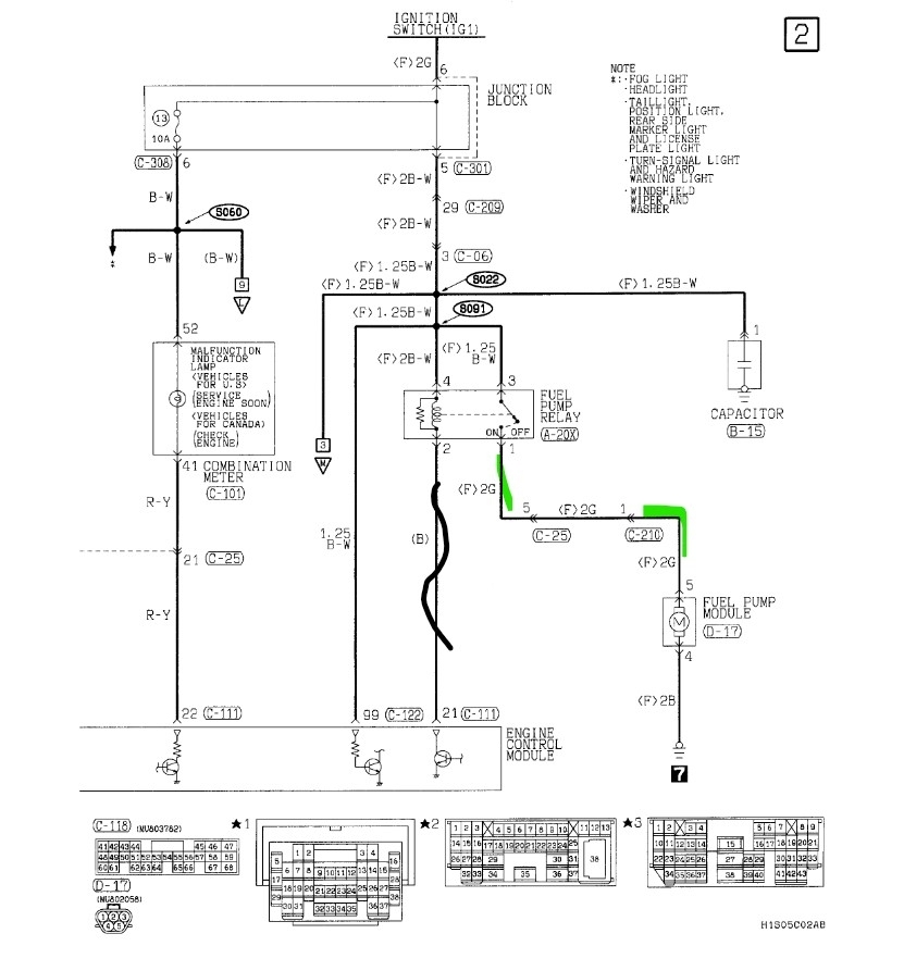
That relay is a simple circuit, thankfully Chrysler just dressed up a Mitsubishi Eclipse for that car. As such you don't have the temperamental Chrysler electronics. The relay get's power on the two Black/white wires on terminals 3 and 4 Terminal 1 goes to the green wire that powers the fuel pump while terminal 4 goes to a black wire that connects to the ECM in connector C111 pin 21. The ECM grounds that pin to turn on the relay which turns on the pump. The relay is in the engine compartment relay box. With it unplugged there should be battery voltage at 2 terminals, you can check that with a cheap test light like the one shown. Those will be one of the large terminals and one of the smaller ones. Then if you connect the test lamp to power and touch the other small terminal you should get the light to turn on as you turn the key on. If you get no light then go to the ECM and terminal 21 and back probe that with a pin or probe kit and see if you get a light there. If you get a light there with the key on then the black wire to the relay is open. A simple overlay would fix that.
Was this
answer
helpful?
Yes
No
+1
Tuesday, December 2nd, 2025 AT 11:19 PM
Tiny
CARGUYDAVE
  • MEMBER
  • 5 POSTS
Thanks so much for the diagram. It was accurate, and allowed me to test the relay control wire. The wire and terminals were fine. PCM is not sending fuel pump relay the ground command needed. My next question is what information does the computer gather in order to tell the fuel pump to operate? I would expect there to be a fuel pressure sensor, or some type of monitoring device, but don't see one anywhere. I am baffled, and want to make a proper repair, and not wire the pump to run full time. Any advice you could offer would be much appreciated, thanks in advance !
PS fuel pump runs, and engine will start when I ground the fuel pump relay.
Was this
answer
helpful?
Yes
No
Wednesday, December 3rd, 2025 AT 8:52 PM
Tiny
STEVE W.
  • MECHANIC
  • 15,695 POSTS
The pump is turned on by the key and ECM activating the relay. No other inputs on that system other than an oil pressure switch that tells the ECM to shut off the pump, but it only operates once the engine is running, It gets past a set psi and stays there, it also turns off the oil light or feeds the gauge, so if those work it isn't the switch. Almost has to be the ECM. Did you test if terminal 21 on the ECM is actually providing a ground at the ECM connector itself? If it isn't it's likely a bad driver transistor in the ECM itself.
Was this
answer
helpful?
Yes
No
+1
Thursday, December 4th, 2025 AT 1:48 PM
Tiny
CARGUYDAVE
  • MEMBER
  • 5 POSTS
Yes, no ground is being delivered. Must be a problem in the ECM. Upon grounding the relay control wire, car starts and runs. Will have to hunt down replacement ECM. Thanks again for your help with diagnostics. This is a wonderful service for those of us without access to resources such as Shop Key. I want to support your platform through donation via Go fund me, or similar. Thanks!
Was this
answer
helpful?
Yes
No
Thursday, December 4th, 2025 AT 8:43 PM
Tiny
STEVE W.
  • MECHANIC
  • 15,695 POSTS
There was a donate button on the site somewhere. I don't generally go to that part of the site though.
If you want to get your ECU repaired there is a gent named Maic Salazar who does a lot of ECU and other module repairs and he also knows others who repair the ones he doesn't do.
Give him a call and see if he can help you. If you opt for used, be sure that you get the part for the Sebring Coupe, it is not close to the convertible or sedan they sold as Sebring cars. Yours is a Mitsubishi that they dressed up in Chrysler badges while the other 2 are actually fancy K-Cars...
The base part number is MD368988 but the programming depends on the options, OH and FYI you have to use a OE scan tool to reprogram that unit if you go used or new, the aftermarket ones won't write the data correctly thanks to the way the coding was done.
https://www.maicsalazardiagnostics.com/
Was this
answer
helpful?
Yes
No
+1
Thursday, December 4th, 2025 AT 9:55 PM
Tiny
CARGUYDAVE
  • MEMBER
  • 5 POSTS
Sorry to bother you again. I was considering a work around, and would welcome your thoughts.I am wondering if I could access another circuit ( via relay, of course ) that is powered or grounded only while engine is running? This, coupled with a timed switch for start up, would allow me to effectively "hotwire" the pump, but also turn it off if the engine stops. I'm thinking along the lines of oil pressure switch circuit. Any thoughts? Please don't laugh I know this would be unorthodox, but I really don't want to go down the road of finding a computer for a 25 year old car that is such an odd duck to begin with. Thanks for whatever thoughts or information you can share. Just to let you know, the experience of using this site, and the simple, honest conversation, has been awesome!
Thanks again, carguy Dave
Was this
answer
helpful?
Yes
No
Friday, December 5th, 2025 AT 8:42 AM
Tiny
STEVE W.
  • MECHANIC
  • 15,695 POSTS
An easier way would be to find a switched power feed. Then use it to switch a relay that would then ground the existing relay. All of that could be done right at the relay box, and it has been a repair for a bad relay in a TIPM in other Chryslers for many years. You would pull the existing relay and add a tap to the leg for pin 2. That wire would then connect to the switched section of the relay you use. The other side of the switched contacts goes to a ground, The ground also gets bridged to one side of the coil in the relay and then the other coil wire would go to the switched power. Like the attached. The 12 volt goes to a switched power, that way the pump turns on and off with the key, the green would go to the green feed on the relay and the other two would connect to a good ground. That would bypass the driver in the ECM. You could even do this at the ECM by tapping the green wire there and not touching the relay in the box, just use the new relay to trigger the original. Would also give you a way to add a kill switch if desired. There are oil pressure switches that could be used but most of them require pressure to close the contacts so the engine would need to crank for a bit to build pressure before it started. If that isn't an issue you could use a Standard PS127 switch. That is a 3 wire oil pressure switch. The center terminal would switch an oil light while the outer two are a normally open switch that closes when it has oil pressure. Now to get around the longer crank you could run another wire, that one would go from a 12 volt feed that was only hot with the key was in start. Like off the starter solenoid. That would turn the relay on instantly and then the oil pressure switch would keep it on. That is basically the way GM ran their fuel pumps for many years.
Was this
answer
helpful?
Yes
No
+1
Friday, December 5th, 2025 AT 3:25 PM
Tiny
CARGUYDAVE
  • MEMBER
  • 5 POSTS
Hmmm, Never thought about the starter solenoid. The combination of that, and oil pressure switch together, should work great. Again, good advice. Many thanks. Hope they take good care of you there. Have a great weekend, Carguy Dave
Was this
answer
helpful?
Yes
No
Friday, December 5th, 2025 AT 10:24 PM
Tiny
STEVE W.
  • MECHANIC
  • 15,695 POSTS
You are welcome.
Was this
answer
helpful?
Yes
No
Saturday, December 6th, 2025 AT 2:51 AM

Please login or register to post a reply.