Turn signal and brake lights are not working?

Tiny
CHIEFAUTOPARTS
  • MEMBER
  • 1988 FORD RANGER
  • 2.9L
  • V6
  • 4WD
  • MANUAL
  • 180,000 MILES
The Hazard flashers do work. Replaced the multi-function switch already checked the fuses as well. Any suggestions or direction of where to go next is greatly appreciated.
Tuesday, July 11th, 2023 AT 4:34 PM

1 Reply

Tiny
JACOBANDNICKOLAS
  • MECHANIC
  • 110,192 POSTS
Hi,

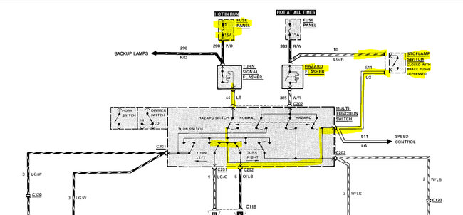
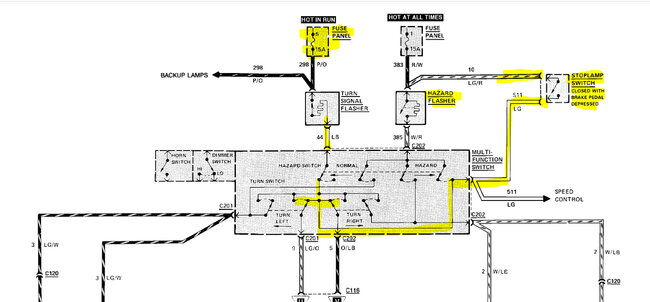
Because of the model year, I wasn't able to find a great wiring schematic, but I did find the original factor schematics. I attached it below for you so that you have a reference.

There are two fuses that aren't making much sense to me right now. One powers the signal flasher and the other is for the hazard lights. I need you to check both fuses. In addition to checking the fuses, make sure there is power present at the fuse site.

Here is a link you may find helpful:

https://www.2carpros.com/articles/how-to-check-a-car-fuse

I'm a bit confused because the brake light switch gets power from the flasher circuit but then runs to the multi-function switch.

In addition to checking the fuses, I need you to check the light green wire with a red tracer at the brake lamp switch for power. It should have battery voltage at all times. If that wire is good, then I need you to depress the brake pedal and see if there is power out from the switch via the light green wire.

Here is a link you may find helpful:

https://www.2carpros.com/articles/how-to-check-wiring

Try this and let me know the results.

Take care,

Joe

See pics below.
Was this
answer
helpful?
Yes
No
Tuesday, July 11th, 2023 AT 8:37 PM

Please login or register to post a reply.