I need the PCM pinpoint

Tiny
ETTIEP
  • MEMBER
  • 2010 FORD ESCAPE
  • 3.0L
  • V6
  • AUTOMATIC
  • 100 MILES
I need to check kapwr.
Sunday, March 22nd, 2020 AT 9:33 AM

2 Replies

Tiny
KASEKENNY
  • MECHANIC
  • 18,907 POSTS
I am suspecting that we are calling this pinpoint test different things. Do you have a code or the alphabetical callout for it? Ford lists their tests as A, B, C, etc up to QC on some vehicles.

3.01 is just not a pinpoint test that I am familiar with. If you give me a little more detail on what you are working on or the issue/code that you have I will be able to get the test you are looking for. Thanks
Was this
answer
helpful?
Yes
No
-1
Sunday, March 22nd, 2020 AT 10:11 AM
Tiny
ASEMASTER6371
  • MECHANIC
  • 52,796 POSTS
Good afternoon,

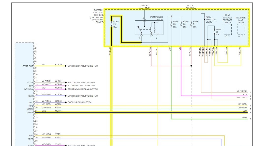
I attached the diagram. There are 3 powers for the ECM. I highlighted them for you.

https://www.2carpros.com/articles/how-to-check-wiring

What is the issue?

Roy
Was this
answer
helpful?
Yes
No
Sunday, March 22nd, 2020 AT 10:19 AM

Please login or register to post a reply.