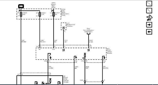
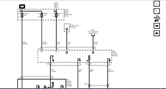
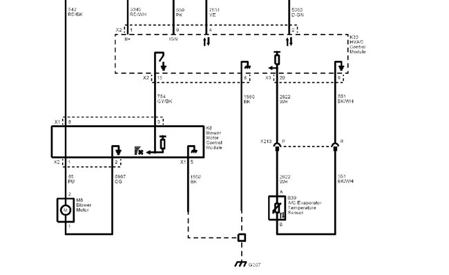
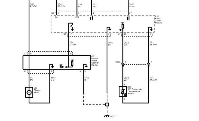
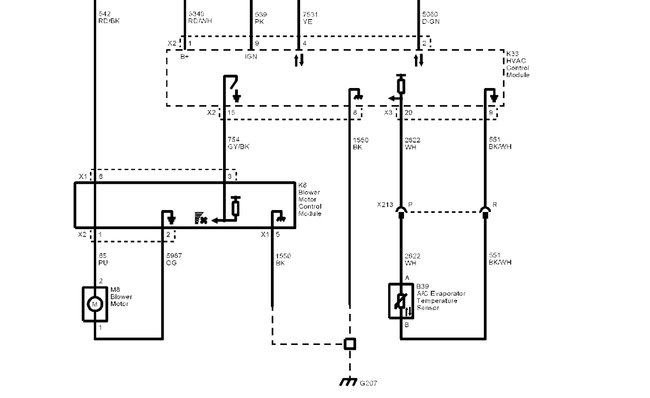
Wednesday, January 29th, 2020 AT 3:13 PM
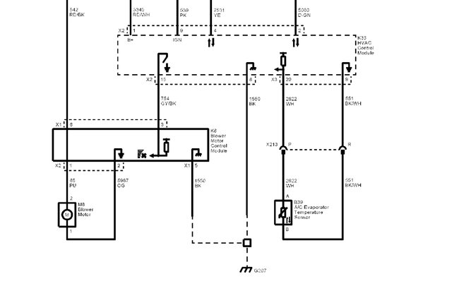
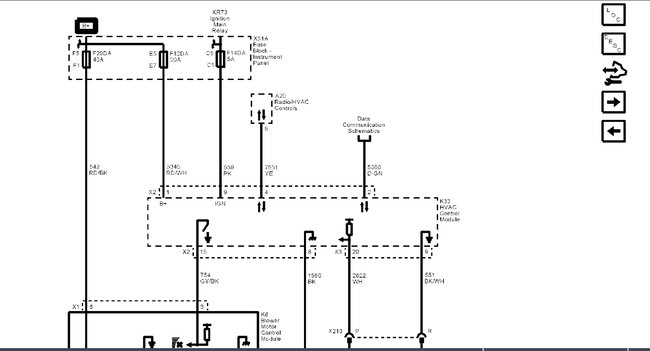
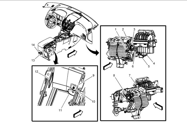
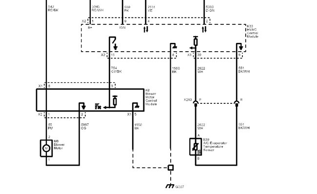
Air was not blowing could barely feel anything coming from vents even on the high setting replaced the blower motor resistor two weeks ago and everything was working great. Today it has just stopped blowing all together could this be the blower motor?













