At night my headlights do not come on automatically or work by the light switch

Tiny
DJ LOPICCOLO
  • MEMBER
  • 2004 CHEVROLET S-10
  • 4.3L
  • V6
  • 4WD
  • AUTOMATIC
  • 180,000 MILES
My headlights and all running lights come on automatically and all exterior lights work perfectly during the day. At night my headlights do not come on automatically or work by the light switch, but all running lights, taillights and brake lights work perfect automatically or with the switch. I have cleaned the senor on the dash and checked what fuses I knew of and all seems fine. Please help, I do not like driving my wife's Jeep, lol.
Monday, July 9th, 2018 AT 7:28 PM

27 Replies

Tiny
DANNY L
  • MECHANIC
  • 5,648 POSTS
Hello,I am Danny.

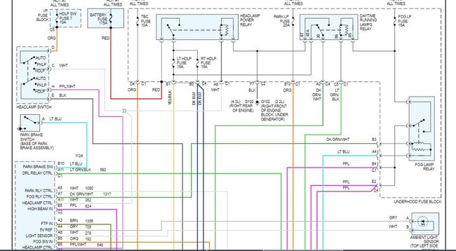
I would start by checking the headlight and daytime running lamp relays. I have attached a testing link and a picture of the under hood relay location (circled in red). Be sure to check connections for being burnt/melted. Hope this helps and feel free to ask any further questions. Thanks for using 2CarPros.
Danny-

https://www.2carpros.com/articles/how-to-check-an-electrical-relay-and-wiring-control-circuit
Was this
answer
helpful?
Yes
No
+1
Tuesday, July 10th, 2018 AT 3:09 PM
Tiny
NETDUMMY
  • MEMBER
  • 2 POSTS
  • 2003 CHEVROLET S-10
  • 4.3L
  • V6
  • 4WD
  • AUTOMATIC
  • 40,000 MILES
It seams the full size trucks headlight wiring is different from the S10. I tried using lnm's harness relay but with no success only the passenger side would stay on and both the low and high beams on the driver's side would be off. What connection with a relay would I have to do achieve to have both low beam with the high beams on when I switched to high beams is it possible to do that on the S10 2003?

Thanks again.
Netdummy
Was this
answer
helpful?
Yes
No
Saturday, March 13th, 2021 AT 12:36 PM (Merged)
Tiny
ASEMASTER6371
  • MECHANIC
  • 52,796 POSTS
Good morning,

You would need a relay on both headlights to run both the low and high beams at the same time.You would need a fused wire to terminal 30. Pin 87 goes to the low beam wire. You would need to the high beam wire to pin 85.Ground pin 86. You can get a standard 4 pin relay at any parts store. Make sure the terminals are marked.

https://www.2carpros.com/articles/how-to-check-an-electrical-relay-and-wiring-control-circuit

Check out the diagrams (Below). Please let us know what you find.
Was this
answer
helpful?
Yes
No
Saturday, March 13th, 2021 AT 12:36 PM (Merged)
Tiny
KARYNPULSIPHER
  • MEMBER
  • 2 POSTS
  • 2003 CHEVROLET S-10
  • 2.1L
  • 4 CYL
  • 2WD
  • MANUAL
  • 86,000 MILES
When I left work tonight I had no lights. The orange running lights work and my bright lights work. But no none of the headlights work. They were working 15 minutes ago when I went to work but now they don't
Was this
answer
helpful?
Yes
No
+1
Saturday, March 13th, 2021 AT 12:36 PM (Merged)
Tiny
JOHNNYT73
  • MECHANIC
  • 924 POSTS
I would suspect a bad multifunction switch.
Was this
answer
helpful?
Yes
No
-1
Saturday, March 13th, 2021 AT 12:36 PM (Merged)
Tiny
KARYNPULSIPHER
  • MEMBER
  • 2 POSTS
I fixed it. I was the fuses. Thank you anyway
Was this
answer
helpful?
Yes
No
-2
Saturday, March 13th, 2021 AT 12:36 PM (Merged)
Tiny
JOHNNYT73
  • MECHANIC
  • 924 POSTS
Awesome!
Was this
answer
helpful?
Yes
No
Saturday, March 13th, 2021 AT 12:36 PM (Merged)
Tiny
FREEFLO
  • MEMBER
  • 2 POSTS
  • 2000 CHEVROLET S-10
  • 6 CYL
  • 2WD
  • MANUAL
  • 114,000 MILES
Headlights stopped working. Doesn't work auto or manually. A few days ago, they came on while driving but went off again shortly after. Fuses are ok and tried another electronic flasher with no luck. Corner, signal and fog lights work fine. Help?
Was this
answer
helpful?
Yes
No
Saturday, March 13th, 2021 AT 12:39 PM (Merged)
Tiny
JDL
  • MECHANIC
  • 16,098 POSTS
Hello,

There is a headlight power relay that needs to be checked here is a guide to help walk you through the steps with the relay location below and the headlight wiring diagrams so you can see how the system works.

https://www.2carpros.com/articles/how-to-check-an-electrical-relay-and-wiring-control-circuit

Check out the diagrams (Below). Please let us know what happens.
Was this
answer
helpful?
Yes
No
+4
Saturday, March 13th, 2021 AT 12:39 PM (Merged)
Tiny
FORD MAN
  • MEMBER
  • 115 POSTS
If what JDL suggested isn't the problem. Ya might need new connectors on the back of those headlights. This seems to be a problem with S10's no matter what year they were made.

Ford Man in Michigan
Was this
answer
helpful?
Yes
No
+1
Saturday, March 13th, 2021 AT 12:39 PM (Merged)
Tiny
FREEFLO
  • MEMBER
  • 2 POSTS
Thanks for the quick replies!
Sorry I havent checked the voltages just yet but wanted to share something interesting to my issue.
I hit a fairly deep pothole and what do you know, my headlights came on! On the way home, I did run over some sewer covers and the lights would blink on/off. At other times, when I hit another bump, they would go completely off, then hit another bump and they would come on! Would this be a connector issue as what Ford Man suggested or something else as they both go on/off together?
Any other ideas where I would look for something loose?
Was this
answer
helpful?
Yes
No
+5
Saturday, March 13th, 2021 AT 12:39 PM (Merged)
Tiny
FORD MAN
  • MEMBER
  • 115 POSTS
Free. Either the connectors are the problem, or ya got a loose connection somewhere. Follow the wires from the backs of the headlights, & then back towards the firewall where the wires connect to the main fuse block inside the cab. If ya don't find a loose connection between the headlights & the firewall, then the connectors ARE the problem !

Ford Man
Was this
answer
helpful?
Yes
No
+3
Saturday, March 13th, 2021 AT 12:39 PM (Merged)
Tiny
JDL
  • MECHANIC
  • 16,098 POSTS
Sounds like your on the right track.
Was this
answer
helpful?
Yes
No
+2
Saturday, March 13th, 2021 AT 12:39 PM (Merged)
Tiny
JFINCH59
  • MEMBER
  • 1 POST
Had same problem on 1999 blazier headlights came on and off a couple times ck the wiring harness that goes under the abs control mounting bracket they seem to rub there I fixed like 6 wires good luck
Was this
answer
helpful?
Yes
No
+6
Saturday, March 13th, 2021 AT 12:39 PM (Merged)
Tiny
CHRIS DAVIS2
  • MEMBER
  • 0 POST
Thanks for the post I had this problem and had to replace the relay all fixed! I love this site.
Was this
answer
helpful?
Yes
No
+1
Saturday, March 13th, 2021 AT 12:39 PM (Merged)
Tiny
CHRYSTA
  • MEMBER
  • 1 POST
  • 2000 CHEVROLET S-10
  • 0.5L
  • 4 CYL
  • 2WD
  • AUTOMATIC
  • 20,000 MILES
So I have no headlights to my truck, but I do have power going to them. Also, my daytime lights work.
Was this
answer
helpful?
Yes
No
Saturday, March 13th, 2021 AT 12:39 PM (Merged)
Tiny
JACOBANDNICKOLAS
  • MECHANIC
  • 110,192 POSTS
Hi and thanks for using 2CarPros.com. If you have power to the lights and the do not work, chances are it is a ground issue. When you test for power using a multi meter or test light, you create your own ground. If the connection is clean, tight and not damaged, I recommend the following.

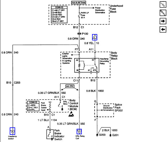
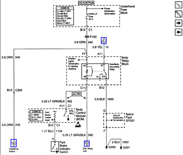
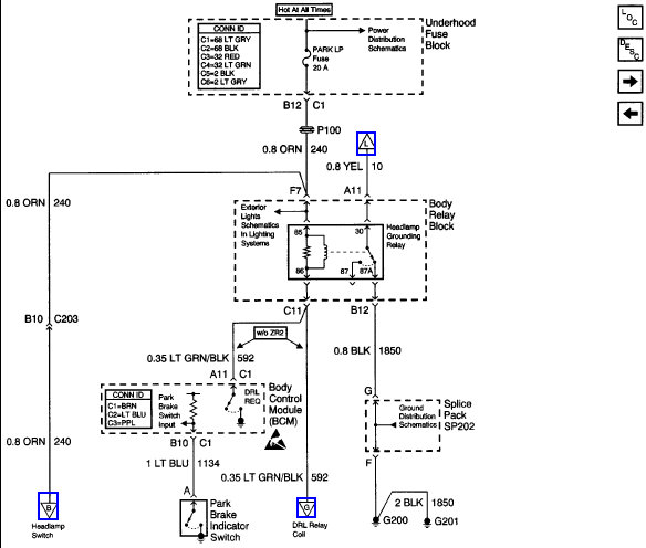
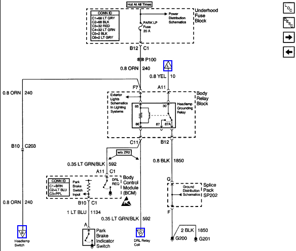
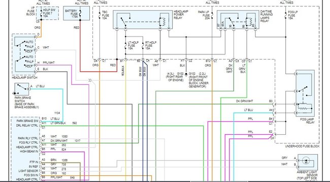
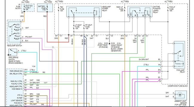
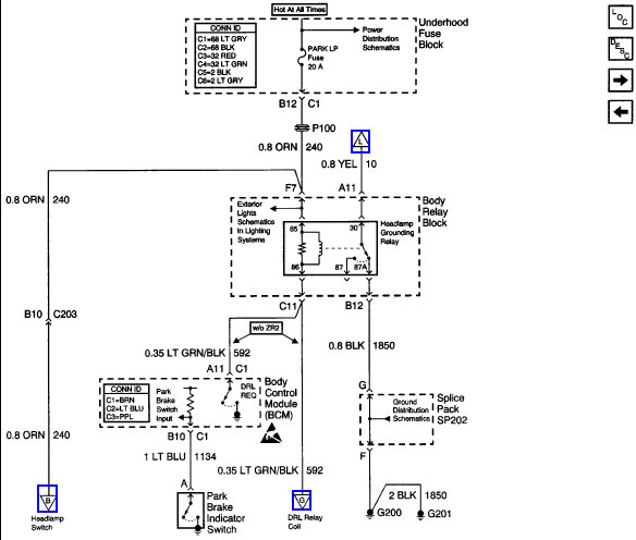
The first things I would recommend checking is the grounding system. I have attached a wiring schematic of the headlamp grounds. Take a look at that first.

If you determine that the grounds are in good condition and functional, then move review the diagnostic flow charts I attached. There are two different ones. One is for low beam and the other high. The charts are from alldata and are used by technicians to determine where the problem is coming from.

Here are directions for checking wiring just in case you run into trouble:
https://www.2carpros.com/articles/how-to-check-wiring

Here is a video related to using a test light for multiple functions:
https://youtu.be/Hlna_kUt7As

I hope they help. If you find you are still having trouble or new questions, please feel free to ask. I am online most every night.

Take care,
Joe
Was this
answer
helpful?
Yes
No
Saturday, March 13th, 2021 AT 12:39 PM (Merged)
Tiny
BRADLEY BARNETT
  • MEMBER
  • 1 POST
  • 2000 CHEVROLET S-10
  • 6 CYL
  • 4WD
  • AUTOMATIC
  • 96,000 MILES
I have no headlight on my truck listed above base model with 4.3 v6. I have replaced both relays and fuses are good. Front corner lights work fine as do rest of the lights. I can ground the headlight directly and they come on. I have checked the grounds and clean them up. Any ideas? I also have replaced the headlight switch.
Was this
answer
helpful?
Yes
No
Saturday, March 13th, 2021 AT 12:40 PM (Merged)
Tiny
JACOBANDNICKOLAS
  • MECHANIC
  • 110,192 POSTS
Welcome to 2CarPros.

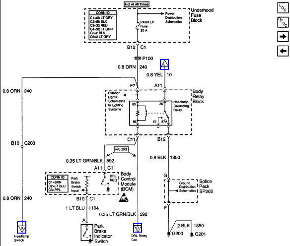
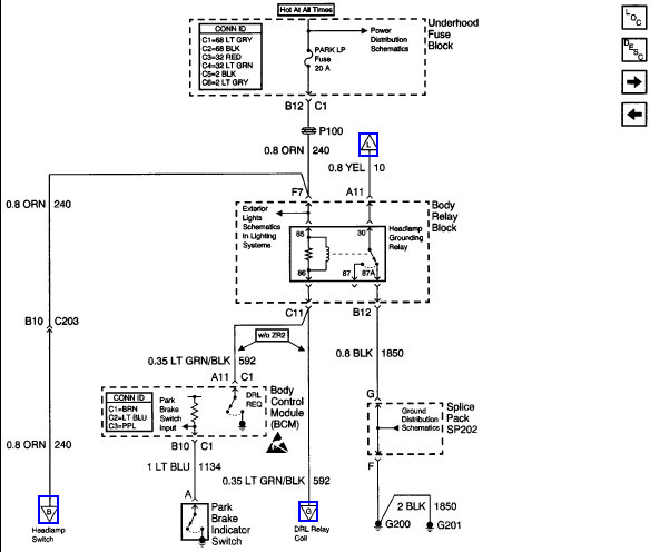
If you cleaned the grounds and have continuity to ground, my first suspect is the headlight grounding relay is bad. The relay is located in the body relay block on the left side of the dash. I have attached two pictures to help you locate it.

Here is a link that explains how to test a relay:

https://www.2carpros.com/articles/how-to-check-an-electrical-relay-and-wiring-control-circuit

Here are other links you may find helpful:

https://www.2carpros.com/articles/how-to-use-a-test-light-circuit-tester

https://www.2carpros.com/articles/how-to-use-a-voltmeter

https://www.2carpros.com/articles/how-to-check-wiring

Check that and let me know what you find or if you have other questions.

Take care,
Joe
Was this
answer
helpful?
Yes
No
Saturday, March 13th, 2021 AT 12:40 PM (Merged)
Tiny
PEGGY STEWART DARLEY
  • MEMBER
  • 1 POST
  • 1999 CHEVROLET S-10
  • 4.3L
  • V6
  • 2WD
  • 70,000 MILES
We replaced bulbs, relays (under hood and under driver-side dash), had all tested and is getting fire to headlights. Checked grounds, no problem we could see. Please help!
Was this
answer
helpful?
Yes
No
Saturday, March 13th, 2021 AT 12:40 PM (Merged)

Please login or register to post a reply.