Monday, April 12th, 2021 AT 5:55 PM
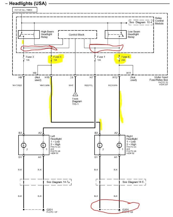
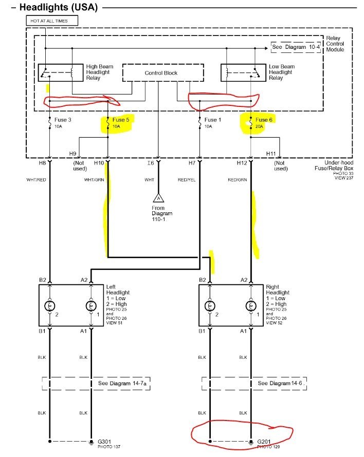
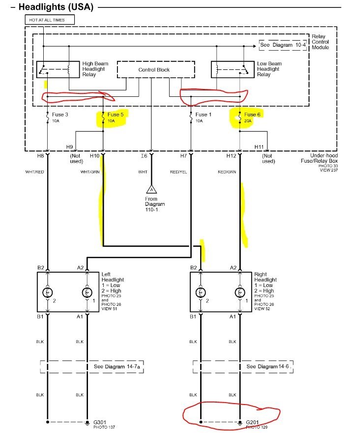
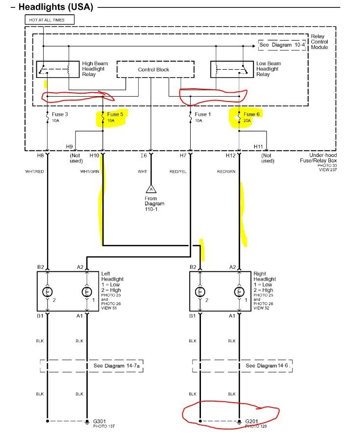
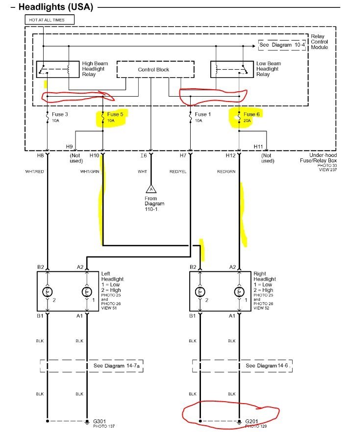
My passenger headlights went out both hi/low beam. Bought a brand new bulb did not work. Changed headlight switch and relays no luck power is coming from the under hood fuse box for all headlights no voltage from the socket wires. Do I need to check the wire harness or if there’s a break somewhere? Any help would be appreciated thanks.



