Monday, July 29th, 2019 AT 11:45 AM
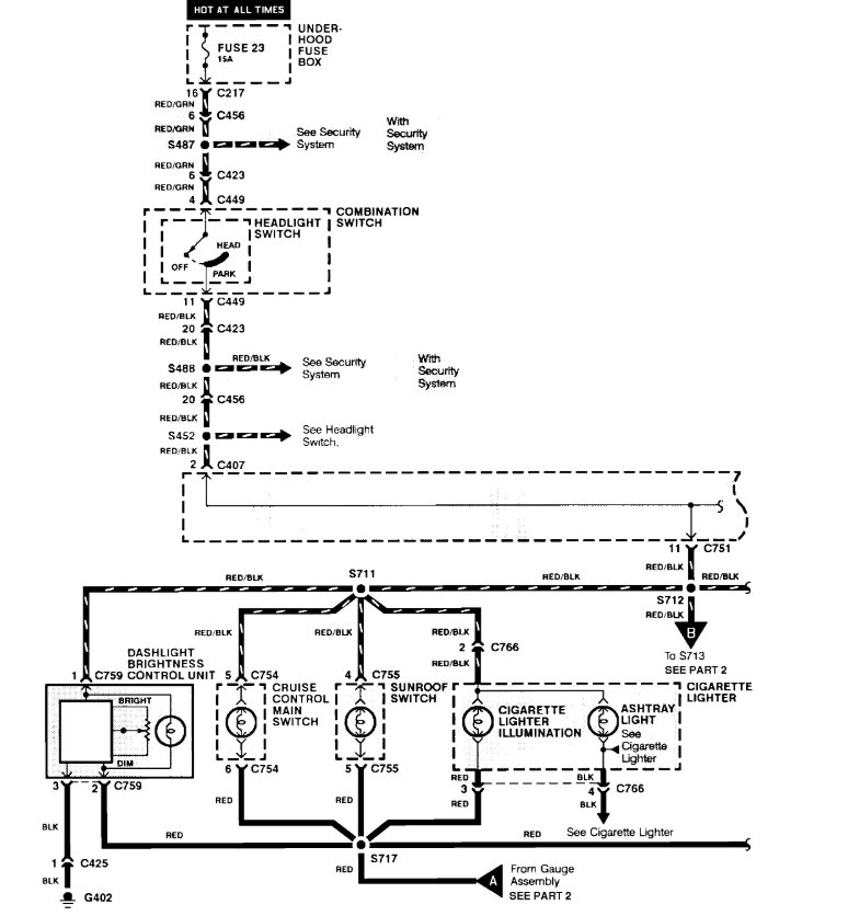
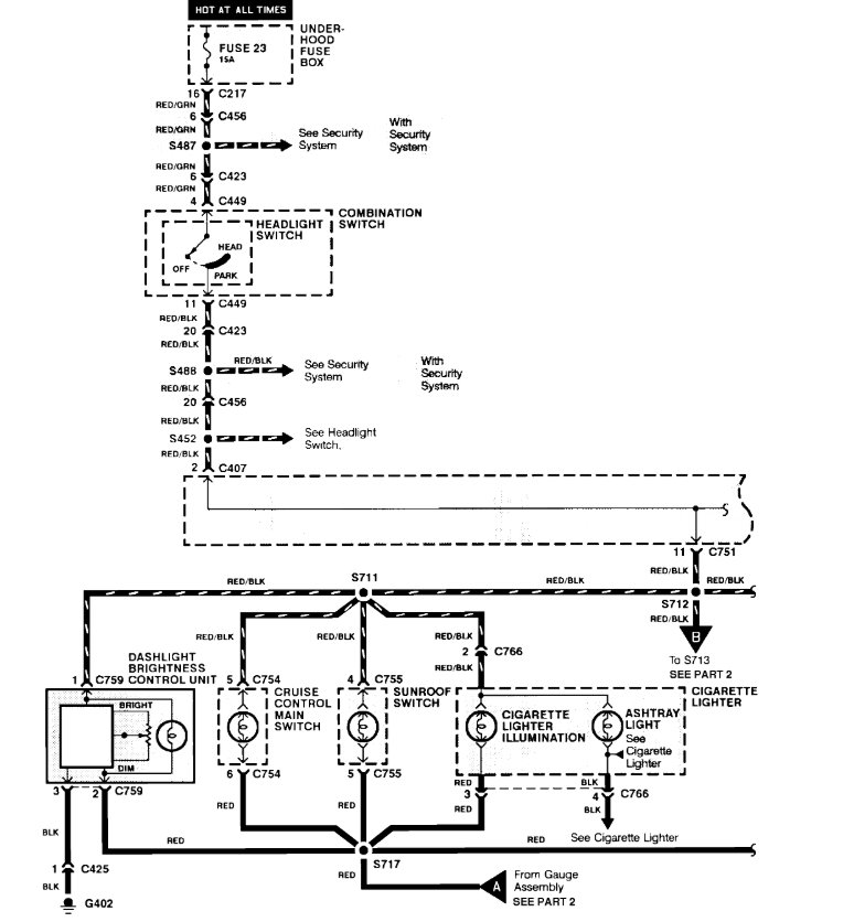
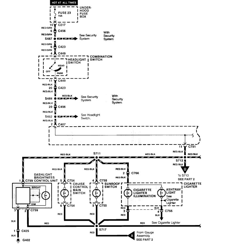
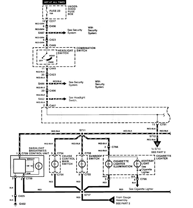
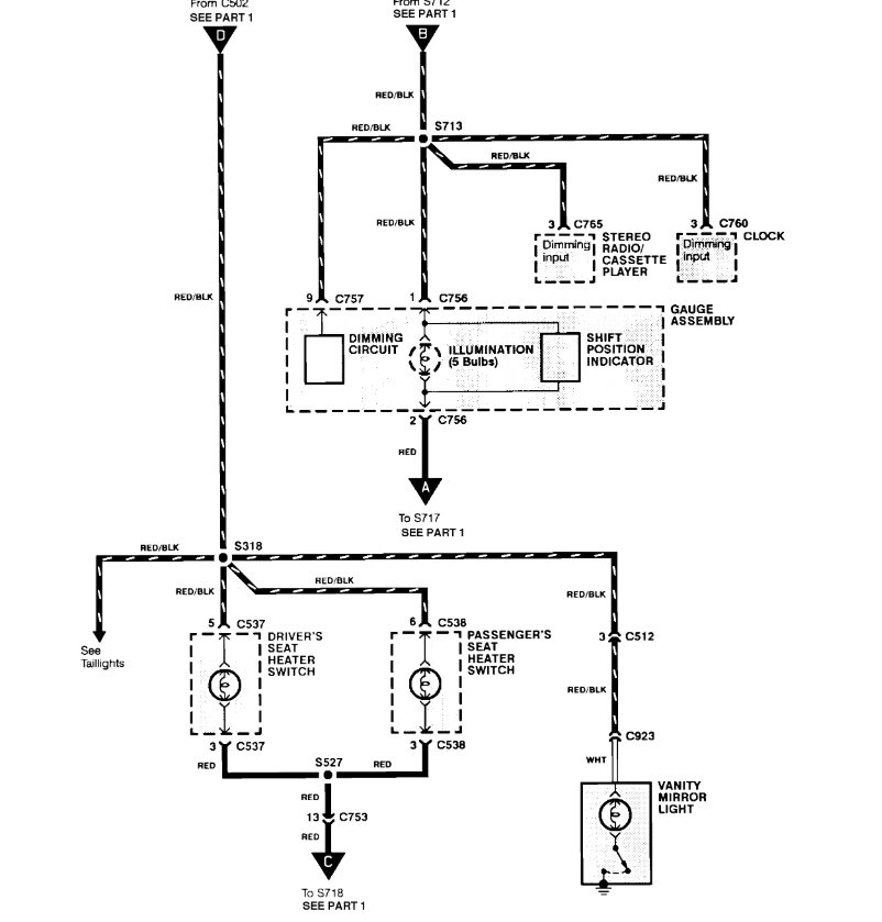
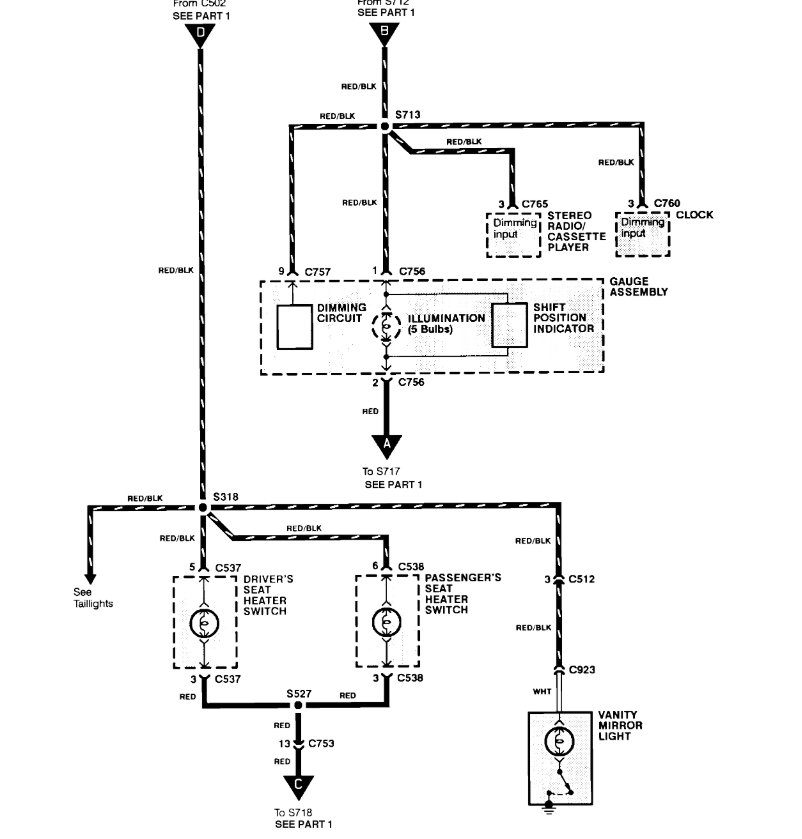
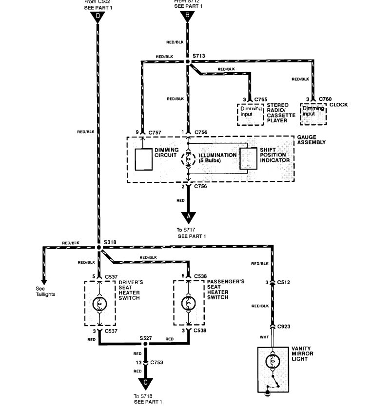
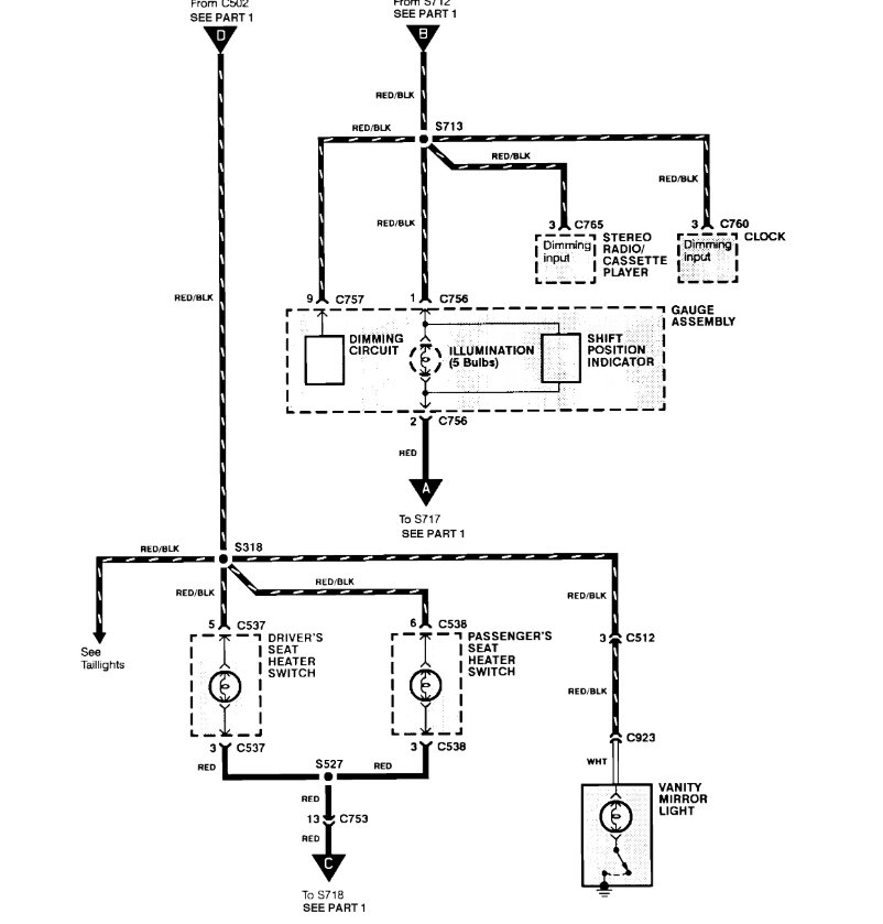
I got the harness that goes under the dash from another Honda. I didn't get the complete harness so it is cut in a couple places. Now I'm trying connect everything including the dashboard and gauge cluster and all pretty much. Is there a step by step instruction to help me? I am worried I'm not going to be able to get it all right.












