Fuel pump not working properly?

Tiny
JOSHUAXNICHOLS2
  • MEMBER
  • 1997 TOYOTA AVALON
  • V6
  • 2WD
  • AUTOMATIC
  • 290,000 MILES
The car listed above is an XL. I put a new one in yesterday and I drove 145 miles since I put it on, and it stalled on me and now the fuel pump has no power. I took the fuel pump out and checked it and it worked but I’m not getting power to the fuel pump. I checked the fuses and relays there good I’m stuck.
Sunday, September 11th, 2022 AT 6:47 PM

1 Reply

Tiny
JACOBANDNICKOLAS
  • MECHANIC
  • 110,194 POSTS
Hi,

Hang in there. We'll figure this out.

As far as the pump is concerned, I need you to confirm there is no power to the blue wire with a black tracer. When the key is turned on, it will only get power for a short amount of time, so it would be a good idea to have a helper.

If there is power, confirm continuity to ground on the white wire with a black tracer.

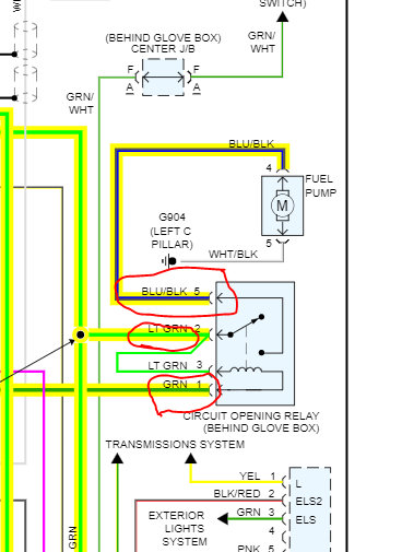
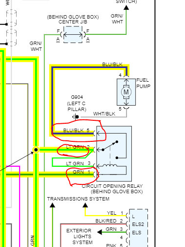
If there is no power at the pump, go to the circuit open relay behind the glove box. I don't know if you checked that one yet or not, but here is a link that explains how to test it. If there is another relay with the same part number, switch them. See pic 1

https://www.2carpros.com/articles/how-to-check-an-electrical-relay-and-wiring-control-circuit

At the relay, there will be a light green wire. It should have power with the key on.

Let's start with this. Also, there is one more easy check. Make sure the EFI fuse and EFI main relay are good as well. The fuse will have power at all times, so in addition to checking the fuse, make sure there is power to it. (See pic 2)

Let me know what you find or if you have other questions. Additionally, here is a link you may find helpful:

https://www.2carpros.com/articles/how-to-check-wiring

Take care,

Joe

See pics below.
Was this
answer
helpful?
Yes
No
+1
Sunday, September 11th, 2022 AT 7:55 PM

Please login or register to post a reply.