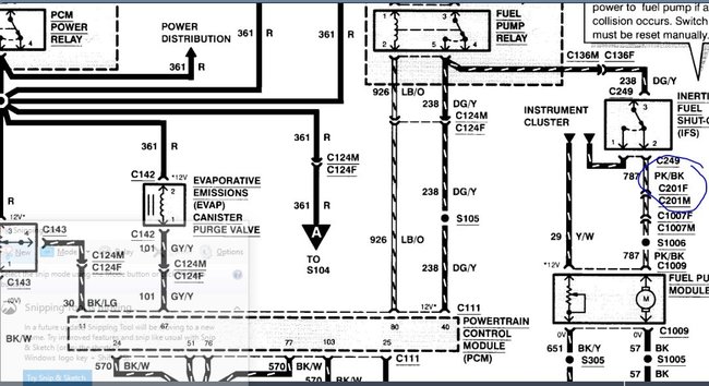
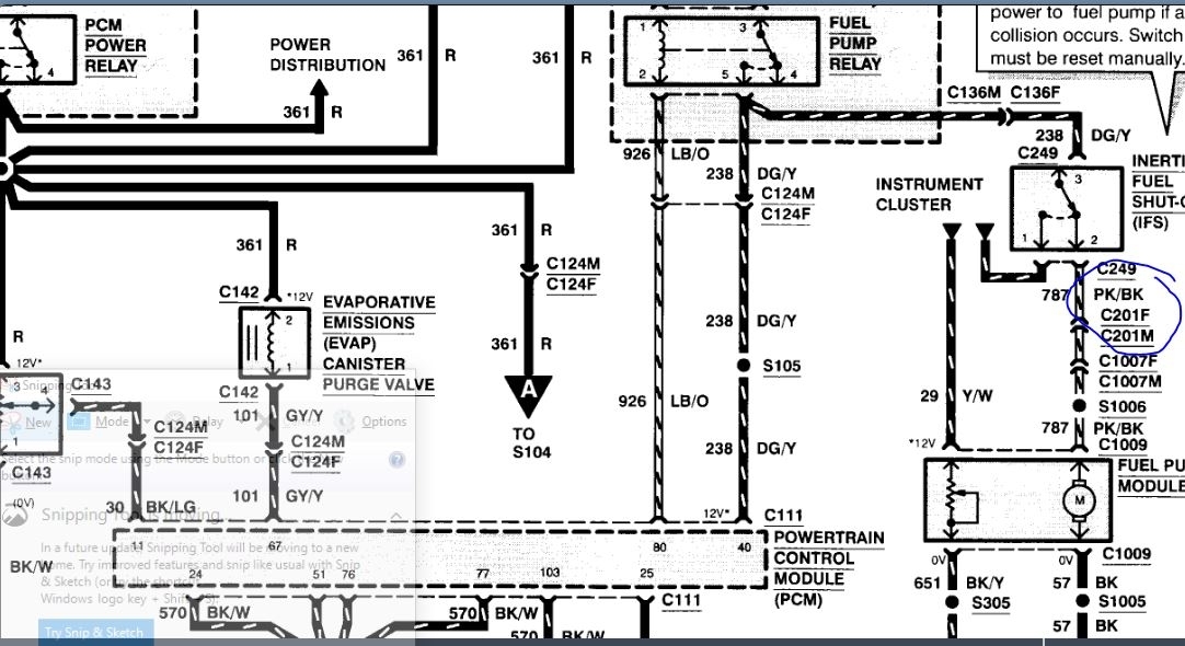
Vehicle will start up and run fine for anywhere up to 20 minutes. Replaced fuel pump and filter. fuel relay and pressure sensor. i'm only getting 28 psi at the fuel rail test port. i have also replaced lots of other parts and tested the inertia switch and run wires straight to the fuel pump, but still having problems. please make suggestions of what i need to do.
Apr 25, 2020 at 10:11 AM










