Possible Starter Solenoid Replacement

Tiny
SMATRESE
  • MEMBER
  • 2002 FORD EXPLORER
Engine Mechanical problem Four Wheel Drive Automatic

When I try to start my 2002 Ford Explorer, there is a repetitive 'tick'ing noise and nothing else happens. My battery is fully charged. Someone told me it may be the solenoid, but I don't know where it is even located. Do you think they are right? Where is the solenoid located? What is the best way to check the solenoid?
Thursday, September 23rd, 2010 AT 6:19 PM

21 Replies

Tiny
RASMATAZ
  • MECHANIC
  • 75,992 POSTS
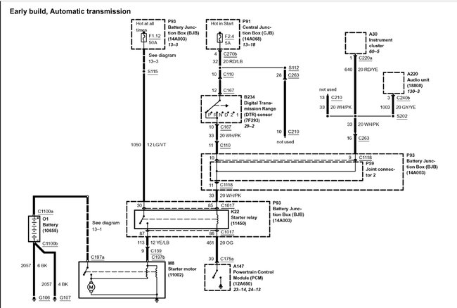
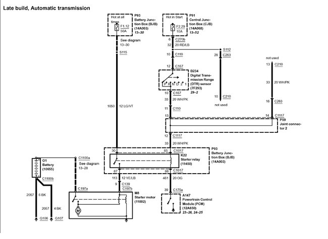
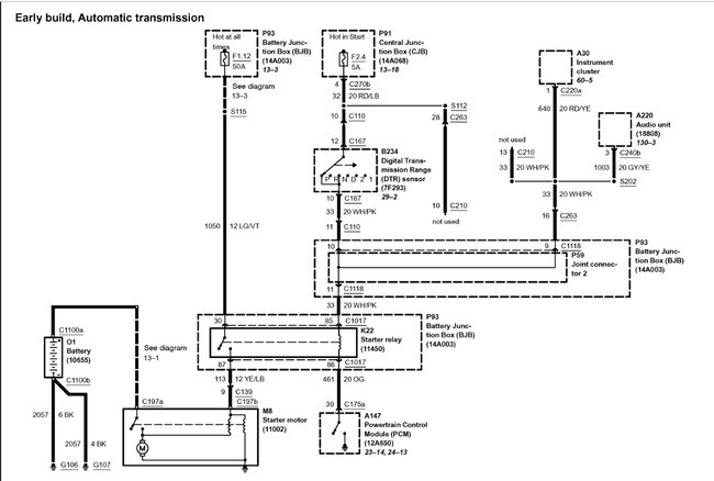
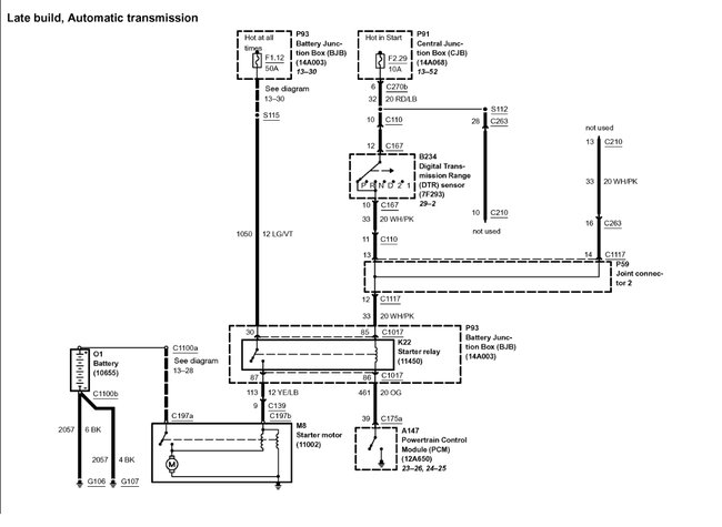
It sounds more like the positive battery cable is going bad the starter solenoid it located on the starter here is a guide to help you see what I am talking about.

https://www.2carpros.com/articles/how-to-replace-a-starter-motor

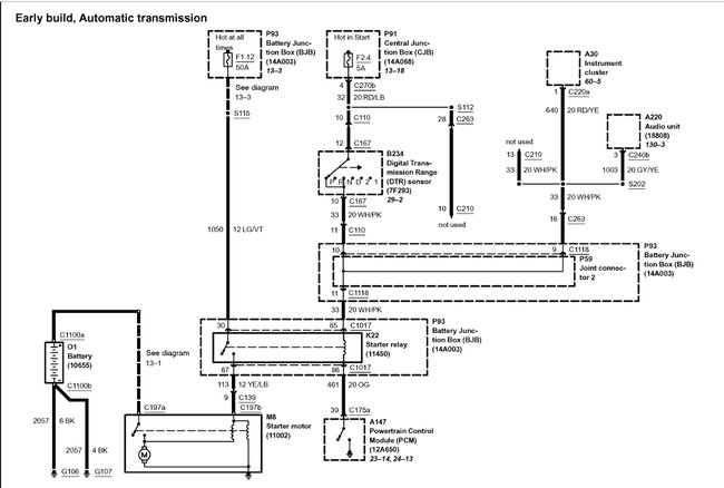
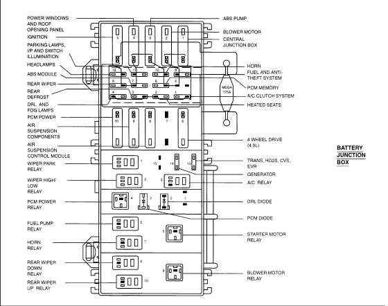
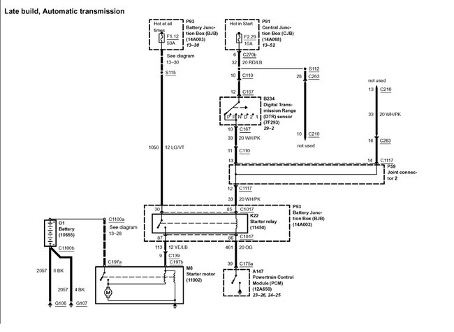
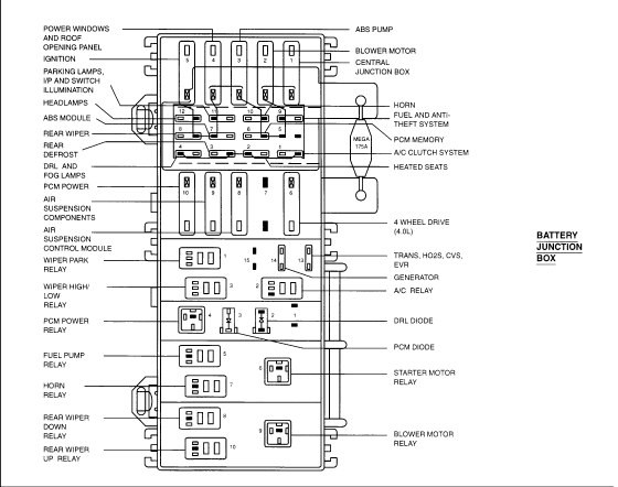
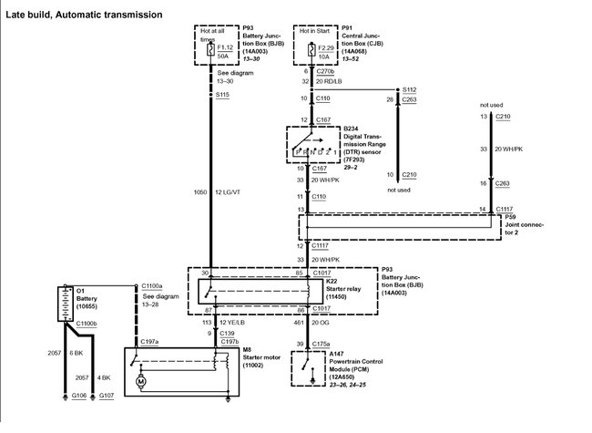
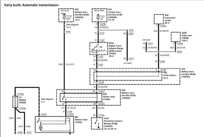
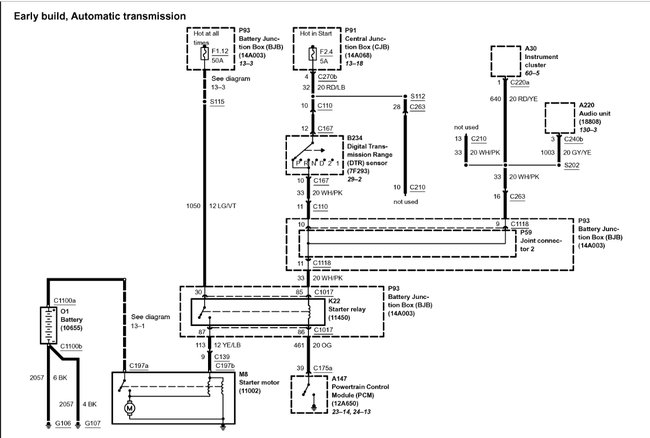
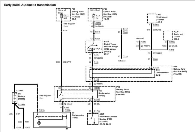
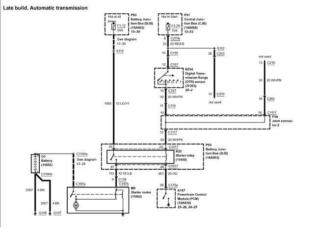
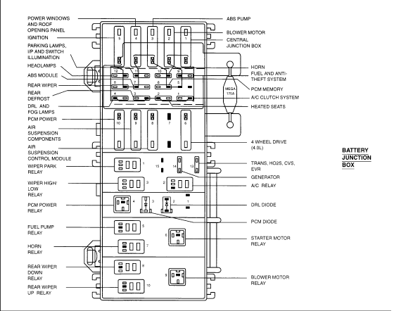
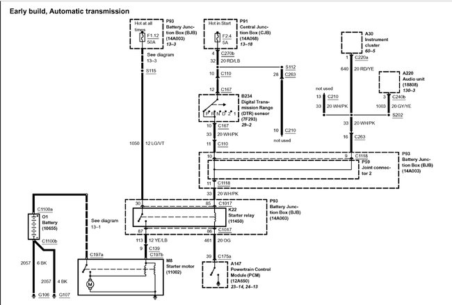
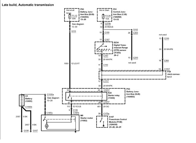
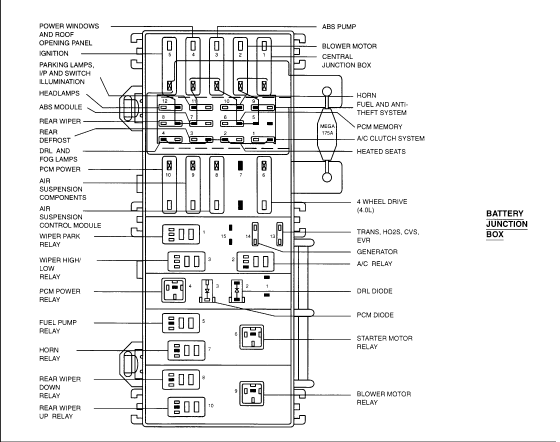
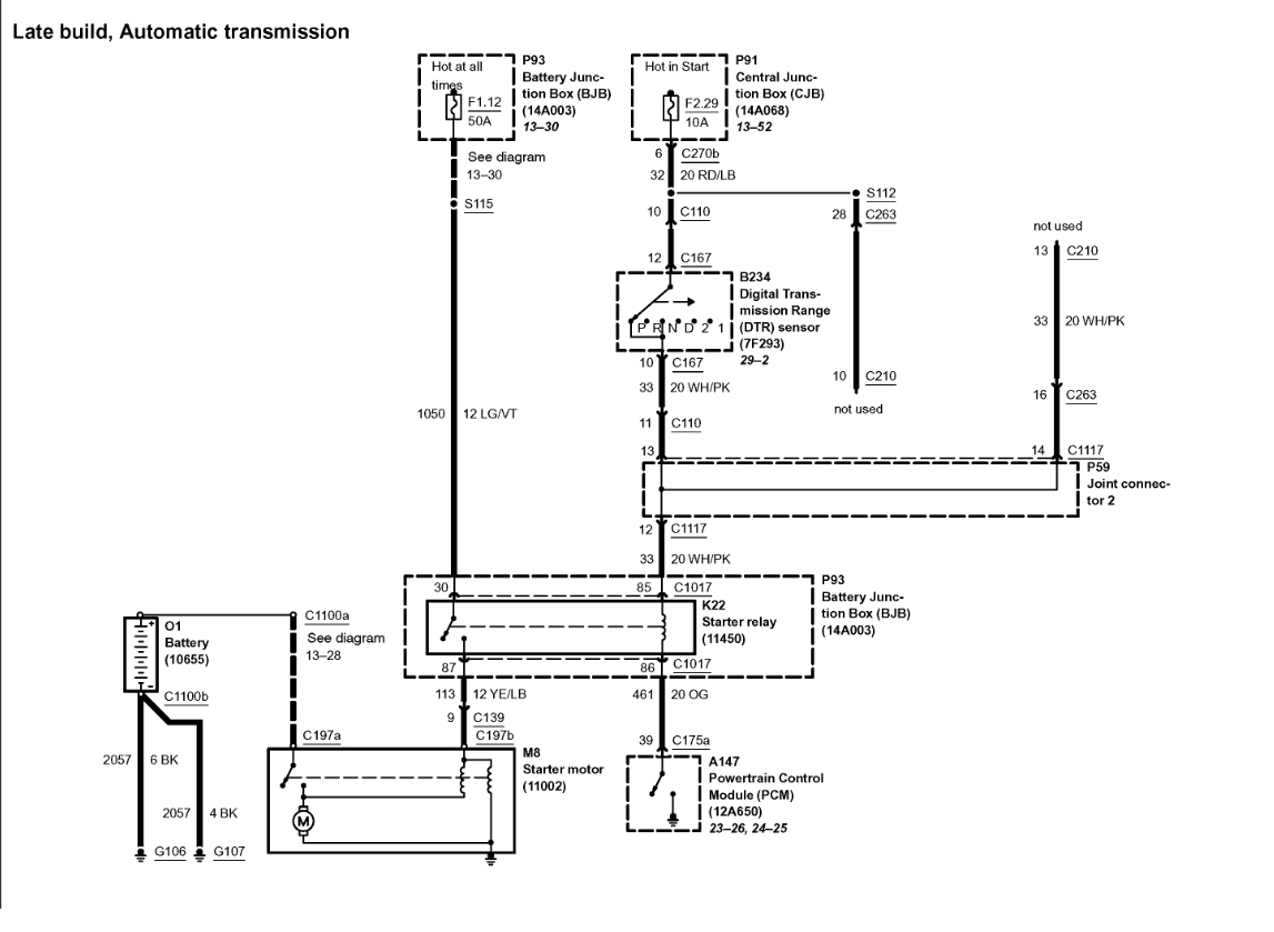
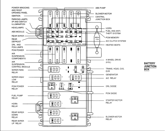
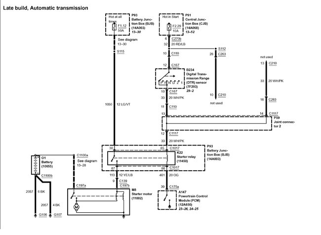
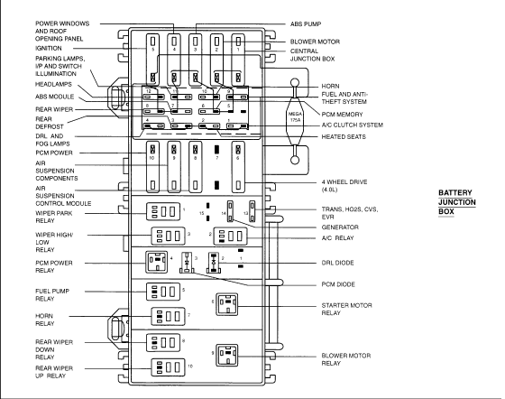
There is a starter relay though check out the diagrams below to see how the system is wired and where the relay is.

https://www.2carpros.com/articles/how-to-check-an-electrical-relay-and-wiring-control-circuit

Check out the diagrams (Below). Please let us know what happens.

Cheers
Was this
answer
helpful?
Yes
No
-1
Thursday, September 23rd, 2010 AT 6:57 PM
Tiny
WALKERROB
  • MEMBER
  • 1 POST
  • 2000 FORD EXPLORER
Where is the starter solenoid on the SUV listed above with a 4.0 L sohc engine?
Was this
answer
helpful?
Yes
No
+2
Monday, December 28th, 2020 AT 11:25 AM (Merged)
Tiny
KEN L
  • MASTER CERTIFIED MECHANIC
  • 55,459 POSTS
Hello,

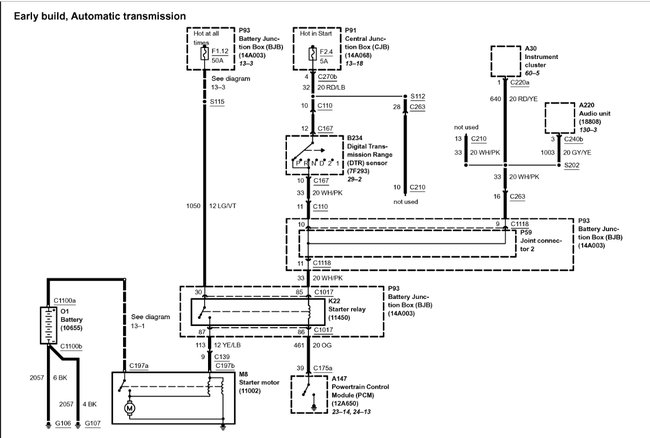
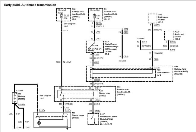
There are two starter solenoids for your car; one is down by the starter motor and the other is up by the battery on the drivers side. Here is a guide that shows the lower solenoid:

https://www.2carpros.com/articles/how-to-replace-a-starter-motor

Check out the diagrams (below) for both locations.

Please let us know if you need anything else to get the problem fixed.

Cheers, Ken
Was this
answer
helpful?
Yes
No
+3
Monday, December 28th, 2020 AT 11:25 AM (Merged)
Tiny
DANNY L
  • MECHANIC
  • 5,648 POSTS
Hello, I am Danny.

This is what the solenoid is like mounted on the starter motor. I have attached a picture and circled the solenoid in red. Hope this helps and thanks for using 2CarPros.
Danny-
Was this
answer
helpful?
Yes
No
Monday, December 28th, 2020 AT 11:25 AM (Merged)
Tiny
LAW1963
  • MEMBER
  • 1 POST
  • 2000 FORD EXPLORER
  • V8
  • AWD
  • AUTOMATIC
Where is the starter solenoid located on a 2000 Ford Explorer with a 302 engine?
Was this
answer
helpful?
Yes
No
Monday, December 28th, 2020 AT 11:25 AM (Merged)
Tiny
RASMATAZ
  • MECHANIC
  • 75,992 POSTS
Location:
Was this
answer
helpful?
Yes
No
-2
Monday, December 28th, 2020 AT 11:25 AM (Merged)
Tiny
REDAVISON2
  • MEMBER
  • 1 POST
  • 2000 FORD EXPLORER
  • 6 CYL
  • 2WD
  • AUTOMATIC
  • 119,000 MILES
Where is the starter solenid located on a 2000 Frod Explorer Sport? Is it difficult to replace? Thanks.
Was this
answer
helpful?
Yes
No
Monday, December 28th, 2020 AT 11:25 AM (Merged)
Tiny
2CARPRO JACK
  • MECHANIC
  • 11,533 POSTS
It is mounted on the starter. Check for power to the small wire with key in crank position, if it has power and no start, the starter/solenoid needs to be replaced.
Was this
answer
helpful?
Yes
No
+3
Monday, December 28th, 2020 AT 11:25 AM (Merged)
Tiny
BLUELIGHTNIN6
  • MECHANIC
  • 16,542 POSTS
Hello,

The starter solenoid and relay are integral with the starter. For replacement procedures for your starter, read below:

REMOVAL:
Disconnect the negative battery cable.
Properly raise and support the vehicle.
Tag and disconnect the wiring at the starter.

WARNING: When detaching the hard-shell connector at the S-terminal, grasp the plastic shell to pull it off. Do not pull on the wire itself. Ensure to pull the connector straight off to prevent damage to the connector and S-terminal. If any part of the connector is damaged, replace the damaged component.

Remove the starter mounting bolts and remove the starter

INSTALLATION:
Position the starter motor against the engine and install the mounting bolts. Tighten the mounting bolts to 15-19 ft. Lbs. (21-27 Nm).
Install the starter solenoid connector by pushing it straight on. Ensure that the connector locks in position with a notable click.
Install the starter cable nut to the starter solenoid B-terminal. Tighten the nut to 80-123 inch lbs. (9-14 Nm).
Connect any remaining wiring to the starter motor.
Lower the vehicle.
Connect the negative battery cable.

Thanks for using 2CarPros. Com!
Was this
answer
helpful?
Yes
No
+2
Monday, December 28th, 2020 AT 11:25 AM (Merged)
Tiny
2CP-ARCHIVES
  • MEMBER
  • 4,540 POSTS
  • 1998 FORD EXPLORER
  • 235 MILES
Is there a starter solenoid and where is it located
Was this
answer
helpful?
Yes
No
Monday, December 28th, 2020 AT 11:25 AM (Merged)
Tiny
ASEMASTER6371
  • MECHANIC
  • 52,796 POSTS
On top of the starter.

Roy
Was this
answer
helpful?
Yes
No
-1
Monday, December 28th, 2020 AT 11:25 AM (Merged)
Tiny
CRAZYBEACH38452
  • MEMBER
  • 2 POSTS
  • 1998 FORD EXPLORER
Engine Mechanical problem
1998 Ford Explorer V8 All Wheel Drive Automatic

Where is the starter solenoid located? Was told between battery and fuse box but nothing there and was also told attached to firewall by battery.
Was this
answer
helpful?
Yes
No
Monday, December 28th, 2020 AT 11:25 AM (Merged)
Tiny
DANAUTHIER
  • MECHANIC
  • 156 POSTS
The starter solenoid is attached to the starter itself, rarely serviced separately anymore. What it is the problem you are having?
Let me know and I will do my best to help you.
Dan
Was this
answer
helpful?
Yes
No
+1
Monday, December 28th, 2020 AT 11:25 AM (Merged)
Tiny
DANAUTHIER
  • MECHANIC
  • 156 POSTS
There is a starter relay for your vehicle, I have not been able to find the location for you, but that maybe your issue. There is also a recall (article # 01-6-2) dealing with the factory anti theft system that will cause a no crank condition like you describe (if your vehicle is so equipped).
If your vehicle is an automatic the range selector switch also acts as the neutral safety switch that keeps the engine to only starting in the park and neutral positions, try shifting to neutral and trying to start it and then if that does not work try shifting back to park and keep slight pressure on the park lever to be sure it is in park and try again.
If your vehicle has a standard transmission, there is a clutch safety switch activated by the clutch pedal and it may be failing.
I am sorry I miss understood you earlier. There is a relay that is also called a solenoid, it has two large posts and two smaller posts for wires, it is located near your battery on the inner fender on your vehicle. It is activated by the ignition switch and sends power to the starter. This part is replaceable separate from starter.
There is also a part on the starter (the smaller of the two round components of a starter) It controls the power to the starter (in simple terms) This is the solenoid I thought your were talking about and is not normally serviced separately.
If possible check with your local for dealer on that recall.
Hope this helps,
Dan
Was this
answer
helpful?
Yes
No
+2
Monday, December 28th, 2020 AT 11:25 AM (Merged)
Tiny
CRAZYBEACH38452
  • MEMBER
  • 2 POSTS
I tried to start in neutral did not work. Now as far as the one by the batter and fender there is not one. Someone told me that they might have bypassed that one and the only one I may have is the one attached to the started itself.
Was this
answer
helpful?
Yes
No
+1
Monday, December 28th, 2020 AT 11:25 AM (Merged)
Tiny
SABRAGG28
  • MEMBER
  • 3 POSTS
  • 1996 FORD EXPLORER
  • 4.0L
  • 6 CYL
  • 4WD
  • MANUAL
  • 200,000 MILES
My truck won't start unless I bypass the starter solenoid. I've replaced it twice thinking I bought a bad one the first time. But still isn't starting.
Was this
answer
helpful?
Yes
No
Monday, December 28th, 2020 AT 11:26 AM (Merged)
Tiny
CARADIODOC
  • MECHANIC
  • 34,489 POSTS
What are the symptoms? Do you hear the relay click loudly once when you turn the ignition switch to "crank"? Did this start out as an intermittent problem?
Was this
answer
helpful?
Yes
No
+1
Monday, December 28th, 2020 AT 11:26 AM (Merged)
Tiny
SABRAGG28
  • MEMBER
  • 3 POSTS
The truck doesn't crank at all when I just turn the key, but you can hear everything else, just doesn't start, when I bypass the solenoid it starts right up. And it happened over night, nothing leading up to it.
Was this
answer
helpful?
Yes
No
+7
Monday, December 28th, 2020 AT 11:26 AM (Merged)
Tiny
CARADIODOC
  • MECHANIC
  • 34,489 POSTS
The steps in diagnosing this start with observing what the starter relay is doing, and you still didn't list that. Ford uses a few different circuit configurations. Some have the solenoid on the starter itself with a separate starter relay under the hood. Some use their old fender-mounted solenoid as a starter relay on the fender. Some older versions use the fender-mounted relay as the solenoid itself with nothing else on the starter. I think by '96 they finally gave up on that miserable design.

If you have the large solenoid on the inner fender and it is clicking, check for loose or dirty connections on it, the battery, and the starter itself. If the solenoid is not clicking, the neutral safety switch is the main suspect. Here again the engineers couldn't make up their mind which circuit to use so there's three possibilities. You should have a smaller red or red / blue wire plugged onto the relay. Unplug that, then use a test light or voltmeter to see if you get 12 volts on it when the ignition switch is in the "crank" position.
Was this
answer
helpful?
Yes
No
+2
Monday, December 28th, 2020 AT 11:26 AM (Merged)
Tiny
SABRAGG28
  • MEMBER
  • 3 POSTS
Thats kinda what I was thinking, that the solenoid isn't getting enough power, unfortunately I don't own a volt meter, let's say I do get a12v reading with the red wire unplugged, where do I go from there?
Was this
answer
helpful?
Yes
No
Monday, December 28th, 2020 AT 11:26 AM (Merged)

Please login or register to post a reply.