Stuck in 4WD?

Tiny
STEVEK_SMITH
  • MEMBER
  • 1997 FORD EXPEDITION
Mt transfer case is stuck in 4wd?
Monday, December 7th, 2009 AT 10:37 AM

1 Reply

Tiny
SQM
  • MECHANIC
  • 6,383 POSTS
Hello,

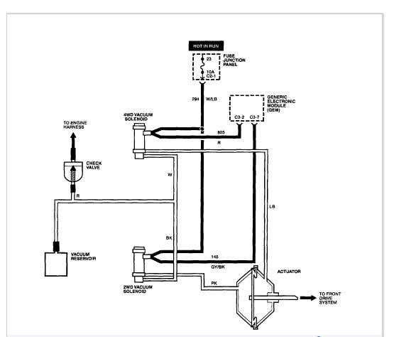
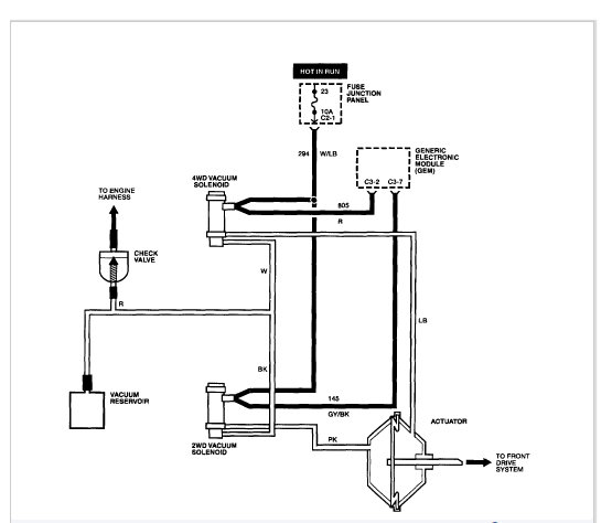
This issue could be due to a faulty transfer case actuator.
This is a vacuum controlled actuator and if the actuator does not get proper vacuum it will not function.
So first check the hose that goes to the actuator and make sure it is connected and secured, also verify that it has vacuum.

Another possibility is that the issue is with the transfer case shift motor. This is electronic component that provides signal to the change from 2 to 4 and 4 to 2 wheel drive.

I have attached diagrams for your reference.

Please let me know of any questions.
Thank you.

https://www.youtube.com/c/2carpros/featured
Was this
answer
helpful?
Yes
No
Wednesday, September 22nd, 2021 AT 7:19 PM

Please login or register to post a reply.