Engine cranks but does not start and shuts off immediately if it starts?

Tiny
ABRAM BUTLER
  • MEMBER
  • 1998 TOYOTA COROLLA
  • 1.3L
  • 2WD
  • 120,000 MILES
No fuel at line that feeds the filter when cranking, fuel pump runs when connected directly to the battery.
Sunday, December 25th, 2022 AT 9:23 AM

11 Replies

Tiny
JACOBANDNICKOLAS
  • MECHANIC
  • 110,194 POSTS
Hi,

If the pump runs with direct power, then we need to start at the beginning. So, I need a couple of things checked.

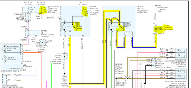
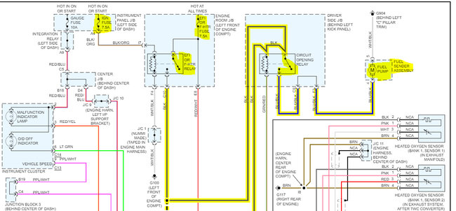
If you look below, I attached the wiring schematic for the fuel pump. Note I highlighted two fuses. I need you to check them first. The ignition fuse will only have power with the key in the run or start position. The EFI fuse will have power at all times.

When checking the fuses, first confirm it hasn't failed. If it appears good, then I need you to check if there is power to and from it. You can do this with a simple test lamp.

Here is a link that explains how it's done:

https://www.2carpros.com/articles/how-to-check-a-car-fuse

If both fuses are good and have power, then I need you to remove the circuit open relay. With the key off, one of the pins where the relay belongs will have power. Confirm that this is the case. If it is, remember the pin location which would leave 3 other connector pins.

Turn the key on to the run position. Of the three pins that had no power before, one more should have power. Confirm that for me.

Let me know what you find so I know how to further direct you. Also, here is a link that explains how to test a relay. You may find it of interest because it breaks down what I'm explaining to do.

https://www.2carpros.com/articles/how-to-check-an-electrical-relay-and-wiring-control-circuit

Let me know what you find or if you have other questions before, during, or after testing.

Take care and I hope you had a great Christmas.

Joe

See pic below.
Was this
answer
helpful?
Yes
No
Sunday, December 25th, 2022 AT 7:52 PM
Tiny
ABRAM BUTLER
  • MEMBER
  • 14 POSTS
Greetings!

Thanks for the prompt response. I confirmed the integrity of all fuses and relays at the engine bay and vehicle compartment. On the inside at the front lower left panel. There is a black 5 pin relay. Supply exists in the socket at one point with the key off, and, at two points with the key on. However, I am not certain that this is the Circuit Opening Relay. Is there a way to identify it in terms of color, etc? The vehicle is a right-hand drive, Model EE111R-AEHDK Engine 4E- FE 1332cc, and DTC under the hood. The diagram applies to this model also?
Was this
answer
helpful?
Yes
No
Monday, December 26th, 2022 AT 2:38 PM
Tiny
JACOBANDNICKOLAS
  • MECHANIC
  • 110,194 POSTS
Hi,

According to my manual, it is for both left and right-hand drive vehicles. The only difference is they are on opposite sides.

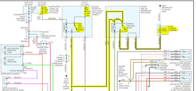
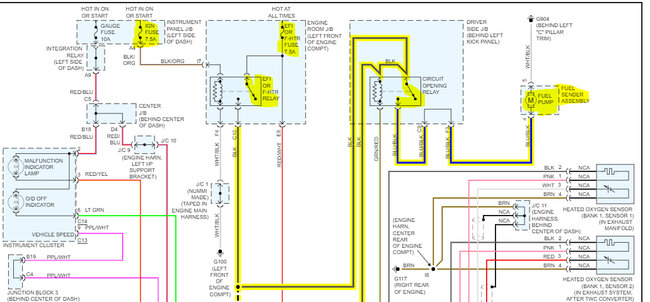
The relay should be a 4-pin relay. See pic above.

I attached the location which is shown on the left side of the vehicle. It should be in the same position on the right side of your vehicle.

Also, I attached the diagnostics for the relay itself. Test it to see if it is good.

If you want to confirm the relay is the correct one, remove the EFI fuse under the hood. That will stop the power supply which is the one that has power at all times.

Let me know what you find.

Take care,

joe

See pics below.
Was this
answer
helpful?
Yes
No
Monday, December 26th, 2022 AT 8:59 PM
Tiny
ABRAM BUTLER
  • MEMBER
  • 14 POSTS
Good afternoon!

It seems that we have found the relay! No power exists when the fuse is removed. When the fuse is replaced, power is at one point on the control and load sides with the key on. No power is detected with the key off. Are we on the correct circuit? Or the system is designed to operate that way? Also, the relay was placed in the horn circuit, and it works. Thanks again!

Abram
Was this
answer
helpful?
Yes
No
Wednesday, December 28th, 2022 AT 2:20 PM
Tiny
JACOBANDNICKOLAS
  • MECHANIC
  • 110,194 POSTS
Hi,

Okay, if the relay has power and you tried a different one, then power should be sent out. If that is the case, then you either have a broken wire or no ground path for the primary side of the relay.

If you review the link above, it explains how to test a relay. In addition, it explains how the circuit works. You have power so we need to confirm the primary ground is available when the key is turned on.

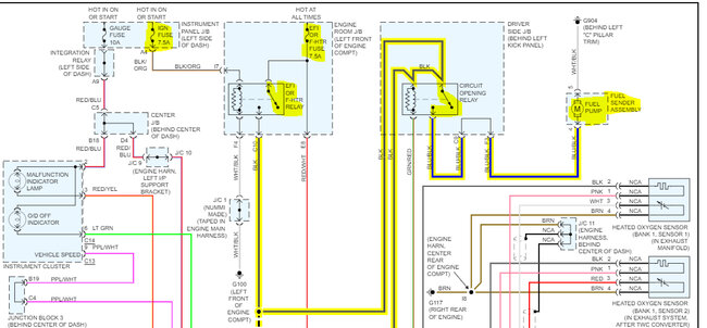
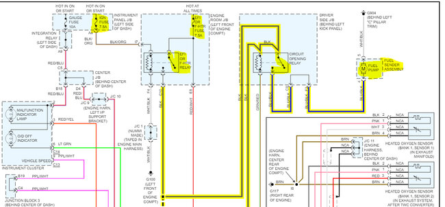
If you look at the pic below, I highlighted the green wire with a red tracer. That wire provides the ground for the primary side of the relay via the ECM. The easiest thing to do is this. Take a test light and connect the alligator clip to the battery-positive terminal. Place the other end in the ground circuit. When you turn the key on, the test lamp should turn on if a ground path is provided.

If you have a ground and the relay is good and making connections at all the pins, the wire between the relay (power) to the pump is open.

Let me know what you find.

Joe
Was this
answer
helpful?
Yes
No
Wednesday, December 28th, 2022 AT 8:24 PM
Tiny
ABRAM BUTLER
  • MEMBER
  • 14 POSTS
Good day!

When applied to battery positive and COR ground, the test lamp lights dimly and goes out. After repeated checks, it remains off. The entire circuit appears to be healthy outside of that. I wish not to conclude that the ECM is faulty without an expert opinion. Hence, I am requesting additional assistance.

Output voltage from the ECM to sensors and fuel injectors seems satisfactory. However, there is a sensor 4-6 inches behind the water pump, below the intake manifold, and housed in the engine block with a broken connector, that needs to be identified. We also need the color of the battery supply wires to the ECM. How can we access a shop or repair manual with all diagrams? Advanced thanks!
Was this
answer
helpful?
Yes
No
Wednesday, January 4th, 2023 AT 1:13 PM
Tiny
JACOBANDNICKOLAS
  • MECHANIC
  • 110,194 POSTS
Hi,

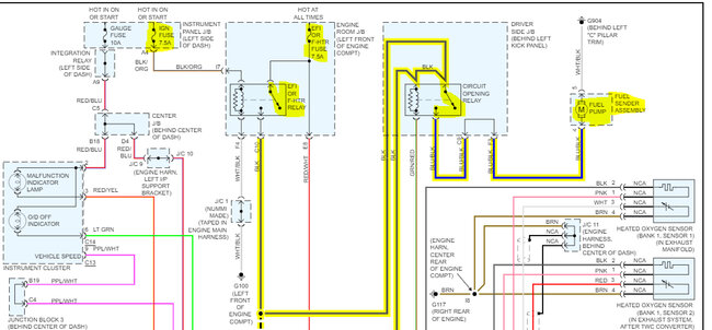
I know the engine coolant temp sensor is on the side of the engine behind the pump. Take a look at the pic below. Is that the location? If so, that is the engine coolant temperature sensor for the computer. It needs to be functional. See pic 1.

The remaining pics are for the entire powertrain management circuits. I highlighted wires to the ECM from power. Note, the ignition fuse needs to be good to actuate the EFI relay.

Let me know if this helps.

Joe

See pics below.
Was this
answer
helpful?
Yes
No
+1
Wednesday, January 4th, 2023 AT 8:23 PM
Tiny
ABRAM BUTLER
  • MEMBER
  • 14 POSTS
Good morning!

We found it on Saturday afternoon! Faulted ground for the fuel injectors. Thank you very much for the help. If possible, we want to request assistance in the immediate future, especially with the diagrams. They are so invaluable. How can we make a contribution to the site? Once again, thanks!

Abram
Was this
answer
helpful?
Yes
No
Wednesday, January 11th, 2023 AT 9:09 AM
Tiny
JACOBANDNICKOLAS
  • MECHANIC
  • 110,194 POSTS
Abram,

There is no need to make a contribution. If you need help with something and we have it, it will be given to you. That's why we are here.

Regardless, I'm glad to know you found the issue and the repair was made.

Please feel free to come back anytime in the future if you need help.

Take care,

Joe
Was this
answer
helpful?
Yes
No
Wednesday, January 11th, 2023 AT 1:59 PM
Tiny
ABRAM BUTLER
  • MEMBER
  • 14 POSTS
Good evening!

We need some insight with two cases. First, a 2009 Nissan Skyline 250 GT 6 cylinder. It does not move immediately when shifted to drive and the accelerator depressed. We have not located the transmission dipstick. There is a slight dent on the undercover. How is the fluid level checked?

Also, there is a no start on a 1998 Nissan Altima. Supposedly a bad starter. We are not sure how the system works in terms of the anti-theft and starting relays. Thanks for the directions!

Abram
Was this
answer
helpful?
Yes
No
Sunday, January 22nd, 2023 AT 2:37 PM
Tiny
JACOBANDNICKOLAS
  • MECHANIC
  • 110,194 POSTS
Abram,

Welcome back. I have to ask a favor. We try to keep the threads specific to one topic and vehicle so that it is more helpful to others. Would it be possible for you to start a new post for each of the two vehicles?

Here is a link to start a new one:

https://www.2carpros.com/questions/new

Just copy and paste your questions to a new post.

I hope you understand.

Take care and good to hear from you.

Joe
Was this
answer
helpful?
Yes
No
Sunday, January 22nd, 2023 AT 4:18 PM

Please login or register to post a reply.