Electrical Question!

Tiny
JARED PANEK
  • MEMBER
  • 2008 BUICK LESABRE
  • AUTOMATIC
  • 85,000 MILES
Can I run a small tv with Input Power: AC 100-240V 50/60Hz 30W off of a power inverter 1.74AMPS 200watts off of my cigarette lighter as my car is running? Will do any damage to the battery or alternator? I just want to run it for a short period of time thank you
Monday, September 18th, 2023 AT 8:29 PM

2 Replies

Tiny
JACOBANDNICKOLAS
  • MECHANIC
  • 110,192 POSTS
Hi,

You should be fine. The inverter will change the DC voltage to an AC current. As far as the power needs, you have more than enough wattage. It shouldn't hurt a thing. Actually, if there was an excessive power draw, it would cause the fuse to fail before damaging anything.

Let me know if this helps.

Take care,

Joe
Was this
answer
helpful?
Yes
No
Monday, September 18th, 2023 AT 8:47 PM
Tiny
CARADIODOC
  • MECHANIC
  • 34,481 POSTS
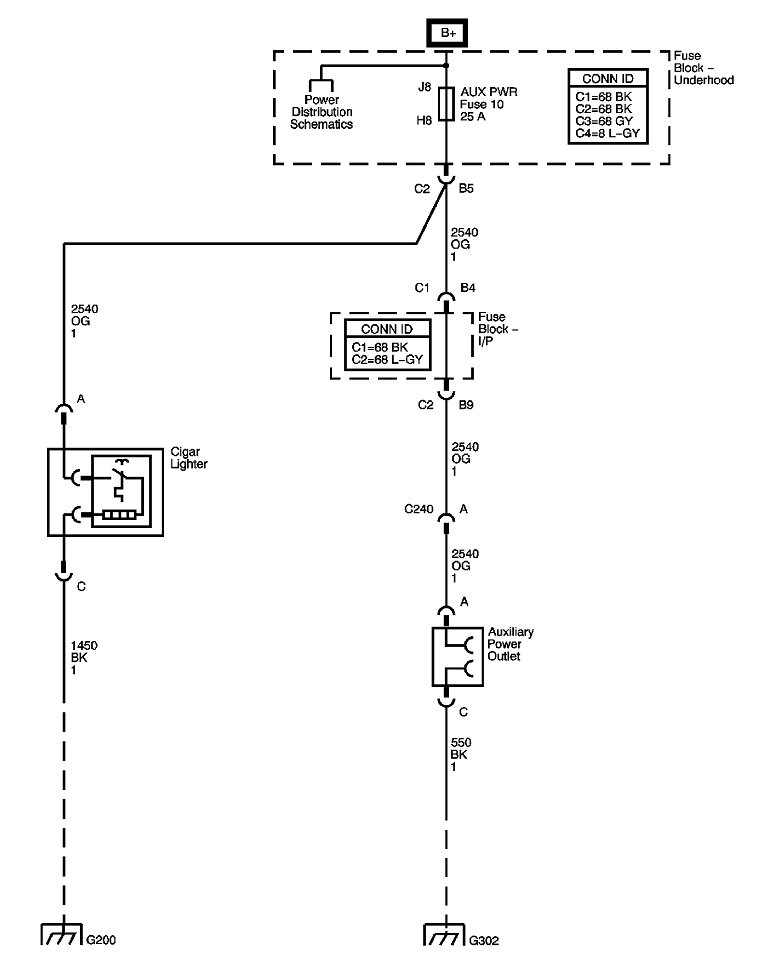
Sure. I did this for a couple of years when I was away from home but couldn't bear to miss an episode of Last Man Standing! The only question has to do with the fuse for that circuit. Both the cigarette lighter and the power outlet are fed from fuse # 10, a 25-amp fuse. If your tv uses 30 watts, (power = volts x amps), that's.25 amp. That seems awfully low unless this is a really tiny tv.

Regardless, since the inverter runs on one tenth the voltage, it needs to draw ten times as much current to deliver the same power. .25 x 10 - 2.5 amps. That's well within the fuse rating for the power outlet. 2.5 amps x 12 volts = 30 watts.

There was no LeSabre model in 2008. This diagram is for a LaCrosse, but it should be similar for other models.
Was this
answer
helpful?
Yes
No
Monday, September 18th, 2023 AT 8:54 PM

Please login or register to post a reply.