Drive indicator in the panel turning off

Tiny
SIMARUN08
  • MEMBER
  • 2002 HONDA CIVIC
  • 1.6L
  • 4 CYL
  • 2WD
  • AUTOMATIC
  • 120 MILES
I encounter it for maybe 10 times when I was driving at D, the indicator in the panel showing the letter D in green light suddenly turn off and the engine will be in neutral. A slight movement in the shift stick will make it back to normal.

Or sometimes when I move the stick from N to D, the D light will turn off too, and a slight move or shake of the shift stick will turn it on

When the D light in the panel turned off, the car will not move like it is in neutral
Tuesday, January 16th, 2024 AT 10:54 PM

6 Replies

Tiny
AL514
  • MECHANIC
  • 5,596 POSTS
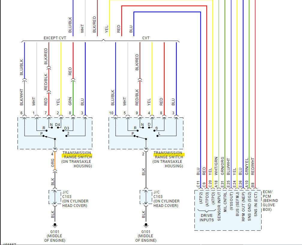
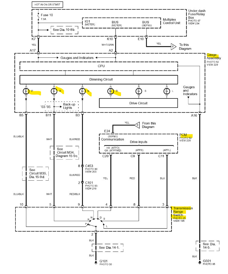
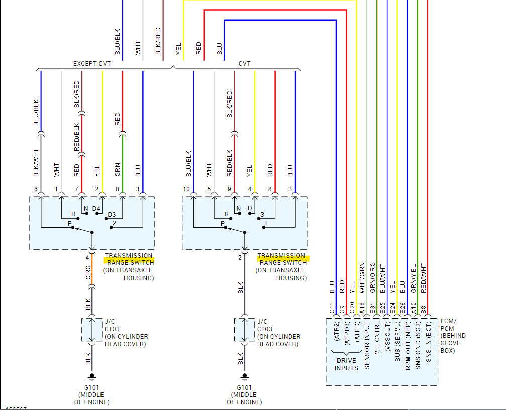
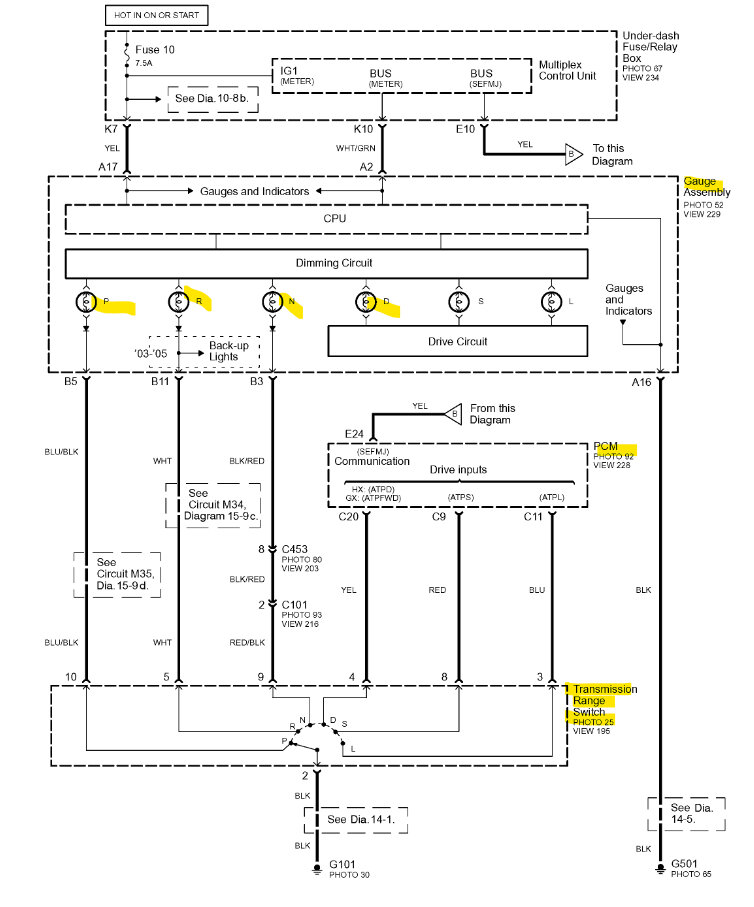
Hello, it sounds like the transmission range switch might be failing, it's the switch on the top of the transmission that is attached to the cable going to the shifter. It indicates to the instrument panel which gear you are in and is also an input to the engine computer. Or it can be an issue with the wiring to the switch, or possibly a stretched cable. Since the range switch is adjustable when being replaced. If you have a basic multimeter, it can be checked for continuity at the electrical connector while shifting through the gears. So you would start in Park for example, and check for continuity (zero resistance) on 2 of the pins at the connector and then shift into another gear and do the same test, there is a little table that shows which pins to check on the connector with the range switch disconnected from the wiring harness. If it needs to be replaced, it's done in Neutral, and for testing you should apply the parking brake and block the wheels, so the vehicle does not roll while testing.

I will post the information on the switch for testing and its location. You should be able to see with the hood open.

There looks to be an adjustment right at the Shift Lever as well, for the cable, if its stretched, it can readjusted to take up any slack that may be in the cable, it might be that the shift lever is not fully moving to either Drive completely, and getting almost stuck in between which can happen if there is slack in the cable. I'll post the diagram of that as well. It requires removing the center console panel to gain access to the adjuster nut on the side of the shifter.
Was this
answer
helpful?
Yes
No
Thursday, February 1st, 2024 AT 7:58 AM
Tiny
AL514
  • MECHANIC
  • 5,596 POSTS
These are the instructions for adjusting the cable at the Shift Lever. Make sure to follow the instructions step by step. If you have never adjusted one of these, or are uncomfortable doing it, you may want to take it to a shop. They can be difficult depending on how much room there is around the center console. It's possible the nut has come loose, or the cable has stretched, which this adjustment should take care of also depending on how much it's stretched. You can try this first before doing the test on the range switch itself. I think you'll notice any slack in the cable at this point if you have the center console cover off.
Was this
answer
helpful?
Yes
No
+1
Thursday, February 1st, 2024 AT 8:20 AM
Tiny
AL514
  • MECHANIC
  • 5,596 POSTS
This is for testing with a multimeter at the Range Switch connector unplugged from the rest of the wiring harness. So, in Park there should be continuity between pins 1,3, and 8 for example. Then reverse, pins 1 and 9, and so on.
Included are the wiring diagrams for the Range switch, they differ slightly depending on if its a CVT transmission or not, but the switch is in the same location and testing is the same.
If you get to testing the switch, be sure to inspect the connector for any corrosion on the connector pins for the switch and also in the wiring harness connector.

https://www.2carpros.com/articles/how-to-use-a-voltmeter
Was this
answer
helpful?
Yes
No
+1
Thursday, February 1st, 2024 AT 8:35 AM
Tiny
SIMARUN08
  • MEMBER
  • 30 POSTS
Hi, very informative answer. Thank you for these.
As answered on the other post, I've already replaced the sensor and it is now working so fine except that the shifting time changes from 2,000 RPMs to 2,200 RPMs after changing the sensor (1st gear to 2ng gear).
Was this
answer
helpful?
Yes
No
Thursday, February 1st, 2024 AT 3:23 PM
Tiny
AL514
  • MECHANIC
  • 5,596 POSTS
I did not see any other post on this case. The range switch doesn't have anything to do with shift points. And this post was about Shift lever indicator. So if you're having issues with shifting, you will need to start a new post on that question.
Was this
answer
helpful?
Yes
No
+1
Friday, February 2nd, 2024 AT 7:25 AM
Tiny
SIMARUN08
  • MEMBER
  • 30 POSTS
I will observe it first. Thank you for sharing your knowledge.
Was this
answer
helpful?
Yes
No
Friday, February 2nd, 2024 AT 4:04 PM

Please login or register to post a reply.