Wednesday, September 2nd, 2020 AT 11:20 PM
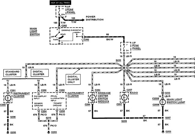
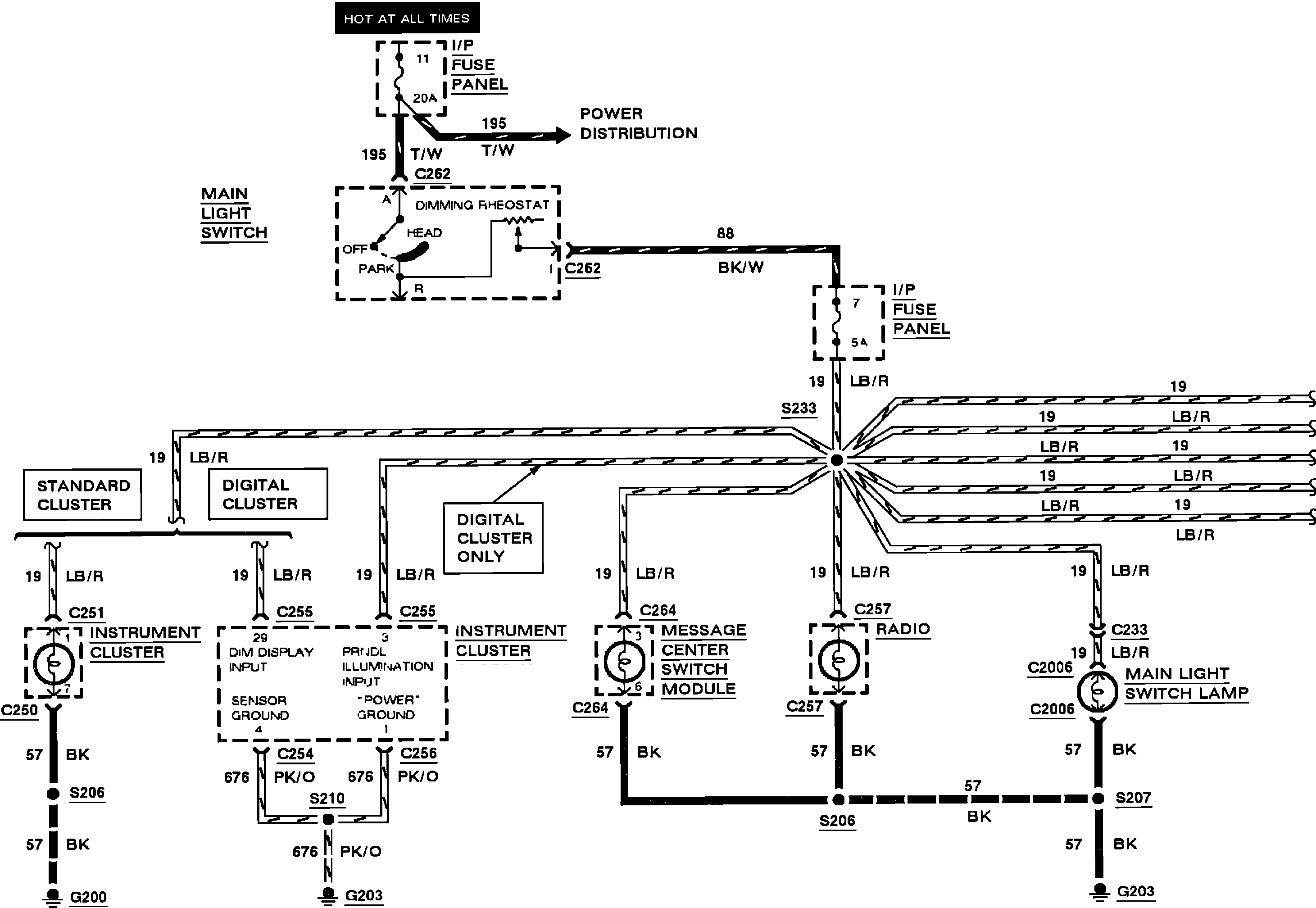
At night, my dash board is no longer illuminated. It seems like a minor issue to most but I can’t see which gear I’m putting the car in after starting it up. I can’t tell by feel alone. So far the only trouble shooting I’ve attempted was checking for a bad fuse inside the car. No luck there. Should I check the fuse panel located under the hood next? Could there be a light bulb that’s gone bad? If so, where is that located?

