PCM/BCM/immobilizer location

Tiny
CATAFINA
  • MECHANIC
  • 2008 MITSUBISHI OUTLANDER
  • 2.4L
  • 4 CYL
  • 2WD
  • AUTOMATIC
  • 74,750 MILES
Looking for the horn relay, starter relay and PCM/BCM/immobilizer. Thank you
Saturday, October 13th, 2018 AT 10:22 PM

40 Replies

Tiny
JACOBANDNICKOLAS
  • MECHANIC
  • 110,194 POSTS
Hi and thanks for using 2CarPros. Com.

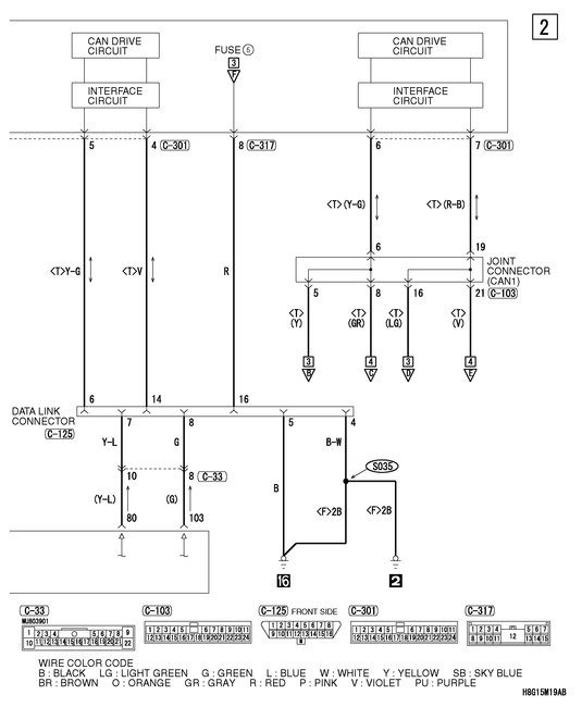
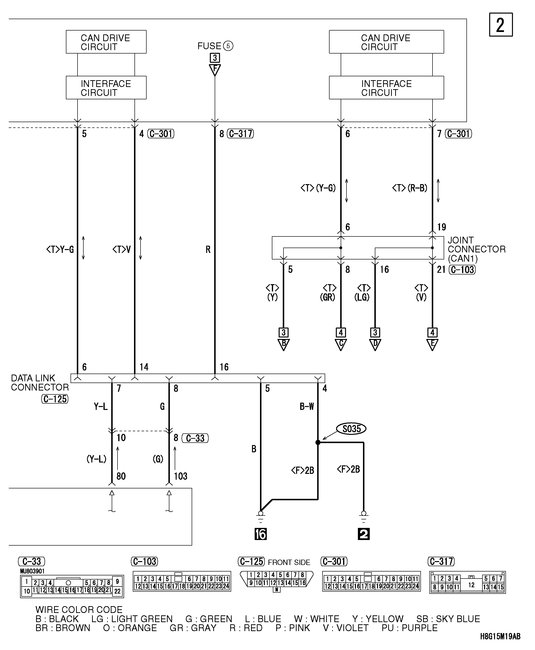
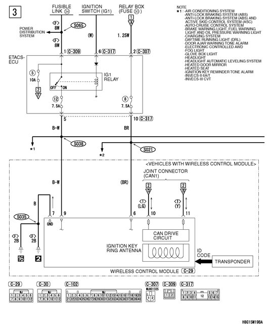
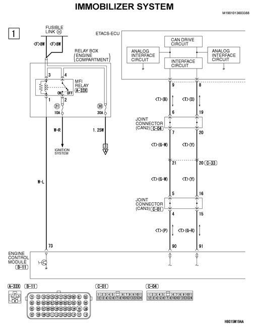
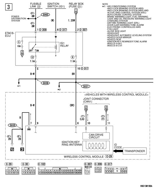
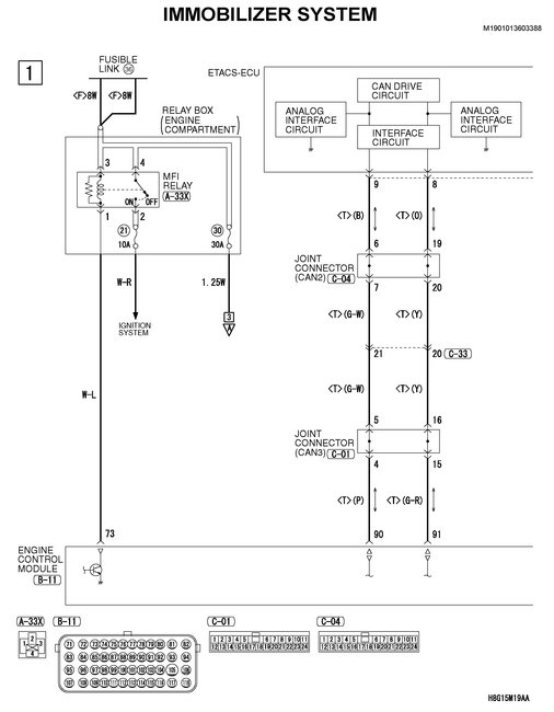
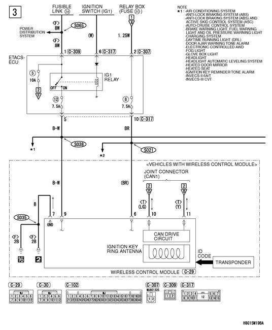
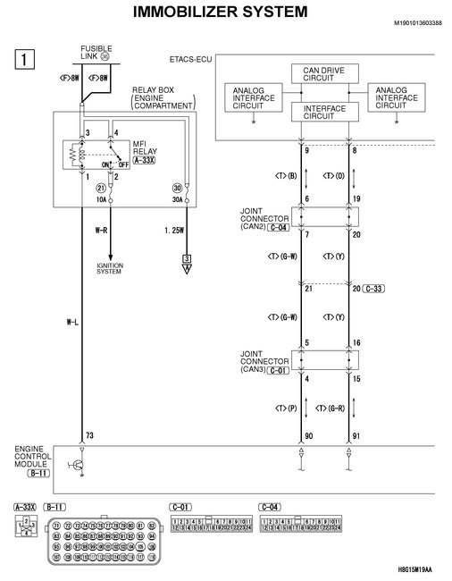
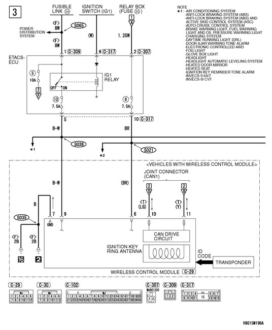
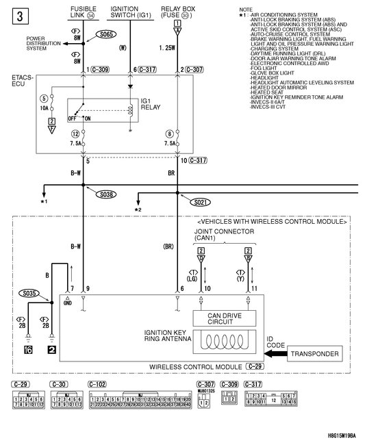
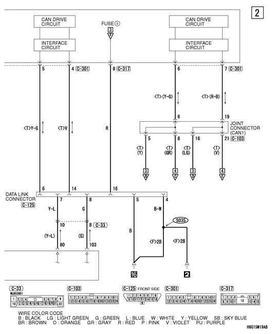
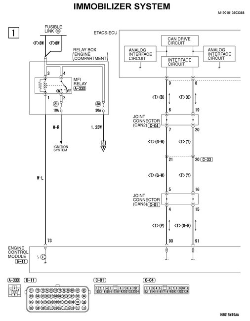
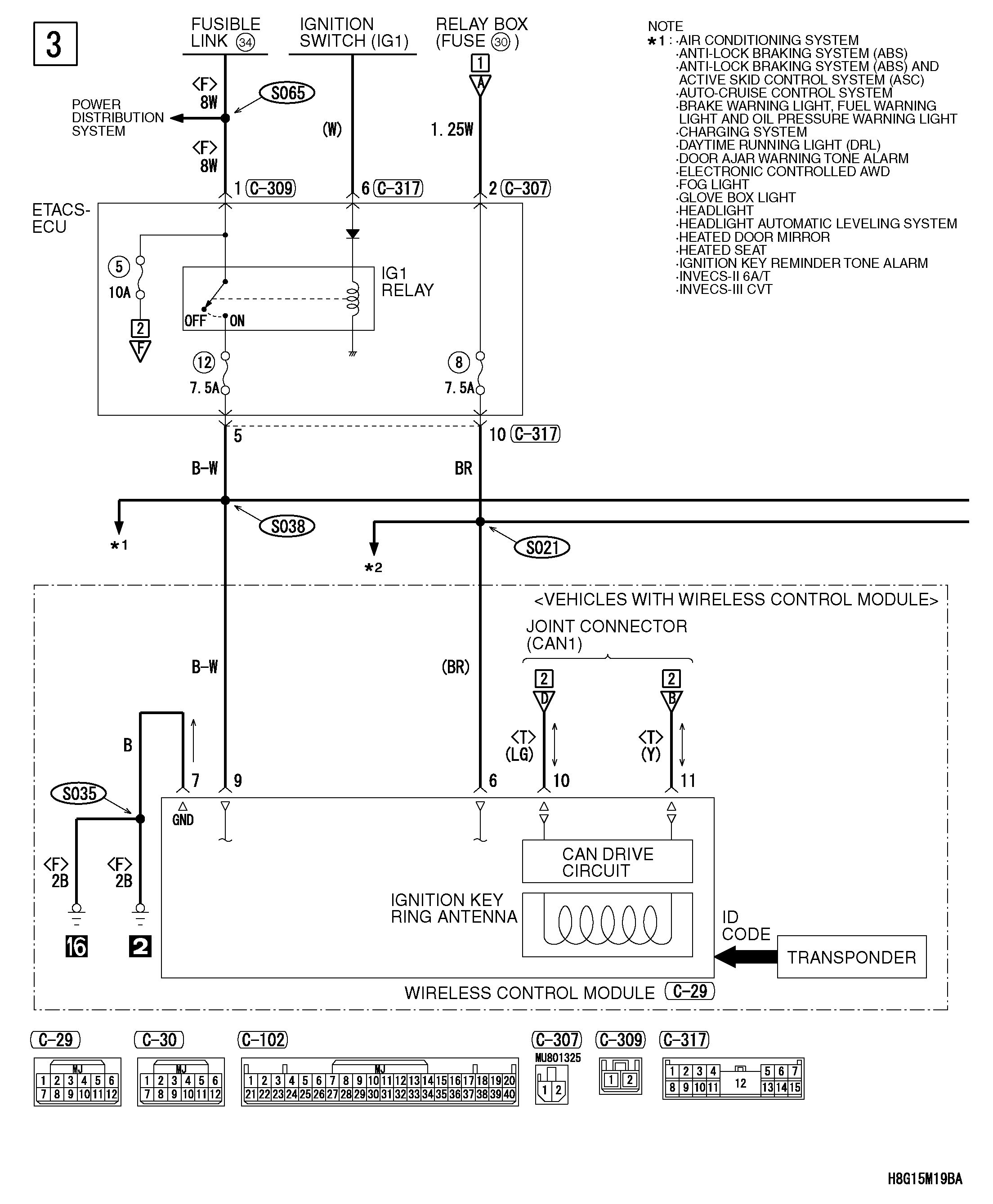
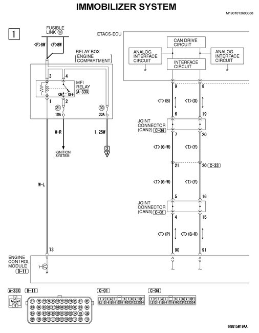
Picture 1 shows where the relay box us located (letter A). Picture 2 shows the locations of the horn and starter relays in the box. Picture 3 shows the body control module /ECU location. The next two pictures (4-5) are the wiring schematic for the immobilizer circuit. Picture 6 defines the roles of the major components. Picture 7 shows the system's configuration and picture 8 shows the location of the wireless control module (WCM).

I hope this helps. Let me know if you have other questions.

Take care,
Joe
Was this
answer
helpful?
Yes
No
Sunday, October 14th, 2018 AT 7:26 PM
Tiny
CATAFINA
  • MECHANIC
  • 98 POSTS
Here is the problem, car will not start.

When attempting to start the car, no anti-theft light, but I can lock it and the anti-theft light comes on steady and when unlock goes off. Tried a different car battery still a no-go. What am I missing? Does it have to do with a weak/dead key fob battery, wireless control module, BCM or immobilizer?

Tried different ways of resetting the system still the same, at times I am beginning to think ignition switch, starter relay or the starter itself.
Was this
answer
helpful?
Yes
No
Tuesday, October 16th, 2018 AT 2:14 PM
Tiny
JACOBANDNICKOLAS
  • MECHANIC
  • 110,194 POSTS
Welcome back:
I have to ask, why do you feel the anti theft is the issue? If the light is going off, it sounds like it is working correctly. Have you checked to see if there is both spark and fuel to the engine?

Here are links that show how to check both:

https://www.2carpros.com/articles/how-to-check-fuel-system-pressure-and-regulator

https://www.2carpros.com/articles/how-to-test-an-ignition-system

To answer your question, the fob battery or WCM should not cause a no start. However, the immobilizer can, but since the light goes out, it does not sound like the problem.

Bear with me. Not being there makes it confusing sometimes. Maybe I missed something you mentioned.

Let me know.

Joe
Was this
answer
helpful?
Yes
No
Tuesday, October 16th, 2018 AT 5:27 PM
Tiny
CATAFINA
  • MECHANIC
  • 98 POSTS
The anti-theft light stay constantly on when I lock the door and goes away when I open door there is no anti-theft light when attempting to start car. In this type of vehicle does it turn off ignition, fuel and starter all of it at one time?
Was this
answer
helpful?
Yes
No
Tuesday, October 16th, 2018 AT 5:39 PM
Tiny
CATAFINA
  • MECHANIC
  • 98 POSTS
Do you have a picture where I can find the immobilizer?
Was this
answer
helpful?
Yes
No
Tuesday, October 16th, 2018 AT 6:19 PM
Tiny
CATAFINA
  • MECHANIC
  • 98 POSTS
Tried jumping the starter relay socket and the starter motor cranks the engine over, but doing it from the ignition switch nothing happens something is preventing it. Now it sounds like fuel and spark. All the fuse is good checked it by a multi-meter. Does the key fob takes its signal from the ignition switch or WCM or immobilizer?

Something is not right which will you choose to go first between the WCM, ignition switch, and immobilizer? Joe, keep me going I will nail this one and comeback with the answer.
Was this
answer
helpful?
Yes
No
Tuesday, October 16th, 2018 AT 9:20 PM
Tiny
JACOBANDNICKOLAS
  • MECHANIC
  • 110,194 POSTS
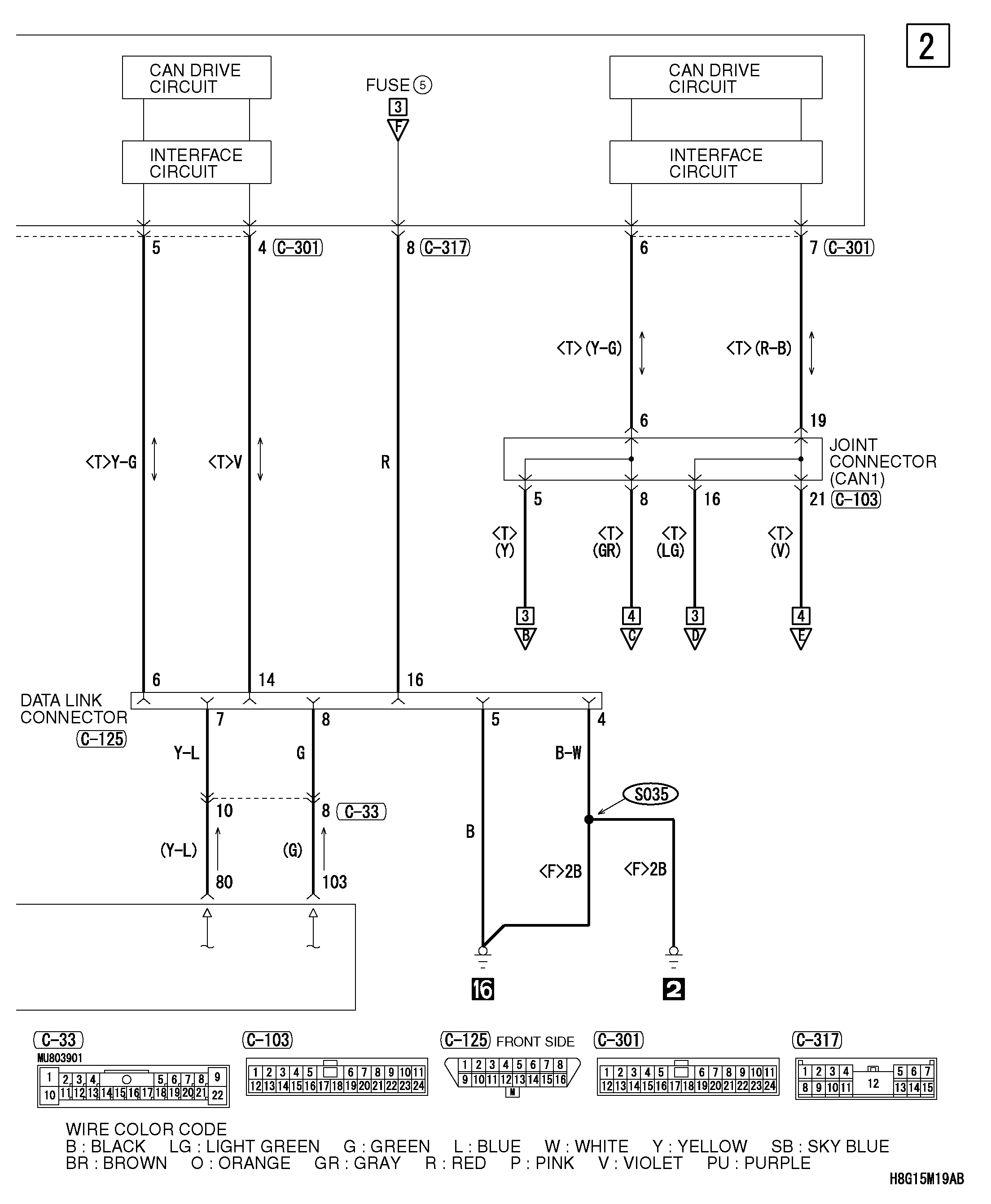
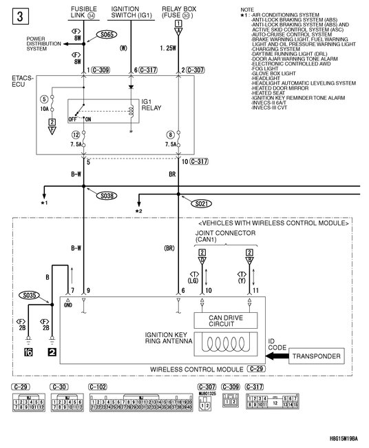
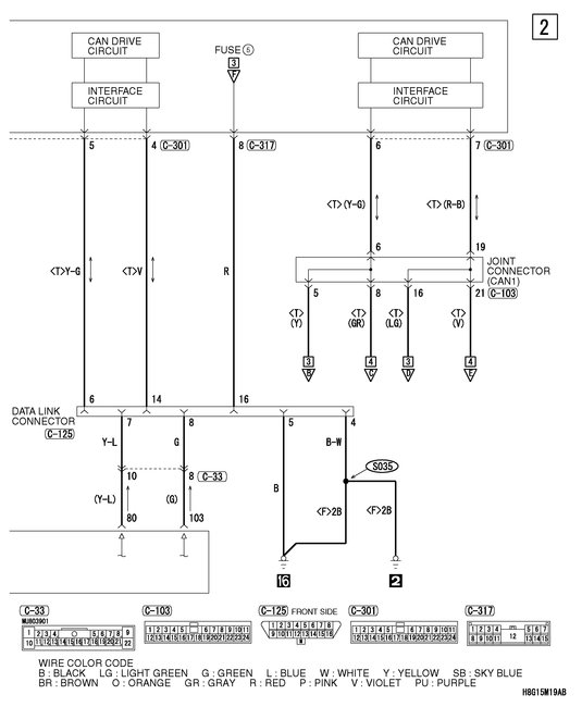
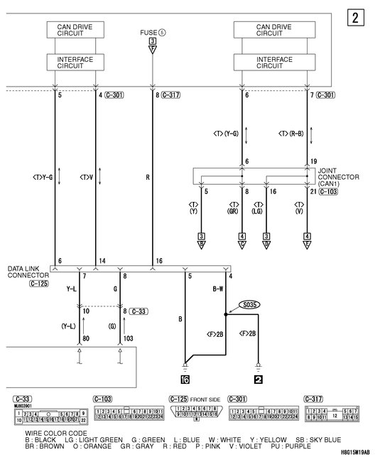
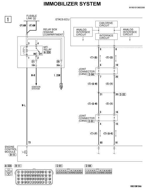
The FOB is recognized by the WCM. I attached all the schematics for the immobilizer system. Let me know if anything there is helpful. This could be a simple grounding issue.
Was this
answer
helpful?
Yes
No
Wednesday, October 17th, 2018 AT 4:34 PM
Tiny
CATAFINA
  • MECHANIC
  • 98 POSTS
Joe, can you point me to grounding point S-035 location/where I will start there and the MFI and Ignition relay? If you do not mind? Thank you it is very helpful.
Was this
answer
helpful?
Yes
No
Wednesday, October 17th, 2018 AT 5:35 PM
Tiny
JACOBANDNICKOLAS
  • MECHANIC
  • 110,194 POSTS
Not a problem. See attached picture 1 for under hood relay box orientation.

Relay A27X is the starter relay Relay A33X is the MFI relay.

As far as the ground you asked about, that is the DLC ground. There are two, pins 4 and 5. One is solid black, the other black/white tracer. Location is front left side of center floor console. See the partial picture attached.
Was this
answer
helpful?
Yes
No
Wednesday, October 17th, 2018 AT 6:03 PM
Tiny
CATAFINA
  • MECHANIC
  • 98 POSTS
How about the ignition relay? I will get back with you when am done chasing this car. Where is the immobilizer located at?

Funny thing about it, it starts when it wants to. Here is what am doing:to reset the system and it works:

Disconnect both cables for two hours.
Put the two cables together for five minutes.
Put the key in ignition.
Then connect positive and then neg cable.
Turn key to run position for fifteen minutes.
Then attempt to start.

It starts up about three times every time I do it. Now it will not do anything whatsoever.

Thank you, Joe
Was this
answer
helpful?
Yes
No
Wednesday, October 17th, 2018 AT 7:54 PM
Tiny
JACOBANDNICKOLAS
  • MECHANIC
  • 110,194 POSTS
Wow! That is a tough one. Even though you are taking everything (power wise) out of the system, one would think it would not make a difference. A bad electronic component usually does not change. As far as immobilizer, there is not a separate component. The ECU/ETACS (body control module) controls it. I have to be honest, I have only ever seen one ETACS go bad on one of these. It is not common, and it is not something you can plug and play. It needs flashed by a dealer to work. Even if you replace the one in the vehicle with a new one, it will not start.

Sorry for that great news. LOL

Let me know if you have other questions. I will try my best.
Was this
answer
helpful?
Yes
No
Thursday, October 18th, 2018 AT 4:26 PM
Tiny
CATAFINA
  • MECHANIC
  • 98 POSTS
Joe, I can hear the fuel pump On perhaps the injection pulses is eliminate and have power to the COP-maybe I'll find power for both and see if I can start it-you think it will work

Where, s the ECU/TACS (body control module) located
Was this
answer
helpful?
Yes
No
Thursday, October 18th, 2018 AT 6:12 PM
Tiny
JACOBANDNICKOLAS
  • MECHANIC
  • 110,194 POSTS
It is on the lower left side of the dash. See the two pictures attached. Picture 1 (locate letter G). Picture 2 shows the component.
Was this
answer
helpful?
Yes
No
Thursday, October 18th, 2018 AT 7:35 PM
Tiny
CATAFINA
  • MECHANIC
  • 98 POSTS
Cannot on the blower motor/climate control system without it starting now. Does it have to do with the BCM? If so might as well bring it in and get one and have them flash it.
Was this
answer
helpful?
Yes
No
Thursday, October 18th, 2018 AT 8:06 PM
Tiny
CATAFINA
  • MECHANIC
  • 98 POSTS
Joe, when you push the panic button should the horn and lights not comes on? It does not come on neither of them. What do you think?
Was this
answer
helpful?
Yes
No
Friday, October 19th, 2018 AT 12:56 AM
Tiny
JACOBANDNICKOLAS
  • MECHANIC
  • 110,194 POSTS
Yes, they should. If I had to guess, I have a feeling there is an issue with the ETACS. Honestly, at this point I think I would take it in and have it checked with the right equipment. Does anything with the fob work? If not, there could be an issue with the WCM.
Was this
answer
helpful?
Yes
No
Friday, October 19th, 2018 AT 7:31 PM
Tiny
CATAFINA
  • MECHANIC
  • 98 POSTS
Where is the WCM located at?

Do not know if the key fob is working okay. One of them is not working and the other key I am using to troubleshoot. Both key fobs battery is been in use since the car been bought never changed. Should I start with battery first then go from there?
Was this
answer
helpful?
Yes
No
Friday, October 19th, 2018 AT 7:41 PM
Tiny
JACOBANDNICKOLAS
  • MECHANIC
  • 110,194 POSTS
On the dash near key. See attached pictures.
Was this
answer
helpful?
Yes
No
Friday, October 19th, 2018 AT 9:44 PM
Tiny
CATAFINA
  • MECHANIC
  • 98 POSTS
Now is the time to check it. I will let you know what is going on. Thanks
Was this
answer
helpful?
Yes
No
Friday, October 19th, 2018 AT 11:33 PM
Tiny
CATAFINA
  • MECHANIC
  • 98 POSTS
Does it have an ignition relay? Have power to injectors and coils all of them now. What part of the system pulses it the ETACS or WCM?

The key fob only lock/unlock the door-when lock the anti-theft lite comes on then blinks while lock.
Was this
answer
helpful?
Yes
No
Saturday, October 20th, 2018 AT 4:05 PM

Please login or register to post a reply.