A/C compressor relay and/or fuse locations

Tiny
ABLEZEPHY
  • MEMBER
  • 1996 TOYOTA CAMRY
  • 2.0L
  • 4 CYL
  • 2WD
  • AUTOMATIC
  • 700,000 MILES
The A/C compressor would trip off occasionally and comes back on its own.

I want to locate the fuse and the relay to check for possible partial contact.

Thanks
Wednesday, March 25th, 2020 AT 9:11 AM

1 Reply

Tiny
KASEKENNY
  • MECHANIC
  • 18,907 POSTS
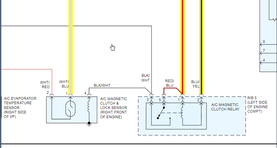
The relay is in the engine junction block on the left side of the engine compartment.

If this is not the issue can you give a little more detail on what this is doing? The compressor is meant to cycle on and off depending on pressure and temperature but if it shuts off for a while then just kicks on when the A/C is not turned on, this does sound like a wiring issue on your vehicle.

Do you have the push button control or the lever type A/C control?

https://www.2carpros.com/articles/car-air-conditioner-not-working-or-is-weak
Was this
answer
helpful?
Yes
No
Wednesday, March 25th, 2020 AT 9:38 AM

Please login or register to post a reply.