When I insert the key that dash lights flash and the odometer spins?

Tiny
DELANEKP
  • MEMBER
  • 2003 DODGE CARAVAN
  • 6 CYL
  • FWD
  • AUTOMATIC
  • 140,000 MILES
When I insert the key that dash lights flash and the odometer spins. It will not crank over?
Saturday, January 29th, 2011 AT 1:02 AM

1 Reply

Tiny
SQM
  • MECHANIC
  • 6,383 POSTS
Hello,

Just so that we cover all the possibilities, have you tried to jump start the vehicle?
When you turn the key does it make any noise?
Can you hear the starter clicking? what about any other noise?

If the battery is good, then you would have a issue with either the starter, starter relay or ignition switch. Any of these items can keep the vehicle from cranking over and starting.

https://www.2carpros.com/articles/starter-not-working-repair

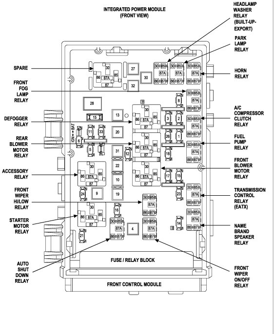
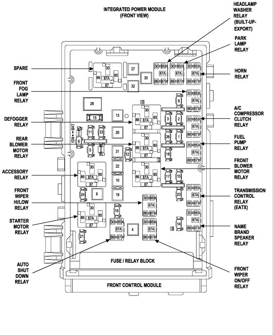
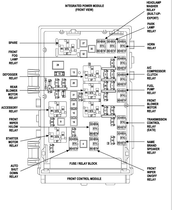
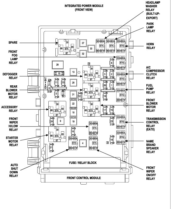
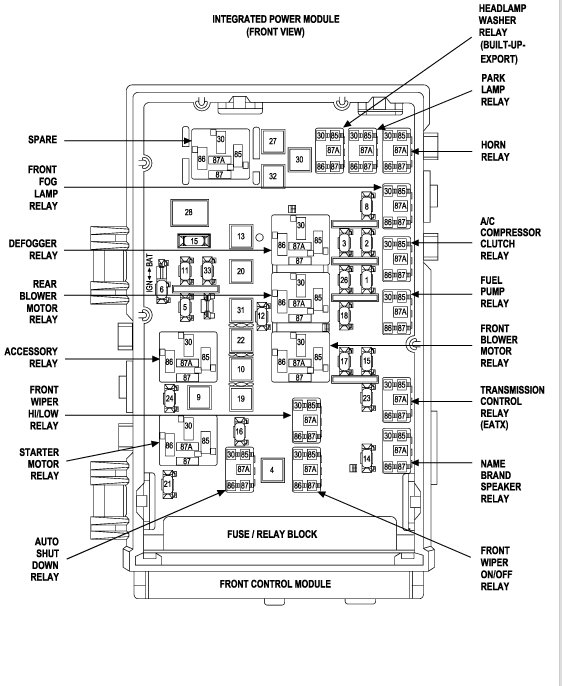
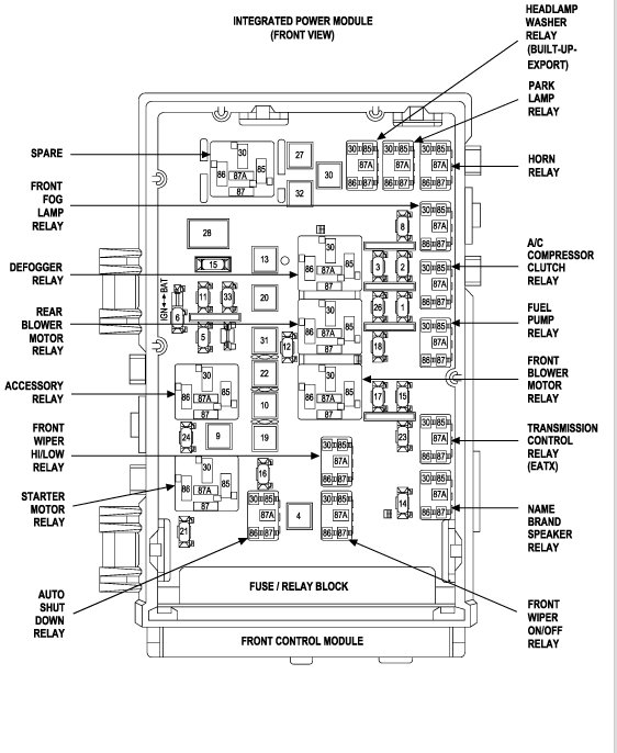
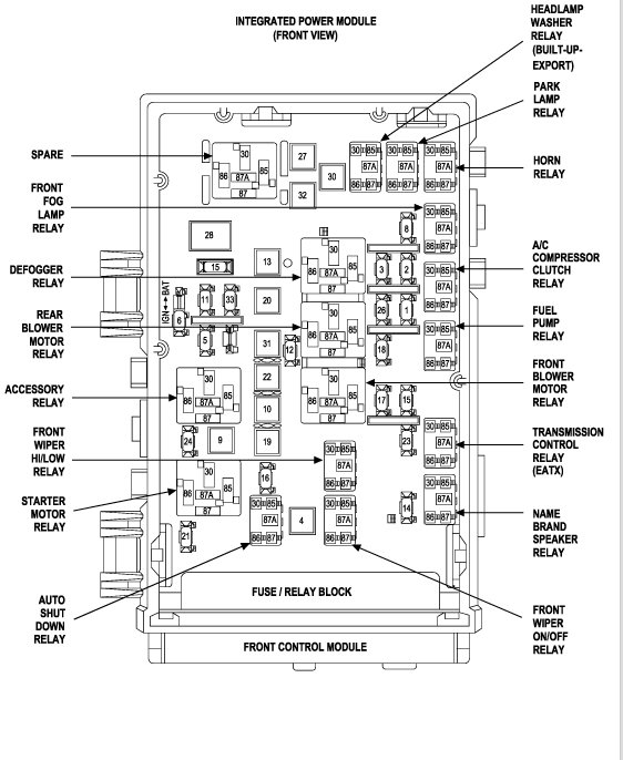
Firs you want the check the starter relay. It is located in the fuse block under the hood (see attached diagram below).
That relay can be tested. Please refer to this article on how to test relays:

https://www.2carpros.com/articles/how-to-check-an-electrical-relay-and-wiring-control-circuit
https://www.2carpros.com/articles/how-to-use-a-voltmeter

I have also include the relay diagnostics procedure as well as starter replacement diagrams for your reference.

Please let me know of any questions.

Thank you.
Was this
answer
helpful?
Yes
No
Tuesday, August 3rd, 2021 AT 7:13 AM

Please login or register to post a reply.