Tuesday, June 4th, 2013 AT 8:37 AM
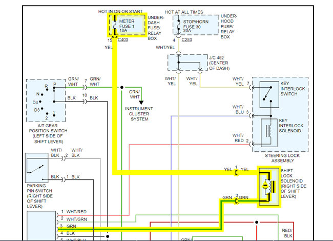
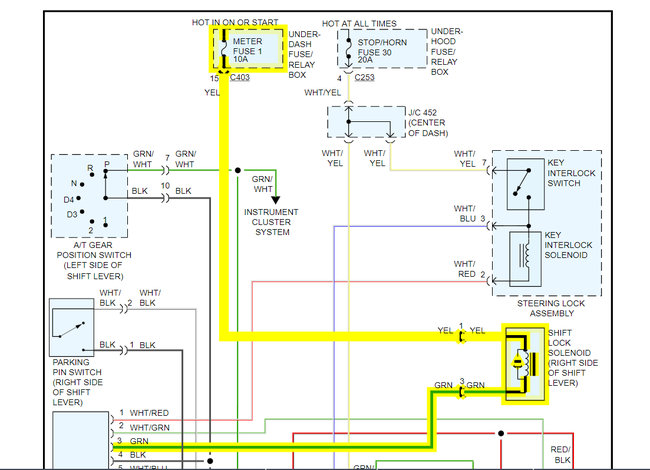
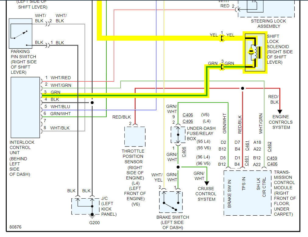
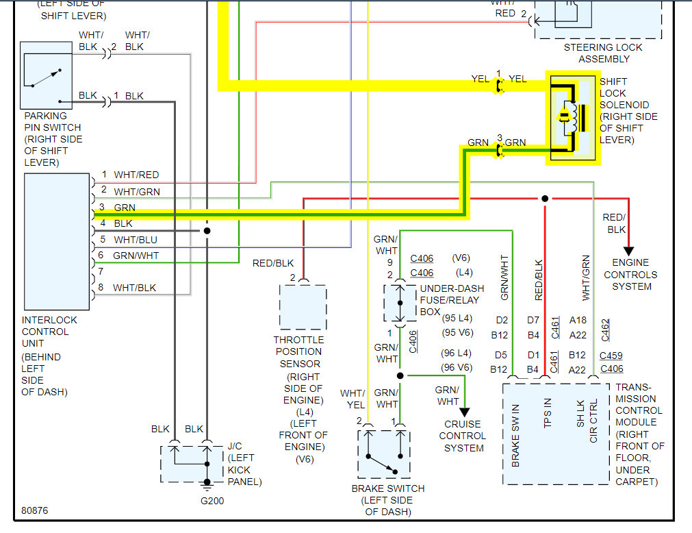
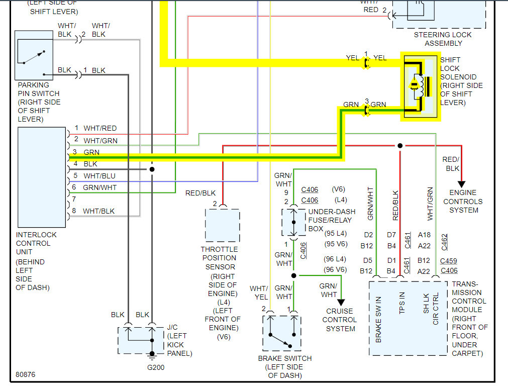
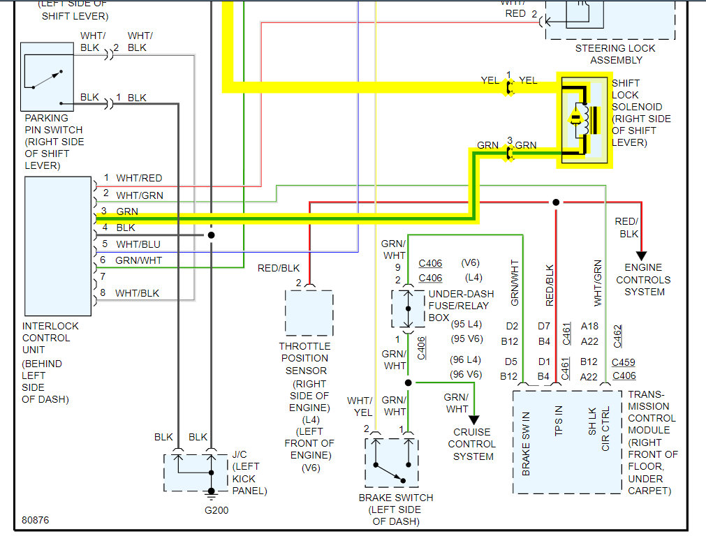
When I turn my car on, start the engine and press on the break like normal, for some reason when I go to shift out of park the car won't allow me to. The button the shift lever doesn't press down all the way and unlock like normal. There is a key whole next to the shift lever labeled shift lock key. The only way I can move my car is if I turn the car off, press my key into that key hole, press the button on the shift lever and keep it pressed down as I remove the key and put it inside the ignition and start the car. From there I am free to shift to any gear under park. Once I switch to park I cannot change gears from there. I also notice that my windows will not open. Have you encountered a problem like this before? I feel maybe the car doesn't sense when I am breaking.






