Turn signal stays on?

Tiny
LOSTONTHIS12
  • MEMBER
  • 2017 FORD ESCAPE
  • 1.5L
  • TURBO
  • 4WD
  • AUTOMATIC
  • 63,000 MILES
The turn signal bulbs front, and back are staying lighted, not flashing. Car is off and key is removed. If it's the relay, where is it? My owner's manual does not specify anything in the fuse relay area that has turn signal listed for anything.
Monday, January 2nd, 2023 AT 2:31 AM

1 Reply

Tiny
KEN L
  • MASTER CERTIFIED MECHANIC
  • 55,481 POSTS
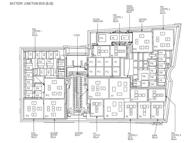
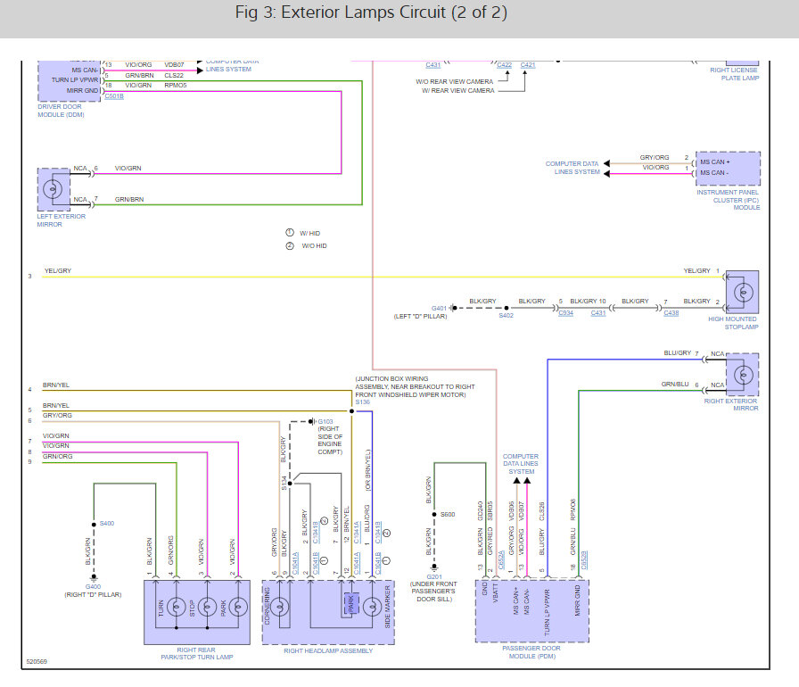
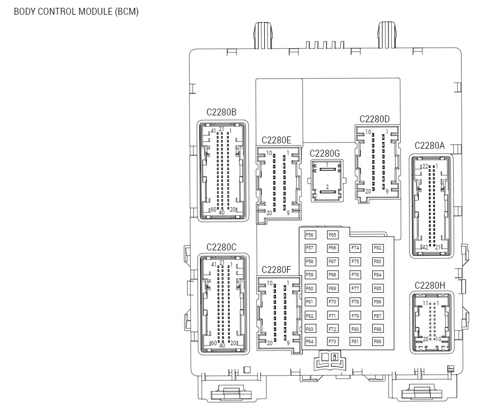
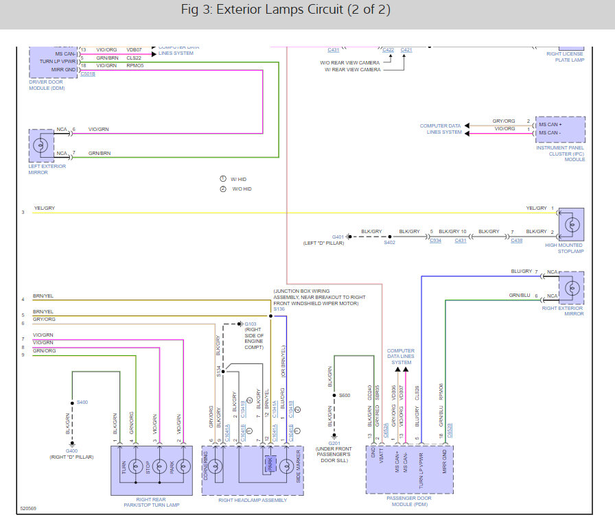
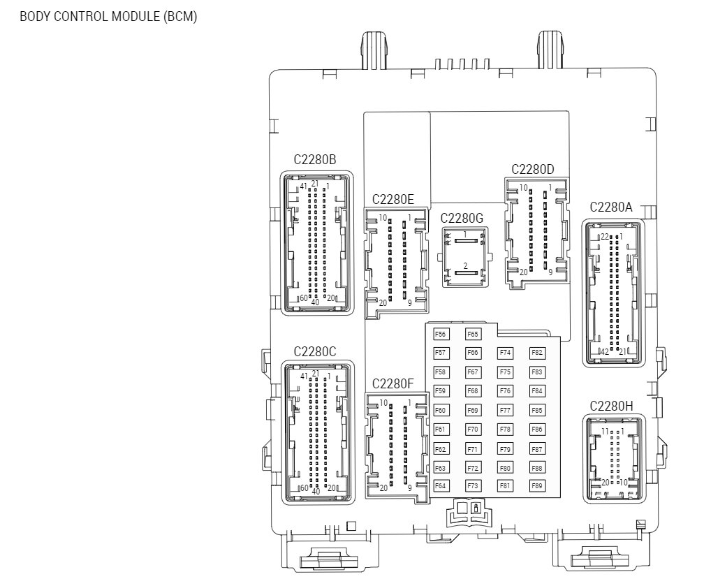
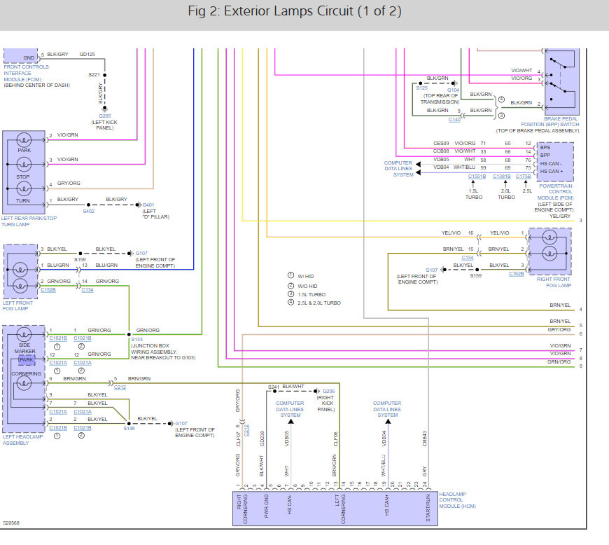
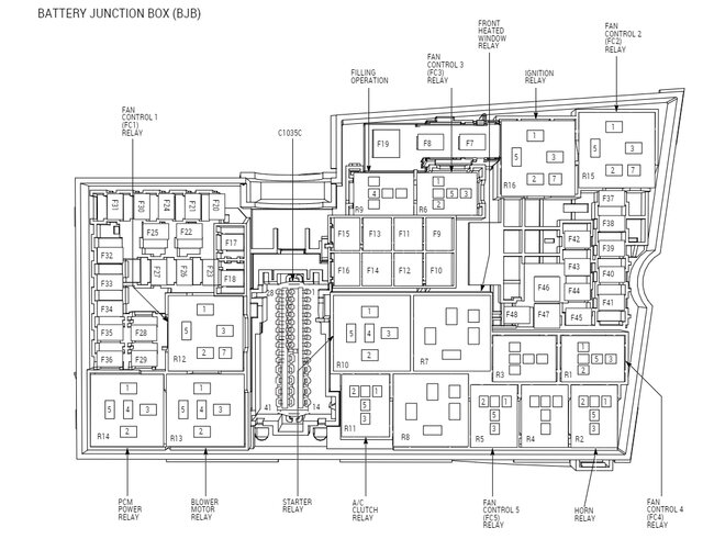
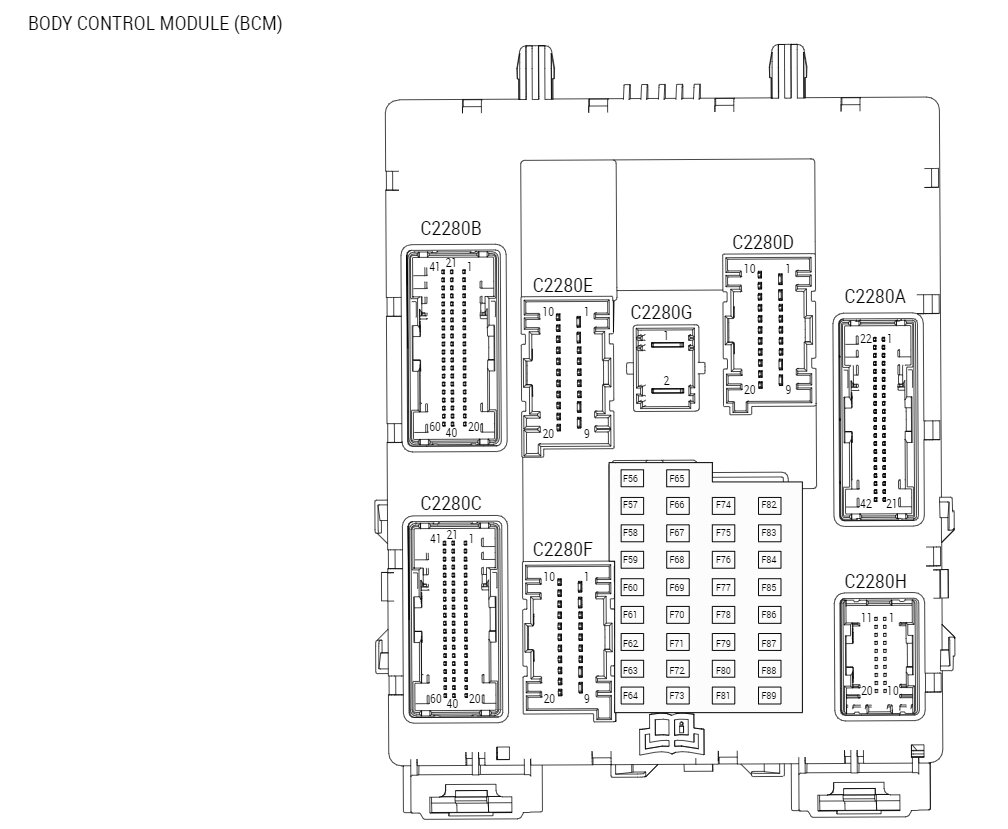
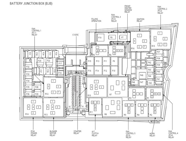
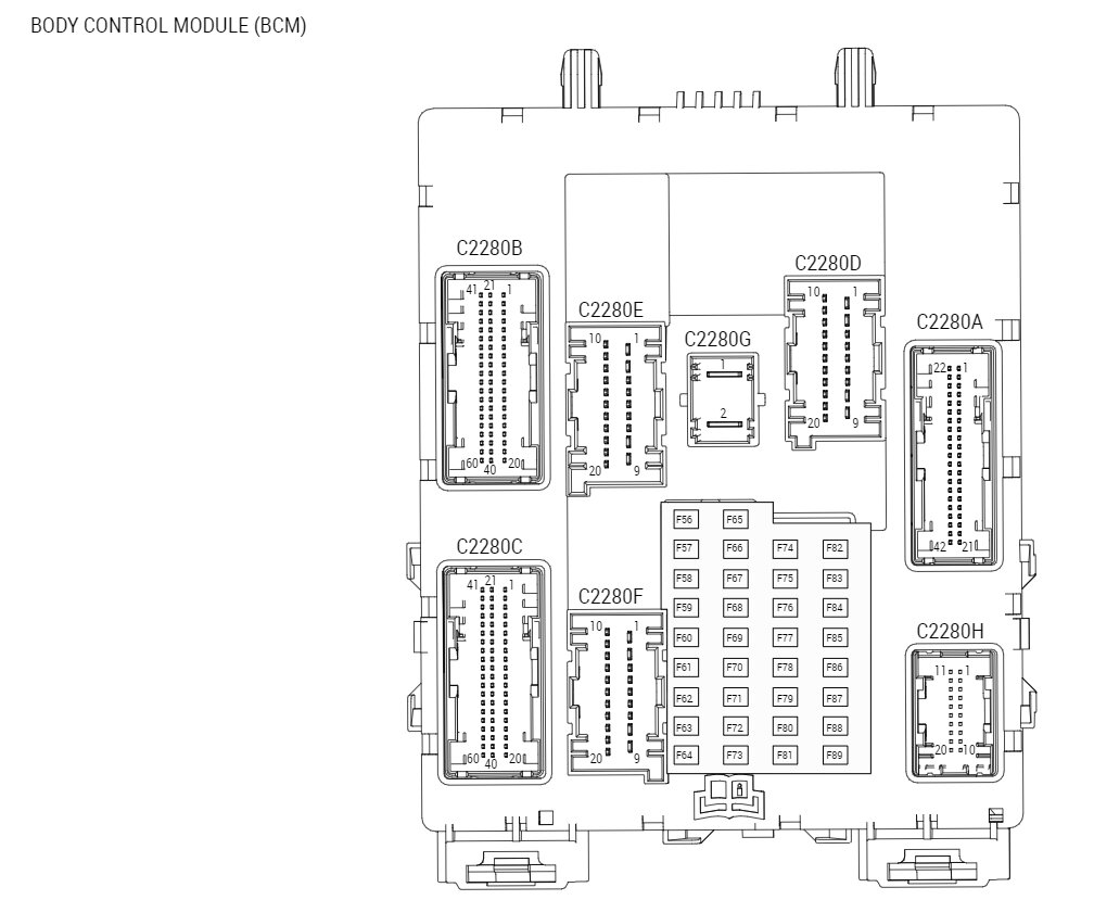
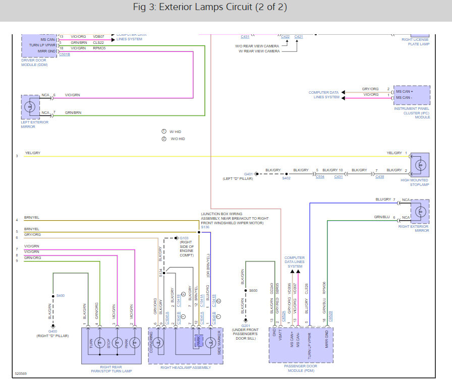
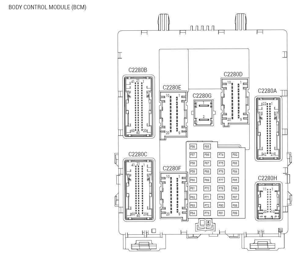
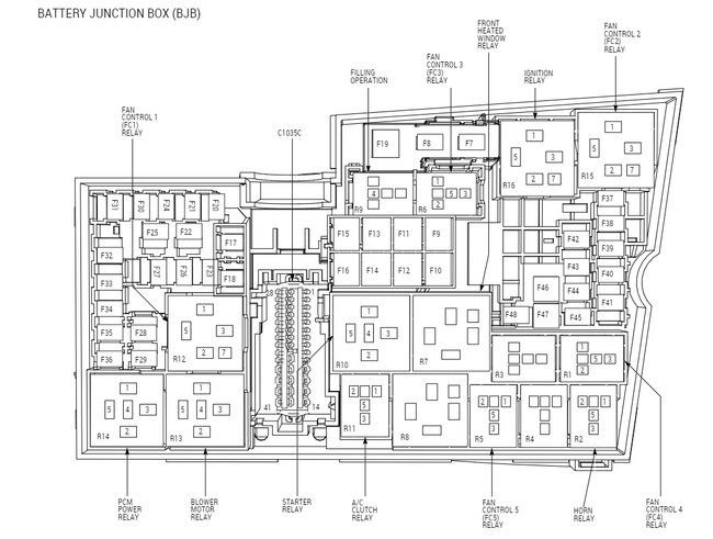
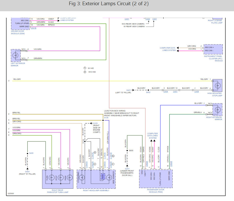
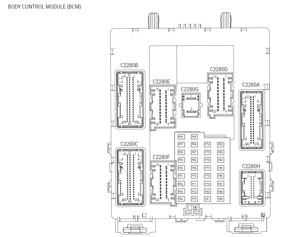
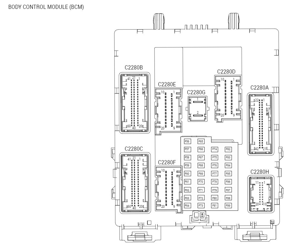
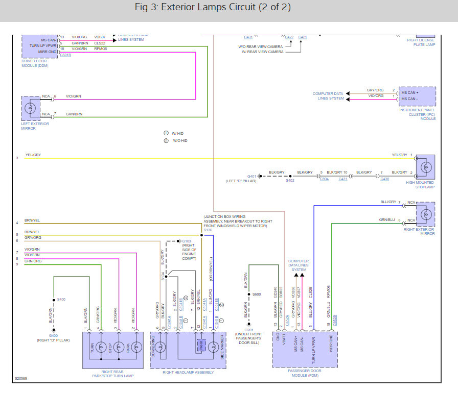
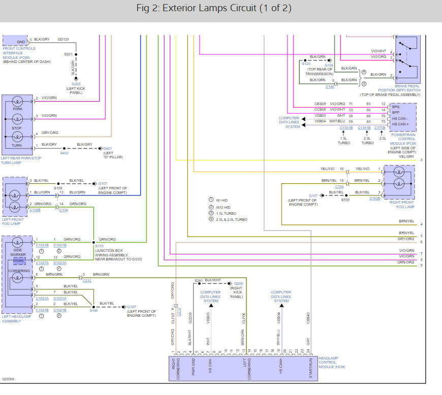
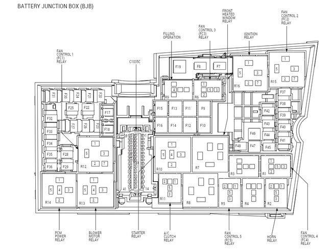
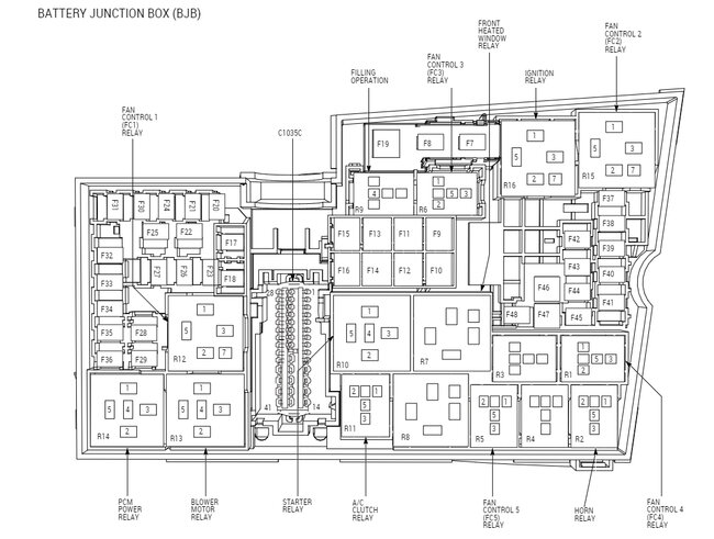
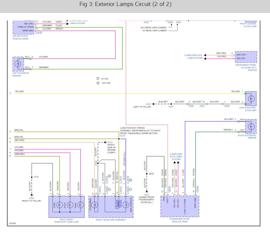
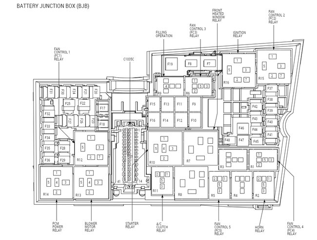
Is sounds like the BCM is not working correctly, but first we need to check the fuses# 43, 21 and 24 in the fuse panel under the hood and fuse# 4 and 5 in the rear fuse panel behind the right quarter panel. here is a guide to help check the fuses with the key system on, engine off. I have also included the fuse location and wiring diagrams of how the system works so you can see for yourself. Also, the BCM replacement instructions in case the fuses are all good. You can get a rebuilt/pre-programmed unit by searching google or eBay.

https://www.2carpros.com/articles/how-to-check-a-car-fuse

Check out the images (below). Let us know what happens and please upload pictures or videos of the problem.
Was this
answer
helpful?
Yes
No
Monday, January 2nd, 2023 AT 12:50 PM

Please login or register to post a reply.