Transmission will not engage in any gear

2007 DODGE DAKOTA
249,000 MILES • 4.7L • V8 • 4WD • MANUAL
Avatar
LILRAYLAN56
  • MEMBER
  • 4 POSTS
Just change the transmission filters in the truck and now it will not go in engage in any gear. the fluid level was fine. any thing you know we should look for next?
Mar 19, 2021 at 11:23 AM
Repair Safety Notice: This information is for general instructional purposes only. Vehicle repair can be dangerous. Verify all information, follow manufacturer service procedures, use proper tools and safety equipment, and consult a qualified repair shop when needed.
Advertisement
Avatar
ASEMASTER6371
  • CAR REPAIR CONTRIBUTOR
  • 52,796 POSTS
Good afternoon,

Make sure the filter did not fall down in the pan.

Make sure the transfer case is not in neutral. Does it engage in any gear in any position in 2 or 4 wheel drive?

If all that is good, it could be either the front pump or the torque converter that has failed inside the transmission. I posted below the procedure for line pressure testing for the transmission to see if the front pump is working.

https://www.2carpros.com/articles/automatic-transmission-problems

Roy

NOTE: One of the oil pan bolts (5) has a sealing patch applied from the factory. Separate this bolt for reuse.

2. Loosen pan bolts and tap the pan at one corner to break it loose allowing fluid to drain, then remove the oil pan.
3. Install a new filter and O-ring on bottom of the valve body and tighten retaining screws to 5 Nm (45 in. lbs.).

NOTE: Before installing the oil pan bolt (5) in the bolt hole located between the torque converter clutch on and U/D clutch pressure tap circuits, it will be necessary to replenish the sealing patch on the bolt using Mopar(R) Lock & Seal Adhesive.

4. Clean the oil pan and magnet. Reinstall pan using new Mopar(R) Silicone Adhesive sealant. Tighten oil pan bolts to 20 Nm (14.5 ft. lbs.).
5. Pour four quarts of Mopar(R) ATF+4, Automatic Transmission Fluid, through the dipstick opening.
6. Start engine and allow to idle for at least one minute. Then, with parking and service brakes applied, move selector lever momentarily to each position, ending in the park or neutral position.
7. Check the transmission fluid level and add an appropriate amount to bring the transmission fluid level to 3mm (1/8 in.) below the lowest mark on the dipstick.
8. Recheck the fluid level after the transmission has reached normal operating temperature, 82° C (180° F).
9. To prevent dirt from entering transmission, make certain that dipstick is fully seated into the dipstick opening.

HYDRAULIC PRESSURE TEST

An accurate tachometer and pressure test gauges are required. Oil Pressure Gauge C-3293-SP has a 300 psi range and is used at all locations where pressures exceed 100 psi.

Pressure Test Port Locations


imageOpen In New TabZoom/Print


Only two pressure ports are supplied on the transmission case. The torque converter clutch apply (3) and release (1) ports are located on the right side of the transmission case.


imageOpen In New TabZoom/Print


To determine the line pressure, there are two available methods. The scan tool can be used to read line pressure from the line pressure sensor. The second method is to install Line Pressure Adapter 8259 (3) into the transmission case and then install the pressure gauge and the original sensor (2) into the adapter. This will allow a comparison of the scan tool readings and the gauge reading to determine the accuracy of the line pressure sensor. The scan tool line pressure reading should match the gauge reading within ±10 psi.


imageOpen In New TabZoom/Print


In order to access any other pressure tap locations, the transmission oil pan must be removed, the pressure port plugs removed and Pressure Tap Adapter 8258-A (2) installed. The extensions supplied with Adapter 8258-A will allow the installation of pressure gauges to the valve body.


imageOpen In New TabZoom/Print


Refer to the Pressure Tap Locations graphic for correct pressure tap location identification.

TEST PROCEDURE

All pressure readings should be taken with the transmission fluid level full, transmission oil at the normal operating temperature, and the engine at 1500 rpm. Check the transmission for proper operation in each gear position that is in question or if a specific element is in question, check the pressure readings in at least two gear positions that employ that element. Refer to the Hydraulic Schematics to determine the correct pressures for each element in a given gear position.

Note: The RFE utilizes closed loop control of pump line pressure. The pressure readings may therefore vary greatly but should always follow line pressure.

Some common pressures that can be measured to evaluate pump and clutch performance are the upshift/downshift pressures and the garage shift pressures. The upshift/downshift pressure for all shifts is 120 psi. The garage shift pressure when performing a N-R shift is 220 psi. The garage shift pressure for the R-N shift is 120 psi and 135 psi for N-1 shifts.
Mar 19, 2021 at 11:38 AM
Advertisement
Avatar
LILRAYLAN56
  • MEMBER
  • 4 POSTS
It does not engage in any gear. Let me check on what you suggested and I will get back with you.
Mar 19, 2021 at 12:56 PM
Avatar
ASEMASTER6371
  • CAR REPAIR CONTRIBUTOR
  • 52,796 POSTS
Sounds like a plan.

Roy
Mar 19, 2021 at 1:00 PM
Avatar
LILRAYLAN56
  • MEMBER
  • 4 POSTS
Do you have to have a transmission pressure sensor flashed before putting in a new one?
Mar 20, 2021 at 12:04 PM
Avatar
ASEMASTER6371
  • CAR REPAIR CONTRIBUTOR
  • 52,796 POSTS
No, it is not a module.

I do not believe that is the issue as I already stated.

Roy
Mar 20, 2021 at 12:16 PM
Avatar
LILRAYLAN56
  • MEMBER
  • 4 POSTS
Well, the transmission filters are all installed correctly. I did notice that the screw in filter did not appear to have any fluid through it. I do not have the tools to check the pressure. I have a code reader but do not see any place that shows pressure on it the codes that are popping are P0841 and P0507. Any suggestions?
Mar 21, 2021 at 8:02 AM
Avatar
ASEMASTER6371
  • CAR REPAIR CONTRIBUTOR
  • 52,796 POSTS
Okay, I attached the description and the flow chart for the 841 code.

The 507 is engine-related, not transmission-related.

Roy



P0841-LR PRESSURE SWITCH RATIONALITY


imageOpen In New TabZoom/Print


For a complete wiring diagram Refer to Diagrams/Electrical. See: Vehicle > Electrical

Theory of Operation

The Transmission system uses three pressure switches to monitor the fluid pressure in the LR, 2/4, and OD elements. The pressure switches are continuously monitored for the correct states in each gear. If a set condition is identified, 1st gear and torque converter lock-up (EMCC) will be inhibited. The vehicle will launch in 2nd gear and shift normally through the gears without allowing EMCC. If during the same key start, the set condition is no longer valid, the transmission will return to normal operation (1st and EMCC available). Limp-in will not occur unless DTC P0841 is accompanied by a code P0706 and the MIL will illuminate after 5 minutes of substituted operation.

- When Monitored:

Whenever the engine is running.

- Set Condition:

The DTC is set if one of the pressure switches are open or closed at the wrong time in a given gear. If the problem is identified for 3 successive key starts, the transmission will go into Limp-in mode and the MIL will turn on after 10 seconds of vehicle operation.


imageOpen In New TabZoom/Print


Always perform the 42RLE Pre-Diagnostic Troubleshooting procedure before proceeding. See: Automatic Transmission/Transaxle > Initial Inspection and Diagnostic Overview > Pre-Diagnostic Check Out

Pressure Switch States
imageOpen In New TabZoom/Print


Diagnostic Test

1. CHECK FOR TCM POWER INPUT OR TRANSMISSION CONTROL RELAY DTCs

With the scan tool, check for TCM Power Input or Transmission Control Relay DTCs.

Are there any TCM Power Input or Transmission Control Relay DTCs present?

Yes

- Refer to the Transmission and Drivetrain and perform the appropriate diagnostic procedure.

No

- Go to 2

2. CHECK FOR LOSS OF PRIME DTC

With the scan tool, check for other Transmission DTCs.

Is the DTC P0944 present also?

Yes

- Refer to the Transmission and Drivetrain and perform the appropriate diagnostic procedure.

No

- Go to 3

3. CHECK TO SEE IF P0841 IS CURRENT

With the scan tool, view DTCs.

Is the status active for this DTC or is the STARTS SINCE SET counter 2 or less?

Yes

- Go to 4

No

- Go to 8

4. PCM AND WIRING

Turn the ignition off to the lock position.

Remove the Starter Relay.

CAUTION: Removal of the Starter Relay will prevent the vehicle from being started in gear.

WARNING: The Starter Relay must be removed from the PDC. Failure to do so can result in personal injury or death.

NOTE: Removal of the Starter Relay is to prevent a Transmission, NO RESPONSE, condition and disable the starter.

Install the Transmission Simulator, Miller tool #8333 and the Electronic Transmission Adapter kit.

Ignition on, engine not running.

With the Transmission Simulator, turn the Pressure Switch selector to L/R.

With the scan tool, monitor the L/R Pressure Switch state while pressing the Pressure Switch Test button on the Transmission Simulator.

Did the L/R Pressure Switch state change?

Yes

- Replace the Transmission Solenoid/Pressure Switch Assembly.
- Perform 42RLE TRANSMISSION VERIFICATION TEST - VER 1. See: A L L Diagnostic Trouble Codes ( DTC ) > Verification Tests

No

- Go to 5

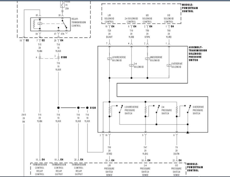
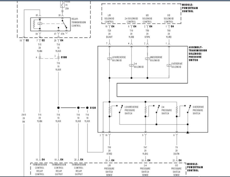
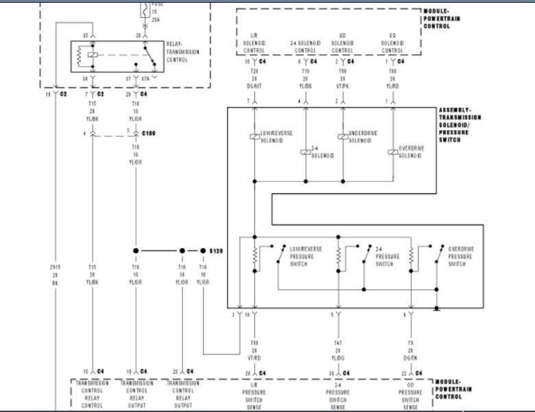
5. (T50) L/R PRESSURE SWITCH SENSE CIRCUIT OPEN


imageOpen In New TabZoom/Print


Turn the ignition off to the lock position.

Disconnect the PCM C4 harness connector.

Disconnect the Transmission Solenoid/Pressure Switch Assembly harness connector.

CAUTION: Do not probe the PCM harness connectors. Probing the PCM harness connectors will damage the PCM terminals resulting in poor terminal to pin connection. Install Miller Special Tool #8815 to perform diagnosis.

Measure the resistance of the (T50) L/R Pressure Switch Sense circuit between the Transmission Solenoid/Pressure Switch Assembly harness connector and the appropriate terminal of Miller tool #8815.

Is the resistance above 5.0 ohms?

Yes

- Repair the (T50) L/R Pressure Switch Sense circuit for an open.
- Perform 42RLE TRANSMISSION VERIFICATION TEST - VER 1. See: A L L Diagnostic Trouble Codes ( DTC ) > Verification Tests

No

- Go to 6

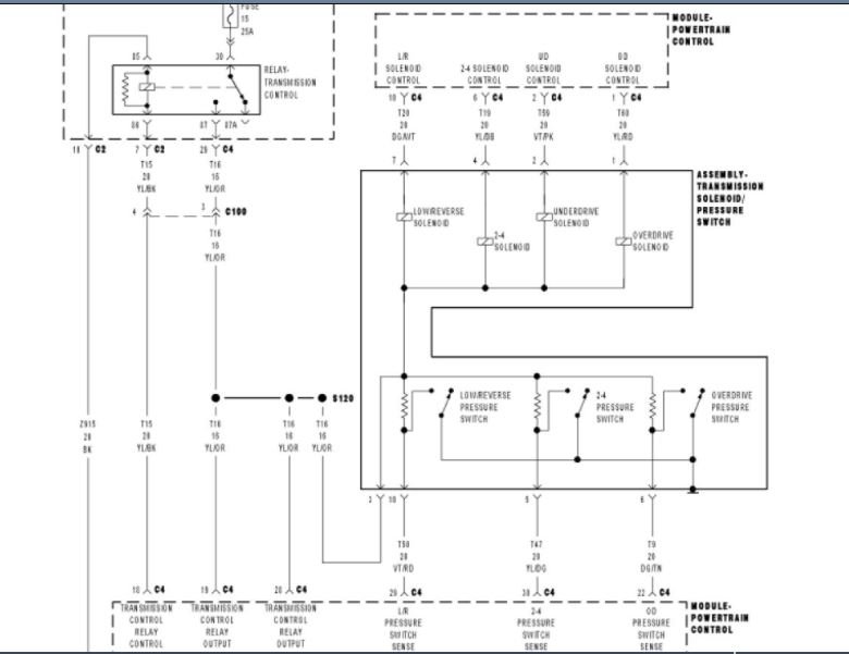
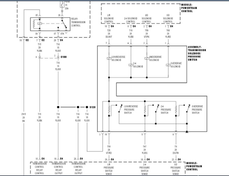
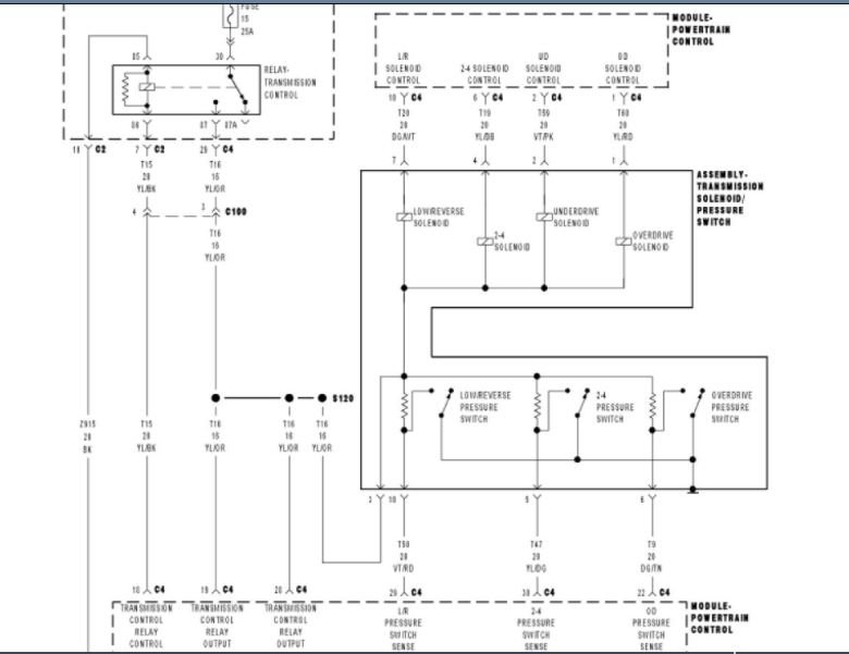
6. (T50) L/R PRESSURE SWITCH SENSE CIRCUIT SHORT TO GROUND


imageOpen In New TabZoom/Print


Measure the resistance between ground and the (T50) L/R Pressure Switch Sense circuit.

Is the resistance below 5.0 ohms?

Yes

- Repair the (T50) L/R Pressure Switch Sense circuit for a short to ground.
- Perform 42RLE TRANSMISSION VERIFICATION TEST - VER 1. See: A L L Diagnostic Trouble Codes ( DTC ) > Verification Tests

No

- Go to 7

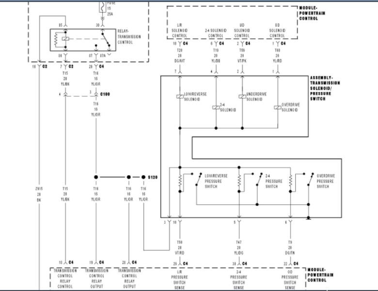
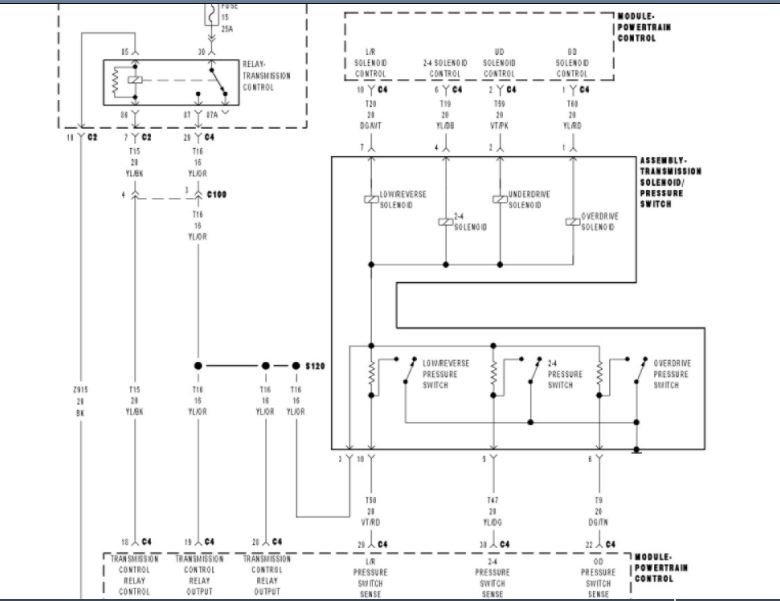
7. (T50) L/R PRESSURE SWITCH SENSE CIRCUIT SHORT TO VOLTAGE


imageOpen In New TabZoom/Print


Remove the Transmission Control Relay.

Connect a jumper wire between the (A104) Fused B(+) circuit and (T16) Transmission Control Relay Output circuit.

Ignition on, engine not running.

Measure the voltage of the (T50) L/R Pressure Switch Sense circuit.

Is the voltage above 0.5 volts?

Yes

- Repair the (T50) L/R Pressure Switch Sense circuit for a short to voltage.
- Perform 42RLE TRANSMISSION VERIFICATION TEST - VER 1. See: A L L Diagnostic Trouble Codes ( DTC ) > Verification Tests

No

- Using the schematics as a guide, check the Powertrain Control Module (PCM) terminals for corrosion, damage, or terminal push out. Pay particular attention to all power and ground circuits. If no problems are found, replace the PCM. With the scan tool, perform QUICK LEARN
- Perform 42RLE TRANSMISSION VERIFICATION TEST - VER 1. See: A L L Diagnostic Trouble Codes ( DTC ) > Verification Tests

8. INTERMITTENT WIRING AND CONNECTORS

The conditions necessary to set the DTC are not present at this time.

Using the schematics as a guide, inspect the wiring and connectors specific to this circuit.

Wiggle the wires while checking for shorted and open circuits.

With the scan tool, check the DTC EVENT DATA to help identify the conditions in which the DTC was set.

Were there any problems found?

Yes

- Repair as necessary.
- Perform 42RLE TRANSMISSION VERIFICATION TEST - VER 1. See: A L L Diagnostic Trouble Codes ( DTC ) > Verification Tests

No

- Test Complete.
Mar 21, 2021 at 4:47 PM