Tachometer and battery gauges failed at the same time

Tiny
BEUROB
  • MEMBER
  • 1991 FORD BRONCO
  • 5.8L
  • V8
  • 4WD
  • AUTOMATIC
  • 140,000 MILES
I started the vehicle normally and gave it a minute to stabilize RPM's. I put it into reverse and it clunked a bit into gear, as it does sometimes, and I noticed my tachometer read zero RPM's and my battery read zero volts, but everything was running fine. I turned it off and back on no issue, but they both remained reading zero. I know there is a fuse I can check for the tachometer but see nothing for the battery and would love any help.
Monday, December 28th, 2020 AT 6:18 PM

5 Replies

Tiny
ASEMASTER6371
  • MECHANIC
  • 52,796 POSTS
Good morning,

This sounds like the cluster itself has failed internally.

https://www.2carpros.com/articles/how-to-check-wiring

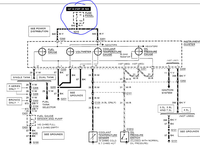
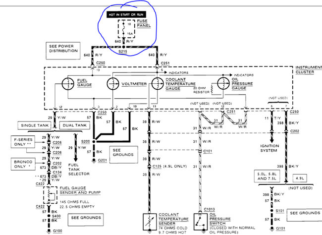
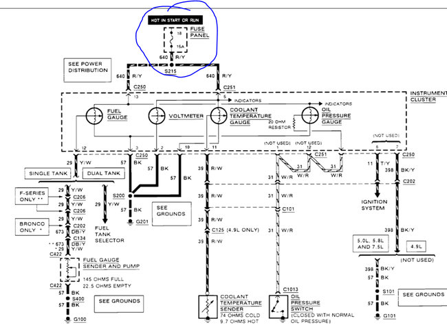
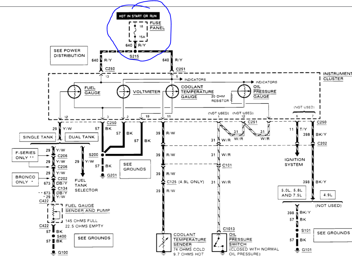
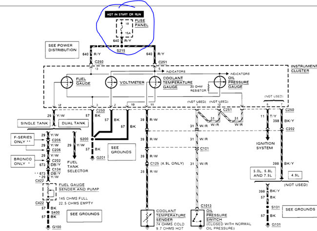
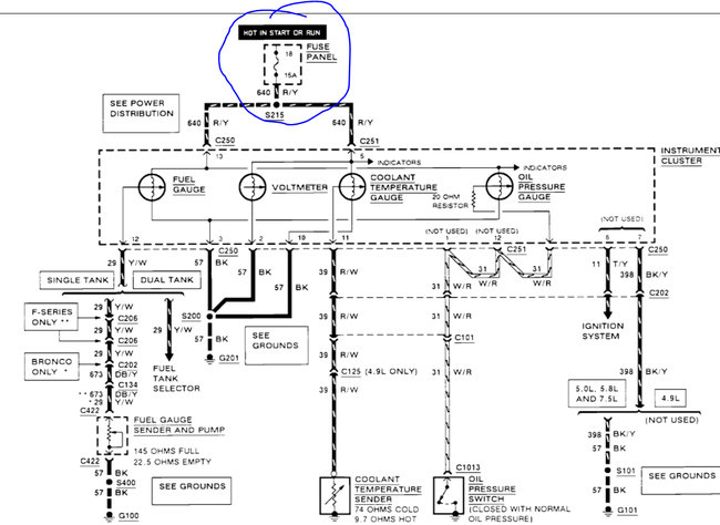
I attached a wiring diagram of the cluster for you to view. If it was the fuse, all gauges would have stopped reading.

https://www.2carpros.com/articles/how-to-check-a-car-fuse

Roy

1. Disconnect battery ground cable.
2. Remove wiper/washer knob. Use a suitable hook tool to release knob lock tab.
3. Remove light switch knob, windshield wiper switch knob and fog light switch knob, if equipped.
4. Remove steering column shroud, using care not to damage transmission selector indicator cables on models equipped with automatic transmission.
5. On models equipped with automatic transmission, release shift lever indicator cable retaining clip(s), then remove cable loop from retainer pin. Remove cable bracket attaching screw and slide bracket out of slot in tube.
6. On all models, remove cluster finish panel and the cluster attaching screws, Fig. 10.
7. Pull cluster back from panel and disconnect speedometer cable, printed circuit electrical connector and 4 X 4 indicator light electrical connector, if equipped.
8. Remove cluster from vehicle, Fig. 10.
9. Reverse procedure to install.
Was this
answer
helpful?
Yes
No
Tuesday, December 29th, 2020 AT 2:18 AM
Tiny
BEUROB
  • MEMBER
  • 3 POSTS
I’ve put in a new cluster and it is still not working, and to clarify as I’ve noticed a couple more things. It is also the fuel gauge, oil gauge, and coolant temperature gauge that are not working along with the original tachometer and battery.
Was this
answer
helpful?
Yes
No
-1
Monday, February 8th, 2021 AT 9:37 AM
Tiny
ASEMASTER6371
  • MECHANIC
  • 52,796 POSTS
Did you verify power to the cluster?

Roy
Was this
answer
helpful?
Yes
No
Monday, February 8th, 2021 AT 11:52 AM
Tiny
BEUROB
  • MEMBER
  • 3 POSTS
Meaning that say everything will light up and such? Because it will do that but will show no indication. If you mean something else then probably no if you don’t mind explaining.
Was this
answer
helpful?
Yes
No
Monday, February 8th, 2021 AT 2:50 PM
Tiny
ASEMASTER6371
  • MECHANIC
  • 52,796 POSTS
I attached a diagram for you to view. Check the fuse I circled and power to the connector for the dash cluster.

https://www.2carpros.com/articles/how-to-check-wiring

https://www.2carpros.com/articles/how-to-check-a-car-fuse

Roy
Was this
answer
helpful?
Yes
No
Tuesday, February 9th, 2021 AT 1:04 AM

Please login or register to post a reply.