Reverse lights not working?

Tiny
CHRISAGNEW
  • MEMBER
  • 2014 CHRYSLER 200
  • 40,000 MILES
Reverse lights not working, bulbs are fine. Nowhere in the manual or fuse box does it tell what fuse is for the reverse lights. Does it have one and how can I tell which fuse to check/change out?
Tuesday, April 16th, 2019 AT 2:47 PM

4 Replies

Tiny
KASEKENNY
  • MECHANIC
  • 18,907 POSTS
Hi Chris,

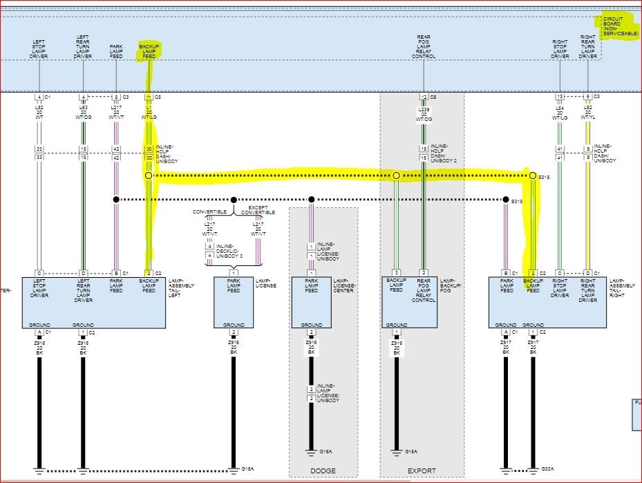
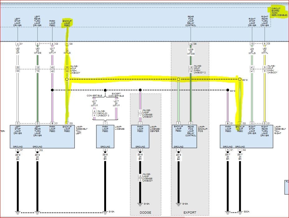
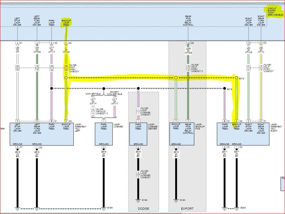
Unfortunately, this is a TIPM (totally integrated power module) based vehicle which means it does not have external fuses for many components. I included a wiring diagram that will help explain this. You will see on the diagram (upper right corner) where it says that it is non serviceable as it is a circuit board. This just means these circuits don't have external fuses.

Here is how you test this: If your bulbs are okay, then you want to measure voltage at the left rear light assembly on connector C2 pin 2 wire color WT/LG. With the reverse lights on, you should have 12 volts. If you don't have voltage there, I assume you wont, then you want to work your way forwards towards the TIPM measuring voltage at specific points. There is an inline connector that you want to check for voltage and make sure it does not have water intrusion. Then finally measure voltage at the TIPM on connector C8 pin 11 same color wire. The fact that neither side lamp works, either your issue is at the inline connector or the TIPM connection or TIPM itself.

I included locations and pin charts for each of these to help figure out where your power went. The last thing it could be is the ground however, if it is just reverse lights that don't work then the ground is okay because the stop lamps share that ground and each side has its own ground. The only thing each side shares is the feed wire.

Here are some links to so helpful guides on how to take these types of measurements:

https://www.2carpros.com/articles/how-to-check-wiring

https://www.2carpros.com/articles/how-to-use-a-voltmeter

https://youtu.be/Hlna_kUt7As

Let me know if you need more assistance and I will be happy to help. Thanks
Was this
answer
helpful?
Yes
No
+1
Tuesday, April 16th, 2019 AT 8:15 PM
Tiny
CHRISAGNEW
  • MEMBER
  • 4 POSTS
Thanks Kenny--much obliged for the information.

Take Care
Was this
answer
helpful?
Yes
No
Thursday, April 18th, 2019 AT 5:34 PM
Tiny
NICHOLAS STALHOOD
  • MEMBER
  • 4 POSTS
Im also having the same issue in a 2013 200. I noticed my back up cam stopped working, so after investigating realized I had no back up lights. I was told there could also be a reverse switch that has gone bad, but I can't find anything on where its located or how to replace on a 200
Was this
answer
helpful?
Yes
No
Sunday, January 29th, 2023 AT 5:10 AM
Tiny
KEN L
  • MASTER CERTIFIED MECHANIC
  • 55,404 POSTS
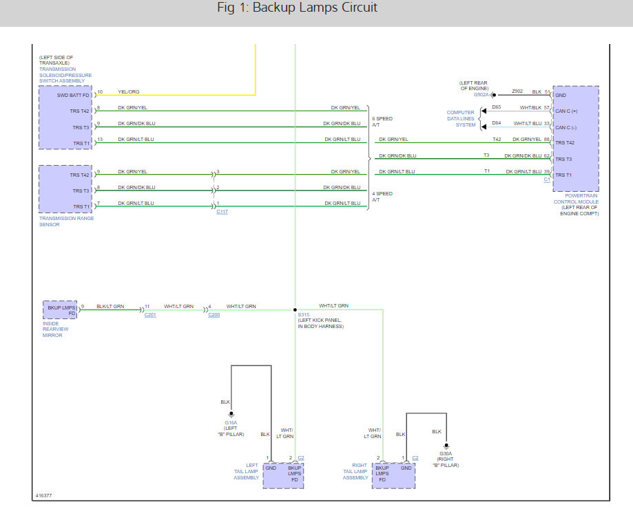
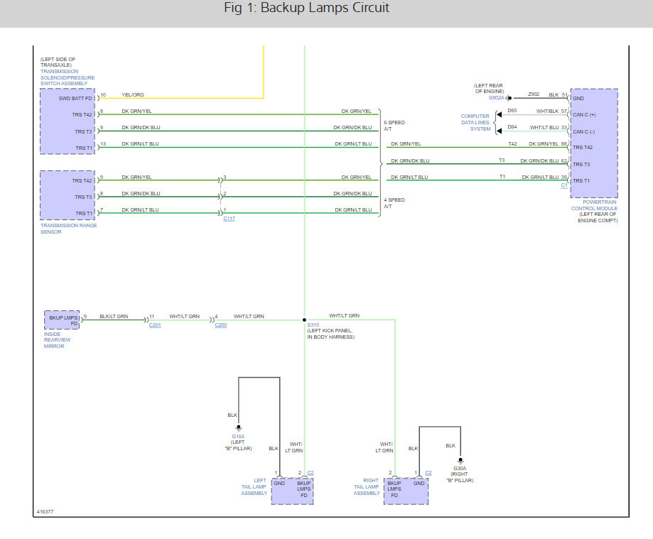
Sure, the reverse light switch is inside the transmission, but I have seen the TIPM go out and cause the issue as well. Here is the location of the reverse light switch and the wiring diagrams so you can check it out and see how the system works. They call it a transmission range sensor. Check out the images (below). Please let us know what you find.
Was this
answer
helpful?
Yes
No
Sunday, January 29th, 2023 AT 5:26 PM

Please login or register to post a reply.