I need radio wiring diagrams?

Tiny
LNCLEMENTS
  • MEMBER
  • 2001 CHRYSLER TOWN AND COUNTRY
  • 3.8L
  • 6 CYL
  • 4WD
  • AUTOMATIC
  • 170,009 MILES
I have read your thread on several of these. I replaced my radio and CD changer with a Boss BV9358B with Bluetooth, DVD/MP#?CDAM/FM receiver and backup camera which I have yet to connect. After installing it everything worked but no sound. I called Boss they asked me to check the blue white wire to see if it was connected in the aftermarket harness. I had connected the antenna wire (solid blue) instead of the power to the amp. I corrected that and there is still no sound. All the displays and menus work. Any suggestions?
Boss said they would replace the new unit. But Covid has stopped shipments in California.

Radio Daimer/Chrysler P56038518AJ CD changer P56038531AD
Saturday, January 16th, 2021 AT 4:00 PM

3 Replies

Tiny
KEN L
  • MASTER CERTIFIED MECHANIC
  • 55,350 POSTS
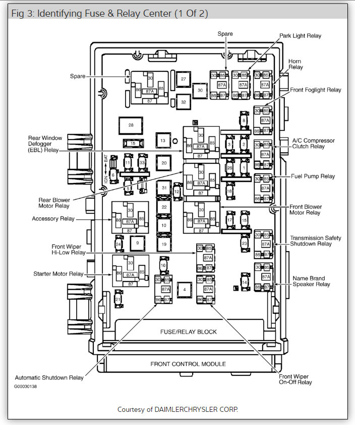
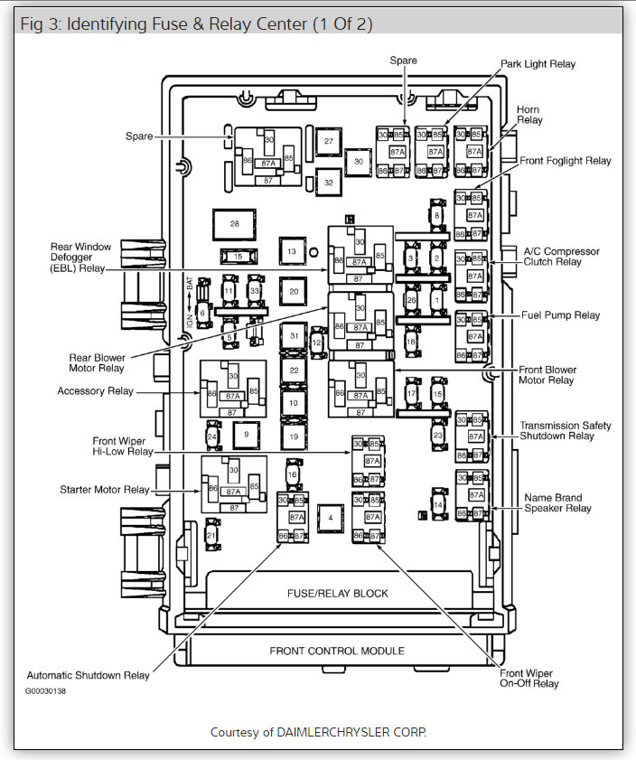
There is a name brand speaker relay we need to make sure is working. here is a guide to help you check it with the radio wiring diagrams so you can see how the system works. Also check fuse 5 and 14.

https://www.2carpros.com/articles/how-to-check-an-electrical-relay-and-wiring-control-circuit

and

https://www.2carpros.com/articles/how-to-check-a-car-fuse

Check out the diagrams (below). Let us know what happens and please upload pictures or videos of the problem.
Was this
answer
helpful?
Yes
No
+1
Sunday, January 17th, 2021 AT 6:45 PM
Tiny
BRANDON KUBICEK
  • MEMBER
  • 1 POST
  • 1997 CHRYSLER TOWN AND COUNTRY
Electrical problem
1997 Chrysler Town and Country

I am needing the wiring codes because the wiring plug has been removed before I purchased the vehicle. It is equiped with the 8-10 speaker infinity sound system but I only know the codes for four sets of speakers. Can anyone help?
Was this
answer
helpful?
Yes
No
Wednesday, January 20th, 2021 AT 12:56 PM (Merged)
Tiny
CARADIODOC
  • MECHANIC
  • 34,478 POSTS
Gray plug, starting away from the keyway:

Pin 1 is not used
Brown / Red: LF speaker -
Dark Blue / Red: RF speaker -
Yellow / Black: tail lights (dims the display)
Orange: dash lights (tells the display how much to dim)
Red / White: 12 volts from ignition switch
Pink: 12 volts all the time (station preset memory and clock)

Black plug, starting away from keyway:

Dark Green / Red: Power antenna / remote amp
Brown / Yellow: LR speaker +
Dark Blue / White: RR speaker +
Dark Green: LF speaker +
Violet: RF speaker +
Brown / Light Blue: LR speaker -
Dark Blue / Orange: RR speaker -

You can snip these plugs out of any Chrysler product from the early 1980s to at least 2000 in the salvage yard. A few models including the full size vans used them through 2002. They were consistent with the four power and dash light wire colors, but the speaker wires will likely be different colors depending on the car model you get the plugs from. Note that there is no ground wire in the plugs. A lot of installers confuse the tail light wire with a ground because of the color and its low resistance to ground. Connecting an aftermarket radio's ground wire to the Yellow / Black wire will cause the dash light fuse to blow when the headlights are turned on. The ground wire is a black wire clipped to a prong on the rear of the radio or a braided strap bolted to the rear of the radio. The radio will also be grounded through the braided shield of the antenna wire, but this is a very poor ground for the power circuits.

There might be a third two-terminal white plug with one wire in it. That's only needed if your vehicle and the radio have steering wheel controls. That plug is usually found on the Mitsubishi-built cd / cassette combo radios. They are very high quality. There are a few common problems related to automated manufacturing techniques, and once repaired, they're repaired for life. I've never found a defective cd laser assembly on one of these radios. Compare that to a 100 percent failure rate on 1990s GM cd players. The Chrysler cd-only radios are built by Alpine and have a few more common problems. They will usually not have the third plug for steering wheel controls. The cd / cassette combo radio is a much better unit even if you don't have cassettes. Most of the cassette-only radios are built by Chrysler. They aren't too bad but if the FM tuner dies, which is common, replacement parts are over 50 bucks, more than the radio is worth.

You don't have to concern yourself with Infinity vs. Non-Infinity radios. ALL Chrysler radios put out speaker level volume, unlike SOME Ford and SOME GM radios that require remote amplifiers. They can be very confusing. Chrysler only uses a remote amp or little amps bolted to the speakers for tone conditioning for the shape of the vehicle. GM accomplishes this with a bazillion different model numbers that all look the same. You can never hope to find exactly the right model for your car, but most people can't tell the slight difference anyway. Chrysler only had a few radio model numbers, then used different speakers designed specifically for each vehicle.

Infinity radios put out very little bass. It is made up by the amplifiers. What you might find is if you use a non-Infinity radio, and your van has the Infinity speakers, you will have too much bass and will have to turn it down. If you use an Infinity radio in a vehicle without the Infinity package, you will have to turn the bass up higher to get pleasing sound. I use my 1988 Grand Caravan as a daily driver and use it to test run radios for a few weeks before I sell them. The van has the Infinity system, but I find it very hard to tell the difference in the various radios I put in it. They all sound good.

I should mention too that there are two other radio plugs shown in the service manual, but I have never seen them in a vehicle or on any of the hundreds of radios I've repaired. You only need the gray and black 7-pin plugs to make your factory radio work.

You should be able to find the proper radio at any salvage yard. There are three mounting styles; you need the most common one with one mounting ear on the right side, at the top, and one on the bottom, all the way to the left. If you look on eBay, don't buy any radio that can only be shipped with UPS as there's a good chance it will get smashed in shipping. They destroyed 17 out of 57 they brought me and will not go good for them even if you pay for insurance. I only use Parcel Post now and haven't had a single problem. Also, most eBay radios have problems that the sellers don't disclose. You're better off checking one out at the salvage yard. If you find a nice cd / cassette combo, make sure all the front switches perform the correct functions, the FM works when you tap lightly on the right side, the volume goes up and down smoothly, and the cd player works. On the other hand, if you can get a real good discount because of any of these common problems, I can repair it so it works properly.

The Alpine-built cd-only radios also develop intermittent display which can be quite time-consuming to repair depending on the model. I've also had four of them with defective cd lasers. A very low percentage of failures out of the many I've worked on, but still disappointing.

Caradiodoc
Was this
answer
helpful?
Yes
No
+4
Wednesday, January 20th, 2021 AT 12:56 PM (Merged)

Please login or register to post a reply.