HOME
ASK A QUESTION
REPAIR GUIDES
BECOME A MEMBER
LOG IN
Login with Facebook
OR
Remember me
NOT A MEMBER?
FORGOT PASSWORD?
CONTACT US
PRIVACY POLICY
TERMS AND CONDITIONS
☰
Home
Honda
Accord
General
Fuse Test
Qb2 no power
JIM WEST
MEMBER
2008 HONDA ACCORD
1.5L
4 CYL
2WD
AUTOMATIC
180,000 MILES
Which fuse works this?
Sunday, December 19th, 2021 AT 7:14 AM
1 Reply
ASEMASTER6371
MECHANIC
52,796 POSTS
Good morning,
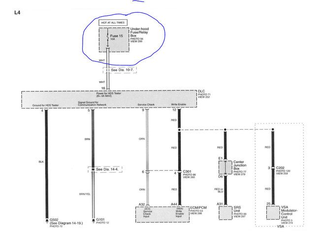
I attached the connector diagram and a wiring diagram of the data link connector for you to view.
https://www.2carpros.com/articles/how-to-check-wiring
https://www.2carpros.com/articles/how-to-check-a-car-fuse
Pin 16 is the power for the scan tools.
Let me know if you have any other questions.
Roy
Images (Click to make bigger)
Was this
answer
helpful?
Yes
No
Sunday, December 19th, 2021 AT 8:25 AM
Please
login
or
register
to post a reply.
Related Fuse Test Content
2001 Honda Accord Main Fuse
After Putting A New Battery In, Car Still Won't Run. It Won't Turn Over And Shows No Sing Of Power. We Are Looking At The Main Fuse But...
Asked by
pstrJo
·
5 ANSWERS
8 IMAGES
2001
HONDA ACCORD
Blown Fuses
My 98 Accord Keeps Blowing Either The Horn Or The Stop Light Fuse, Preventing The Shifter From Moving. Any Ideas Out There?
Asked by
jtennant
·
3 ANSWERS
1 IMAGE
1998
HONDA ACCORD
1992 Honda Accord Fuse
The Cigarette Lighter Is Loose In My Car And Sparked. Now My Lighter, Power Antenna, And Dome Light Don't Work. I Can't Find The Fuse....
Asked by
patstap
·
1 ANSWER
1992
HONDA ACCORD
Is There Any Fuse For The Iacv Power
About The Iac That Is Not Getting Power, Does The Power Line From The Iac After The Junction Connection Leads To The Fuse Box? And Is There...
Asked by
Hassan Shuaibu
·
4 ANSWERS
1 IMAGE
1995
HONDA ACCORD
90 Accord: 80 Amp Battery Fuse Keeps Blowing
Battery Fuse Keeps Blowing When I Attempt To Connect Battery To Terminals. What Equipment Do I Need (voltmeter, Bulb Test) And What Should...
Asked by
mezzyj
·
3 ANSWERS
1 IMAGE
1990
HONDA ACCORD
VIEW MORE
Ask a Car Question. It's Free!
Oil Change and Filter Replacement Ford Focus
Coolant Drain and Refill Scion XD
Oil Change Honda Civic 1.3L 2001-2005 HYBRID