HOME
ASK A QUESTION
REPAIR GUIDES
BECOME A MEMBER
LOG IN
Login with Facebook
OR
Remember me
NOT A MEMBER?
FORGOT PASSWORD?
CONTACT US
PRIVACY POLICY
TERMS AND CONDITIONS
☰
Home
Honda
Odyssey
Body
Window
Switch
Power window switch wiring diagram
AGUS HENDRA
MEMBER
2000 HONDA ODYSSEY
100,000 MILES
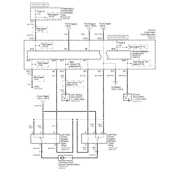
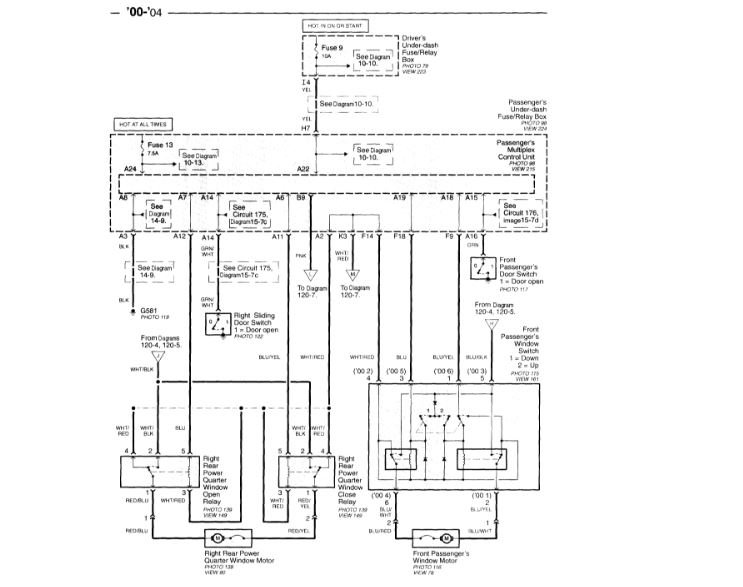
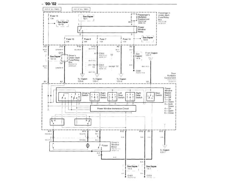
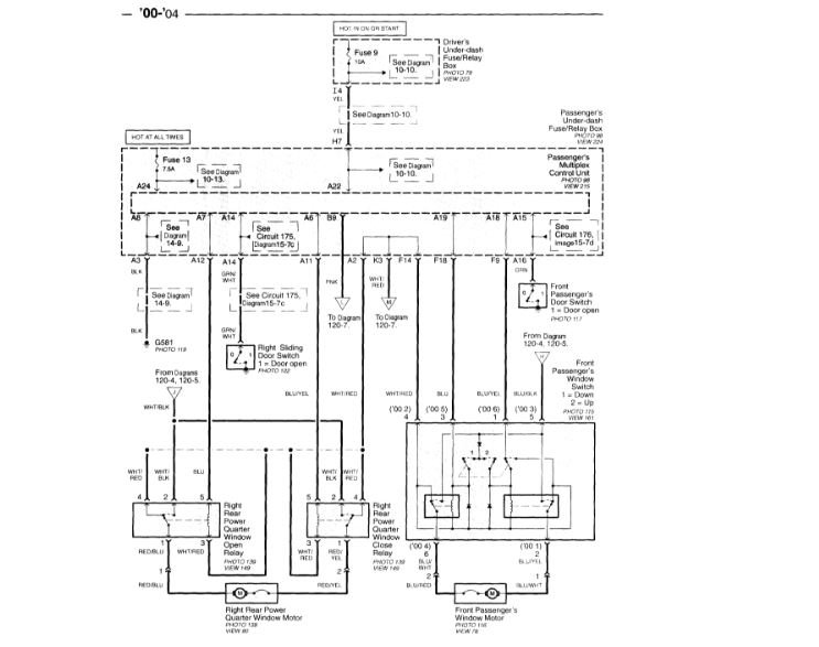
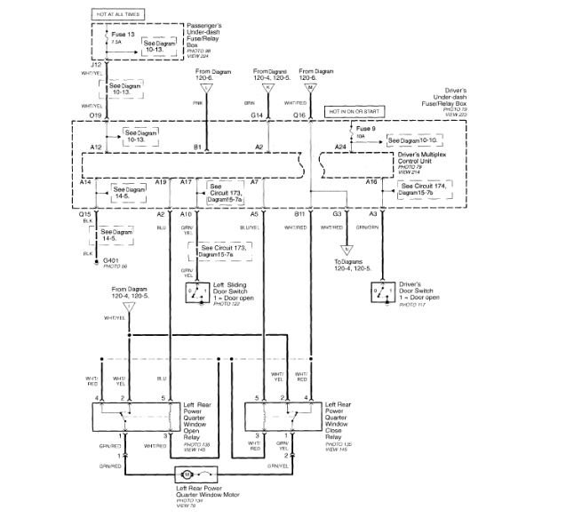
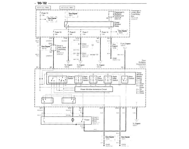
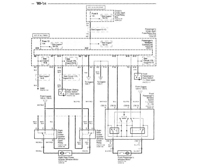
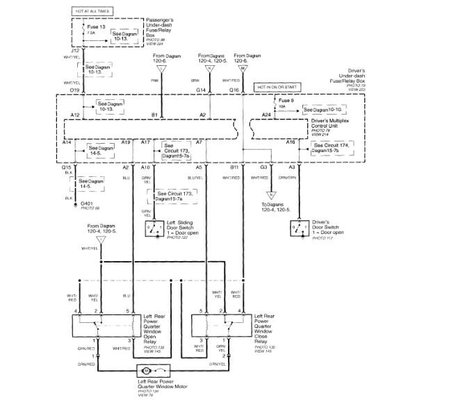
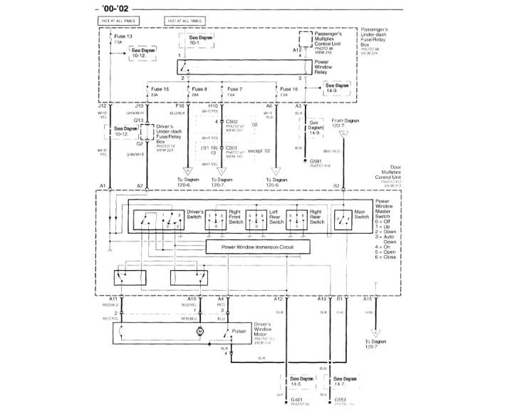
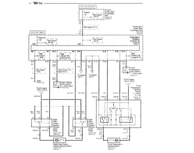
Can I get detail about master switch power window wiring. Where the positive and negative etc?
Friday, June 22nd, 2018 AT 9:30 AM
1 Reply
ASEMASTER6371
MECHANIC
52,796 POSTS
Good morning.
I attached all three wiring diagrams for you to view with pin identification of each part of the system.
Let me know if you have any follow up questions.
Roy
Images (Click to make bigger)
Was this
answer
helpful?
Yes
No
-1
Friday, June 22nd, 2018 AT 9:50 AM
Please
login
or
register
to post a reply.
Related Window Switch Content
Passenger Side Power Window Does Not Respond To...
The Windows On My 2000 Honda Odyssey Ex Were Unfortnately Left Down Two Nights Ago And, Of Course, It Rained. Yesterday Morning I Tried...
Asked by
jimmer24
·
31 ANSWERS
3 IMAGES
2000
HONDA ODYSSEY
GUIDE
Window Control Switch Repair and Testing
A master window control switch is designed to supply power and ground to the various windows in the vehicle. Subsequent window control switches, for example on the passenger...
2003 Honda Odyssey Passenger Window Doesn't Go Up...
We Just Had Some Body Work, Due To Minor Collision, On The Passenger Side Of The Vehicle. Upon Getting The Vehicle Back, This Issue Is...
Asked by
jdonoho
·
6 ANSWERS
2003
HONDA ODYSSEY
Power Window Forced Too High
I've Got A 1997 Honda Oddesy W/200,000 Miles. The Windows Had Been Working Fine. My Sister Held The Front Passenger Window Switch On Too...
Asked by
Dave Zidro
·
1 ANSWER
HONDA ODYSSEY
Window Will Not Open
The Only Power Window That Will Open Using The Master Switch Is The Drivers Window. When I Try To Open Any Of The Other Windows Using The...
Asked by
jdcyclone
·
51 ANSWERS
8 IMAGES
2006
HONDA ODYSSEY
Power Window Wiring Diagram?
The Driver Window Works Fine. All The Other 3 Windows Will Not Roll Down With Either The Driver Side Control Or The Passenger Control. The...
Asked by
Tnguyenwa
·
5 ANSWERS
6 IMAGES
2007
HONDA ODYSSEY
VIEW MORE
Ask a Car Question. It's Free!
Window Switch Replacement and Test
Door Panel Removal
Door Lock Replacement