Monday, July 8th, 2019 AT 6:23 PM
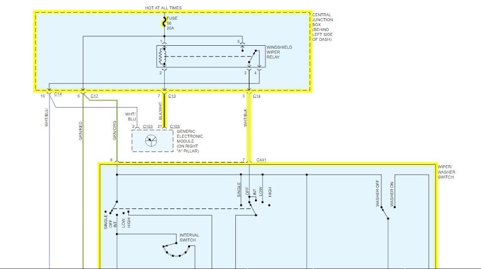
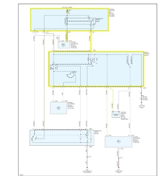
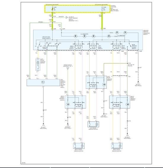
My car listed above zts model wont shift out of park. The windshield wipers quit working and the power windows will not work, quit all at the same time.









