Security light

Tiny
CDEBEY
  • MEMBER
  • 1998 PONTIAC BONNEVILLE
  • 6 CYL
  • FWD
  • AUTOMATIC
  • 108,000 MILES
The security light comes on and stays lit after I start my car. Starts and runs fine. Tried both sets of keys. Any ideas?
Thursday, May 14th, 2009 AT 6:15 PM

1 Reply

Tiny
KASEKENNY
  • MECHANIC
  • 18,907 POSTS
If the vehicle is starting and running, then the theft light remaining on means there is an issue with the system but not with sending and receiving the security code.

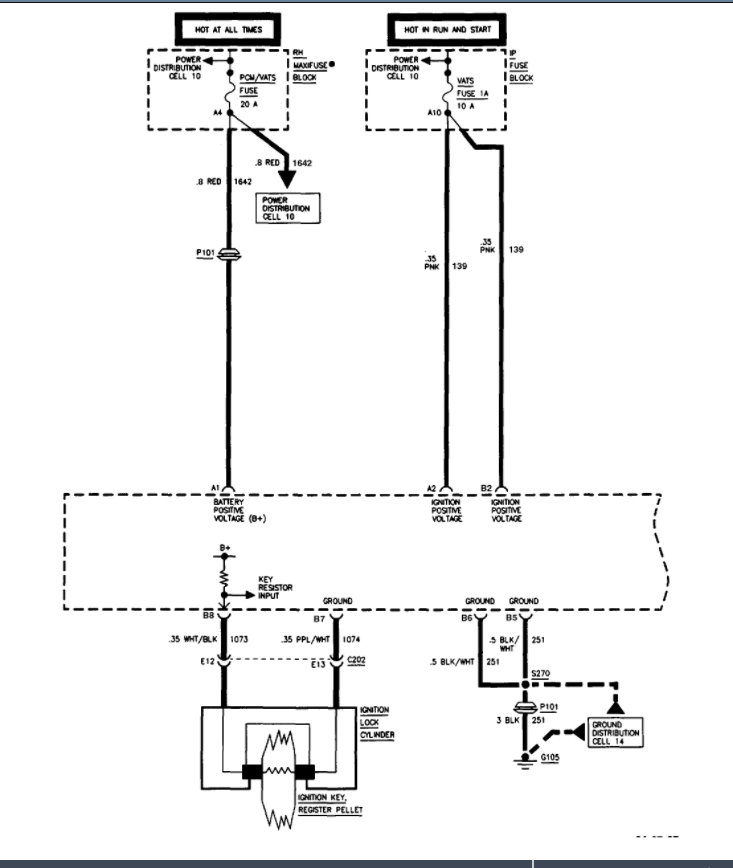
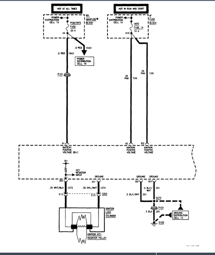
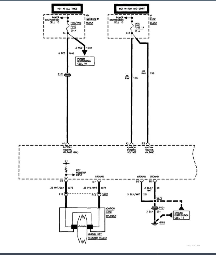
This vehicle has the pellet style system which is basically just a resistor in the key that tells the theft system that it is a valid key.

What I would suggest is we start with checking for all codes. Even though you don't have a check engine light on, you should still have a body or B code in the system that will tell us what the issue is.

https://www.2carpros.com/articles/checking-a-service-engine-soon-or-check-engine-light-on-or-flashing

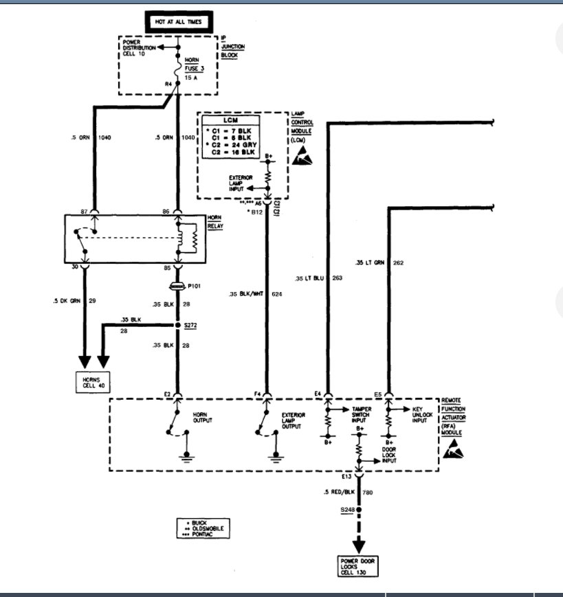
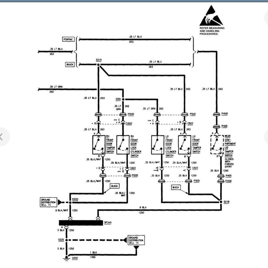
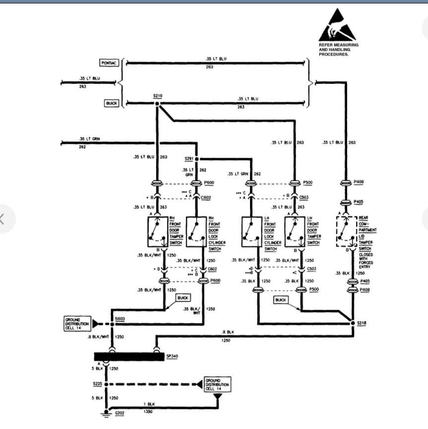
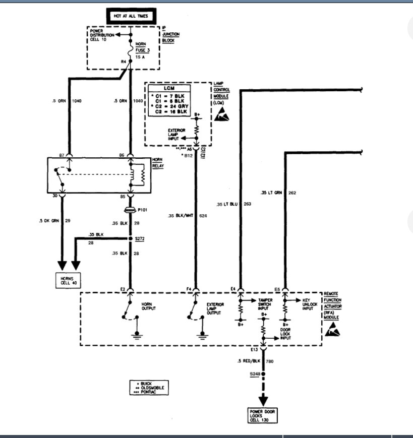
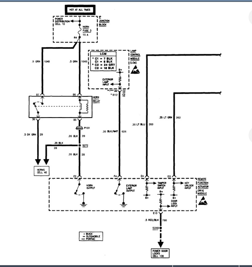
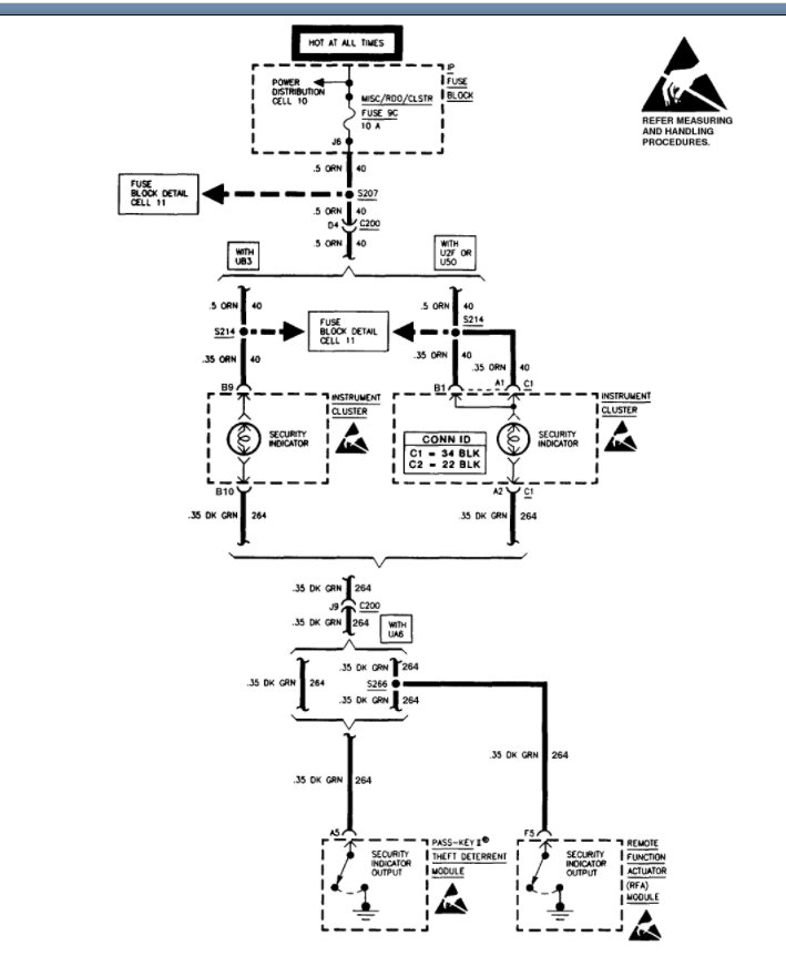
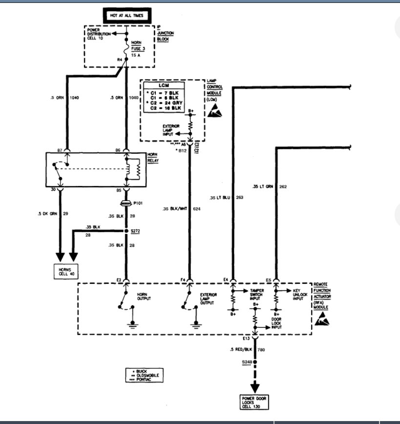
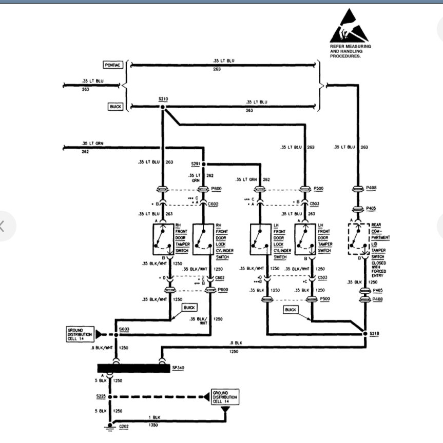
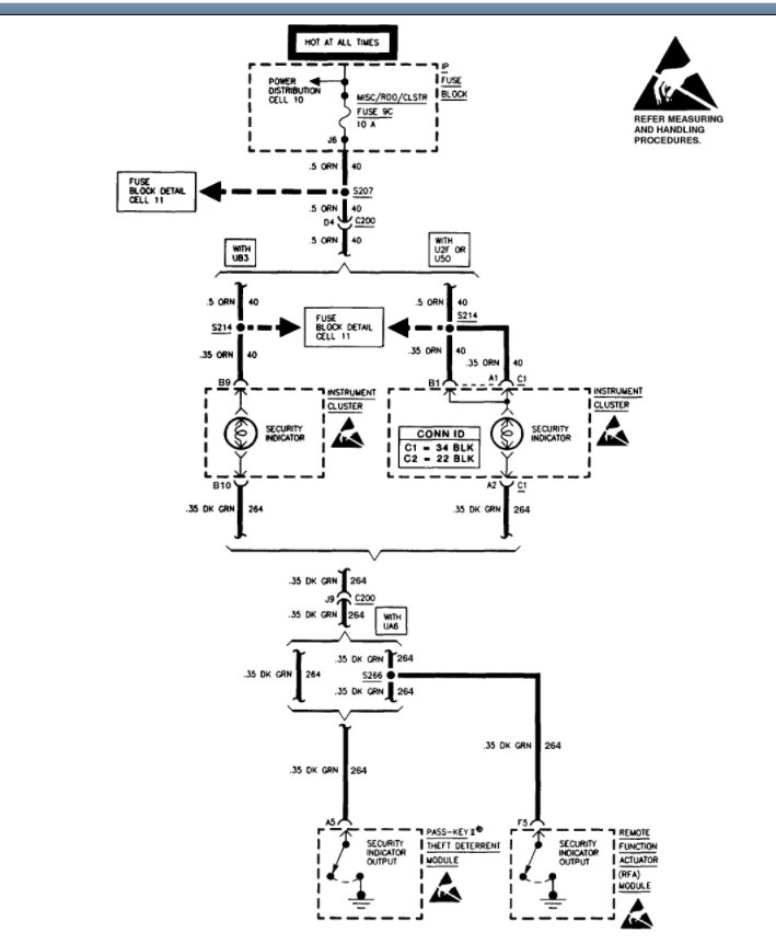
I am going to guess we have an issue with the remote function actuator module, but I am attaching the wiring diagrams below so that we can check the voltage at each of the switches on the last attachment.

https://www.2carpros.com/articles/how-to-check-wiring

Please run through this and let me know what you find. Thanks
Was this
answer
helpful?
Yes
No
Saturday, November 20th, 2021 AT 6:43 AM

Please login or register to post a reply.