Passenger window will not go up?

Tiny
WILLIAM17
  • MEMBER
  • 2004 FORD F-250
  • 5.4L
  • V8
  • 4WD
  • AUTOMATIC
  • 150,000 MILES
I have checked that power is being supplied and replaced the window motor but still no luck.
Tuesday, July 22nd, 2025 AT 12:32 PM

5 Replies

Tiny
STEVE W.
  • MECHANIC
  • 15,699 POSTS
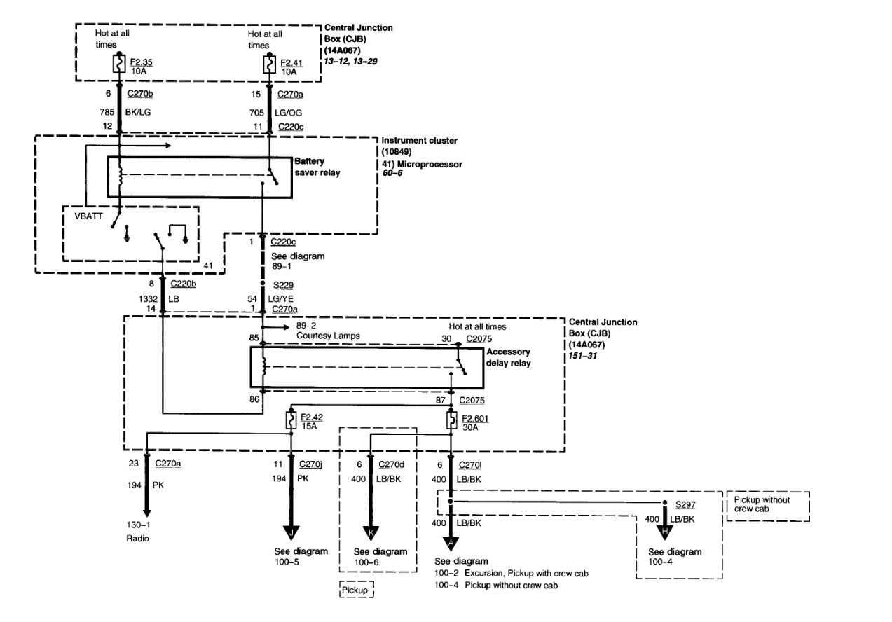
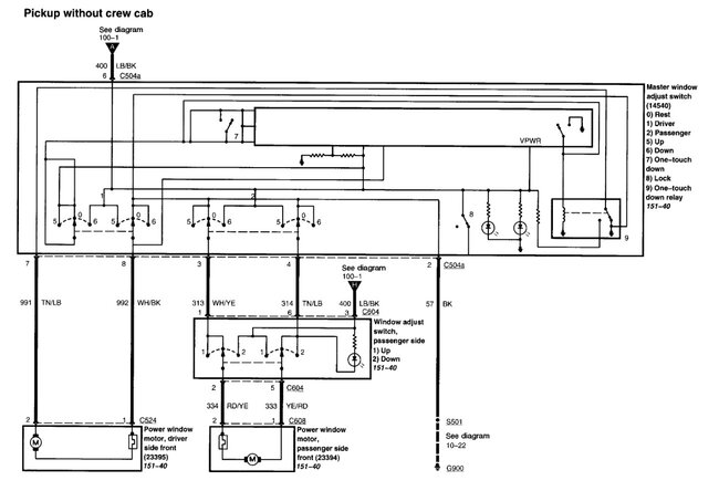
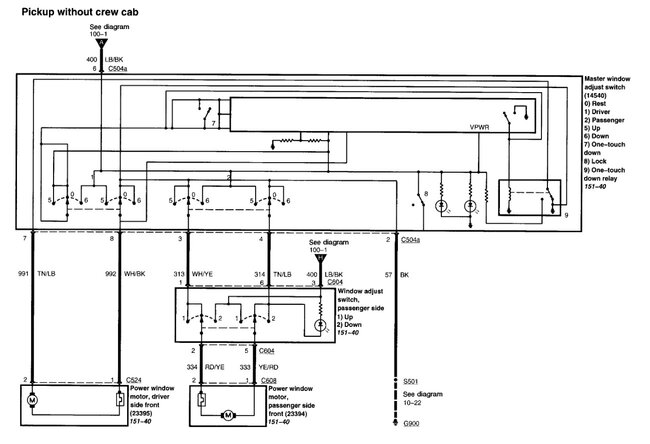
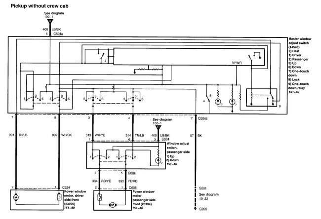
So it goes down but not up? If you pull up on the glass does the glass move? The motor uses simple polarity reversal so if it goes down by the switch it's likely a physical issue in the door that is blocking it, like rust or dirt in the tracks. If it doesn't move at all then the issue is in the rest of the circuit. You need a simple test light to do the testing. We'll use the std cab version as it's easier to read and the others just add more switches.
First step, if the driver's side works, we know there is power through the fuses and to the driver's side. So, remove the passenger side switch, connect the test light to a good ground and turn on the key, now check the Light Blue with black trace for battery power. Test light should light. Now connect the ground to the tan with light blue trace, that should be a ground, Light should light. No light there is a break in the wiring, probably in the area where the flex goes from the door to the body. Peel that open and look for damage.
Was this
answer
helpful?
Yes
No
Tuesday, July 22nd, 2025 AT 2:12 PM
Tiny
WILLIAM17
  • MEMBER
  • 3 POSTS
Yes the window goes down but not up. I can move the window up and down freely when I remove the motor. When testing the connection at the motor with a voltage meter and pressing up and down on the switch I get power. I have also bypassed the switch and forced power into the window motor with my voltage meter and the window went up with no issue. Then I plug the wires back in and the widow still won’t go up. I have also looked for damaged wires in that spot and in the door but ruled that out when I tested the connection.
Was this
answer
helpful?
Yes
No
Tuesday, July 22nd, 2025 AT 3:05 PM
Tiny
STEVE W.
  • MECHANIC
  • 15,699 POSTS
Is that on both switches? From the extra info I would say it's a bad passenger side switch circuit on pin 1, that provides the ground from the other side. See if you have a ground on that wire. If you jump a ground to it and the window goes down you know for sure.
Was this
answer
helpful?
Yes
No
Tuesday, July 22nd, 2025 AT 3:26 PM
Tiny
WILLIAM17
  • MEMBER
  • 3 POSTS
Yes, on both the passenger and driver side switches the window will not got up. On that wht/yel wire I do get a ground signal.
Was this
answer
helpful?
Yes
No
Tuesday, July 22nd, 2025 AT 3:51 PM
Tiny
STEVE W.
  • MECHANIC
  • 15,699 POSTS
Okay, take your meter and hold the window switch in the down position. Check that you have 12 volts on the red with yellow pin 2. Now check for ground on pin 5 yellow with red. If you don't, which I suspect as that would be the position to lower the window, the switch is bad internally.
Was this
answer
helpful?
Yes
No
Wednesday, July 23rd, 2025 AT 12:56 AM

Please login or register to post a reply.